ᐅ Grundriss 200m2-Haus eure Einschätzung?
Erstellt am: 12.08.22 11:48
Liebe Leute, ich verfolge schon länger die Diskussionen in diesem Forum und finde die Feedbacks zu den einzelnen Fragen sehr hilfreich. Wir bauen zum ersten Mal – mit all den Wissenslücken, die man dann hat… ;-)
Unser Grundstück ist herausfordernd, weil dreieckig, schmal und mit einer Vorgabe von jeweils 4m Abstand im vorderen Bauwich und 20m zum Spitz. Dafür ist die Ausrichtung toll und wir haben eine schöne Fernsicht. Wir wollen so viel Gartenfläche wie möglich erhalten und außerdem Fernsicht in die Natur und maximale Sonne - von Sonnenaufgang bis Sonnenuntergang. Daher die Idee, den Wohnbereich teilweise „schwebend“ im OG mit Terrasse und Abgang in den Garten zu lösen. Der direkte Zugang vom EG in den Garten ist uns nicht so wichtig.
Aufgrund der Baubestimmungen bleibt in östlicher Richtung ein großer Teil unbebaubar bzw. ev. für Nebengebäude nutzbar. Der Zugang soll über diesen Bereich erfolgen und dieser Teil des Gartens der Vorgarten werden. Das Haus soll barrierefrei sein. Die Fläche soll optimal genutzt werden, mit viel Stauraum, flexiblen, multifunktionalen Räumen und großen, bodentiefen Fenstern / Türen bzw. fixen Verglasungen.
Wie findet ihr unsere Überlegungen? Welche Schwachstellen seht ihr?
Danke im Voraus für jede offene Kritik und eure Anregungen.
Bebauungsplan
Größe des Grundstücks - 590m2
Leichte Hangneigung und SW Ausrichtung
Maximale Höhe – 8m
Anforderungen der Bauherren
Klare Linien, Flach- oder Pultdach
Geschosse – EG, OG, DG, gesamt ca. 190m2
Personen – 2 im besten Alter und 2 Hunde
Büro: Homeoffice
Schlafgäste pro Jahr – 5-10
offene Architektur
Bauweise – modernes Design, klare und reduzierte Formen mit interessanten Akzenten, gezielten Brüchen, die dem Haus etwas unaufdringlich Einzigartiges geben (Fassade, Materialien, …).
Offene Küche, ev. Kochinsel, aber mit gewissem Sichtschutz (Bar oä)
Anzahl Essplätze - 8
Kamin – idealerweise als Raumteiler zwischen Wohnzimmer und Essbereich
Musik/Stereowand – Soundbar beim Fernseher, weitere Lautsprecher verteilt im Haus
Balkon, Dachterrasse – im OG & DG
Carport für 2 Autos
Hausentwurf
Plan vom Architekten
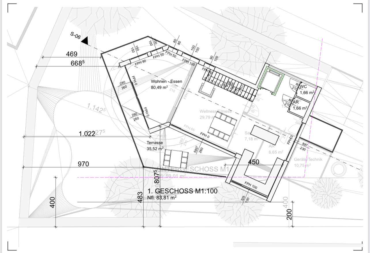
EG – Entrée, Funktionsräume, Fitness/Arbeits-/Gästezimmer, Bad & Sauna
OG – Wohnen, kochen & essen, naturnahe, sonnig, gemütlich, „öffentlicher Bereich“, Terrasse
DG – Schlafzimmer, sonniger privater (Rückzugs-)Bereich, Terrasse
Garten – möglichst perspektivisch vergrößern, überdachte Terrasse, Biotop nahe bei Terrasse
Was gefällt besonders?
Der offene Wohn-Essbereich im 1. Stock, die bodentiefen Fenster, der Verlauf der Sonne im Wohnbereich.
Was gefällt nicht?
Wir haben das Gefühl, dass die Raumanordnung besser sein könnte und man ev. mit weniger QM bei gleichem Wohnfeeling auskommen kann’s
Im EG ist nur die Sauna eingezeichnet, es fehlen noch Dusche, Waschbecken und WC. Der große Raum soll als Fitness-/Arbeits-/Gästezimmer genutzt werden und ist ein wenig überdimensioniert.
Favorisierte Heiztechnik: Erdwärmekörbe und Photovoltaik am Dach
Beilagen: Lageplan, Grundrisse, Außenansicht





Unser Grundstück ist herausfordernd, weil dreieckig, schmal und mit einer Vorgabe von jeweils 4m Abstand im vorderen Bauwich und 20m zum Spitz. Dafür ist die Ausrichtung toll und wir haben eine schöne Fernsicht. Wir wollen so viel Gartenfläche wie möglich erhalten und außerdem Fernsicht in die Natur und maximale Sonne - von Sonnenaufgang bis Sonnenuntergang. Daher die Idee, den Wohnbereich teilweise „schwebend“ im OG mit Terrasse und Abgang in den Garten zu lösen. Der direkte Zugang vom EG in den Garten ist uns nicht so wichtig.
Aufgrund der Baubestimmungen bleibt in östlicher Richtung ein großer Teil unbebaubar bzw. ev. für Nebengebäude nutzbar. Der Zugang soll über diesen Bereich erfolgen und dieser Teil des Gartens der Vorgarten werden. Das Haus soll barrierefrei sein. Die Fläche soll optimal genutzt werden, mit viel Stauraum, flexiblen, multifunktionalen Räumen und großen, bodentiefen Fenstern / Türen bzw. fixen Verglasungen.
Wie findet ihr unsere Überlegungen? Welche Schwachstellen seht ihr?
Danke im Voraus für jede offene Kritik und eure Anregungen.
Bebauungsplan
Größe des Grundstücks - 590m2
Leichte Hangneigung und SW Ausrichtung
Maximale Höhe – 8m
Anforderungen der Bauherren
Klare Linien, Flach- oder Pultdach
Geschosse – EG, OG, DG, gesamt ca. 190m2
Personen – 2 im besten Alter und 2 Hunde
Büro: Homeoffice
Schlafgäste pro Jahr – 5-10
offene Architektur
Bauweise – modernes Design, klare und reduzierte Formen mit interessanten Akzenten, gezielten Brüchen, die dem Haus etwas unaufdringlich Einzigartiges geben (Fassade, Materialien, …).
Offene Küche, ev. Kochinsel, aber mit gewissem Sichtschutz (Bar oä)
Anzahl Essplätze - 8
Kamin – idealerweise als Raumteiler zwischen Wohnzimmer und Essbereich
Musik/Stereowand – Soundbar beim Fernseher, weitere Lautsprecher verteilt im Haus
Balkon, Dachterrasse – im OG & DG
Carport für 2 Autos
Hausentwurf
Plan vom Architekten
EG – Entrée, Funktionsräume, Fitness/Arbeits-/Gästezimmer, Bad & Sauna
OG – Wohnen, kochen & essen, naturnahe, sonnig, gemütlich, „öffentlicher Bereich“, Terrasse
DG – Schlafzimmer, sonniger privater (Rückzugs-)Bereich, Terrasse
Garten – möglichst perspektivisch vergrößern, überdachte Terrasse, Biotop nahe bei Terrasse
Was gefällt besonders?
Der offene Wohn-Essbereich im 1. Stock, die bodentiefen Fenster, der Verlauf der Sonne im Wohnbereich.
Was gefällt nicht?
Wir haben das Gefühl, dass die Raumanordnung besser sein könnte und man ev. mit weniger QM bei gleichem Wohnfeeling auskommen kann’s
Im EG ist nur die Sauna eingezeichnet, es fehlen noch Dusche, Waschbecken und WC. Der große Raum soll als Fitness-/Arbeits-/Gästezimmer genutzt werden und ist ein wenig überdimensioniert.
Favorisierte Heiztechnik: Erdwärmekörbe und Photovoltaik am Dach
Beilagen: Lageplan, Grundrisse, Außenansicht
K
K a t j a12.08.22 13:49Zunächst: endlich mal wieder ein "richtiges" Architektenhaus. Zum Verständnis noch ein paar Fragen:
- zwischen Wohnen und Esstisch - ist da ein Unterzug oder direkt eine Wand mit Durchgang oder gar nix? Kann das nicht recht deuten.
- könnt Ihr mal Möbel ins Wohnzimmer stellen? Wie soll das aussehen?
- am besten auch gleich den Schornstein mit einzeichnen, sofern das ein echter Kamin werden soll.
- Badewanne ist nicht wichtig?
- Waschmaschine steht wo? Gibt's einen Wäscheschacht?
- Kannst Du mal die Zufahrt kennzeichnen?
- Budget = ?
- zwischen Wohnen und Esstisch - ist da ein Unterzug oder direkt eine Wand mit Durchgang oder gar nix? Kann das nicht recht deuten.
- könnt Ihr mal Möbel ins Wohnzimmer stellen? Wie soll das aussehen?
- am besten auch gleich den Schornstein mit einzeichnen, sofern das ein echter Kamin werden soll.
- Badewanne ist nicht wichtig?
- Waschmaschine steht wo? Gibt's einen Wäscheschacht?
- Kannst Du mal die Zufahrt kennzeichnen?
- Budget = ?
Hi Katja, danke für die liebe Einleitung.
Bin gerade im Urlaub und kann nichts einzeichnen, werde ich noch nachreichen. Zu deinen Fragen:
* Zwischen Wohnen und Esstisch ist nichts, ist ein großer Raum, mit langen Sichtachsen.
* Möbel werden nachgereicht. Aber zur Vorinfo: angedacht wären zwei Sofas, die gegenüber stehen, quer zur großen Fensterfront, ein Couchtisch, ein oder zwei Sessel, ein Bücherregal, Fernseher. Vermutlich werden wir die Wand direkt beim Stiegenaufgang fensterlos lassen.
* Beim Kamin bin ich unsicher, ob der nicht eher an der Wand beim Stiegenaufgang stehen sollte. Ich kann mir nicht vorstellen, wie die derzeitige Kamin-Planung im Obergeschoss funktionieren soll… Daher kann ich den Schornstein auch noch nicht einzeichnen. Auch so ein Punkt wo ich für Tipps dankbar wäre.
* Badewanne ist uns nicht wichtig.
* Waschmaschine soll im Erdgeschoss sein, mit der Möglichkeit die Wäsche zum Trocknen aufzuhängen. Wäscheschacht war angedacht, ist aber irgendwie verschütt gegangen als wir den Lift geplant haben.
* Zufahrt wird noch eingezeichnet - ist beim Spitz ( dort wird es einen Carport geben) und der Zugang erfolgt auch eher von der Nord-Spitzseite um diesen Teil des Gartens als Vorgarten zu nutzen.
* Unser Ziel ist es möglichst „Low-Budget“ zu bauen und die letzte Schätzung liegt bei 600.000 für das Haus (ohne Zaun, Garten und Pool).
Danke für deine Zeit und freu mich auf deine Anmerkungen.
Bin gerade im Urlaub und kann nichts einzeichnen, werde ich noch nachreichen. Zu deinen Fragen:
* Zwischen Wohnen und Esstisch ist nichts, ist ein großer Raum, mit langen Sichtachsen.
* Möbel werden nachgereicht. Aber zur Vorinfo: angedacht wären zwei Sofas, die gegenüber stehen, quer zur großen Fensterfront, ein Couchtisch, ein oder zwei Sessel, ein Bücherregal, Fernseher. Vermutlich werden wir die Wand direkt beim Stiegenaufgang fensterlos lassen.
* Beim Kamin bin ich unsicher, ob der nicht eher an der Wand beim Stiegenaufgang stehen sollte. Ich kann mir nicht vorstellen, wie die derzeitige Kamin-Planung im Obergeschoss funktionieren soll… Daher kann ich den Schornstein auch noch nicht einzeichnen. Auch so ein Punkt wo ich für Tipps dankbar wäre.
* Badewanne ist uns nicht wichtig.
* Waschmaschine soll im Erdgeschoss sein, mit der Möglichkeit die Wäsche zum Trocknen aufzuhängen. Wäscheschacht war angedacht, ist aber irgendwie verschütt gegangen als wir den Lift geplant haben.
* Zufahrt wird noch eingezeichnet - ist beim Spitz ( dort wird es einen Carport geben) und der Zugang erfolgt auch eher von der Nord-Spitzseite um diesen Teil des Gartens als Vorgarten zu nutzen.
* Unser Ziel ist es möglichst „Low-Budget“ zu bauen und die letzte Schätzung liegt bei 600.000 für das Haus (ohne Zaun, Garten und Pool).
Danke für deine Zeit und freu mich auf deine Anmerkungen.
Oh Herr, gib mir eine Straße 😀 wo muss ich suchen?
schickes Teil. Das Haus wird Spaß machen und Freude bereiten.
Küche ist mir direkt auch aufgefallen… die schablonierte Einrichtung ist gänzlich unpraktisch.
Aber das Haus bietet viel… vor allen Sichtachsen. Nur muss man schauen, ob nicht die ein oder andere Möblierung die ein oder andere nicht nimmt bzw auch mal genug Wand da ist, um nicht ein Fenster zuzustellen.
Ich bin ehrlich: den Entwurf muss ich erst einmal etwas studieren, um etwas bewerten zu können 😉
schickes Teil. Das Haus wird Spaß machen und Freude bereiten.
Küche ist mir direkt auch aufgefallen… die schablonierte Einrichtung ist gänzlich unpraktisch.
Aber das Haus bietet viel… vor allen Sichtachsen. Nur muss man schauen, ob nicht die ein oder andere Möblierung die ein oder andere nicht nimmt bzw auch mal genug Wand da ist, um nicht ein Fenster zuzustellen.
Ich bin ehrlich: den Entwurf muss ich erst einmal etwas studieren, um etwas bewerten zu können 😉
Ihr seid so lieb! Vielen Dank für eure freundlichen Kommentare. Ich muss gestehen, wir haben die Küche noch nicht im Detail geplant, weil wir erst die „großen Linien“ festlegen wollten und dann die nächsten Details.
Die eingezeichnete Insel ist ein wenig höher gedacht - als Schichtschutz Richtung Küche und als Bar. Die Anmerkung bezüglich hoher Kästen und Fenstern ist abgespeichert! Vielen Dank dafür. Werde eure Anregungen jetzt zum Anlass nehmen, die Küche im Detail durchzudenken.
Und bezüglich Fensterfronten und Wänden im Wohnbereich sind wir gerade am überlegen, wo Wände Sinn machen und wieviel „Laufmeter“ Wand wir brauchen. Freu mich über jede Anregung dazu. Danke euch.
Die eingezeichnete Insel ist ein wenig höher gedacht - als Schichtschutz Richtung Küche und als Bar. Die Anmerkung bezüglich hoher Kästen und Fenstern ist abgespeichert! Vielen Dank dafür. Werde eure Anregungen jetzt zum Anlass nehmen, die Küche im Detail durchzudenken.
Und bezüglich Fensterfronten und Wänden im Wohnbereich sind wir gerade am überlegen, wo Wände Sinn machen und wieviel „Laufmeter“ Wand wir brauchen. Freu mich über jede Anregung dazu. Danke euch.
Ähnliche Themen