Grundriss 170m2 - Hauswirtschaftsraum zu klein? Verbesserungsvorschläge?

4,70 Stern(e) 6 Votes
Zuletzt aktualisiert 24.11.2025
Sie befinden sich auf der Seite 7 der Diskussion zum Thema: Grundriss 170m2 - Hauswirtschaftsraum zu klein? Verbesserungsvorschläge?
>> Zum 1. Beitrag <<

Y

ypg

Die Garage steht im Osten. Oder meinst Du die Scheune und die Nebengebaeude des Nachbarn?
Hui... nö... das war noch auf dem Handy ohne ersten Kaffee getippt. bzw geschaut und dann getippt. Bei mir war unten Norden und planrechts Westen :D
Entschuldigt für die Verwirrung mit der Garage.
Es sollte auch nicht..
Küche gehört an die Terrasse!
..heißen, sondern die Küche sollte an der Terrasse liegen :)
Jetzt nochmal die Garage betrachtet, zur schlechten Wohnflächenverteilung sagte ich bereits was, war ich anfangs etwas irritiert, da ja die Garage als untergeordnet herkommen muss. Aber wenn man so ein grosses Grundstück hat: warum nicht?!
Ich persönlich würde einen tollen Holzschuppen mit Arbeits-/Sitzbereich als Element für den Garten charmanter finden als eine Großgarage, aber das ist ja persönliche Ansichtssache.
 
S

Stephan—

Das gesamte Konzept auf dem Grundstück ist auch nicht schluessig. Warum baut man die Garage nicht an die Grenze? Der westliche Nachbar hat da sehr grosszuegig an die Grenze bauen duerfen. Das Haus koennte dann ja 3 m weiter Richtung Osten ruecken.

Warum stehen Haus und Garage 1 m ueber Gelaende?

Warum so eine gigantische Terrasse im Norden?
Lückenbebauung, Nachbarhäuser vorm Krieg etc.
Grenze nein, da Nachbar nicht zustimmen würde bzw. Erbe (Tochter) und so muss man nicht fragen.
1m über Boden da Grundstück in Senke und möchte über FußwegNiveau kommen (man schaut nicht runter zum Haus, sondern hoch)
 
11ant

11ant

Geschmackssache ist das nicht, ob Holzhäuschen charmanter wären als eine Gigantgarage. Geschmack findet nämlich im Bewußtsein statt, psychologisch erschlagen wird der Terrassengenießer von der Garage aber da, wo das Bewußtsein nichts nützt. Und Putz oder Klinker verschmuddeln nicht minder als Holz. Ich bin da mit @K1300S der Ansicht, daß ein sich Ablenken von essentiellen Fehlplanungskonzepten durch Beschäftigung mit dem Nebenkriegsschauplatz der Zufallsnebenwirkung eines kleinen Hauswirtschaftsraum nicht dauerhaft trägt.
 
S

Stephan—

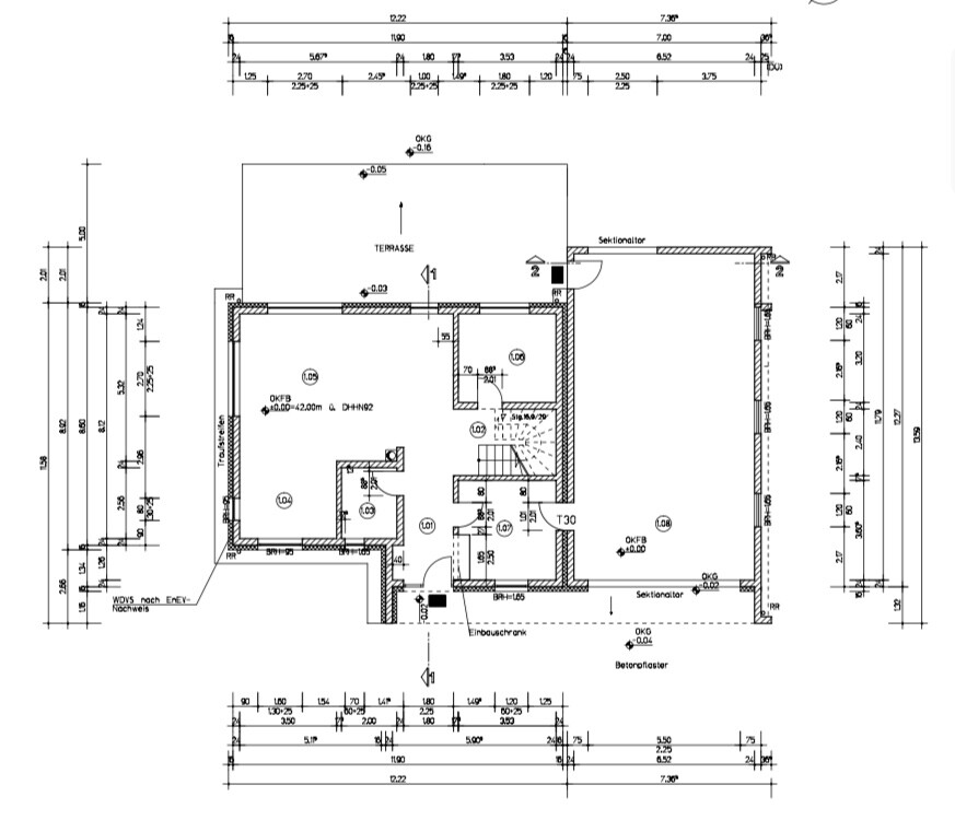
Update für die Interessierten. Es gab eine Tektur und der Hauswirtschaftsraum ist nun 12m2.

Grundriss eines Gebäudes mit Innenräumen, Treppenhaus, Türen, Terrasse und Maßlinien.
 
S

Stephan—

Wenn Grenzbebauung erlaubt ist, must den Nachbar nicht fragen nur informieren.
Anmerkungen des Vermessungsbüros


  1. zuerst mit dem Nachbar sprechen, wenn dieser nichts dagegen hat, wird mit dem Bauantrag eine Baulast beantragt
  2. Wenn der Nachbar mündlich schon dagegen Einwände erhebt, andere Variante ins Auge fassen, Baulast wird nicht beantragt“
 
Zuletzt aktualisiert 24.11.2025
Im Forum Grundrissplanung / Grundstücksplanung gibt es 2536 Themen mit insgesamt 88000 Beiträgen


Ähnliche Themen zu Grundriss 170m2 - Hauswirtschaftsraum zu klein? Verbesserungsvorschläge?
Nr.ErgebnisBeiträge
1Grundriss mit Garage auf Grundstück realisierbar? 29
2 2 Vollgeschosse, Durchgang Garage, Hauswirtschaftsraum unter Treppe 25
3Baulast für Garage eintragen - Vorteile / Nachteile? - Seite 215
4Grundstück - Baufenster - Lage von Haus und Garage 44
5Haus, Garage / Carport auf dem Grundstück platzieren 93
6Zugang von der Garage in den Hauswirtschaftsraum 49
7Ausrichtung Haus und Garage auf dem Grundstück - Seite 218
8Platzierung Haus und Garage auf Grundstück - Seite 212
9Nebeneingangstür Garage / Haus, Hauswirtschaftsraum Garagenverordnung Niedersachsen - Seite 314
10Position Garage auf Grundstück, Vorgabe im Bebauungsplan 22
11Ausrichtung Einfamilienhaus + Garage bei West-Ost Grundstück mit Strasse im Westen 18
12Baulast nachträglich auf das eigene Grundstück eintragen? 13
13Einfamilienhaus mit Einliegerwohnung & Garage 14
14Grundriss Einfamilienhaus / Garage im EG? 10
15Grundriss Einfamilienhaus mit Garage, eigenplanung - Seite 217
16Grundrissplanung bei einem schmalen Grundstück 26
17Grundrissplanung für schmales Grundstück, 2. Versuch. 14
18Erster Grundriss Einfamilienhaus - Eure Ideen auch zum Grundstück - Seite 333
19200m2 Einfamilienhaus für 4-5 Personen ohne Keller auf schmalem Grundstück 67
20Einfamilienhaus 150m2 Grundriss + Planung auf dem Grundstück 24

Oben