ᐅ Frontansicht Fenster sind suboptimal und müssen optimiert werden
Erstellt am: 02.11.22 09:04
V
verwirrtGuten Tag,
wir haben mit dem Bau schon begonnen und der Rohbau steht. Leider finde ich jetzt im Nachhinein, dass die Frontansicht mich stört. Auch bei der Planung war ich nicht 100% überzeugt, aber mir wurde immer wieder eingeredet, dass man das Haus von innen nach außen plant. Nun haben wir entschlossen, dass wir Änderungen bis zu 4TE in Kauf nehmen, damit ich nicht ein Leben lang mit diesem Störgefühl leben muss. Leider sind die Änderungen auch erst nach Bauabnahme möglich. Vieles kann auch mein Mann machen er hat schon viel handwerkliche Erfahrung. Immer wenn ich mir das anschaue möchte ich am liebsten alles hinwerfen und hoffe, dass Ihr mit tollen Ideen die Fassade noch retten könnt.
Ich stelle ein Paar Bilder rein.
Vielen Dank schon mal



wir haben mit dem Bau schon begonnen und der Rohbau steht. Leider finde ich jetzt im Nachhinein, dass die Frontansicht mich stört. Auch bei der Planung war ich nicht 100% überzeugt, aber mir wurde immer wieder eingeredet, dass man das Haus von innen nach außen plant. Nun haben wir entschlossen, dass wir Änderungen bis zu 4TE in Kauf nehmen, damit ich nicht ein Leben lang mit diesem Störgefühl leben muss. Leider sind die Änderungen auch erst nach Bauabnahme möglich. Vieles kann auch mein Mann machen er hat schon viel handwerkliche Erfahrung. Immer wenn ich mir das anschaue möchte ich am liebsten alles hinwerfen und hoffe, dass Ihr mit tollen Ideen die Fassade noch retten könnt.
Ich stelle ein Paar Bilder rein.
Vielen Dank schon mal
Mehr Symmetrie ist gewünscht? Wie wäre es mit:
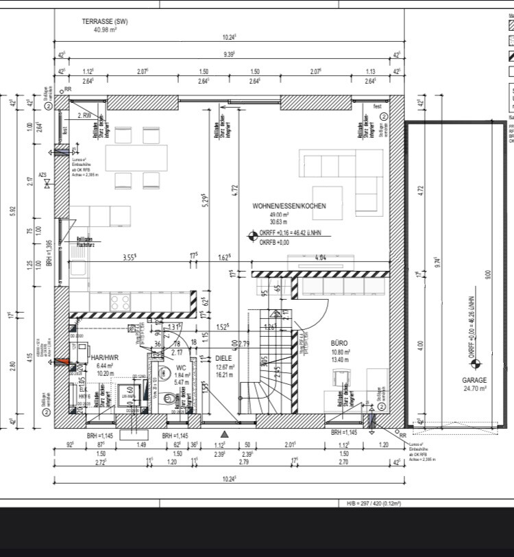
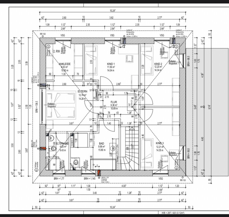
1. Elternbad Fenster vergrößern ident. zum Hauptbad
2. Über Treppe im OG Fenster hinzufügen in Größe vom Hauptbad
3. Kind 3 Fenster Größe Fenster vom Hauptbad übernehmen
Wäre für mich dann so wie man es sehr häufig bei anderen Häusern auch sieht.
PS. Praktisch/Unpraktisch ausgeblendet, scheint ja nur um die Optik zu gehen.

1. Elternbad Fenster vergrößern ident. zum Hauptbad
2. Über Treppe im OG Fenster hinzufügen in Größe vom Hauptbad
3. Kind 3 Fenster Größe Fenster vom Hauptbad übernehmen
Wäre für mich dann so wie man es sehr häufig bei anderen Häusern auch sieht.
PS. Praktisch/Unpraktisch ausgeblendet, scheint ja nur um die Optik zu gehen.
@SoL
das stimmt schon nur ich kann es einfach nicht ausblenden. vor allem dieses kleine Fenster rechts oben stört mich sehr. Meine Überlegung ist das Fenster genau so groß zu machen wie das Fenster dadrunter. Und vielleicht das Bürofenster auch bodentief zu machen(Bild füge ich hinzu). Wollte nur fragen, ob andere noch pfiffigere Ideen haben, weil ich mich wie in einer Sackgasse fühle.

das stimmt schon nur ich kann es einfach nicht ausblenden. vor allem dieses kleine Fenster rechts oben stört mich sehr. Meine Überlegung ist das Fenster genau so groß zu machen wie das Fenster dadrunter. Und vielleicht das Bürofenster auch bodentief zu machen(Bild füge ich hinzu). Wollte nur fragen, ob andere noch pfiffigere Ideen haben, weil ich mich wie in einer Sackgasse fühle.
Ähnliche Themen