T
Thomas R.12.06.16 20:55Hallo zusammen,
nachdem ich schon viel interessantes und lehrreiches im Forum gelesen habe, würde ich nun gerne auch mein konkretes Projekt hier zur Diskussion stellen. Ich freue mich auf Euer Feedback!
Aber zuerst zur obligatorischen Fragenliste:
Bebauungsplan/Einschränkungen
Größe des Grundstücks ~190m^2
Anzahl Stellplatz 2
Geschossigkeit 3
Dachform Flachdach
Stilrichtung modern
Ausrichtung Süd
weitere Vorgaben äußere Hülle vorgeben wie auf den Bildern
Anforderungen der Bauherren
Keller, Geschosse mit Keller 1
Anzahl der Personen, Alter 4 (34, 36, 4, 7)
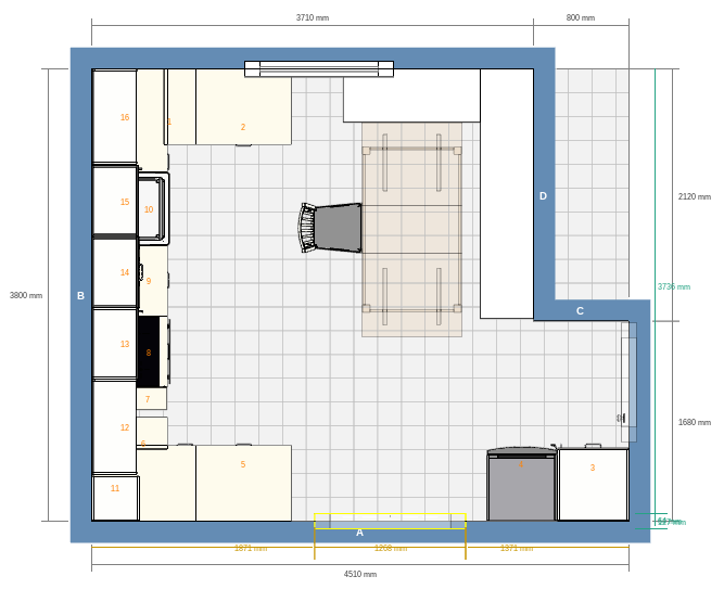
offene Küche, Kochinsel nein
Anzahl Essplätze 4 erweiterbar auf 8-10
Hausentwurf
Von wem stammt die Planung: Architekt des Bauträgers
Was gefällt besonders? viel mehr Platz als die jetzige Wohnung ;-)
Was gefällt nicht? keine Speisekammer neben der Küche
Persönliches Preislimit fürs Haus, inkl Ausstattung: ~60k EUR für Extras/Sonderwünsche
Wenn Ihr verzichten müsst, auf welche Details/Ausbauten
-könnt Ihr verzichten:
-könnt Ihr nicht verzichten: geschlossene Küche
Weitere Details:
- der Systemschnitt der seitlichen Ansicht ist nicht ganz richtig, weil wir auf der linken Seite (d.h. Süden) einen Balkon haben auf die ganze Breite
- alle Fenster nach Süden sind bodentief (siehe Seitenansichten)
- KG: Hobbyraum wird mit Heizung ausgestattet. Hauswirtschaftsraum wird für Heizkörper vorbereitet.
- zwischen Küche und Wohnzimmer ist eine Schiebetür geplant
Was mich nun besonders interessieren würde:
- was würdet ihr anders machen, weils zB aus eigener Erfahrung unpraktisch ist
- könnte man neben die Küche irgendwo eine Speisekammer reinquetschen? (ohne die Garderobe oder die Essgelegenheit m. eckbank in der Küche zu opfern)
Auf jeden Fall schonmal herzlichen Dank für Eure Kommentare, ich bin gespannt!

nachdem ich schon viel interessantes und lehrreiches im Forum gelesen habe, würde ich nun gerne auch mein konkretes Projekt hier zur Diskussion stellen. Ich freue mich auf Euer Feedback!
Aber zuerst zur obligatorischen Fragenliste:
Bebauungsplan/Einschränkungen
Größe des Grundstücks ~190m^2
Anzahl Stellplatz 2
Geschossigkeit 3
Dachform Flachdach
Stilrichtung modern
Ausrichtung Süd
weitere Vorgaben äußere Hülle vorgeben wie auf den Bildern
Anforderungen der Bauherren
Keller, Geschosse mit Keller 1
Anzahl der Personen, Alter 4 (34, 36, 4, 7)
offene Küche, Kochinsel nein
Anzahl Essplätze 4 erweiterbar auf 8-10
Hausentwurf
Von wem stammt die Planung: Architekt des Bauträgers
Was gefällt besonders? viel mehr Platz als die jetzige Wohnung ;-)
Was gefällt nicht? keine Speisekammer neben der Küche
Persönliches Preislimit fürs Haus, inkl Ausstattung: ~60k EUR für Extras/Sonderwünsche
Wenn Ihr verzichten müsst, auf welche Details/Ausbauten
-könnt Ihr verzichten:
-könnt Ihr nicht verzichten: geschlossene Küche
Weitere Details:
- der Systemschnitt der seitlichen Ansicht ist nicht ganz richtig, weil wir auf der linken Seite (d.h. Süden) einen Balkon haben auf die ganze Breite
- alle Fenster nach Süden sind bodentief (siehe Seitenansichten)
- KG: Hobbyraum wird mit Heizung ausgestattet. Hauswirtschaftsraum wird für Heizkörper vorbereitet.
- zwischen Küche und Wohnzimmer ist eine Schiebetür geplant
Was mich nun besonders interessieren würde:
- was würdet ihr anders machen, weils zB aus eigener Erfahrung unpraktisch ist
- könnte man neben die Küche irgendwo eine Speisekammer reinquetschen? (ohne die Garderobe oder die Essgelegenheit m. eckbank in der Küche zu opfern)
Auf jeden Fall schonmal herzlichen Dank für Eure Kommentare, ich bin gespannt!
T
Thomas R.12.06.16 20:56Schwierig... viele Details wo ich leichte Bauchschmerzen hätten... schmales Wohnzimmer - Schränke im Schlafzimmer, wie viel cm sind das hinter der Tür?
Ich entnehme mal der Küche, dass ihr das mit dem Wohnzimmer schon aktiv angegangen seid - das Bad im OG wäre mir zu klein.
Speis würde ich nicht hInterhyprtrauern. Was ist es denn für eine Treppe? Falls geschlossen, könnte man dort eine Abstellkammer planen. Ich würde die Windfangwand weglassen.
Ich entnehme mal der Küche, dass ihr das mit dem Wohnzimmer schon aktiv angegangen seid - das Bad im OG wäre mir zu klein.
Speis würde ich nicht hInterhyprtrauern. Was ist es denn für eine Treppe? Falls geschlossen, könnte man dort eine Abstellkammer planen. Ich würde die Windfangwand weglassen.
T
Thomas R.12.06.16 22:06BeHaElJa schrieb:
Schwierig... viele Details wo ich leichte Bauchschmerzen hätten... schmales Wohnzimmer - Schränke im Schlafzimmer, wie viel cm sind das hinter der Tür?
Ich entnehme mal der Küche, dass ihr das mit dem Wohnzimmer schon aktiv angegangen seid - das Bad im OG wäre mir zu klein.
Speis würde ich nicht hInterhyprtrauern. Was ist es denn für eine Treppe? Falls geschlossen, könnte man dort eine Abstellkammer planen. Ich würde die Windfangwand weglassen.Danke für Deine Meinung!
- Richtig, die Küche haben wir aus dem Wohnzimmer ins Arbeitszimmer geschoben, und planen die Wand da etwas nach Süden zu schieben.
- Schlafzimmer hat 50cm hinter der Tür. Ist mir auch schon aufgefallen und nicht ideal, da soll aber eher der Wäschekorb hin, und nicht der Schrank auf die volle Breite. Evtl. die Tür auch etwas richtung Schlafzimmer geschoben und noch einen Einbauschrank in den Flur sozusagen. Bin ich aber noch nicht so richtig überzeugt davon...
- Treppe ist eine Stahlharfentreppe, also nicht geschlossen Evtl. kann man da in die Aussparung etwas reinquetschen.
- Windfangwand machen unsere Nachbarn so wie Du vorschlägst (also weglassen). Wir dachten dass das so etwas besser ist hinsichtlich Isolierung (also dass die Kühle der Eingangstür im Windfang bleibt). Ist aber noch in Diskussion (mir gefällt es eigentlich auch immer mehr das etwas größer und offener (und heller im Flur) zu haben
Ähnliche Themen