Hausbau - Ratgeber
Bauherrenhilfe
- Bauherrenhilfe vor Vertragsabschluss
-- Warum einen unabhängigen Baubetreuer?
-- Vertragsgrundlagen
-- Bausumme
-- Zahlungsplan zur Kostenkontrolle
-- Pflichten des Bauherren vor Vertragsabschluss
-- Unterlagen beim Hausbau vor Vertragsabschluss
- Bauherrenhilfe nach Vertragsabschluss
-- Bauantrag bei Behörden
-- Bau-Genehmigungsverfahren bei Baubehörden
-- Bauspezifische Versicherungen
-- Bauzeitenplan
-- Baubeginn - die Letzten Pflichten der Bauherrschaft
- Bauherrenhilfe während der Bauzeit
- Gewährleistungsansprüche
- Bauabnahme
Baufinanzierung
- Baufinanzierung - Allgemeine Fragen
- Kreditarten
- Kredit-Konditionen
- Bausparen
- Staatliche Förderungen
- Verkehrswert
- Haushaltsrechnung und Bonität
Hausbau Planung
- Haustypen
- Hausbau Vorbereitungsarbeiten
- Das Baugrundstück
- Baugrund beim Hausbau
- Baurecht
- Gebäudeschutz
- Erdarbeiten und Wasserhaltung
- Stützmauern
- Einfriedung
- Untergeschoss
- Kanalisation
- Tragende Elemente
- Nichttragende Innenwände
- Fundation / Fundament
- Deckenkonstruktionen
- Dächer
- Kaminanlagen
- Treppen Rampen Leitern
- Dachbeläge und Spengler
- Fenster
- Sonnen und Wetterschutz
- Aussenputze
- Einbauten, Küchen, Türen
- Bodenbeläge und Unterlagsböden
- Parkett
- Gips, Wand, Decke
Haustechnik und Energie
- Heiztechnik
- Lüftung und Klimatechnik
- Sanitärtechnik
- Elektrotechnik
- Erneuerbare Energie
Whirlpools / Jacuzzi
Hausbau Magazin
- Baufinanzierung trotz Krise?
- Das Blockhaus
- Moderne Dämmstoffe im Vergleich
- Erker Vor- und Nachteile
- Glasflächen beim Hausbau
- Günstig ein Haus Bauen
- Mediterraner Hausbaustil
- Mehrgenerationenhaus
- Moderne Architektur
- Gartengestaltung leicht gemacht
- Traditioneller Ziegelbau
- Villa als höchster Traum
- Im Eigenheim Ruhestand geniessen
- Altbau sanieren
- Kauf einer Holzgarage
- Immobilienmakler
- Arbeitshandschuhe für den Winter
- Zuhause verschönern
- Outdoor-Plissees
- Schlafzimmer planen
- Terrassenüberdachung
- Wohngebäudeversicherung
- Zaunarten und Eigenschaften
- Hauseingang gestalten
- Der perfekte Grundriss
- Sparsamer heizen im Altbau
- Einfamilienhaus smart finanzieren
- Planung einer PV-Anlage
- Neues Haus
- Immobilienfinanzierung
- Installation einer Photovoltaikanlage
- Asbest erkennen und entfernen
- Gartenpflege im Frühling – worauf achten
- Sauna im Fokus - Wellness zuhause
- Erfolgreich vermieten
- Die perfekte Winterbekleidung
- Das Niedrigenergiehaus
- Der April und seine Stürme
- Architektonische Vielfalt
- Ökologisch und nachhaltig bauen
- Das perfekte Schlafzimmer
- Nachhaltige Energieversorgung
- Zukunftsorientiert bauen
- Nachhaltigkeit beim Hausbau
- Tiny Houses
- Wärmepumpen als nachhaltige Heizvariante
- Maßgeschneiderten Kleiderschrank
- Der richtige Baukredit
- Ratgeber für erfolgreichen Hausbau
- Haus als Altersvorsorge
Do-it-yourself Anleitungen
- Verlegeanleitung für Bodenbeläge und Parkett
- Bodenbeläge und Parkett reinigen und pflegen
- Malerarbeiten am Haus
- Garten Tipps
- Umzug und Reinigung

ᐅ Feedback zu unserer Grundrissidee, kleines Baufenster

Erstellt am: 04.11.14 22:16
L
Lassemann
Lassemann08.11.14 13:52
@kiska: coole Idee mit der Wäscherutsche. werde ich gleich Montag prüfen lassen.

Elternschlaf: ja, wäre eine Möglichkeit .... Würden dann aber den tollen, frontalen Blick ins Grüne verlieren.
Lassemann08.11.14 13:56
Anbei nun der aktuellste Stand. Der beinhaltet aber einige Eurer tollen Hinweise noch nicht.

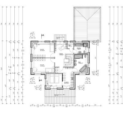
2D-Grundriss eines Hauses mit Zimmern, Treppenhaus und Maßen


Grundriss eines Wohnhauses mit Garage und Eingangsbereich


Schnittzeichnung eines zweigeschossigen Hauses mit Garage Fundament und Dachstuhl


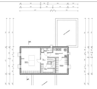
2D-Grundriss eines Hauses mit Innenwänden, Türen, Maßlinien und Außenkontur
W
Wanderdüne
08.11.14 18:10
@Lassemann
Eingang so gestalten, daß die Garderobe (evtl. in Übertiefe als Abstellkammerersatz, planoben oberhalb der Treppe realisiert wird, hängt aber auch von der Lichtplanung ab. Sitzmöglichkeit oder / und Schuhschrank dann zwischen den Türen. Wenn Garagentür weniger repräsentativ dann sinnig mit Schrank "verstecken".
Schlafzimmer wirkt beengt, schränke als Raumteiler, ist dort besser als Wand, Abgrenzung (von Ankleide) nur bei Schichtdienst u.ä..
Lassemann08.11.14 21:18
@Wanderdüne: hmm, kannst Du das irgendwie noch mal anders erklären, ich fürchte, ich habe es nicht verstanden.

Schlafzimmer: wir sind tatsächlich am überlegen, ob wir die Trennwand und auch die mittigen Schränke weglassen...
W
Wanderdüne
09.11.14 00:17
Vorweg: Späte Konzeptänderungen sind problematisch und können, besonders sobald eine Treppe betroffen ist, den gesamten Entwurf in die Tonne befördern.

Eingang: gedanklich Garderobe und Abstellkammer entfernen. Dann an die Nordseite der Treppe eine neue Garderobe hin, gerne tiefer als die üblichen 60/65 cm. Dann an die Außenwand zwischen Haupt- und Garageneingang Sitzbank und Schuhschrank hin. Schöne Türen zur Garage kosten Geld, wenn nicht ausreichend vorhanden, kann man die Tür durch geeignete Maßnahmen verstecken.

Schlafzimmer: es darf nicht zu verwinkelt wirken

Sonstiges: mir ist Euer geplanter Möbelstil nicht klar. Bezogen auf das Äußere des Gebäudes passen evtl. Schränke freistehend oder in Nischen besser als moderne Einbauschränke...
M
milkie
09.11.14 08:33
Ich finde die Abstellkammer im Flur super. Da kann man alles reinstellen und es verschwindet aus dem Sichtbereich. Top!
garderobetreppeschlafzimmerschränkeeingangschuhschranktürenabstellkammer