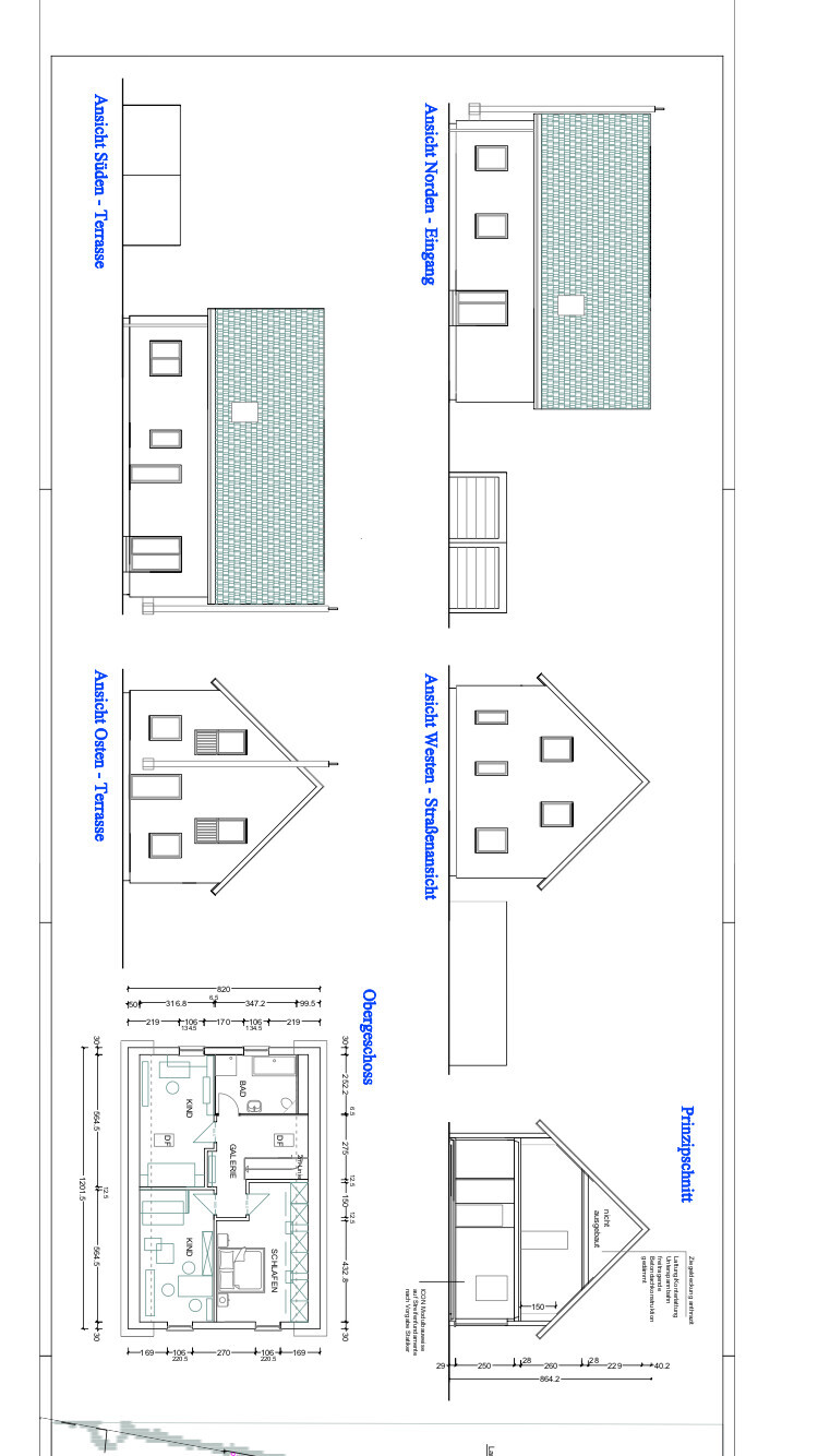
Hallo, haben heute den ersten Entwurf von der Architektin bekommen, es ist für ein Fertighaus, man kann an sich alle Räume bis auf das Bad frei gestalten und ändern.
Hab die Bilder für EG und OG nochmal einzeln hochgeladen, ist nicht so ganz scharf auf den ersten zwei Bildern zu erkennen.
Kniestock ist bei 1,50 m, Satteldach 45 Grad Neigung.
Wollte mal fragen was ihr von dem Entwurf haltet und was man vielleicht ändern könnte
Mit freundlichen Grüßen Marc




Hab die Bilder für EG und OG nochmal einzeln hochgeladen, ist nicht so ganz scharf auf den ersten zwei Bildern zu erkennen.
Kniestock ist bei 1,50 m, Satteldach 45 Grad Neigung.
Wollte mal fragen was ihr von dem Entwurf haltet und was man vielleicht ändern könnte
Mit freundlichen Grüßen Marc
Auf die einfache Schnelle:
Gratuliere zum bestgenutzten Kniestock/Dachschräge, indem Ihr den Raum dort zum Einbauschrank macht! Mein Reden: Leute, nutzt die Schrägen für Schränke und lasst das mal mit den ungemütlichen Stadtvillen! 🙂
Allerdings gefällt mir die Küche gar nicht. Im Verhältnis zum WZ ist sie ärmlich vom Platz her, das WZ dagegen protzt mit ü40qm, die man nicht braucht.
In der Küche: die mittig angeordnete Küchenarbeitsfläche misst laut Zeichnung schmale 60 cm - zum Kochen geht das Fett auf den Boden dahinter bzw bekommt das der Sitzende ab.
Zudem verbleiben als "Gänge" 2,10 - also 1 Meter auf jeder Seite von diesem Raumbrecher. -> führt zum Stau bei der Esszimmertür.
Eigentlich sehe ich nur Crashes von Personen, die diesen Raum betreten. Was hat sich der Zeichner dabei gedacht?
Zu den Hochschränken muss man um diesen Raumbrecher laufen. Auch nicht schön.
Gratuliere zum bestgenutzten Kniestock/Dachschräge, indem Ihr den Raum dort zum Einbauschrank macht! Mein Reden: Leute, nutzt die Schrägen für Schränke und lasst das mal mit den ungemütlichen Stadtvillen! 🙂
Allerdings gefällt mir die Küche gar nicht. Im Verhältnis zum WZ ist sie ärmlich vom Platz her, das WZ dagegen protzt mit ü40qm, die man nicht braucht.
In der Küche: die mittig angeordnete Küchenarbeitsfläche misst laut Zeichnung schmale 60 cm - zum Kochen geht das Fett auf den Boden dahinter bzw bekommt das der Sitzende ab.
Zudem verbleiben als "Gänge" 2,10 - also 1 Meter auf jeder Seite von diesem Raumbrecher. -> führt zum Stau bei der Esszimmertür.
Eigentlich sehe ich nur Crashes von Personen, die diesen Raum betreten. Was hat sich der Zeichner dabei gedacht?
Zu den Hochschränken muss man um diesen Raumbrecher laufen. Auch nicht schön.
Was wir davon halten, hängt von den Anforderungen ab, die es erfüllen sollte - die müßtest Du noch dagegenstellen.
Ansonsten, kurz: baubar - ja; Grundstück schönstmöglich genutzt - aus meiner Sicht nicht; und eher glaube ich an das Christkind, als an Rohre, die man in 6.5 cm dünnen Wänden unterbringt (die ich auch als Hinweis auf einen Billiganbieter lese).
Woraus hat sich das ausgeprägte Langformat des Grundrisses ergeben ?
Du schreibst an anderer Stelle, Deine Partnerin sei Bauamtsleiterin - da müßten doch reichlich Hausideen durch ihre Hände gehen, waren da keine pfiffigeren Inspirationen dabei ?
https://www.instagram.com/11antgmxde/
https://www.linkedin.com/company/bauen-jetzt/
Ansonsten, kurz: baubar - ja; Grundstück schönstmöglich genutzt - aus meiner Sicht nicht; und eher glaube ich an das Christkind, als an Rohre, die man in 6.5 cm dünnen Wänden unterbringt (die ich auch als Hinweis auf einen Billiganbieter lese).
Woraus hat sich das ausgeprägte Langformat des Grundrisses ergeben ?
Du schreibst an anderer Stelle, Deine Partnerin sei Bauamtsleiterin - da müßten doch reichlich Hausideen durch ihre Hände gehen, waren da keine pfiffigeren Inspirationen dabei ?
https://www.instagram.com/11antgmxde/
https://www.linkedin.com/company/bauen-jetzt/
Rohre sind im Bad neben der Toilette und nicht in den 6,5 cm Wände.
Kurz nachdem das Haus im Norden aufhört, ist der Kanal. Danach kommt der Bach und darüber ist dann noch etwas Wiese aber nichts weiter zum bebauen. Deshalb ist es etwas langgezogen aber denke mal so holt man das best mögliche raus in dem man die obere Hälfte dann als Garten mit nutzt.
Kurz nachdem das Haus im Norden aufhört, ist der Kanal. Danach kommt der Bach und darüber ist dann noch etwas Wiese aber nichts weiter zum bebauen. Deshalb ist es etwas langgezogen aber denke mal so holt man das best mögliche raus in dem man die obere Hälfte dann als Garten mit nutzt.
Marc1 schrieb:
Rohre sind im Bad neben der Toilette und nicht in den 6,5 cm Wände.Ich sehe da nirgends Installations-Vorwände, und "auf Putz" ;-) will man die Rohre ja wohl kaum haben.Ich habe inzwischen mal nachgeschaut und den Eindruck, Ihr seid beim Dennert Massivhaus Icon 4 als Grundmodell geblieben. Wie weit weiter war den Euer Blick überhaupt geschweift, daß Ihr nun wieder dort gelandet seid ?
https://www.instagram.com/11antgmxde/
https://www.linkedin.com/company/bauen-jetzt/
Ähnliche Themen