Hausbau - Ratgeber
Bauherrenhilfe
- Bauherrenhilfe vor Vertragsabschluss
-- Warum einen unabhängigen Baubetreuer?
-- Vertragsgrundlagen
-- Bausumme
-- Zahlungsplan zur Kostenkontrolle
-- Pflichten des Bauherren vor Vertragsabschluss
-- Unterlagen beim Hausbau vor Vertragsabschluss
- Bauherrenhilfe nach Vertragsabschluss
-- Bauantrag bei Behörden
-- Bau-Genehmigungsverfahren bei Baubehörden
-- Bauspezifische Versicherungen
-- Bauzeitenplan
-- Baubeginn - die Letzten Pflichten der Bauherrschaft
- Bauherrenhilfe während der Bauzeit
- Gewährleistungsansprüche
- Bauabnahme
Baufinanzierung
- Baufinanzierung - Allgemeine Fragen
- Kreditarten
- Kredit-Konditionen
- Bausparen
- Staatliche Förderungen
- Verkehrswert
- Haushaltsrechnung und Bonität
Hausbau Planung
- Haustypen
- Hausbau Vorbereitungsarbeiten
- Das Baugrundstück
- Baugrund beim Hausbau
- Baurecht
- Gebäudeschutz
- Erdarbeiten und Wasserhaltung
- Stützmauern
- Einfriedung
- Untergeschoss
- Kanalisation
- Tragende Elemente
- Nichttragende Innenwände
- Fundation / Fundament
- Deckenkonstruktionen
- Dächer
- Kaminanlagen
- Treppen Rampen Leitern
- Dachbeläge und Spengler
- Fenster
- Sonnen und Wetterschutz
- Aussenputze
- Einbauten, Küchen, Türen
- Bodenbeläge und Unterlagsböden
- Parkett
- Gips, Wand, Decke
Haustechnik und Energie
- Heiztechnik
- Lüftung und Klimatechnik
- Sanitärtechnik
- Elektrotechnik
- Erneuerbare Energie
Whirlpools / Jacuzzi
Hausbau Magazin
- Baufinanzierung trotz Krise?
- Das Blockhaus
- Moderne Dämmstoffe im Vergleich
- Erker Vor- und Nachteile
- Glasflächen beim Hausbau
- Günstig ein Haus Bauen
- Mediterraner Hausbaustil
- Mehrgenerationenhaus
- Moderne Architektur
- Gartengestaltung leicht gemacht
- Traditioneller Ziegelbau
- Villa als höchster Traum
- Im Eigenheim Ruhestand geniessen
- Altbau sanieren
- Kauf einer Holzgarage
- Immobilienmakler
- Arbeitshandschuhe für den Winter
- Zuhause verschönern
- Outdoor-Plissees
- Schlafzimmer planen
- Terrassenüberdachung
- Wohngebäudeversicherung
- Girokonto für Bauherren finden
- Hauseingang gestalten
- Zaunarten und Eigenschaften
- Der perfekte Grundriss
- Sparsamer heizen im Altbau
- Einfamilienhaus smart finanzieren
- Planung einer PV-Anlage
- Neues Haus
- Immobilienfinanzierung
- Installation einer Photovoltaikanlage
- Asbest erkennen und entfernen
- Gartenpflege im Frühling – worauf achten
- Sauna im Fokus - Wellness zuhause
- Erfolgreich vermieten
- Die perfekte Winterbekleidung
- Das Niedrigenergiehaus
- Der April und seine Stürme
- Architektonische Vielfalt
- Ökologisch und nachhaltig bauen
- Das perfekte Schlafzimmer
- Nachhaltige Energieversorgung
- Zukunftsorientiert bauen
- Nachhaltigkeit beim Hausbau
- Tiny Houses
- Wärmepumpen als nachhaltige Heizvariante
- Maßgeschneiderten Kleiderschrank
- Der richtige Baukredit
- Ratgeber für erfolgreichen Hausbau
- Haus als Altersvorsorge
Do-it-yourself Anleitungen
- Verlegeanleitung für Bodenbeläge und Parkett
- Bodenbeläge und Parkett reinigen und pflegen
- Malerarbeiten am Haus
- Garten Tipps
- Umzug und Reinigung

ᐅ Erste Vorstellung Einfamilienhaus Grundriss

Erstellt am: 12.01.17 10:40
T
Trillian78
T
Trillian78
12.01.17 10:40

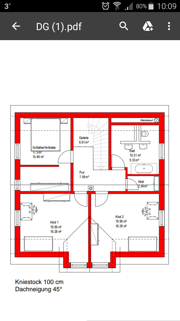
Grundriss-Diagramm eines Doppelhauses mit Flur, Schlafzimmern, Bad und Treppenhaus im Obergeschoss
Y
ypg
12.01.17 12:53
Du, einfach mal lesen 😉
Und dann: einfach mal Deinen Beitrag erweitern 🙂

https://www.hausbau-forum.de/threads/grundrissplanung-unbedingt-vor-beitrag-erstellung-lesen.11714/
M
Maria16
12.01.17 14:10
Hallo,
ja, schick bitte noch die Informationen aus dem verlinkten Beitrag nach; v.a. ein Lageplan, auf dem ihr den Grundriss zuzüglich Garage gleich mal aufzeichnet, wäre gut. ( Falls ihr keine Garage wollt, dann halt die nötigen Stellplätze einzeichnen; um mindestens einen werdet ihr nicht rumkommen ;-) )

Jetzt schon mal als Anregungen: macht ein Büro im Keller Sinn bzw. Spaß, wenn es auch im EG möglich wäre? Ich würd mich da freiwillig nicht runtersetzen. ;-)
Und wo soll die Treppe in den Keller beginnen? Wenn sie exakt unter der Treppe vom EG ins OG liegt, wird es zwischen erster Stufe und Wand zum Wohnzimmer ggf. etwas eng.
K
kbt09
12.01.17 17:12
@Maria16 ... 😉 .. das habe ich mich spontan auch gefragt, warum man mit Keller im Haus, das Büro im EG als Abstellraum nutzen will, einen Büroarbeitsplatz, wenn auch nur als Familienbüro, aber in den Keller legt 😉.

Mir fehlt auch Lageplan mit Nordpfeil und vielleicht ein paar mehr Maße an den Grundrissen.

Dann mal ein Plan, wie die Küche wirklich aussehen soll ... so wie jetzt eingezeichnet wird da viel qm-Fläche verschwendet.

Wohnen / Essen empfinde ich persönlich ja als sehr groß.

Dusche im OG fast zur Hälfte im Bereich unter 2m-Höhenlinie geht gar nicht.
kellerlageplangaragetreppe