ᐅ Erker in der Küche - Umsetzungsvorschläge
Erstellt am: 27.10.20 08:27
XxTankerxX27.10.20 08:27
Hallo zusammen,
gerade bin ich bei der Planung unseres Einfamilienhauses. Alles läuft soweit gut - Jedoch bin ich mir bei der Küche noch etwas unsicher. Ich wollte einen Erker in Richtung Osten, da der Ausblick dort auf Kilometer unverbaut ist und die nächsten 20 Jahre gewiss auch bleiben wird.
Der Vorschlag unseres Architekten war so ein spitzer Erker(keine Ahnung welchen offiziellen Namen so etwas trägt ).
Ich hatte mir noch gedacht das ganze vielleicht gerade (also rechteckig) rauszuziehen, jedoch bin ich mir unschlüsslig ob dies dann gut aussieht, da ja die Fenster nicht Bodentief sondern nur halbhoch (wegen der Arbeitsfläche) gemacht werden können. Was meint ihr? Habt ihr Alternativvorschläge?
Allgemein ist das Haus eine Mischung aus traditionell und modern (Satteldach, jedoch zwei voll-Etagen).
Braucht ihr weitere Infos, schreibt einfach.
Viele Grüße & schon einmal viele Dank für eure Anregungen,
XxTankerxX

gerade bin ich bei der Planung unseres Einfamilienhauses. Alles läuft soweit gut - Jedoch bin ich mir bei der Küche noch etwas unsicher. Ich wollte einen Erker in Richtung Osten, da der Ausblick dort auf Kilometer unverbaut ist und die nächsten 20 Jahre gewiss auch bleiben wird.
Der Vorschlag unseres Architekten war so ein spitzer Erker(keine Ahnung welchen offiziellen Namen so etwas trägt ).
Ich hatte mir noch gedacht das ganze vielleicht gerade (also rechteckig) rauszuziehen, jedoch bin ich mir unschlüsslig ob dies dann gut aussieht, da ja die Fenster nicht Bodentief sondern nur halbhoch (wegen der Arbeitsfläche) gemacht werden können. Was meint ihr? Habt ihr Alternativvorschläge?
Allgemein ist das Haus eine Mischung aus traditionell und modern (Satteldach, jedoch zwei voll-Etagen).
Braucht ihr weitere Infos, schreibt einfach.
Viele Grüße & schon einmal viele Dank für eure Anregungen,
XxTankerxX
Pinky030127.10.20 08:29
Wieso wird der Ausblick mit einem Erker besser? Die Küche ist so auf jeden Fall sehr gewöhnungsbedürftig. Also wenn es ein Erker sein soll, dann würde ich auf jeden Fall einen rechteckigen nehmen.
matte27.10.20 08:31
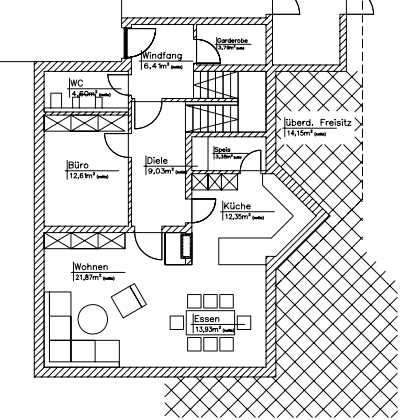
Bisschen mehr vom Grundriss wäre nicht schlecht, dann könnte man auch sehr , wohin die beiden Türen gehen.
Vorlauf lässt sich mit umplanung mehr Fläche generieren.
Vorlauf lässt sich mit umplanung mehr Fläche generieren.
XxTankerxX27.10.20 08:31
Pinky0301 schrieb:
Wieso wird der Ausblick mit einem Erker besser? Die Küche ist so auf jeden Fall sehr gewöhnungsbedürftig. Also wenn es ein Erker sein soll, dann würde ich auf jeden Fall einen rechteckigen nehmen.Ist bisher auch meine Meinung. Meinst du es sieht von außen gut aus wenn die Fenster nur halbhoch sind?
XxTankerxX27.10.20 08:33
matte1987 schrieb:
Bisschen mehr vom Grundriss wäre nicht schlecht, dann könnte man auch sehr , wohin die beiden Türen gehen.
Vorlauf lässt sich mit umplanung mehr Fläche generieren.Nach oben: Kleine Abstellkammer für Speisen
Nach links: Gang/Diele
Nach unten gelangt man in den Essbereich der offen in den Wohnraum über geht.
kati133727.10.20 08:40
Ich weiß nicht wie das von außen aussieht mit diesem "Eck" am Haus, aber die Küche vom Grundriss finde ich total genial. Ist einfach mal was anderes, und ein langes Fenster mit schönem Ausblick noch dazu, klingt für mich echt schön.
Ähnliche Themen