ᐅ Erfahrungsberichte Luftwärmepumpe, Kaminofen, Solaranlage, Geräusche
Erstellt am: 02.09.13 21:12
P
Petri
Wir möchten Anfang nächsten Jahres ein Einfamilienhaus mit 1 1/2 Etagen, Krüppelwalmdach - Massivhaus bauen.
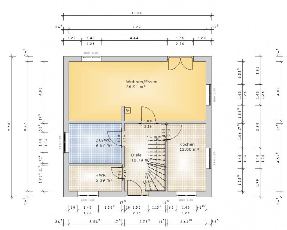
Wir haben nun ein Grundriss, mit dem wir auskommen könnten (im Anhang).
Unser erstes und zweitgrößtes Problem war, dass wir das große Bad (mit Badewanne) im EG haben wollen ebenso unser Schlafzimmer.
Damit erhöht sich die Grundfläche erheblich.
Jetzt meine Fragen, wo ich hoffe ein paar Antworten zu bekommen:
- Hatte jemand evtl. das gleiche Problem mit den beiden Zimmern im EG und welche Lösung wurde gefunden. Oder hat jemand Anregungen zum Grundriss.
- Fußbodenheizung steht fest, aber welche Heizart? Im Moment gucken wir auf luftwärmepumpe, da Erdwärme zu teuer in der Anschaffung ist. Ein Kaminofen steht auch fest sowie eine kleine solaranlage. Kann jemand seine Erfahrung mit Luftwärmepumpe schreiben (Lautstärke, Effizienz)?
Unser Budget ist bei 180.000 €. Wir haben zusätzlich 20.000€ als Nebenkosten eingeplant. Ist das realistisch bei dem Vorhaben? Angebote haben wir schon, allerdings immer das Gefühl nicht ernst genommen zu werden.


Wäre über ein paar Antworten sehr dankbar.
Gruß
Petri

Wir haben nun ein Grundriss, mit dem wir auskommen könnten (im Anhang).
Unser erstes und zweitgrößtes Problem war, dass wir das große Bad (mit Badewanne) im EG haben wollen ebenso unser Schlafzimmer.
Damit erhöht sich die Grundfläche erheblich.
Jetzt meine Fragen, wo ich hoffe ein paar Antworten zu bekommen:
- Hatte jemand evtl. das gleiche Problem mit den beiden Zimmern im EG und welche Lösung wurde gefunden. Oder hat jemand Anregungen zum Grundriss.
- Fußbodenheizung steht fest, aber welche Heizart? Im Moment gucken wir auf luftwärmepumpe, da Erdwärme zu teuer in der Anschaffung ist. Ein Kaminofen steht auch fest sowie eine kleine solaranlage. Kann jemand seine Erfahrung mit Luftwärmepumpe schreiben (Lautstärke, Effizienz)?
Unser Budget ist bei 180.000 €. Wir haben zusätzlich 20.000€ als Nebenkosten eingeplant. Ist das realistisch bei dem Vorhaben? Angebote haben wir schon, allerdings immer das Gefühl nicht ernst genommen zu werden.
Wäre über ein paar Antworten sehr dankbar.
Gruß
Petri
perlenmann schrieb:
Wenn Du nur für den "Fall der Fälle" ein späteres Zimmer im EG haben willst:
Wir können im Alter/Bei Bedarf die TV Ecke mit ner Wand abschotten und haben dann im EG ein extra Zimmer.Danke für den Tipp. Könnte eine Lösung sein 🙂
B
Bauexperte21.09.13 16:13Hallo,
- weshalb hast Du den Platz vor der Treppe als Windfang geplant und nicht als Beginn des Treppenaufgang? Damit würdest Du Platz in beiden Stockwerken gewinnen. Ansonsten würde ich darauf verzichten, weil es unnötige Kosten produziert und "nur" ansprechend aussieht.
- wenn das Schlafzimmer erst fürs Alter geplant ist, würde ich die Küche nach vorne legen und den, jetzt als Küche geplanten Raum, im Alter - wenn es soweit ist und Treppenlift keine Alternative ist - vom Wohnzimmer abtrennen
- weshalb reicht Dir im EG nicht ein Du-Bad ? Nach aller Erfahrung mit Behinderungen sind Duschen die weitaus besseren Naßzellen; sie müssen lediglich ebenerdig und größer geplant werden.
Bei einem Splitgerät streiten sich die Geister und es tritt zutage, was der deutsche Michel am Besten kann. Spricht Jemand von "möglichen" Geräuschen, hört er sie auch 🙁 Die Außengeräte dürfen alle nur bestimmte Dezibelwerte erreichen, darüber ist es verboten; einfach ausgedrückt.
Wenn Du bei Deiner Suche nach dem für Dich richtigen Baupartner nicht weiter kommst, tickere mich einfach mal an; ich kann gerne versuchen, Dir zu helfen.
Grüße, Bauexperte
Petri schrieb:Mir stellen sich einige Fragen, auch und gerade weil das Budget recht eng bemessen ist:
Das heißt ein Einfamilienhaus mit 1 1/2 Etagen, Krüppelwalmdach - Massivhaus.
Wir haben nun ein Grundriss, mit dem wir auskommen könnten (im Anhang).
Unser erstes und zweitgrößtes Problem war, dass wir das große Bad (mit Badewanne) im EG haben wollen ebenso unser Schlafzimmer.
Damit erhöht sich die Grundfläche erheblich.
- weshalb hast Du den Platz vor der Treppe als Windfang geplant und nicht als Beginn des Treppenaufgang? Damit würdest Du Platz in beiden Stockwerken gewinnen. Ansonsten würde ich darauf verzichten, weil es unnötige Kosten produziert und "nur" ansprechend aussieht.
- wenn das Schlafzimmer erst fürs Alter geplant ist, würde ich die Küche nach vorne legen und den, jetzt als Küche geplanten Raum, im Alter - wenn es soweit ist und Treppenlift keine Alternative ist - vom Wohnzimmer abtrennen
- weshalb reicht Dir im EG nicht ein Du-Bad ? Nach aller Erfahrung mit Behinderungen sind Duschen die weitaus besseren Naßzellen; sie müssen lediglich ebenerdig und größer geplant werden.
Petri schrieb:Du schreibst im anderen Thread so, als hättest Du Dich bereits für die Luft-Wasser-Wärmepumpe entschieden. Wenn die Grundstücksgegebenheiten passen, wäre es nach aller Erfahrung und entsprechendem Mauerwerksaufbau bereits ein Kfw 70 Effizienzhaus.
- Fußbodenheizung steht fest, aber welche Heizart? Im Moment gucken wir auf luftwärmepumpe, da Erdwärme zu teuer in der Anschaffung ist. Ein Kaminofen steht auch fest sowie eine kleine Solaranlage. Kann jemand seine Erfahrung mit Luftwärmepumpe schreiben (Lautstärke, Effizienz)?
Bei einem Splitgerät streiten sich die Geister und es tritt zutage, was der deutsche Michel am Besten kann. Spricht Jemand von "möglichen" Geräuschen, hört er sie auch 🙁 Die Außengeräte dürfen alle nur bestimmte Dezibelwerte erreichen, darüber ist es verboten; einfach ausgedrückt.
Petri schrieb:Durch den überbauten Windfang wird das nicht hinkommen, auch ist ein Krüppelwalmdach nicht der preiswerten Lösungen eine.
Unser Budget ist bei 180.000 €. Wir haben zusätzlich 20.000€ als Nebenkosten eingeplant. Ist das realistisch bei dem Vorhaben? Angebote haben wir schon, allerdings immer das Gefühl nicht ernst genommen zu werden.
Petri schrieb:Nicht notwendigerweise kleiner. Verzichte auf den überbauten Windfang und das Krüppelwalmdach und es müsste fürs Haus reichen; selbst als Kfw 70-Effizienzhaus.
Wenn ich das nun alles so lese, heißt es für mich, entweder Haus so dermaßen verkleinern, dass es in unser Budget passt oder das Budget aufstocken.
Petri schrieb:Dann hast Du bei beiden Pech dergestalt gehabt, daß Verkäufer bzw. Architekt nicht Dich, sondern ihren Abschluss im Blick hatten.
Bauchweh hab ich bei allen Anbietern, egal ob das eine Firma wie Helma oder ein Architekt mit Baubegleitung etc. war.
Wihoch sollte ich denn gehen, statt der 1500, damit wenigstens ein bisschen Spielraum bleibt?
Wenn Du bei Deiner Suche nach dem für Dich richtigen Baupartner nicht weiter kommst, tickere mich einfach mal an; ich kann gerne versuchen, Dir zu helfen.
Grüße, Bauexperte
B
backbone2321.09.13 17:02Bauexperte schrieb:
Verzichte auf den überbauten WF und das Krüppelwalmdach und es müsste fürs Haus reichen; selbst als KfW 70-Effizienzhaus.Bei 149 qm (ok, abzgl. WF) und einem Budget von 180 T€? Als KfW70?
Vielleicht auch noch auf den Erker, die Luftwärmepumpe und den Kamin verzichten ...
Hallo Zusammen,
vielen Dank für die Meinungen und Hinweise. Habe mir alles zu Herzen genommen und noch einmal über unser Häuschen nach gedacht. Das Ergebnis war, dass wir komplett neu geplant haben. Nächste Woche haben wir noch mal einen Termin mit einem Bauunternehmen. Daher weiß ich noch nicht ganz ob das so statisch alles ok ist, den Plan haben wir selbst gezeichnet. Trotzdem möchte ich aber gerne Euch noch mal vorher um Eure Meinungen bitten.
Mit oder ohne Kfw 70 ist noch nicht entschieden, aber als Heizung steht die Luft-/Wasserwärmepumpe mit Solarunterstützung nun fest. Ich hoffe nun sind unsere Preis/Kostenvorstellungen wenigstens halbwegs realistisch.
Wie gesagt, wäre über ein paar Meinungen dankbar.
Petri




vielen Dank für die Meinungen und Hinweise. Habe mir alles zu Herzen genommen und noch einmal über unser Häuschen nach gedacht. Das Ergebnis war, dass wir komplett neu geplant haben. Nächste Woche haben wir noch mal einen Termin mit einem Bauunternehmen. Daher weiß ich noch nicht ganz ob das so statisch alles ok ist, den Plan haben wir selbst gezeichnet. Trotzdem möchte ich aber gerne Euch noch mal vorher um Eure Meinungen bitten.
Mit oder ohne Kfw 70 ist noch nicht entschieden, aber als Heizung steht die Luft-/Wasserwärmepumpe mit Solarunterstützung nun fest. Ich hoffe nun sind unsere Preis/Kostenvorstellungen wenigstens halbwegs realistisch.
Wie gesagt, wäre über ein paar Meinungen dankbar.
Petri
Hauswirtschaftsraum/Technik größer, dafür kann das Bad im EG kleiner ausfallen.
Ankleidewand Rtg Schlaf verschieben, sodass die lange Wand für Schränke auch nutzbar ist (Schlafzimmer reicht 12 qm). Zur Zeit habt Ihr eine tote lange Wand in der Ankleide, mit der man nix anfangen kann.
Ist ein Kataloggrundriss, gel?
Ankleidewand Rtg Schlaf verschieben, sodass die lange Wand für Schränke auch nutzbar ist (Schlafzimmer reicht 12 qm). Zur Zeit habt Ihr eine tote lange Wand in der Ankleide, mit der man nix anfangen kann.
Ist ein Kataloggrundriss, gel?
Das Dusch-Bad im EG fiel mir direkt auch ins Auge. Es beinhaltet ja nur ein Waschbecken, WC und Dusche. Dafür braucht man keine knapp 10 qm.
Als erstes dachte ich, dass man dem WZ etwas zuschlägt, aber ypg hat Recht. Ihr braucht auch Lager- / Abstellfläche. Dafür solltet Ihr das Dusch-Bad verkleinern und dies dem Hauswirtschaftsraum zuschlagen. Bedenkt - ihr habt im Hauswirtschaftsraum die Technik von der Wärmepumpe sowie (wenn ich es richtig verstanden habe) den Brauchwasserspeicher für XXX Liter Wasser. Dazu kommt noch der Stromkasten. Dann bleibt nicht mehr viel Platz um irgendetwas abzustellen (ggf. noch ein Kasten Wasser 🙂 ).
Als erstes dachte ich, dass man dem WZ etwas zuschlägt, aber ypg hat Recht. Ihr braucht auch Lager- / Abstellfläche. Dafür solltet Ihr das Dusch-Bad verkleinern und dies dem Hauswirtschaftsraum zuschlagen. Bedenkt - ihr habt im Hauswirtschaftsraum die Technik von der Wärmepumpe sowie (wenn ich es richtig verstanden habe) den Brauchwasserspeicher für XXX Liter Wasser. Dazu kommt noch der Stromkasten. Dann bleibt nicht mehr viel Platz um irgendetwas abzustellen (ggf. noch ein Kasten Wasser 🙂 ).
Ähnliche Themen