ᐅ Erfahrungen zum Eingang im UG
Erstellt am: 13.02.14 21:38
Kisska8613.02.14 21:38
Hallo alle zusammen,
ich bin's mal wieder. Aber jetzt wird's konkret. Wir haben tatsächlich UNSER Grundstück gefunden und vermessen lassen. Der Vorvertrag liegt schon hier. 🙂
Jetzt fertigt uns der Architekt gerade den ersten Entwurf an, nachdem ich am Dienstag mit ihm alles geklärt habe. Er hat uns bei diesem Grundstück auch vorgeschlagen den Eingang ins UG zu packen und macht jetzt auch die Planung danach... Ich finde die Idee auch sehr interessant. Mein Mann ist da eher skeptisch. Wie seht ihr das? Praktisch oder eher umständlich oder wie? Hat jemand schon so geplant oder wohnt vielleicht schon so und kann Erfahrungen beisteuern?
Zum Grundstück: Es ist ein 700qm Grundstück, ca. 17m breit und 42m lang. Es ist nach hinten hin als Hang aufsteigend. Über die volle Länge ca. 4-5m. Wobei die ersten 3m Höhenunterschied direkt im ersten drittel ansteigen. Es ist ein Südhang, d.h. der Garten wird hinten im Norden sein (das stört uns bei der Länge des Grundstücks gar nicht und auch eine Nordterrasse empfinden wir als angenehm). Wir haben dann auch nur einen direkt Nachbarn rechts neben uns (Osten). Links (Westen) ist komplett unverbaut und hinten (Norden) der Nachbar ist ca. 100m oder noch weiter. Die Straße, also die Einfahrt und der geplante Eingang sind dann vorne (Süden).
Hausidee: Das Haus auf volle Baufensterbreite von 11m auszunutzen und da eine Doppelgarage für uns ein Muss ist, diese ins UG zu packen. D.h. das Haus quasi unterkellern wobei man von der Straße ebenerdig in die Garage fährt. Daneben will der Architekt jetzt den Haupteingang planen und eine schöne Diele mit Treppe hoch. Im UG sollen sonst nur noch Abstellräume sein und erst oben dann Wohnzimmer, Küche etc. Von da geht's dann auch hinten eben in den Garten.
Ich würde mich über ein paar Erfahrungen und Kritik hören.
ich bin's mal wieder. Aber jetzt wird's konkret. Wir haben tatsächlich UNSER Grundstück gefunden und vermessen lassen. Der Vorvertrag liegt schon hier. 🙂
Jetzt fertigt uns der Architekt gerade den ersten Entwurf an, nachdem ich am Dienstag mit ihm alles geklärt habe. Er hat uns bei diesem Grundstück auch vorgeschlagen den Eingang ins UG zu packen und macht jetzt auch die Planung danach... Ich finde die Idee auch sehr interessant. Mein Mann ist da eher skeptisch. Wie seht ihr das? Praktisch oder eher umständlich oder wie? Hat jemand schon so geplant oder wohnt vielleicht schon so und kann Erfahrungen beisteuern?
Zum Grundstück: Es ist ein 700qm Grundstück, ca. 17m breit und 42m lang. Es ist nach hinten hin als Hang aufsteigend. Über die volle Länge ca. 4-5m. Wobei die ersten 3m Höhenunterschied direkt im ersten drittel ansteigen. Es ist ein Südhang, d.h. der Garten wird hinten im Norden sein (das stört uns bei der Länge des Grundstücks gar nicht und auch eine Nordterrasse empfinden wir als angenehm). Wir haben dann auch nur einen direkt Nachbarn rechts neben uns (Osten). Links (Westen) ist komplett unverbaut und hinten (Norden) der Nachbar ist ca. 100m oder noch weiter. Die Straße, also die Einfahrt und der geplante Eingang sind dann vorne (Süden).
Hausidee: Das Haus auf volle Baufensterbreite von 11m auszunutzen und da eine Doppelgarage für uns ein Muss ist, diese ins UG zu packen. D.h. das Haus quasi unterkellern wobei man von der Straße ebenerdig in die Garage fährt. Daneben will der Architekt jetzt den Haupteingang planen und eine schöne Diele mit Treppe hoch. Im UG sollen sonst nur noch Abstellräume sein und erst oben dann Wohnzimmer, Küche etc. Von da geht's dann auch hinten eben in den Garten.
Ich würde mich über ein paar Erfahrungen und Kritik hören.
wadenkneifer13.02.14 22:21
Moin,
ich kann mir noch nicht ganz vorstellen, was der Architekt vor hat und bin gespannt auf Lageplan und Grundriss.
Wo ist denn der Süd-Garten, wenn man von Süd in die Garage fährt und daneben noch der Hauseingang sein soll?
Wie weit ist das Haus ca. von der Straße weg? Bei 42m Grundstückslänge und ner Haus-Tiefe von 9-10 m bei ca. 30 m? Da hättet ihr viel Schnee zu schaufeln und viel Hof zu pflastern.
Wieviel qm Wohnfläche plant Ihr? Also ca. Hausmaße insgesamt bei 11m breite?
Wieviel steigt das Grundstück in dem Bereich noch an, wo ihr das Haus plant? Klingt bei 4-5 m auf der Gesamtlänge und dem größten teil im ersten Drittel irgendwie danach, als wenn ihr ganz schön viel in die Tiefe müsst um auf Straßenniveau in die Garage zu kommen.
Ich persönlich fände es lästig, immer erst eine Treppe hoch zu müssen von der Haustür. Man wird ja auch nicht jünger. Wie sieht es aus mit älteren, regelmäßigen Besuchern? Kindern und ggf. Kinderwagen? Immer die Einkäufe die Treppe hoch schleppen?
Viele Grüße
Michael
ich kann mir noch nicht ganz vorstellen, was der Architekt vor hat und bin gespannt auf Lageplan und Grundriss.
Wo ist denn der Süd-Garten, wenn man von Süd in die Garage fährt und daneben noch der Hauseingang sein soll?
Wie weit ist das Haus ca. von der Straße weg? Bei 42m Grundstückslänge und ner Haus-Tiefe von 9-10 m bei ca. 30 m? Da hättet ihr viel Schnee zu schaufeln und viel Hof zu pflastern.
Wieviel qm Wohnfläche plant Ihr? Also ca. Hausmaße insgesamt bei 11m breite?
Wieviel steigt das Grundstück in dem Bereich noch an, wo ihr das Haus plant? Klingt bei 4-5 m auf der Gesamtlänge und dem größten teil im ersten Drittel irgendwie danach, als wenn ihr ganz schön viel in die Tiefe müsst um auf Straßenniveau in die Garage zu kommen.
Ich persönlich fände es lästig, immer erst eine Treppe hoch zu müssen von der Haustür. Man wird ja auch nicht jünger. Wie sieht es aus mit älteren, regelmäßigen Besuchern? Kindern und ggf. Kinderwagen? Immer die Einkäufe die Treppe hoch schleppen?
Viele Grüße
Michael
Kisska8614.02.14 08:05
Wo ist denn der Süd-Garten, wenn man von Süd in die Garage fährt und daneben noch der Hauseingang sein soll?
Es gibt keinen Südgarten. Eventuell nur eine Südterrasse auf einem Teil des Garagendaches. Wi finden es aber wie gesagt nicht schlimm.
Wie weit ist das Haus ca. von der Straße weg? Bei 42m Grundstückslänge und ner Haus-Tiefe von 9-10 m bei ca. 30 m?
Das Haus soll nur so 6-7m von der Straße weg für die Einfahrt. Da sollen vor die Doppelgarage noch zwei Autos passen und der Bereich vor dem Eingang wird gepflastert. Schätze sind dann min. 6mx8m oder max. 6mx11m oder so. Bin auch gespannt wa der Architekt da plant. :o
Wieviel qm Wohnfläche plant Ihr? Also ca. Hausmaße insgesamt bei 11m breite?
Irgendwas zwischen 150-170qm je nach Kellergröße, Garagengröße, Heizungsart und so.
Wieviel steigt das Grundstück in dem Bereich noch an, wo ihr das Haus plant?
Wir planen es ja im ersten Drittel bzw. etwas mehr. Hinten ist der Garten dann eben. Und vorne halt ein "richtiger" Hang wo die Garage "reingebaut". Ich hoffe das ist verständlich... :o
Ich persönlich fände es lästig, immer erst eine Treppe hoch zu müssen von der Haustür. Man wird ja auch nicht jünger. Wie sieht es aus mit älteren, regelmäßigen Besuchern? Kindern und ggf. Kinderwagen? Immer die Einkäufe die Treppe hoch schleppen?
Genau das sind auch unsere Bedenken bzw. Die von meinem Mann. Regelmäßige alte Besuche haben wir nicht, wobei die Eltern ja nicht jünger werden. Aber der Höhenunterschied muss ja so oder so überwunden werden. Entweder drinnen oder draußen. Eine gute Alternative haben wir auch noch nicht, wenn die Doppelgarage bleiben soll. Kinder können ja hoch laufen bzw. krabbeln und der KiWa bleibt einfach unten. Das find ich ja sogar sehr gut! Ja, die Einkäufe müssen immer hoch, wobei Wasser-, Saft- und Biekisten genauso wie größere Vorräte im Keller bleiben können.
Danke Michael!!!
Gibt's noch mehr Meinungen, Kritik un vielleicht Erfahrungen?
Es gibt keinen Südgarten. Eventuell nur eine Südterrasse auf einem Teil des Garagendaches. Wi finden es aber wie gesagt nicht schlimm.
Wie weit ist das Haus ca. von der Straße weg? Bei 42m Grundstückslänge und ner Haus-Tiefe von 9-10 m bei ca. 30 m?
Das Haus soll nur so 6-7m von der Straße weg für die Einfahrt. Da sollen vor die Doppelgarage noch zwei Autos passen und der Bereich vor dem Eingang wird gepflastert. Schätze sind dann min. 6mx8m oder max. 6mx11m oder so. Bin auch gespannt wa der Architekt da plant. :o
Wieviel qm Wohnfläche plant Ihr? Also ca. Hausmaße insgesamt bei 11m breite?
Irgendwas zwischen 150-170qm je nach Kellergröße, Garagengröße, Heizungsart und so.
Wieviel steigt das Grundstück in dem Bereich noch an, wo ihr das Haus plant?
Wir planen es ja im ersten Drittel bzw. etwas mehr. Hinten ist der Garten dann eben. Und vorne halt ein "richtiger" Hang wo die Garage "reingebaut". Ich hoffe das ist verständlich... :o
Ich persönlich fände es lästig, immer erst eine Treppe hoch zu müssen von der Haustür. Man wird ja auch nicht jünger. Wie sieht es aus mit älteren, regelmäßigen Besuchern? Kindern und ggf. Kinderwagen? Immer die Einkäufe die Treppe hoch schleppen?
Genau das sind auch unsere Bedenken bzw. Die von meinem Mann. Regelmäßige alte Besuche haben wir nicht, wobei die Eltern ja nicht jünger werden. Aber der Höhenunterschied muss ja so oder so überwunden werden. Entweder drinnen oder draußen. Eine gute Alternative haben wir auch noch nicht, wenn die Doppelgarage bleiben soll. Kinder können ja hoch laufen bzw. krabbeln und der KiWa bleibt einfach unten. Das find ich ja sogar sehr gut! Ja, die Einkäufe müssen immer hoch, wobei Wasser-, Saft- und Biekisten genauso wie größere Vorräte im Keller bleiben können.
Danke Michael!!!
Gibt's noch mehr Meinungen, Kritik un vielleicht Erfahrungen?
Justifier14.02.14 08:13
Gibt es eine Möglichkeit, von hinten an das Grundstück heran zu fahren? Dann würde ich die Garage und den Eingang nämlich nach Norden ausrichten, ihr könnt ebenerdig hineingehen und je nach Gusto (Geschmäcker sind da ja verschieden) den Wohnbereich (Wohnzimmer, Küche, etc.) im Ober- oder Untergeschoss platzieren und die schöne Südausrichtung geniessen.
Kisska8614.02.14 08:59
Justifier schrieb:
Gibt es eine Möglichkeit, von hinten an das Grundstück heran zu fahren? Dann würde ich die Garage und den Eingang nämlich nach Norden ausrichten, ihr könnt ebenerdig hineingehen und je nach Gusto (Geschmäcker sind da ja verschieden) den Wohnbereich (Wohnzimmer, Küche, etc.) im Ober- oder Untergeschoss platzieren und die schöne Südausrichtung geniessen.Nein, die Möglichkeit gibt es nicht. Da sind Garten an Garten! Und vorne im Süden ist ein Spielstraße und Häuser. Die schöne Aussicht haben wir Richtung Südwesten, Westen, Norden und Nordosten. Das ist quasi unverbaut und grün bzw. des Nachbars Garten ist so groß, dass wir eine schöne Aussicht in den Garten haben.
WildThing14.02.14 14:00
Hallo,
bei uns ist das Grundstück ähnlich. Wir haben auch Südwesthang und die Zufahrt/Zugang ist nur von unten möglich. Wir sind auch am überlegen ob wir den Zugang von unten im Keller machen. Finde die Idee nicht so schlecht. Schließlich braucht man am Hang sowieso Stufen oder eine Steigung um ins EG zu kommen. Ob die Treppe nun außen liegt oder innen liegt, ist ja eigentlich egal. Innen ist vielleicht bezüglich Witterung/Trepplift später sogar besser. Außerdem bleibt der ganze Dreck/Schuhe/Garderobe gleich im UG und in den anderen Geschossen ist alles "sauber" ;-)
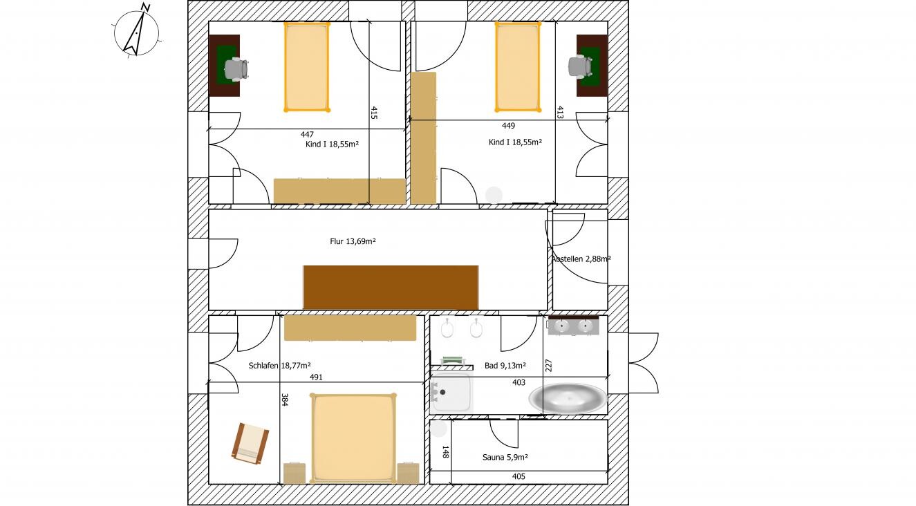
Ich hab mir folgende Grundrisse/Beispiele im Internet gesucht und finde diese ganz ok. Wie wir es tatsächlich machen wird sich erst noch zeigen, wir haben erst noch die Gespräche mit den Architekten.
bei uns ist das Grundstück ähnlich. Wir haben auch Südwesthang und die Zufahrt/Zugang ist nur von unten möglich. Wir sind auch am überlegen ob wir den Zugang von unten im Keller machen. Finde die Idee nicht so schlecht. Schließlich braucht man am Hang sowieso Stufen oder eine Steigung um ins EG zu kommen. Ob die Treppe nun außen liegt oder innen liegt, ist ja eigentlich egal. Innen ist vielleicht bezüglich Witterung/Trepplift später sogar besser. Außerdem bleibt der ganze Dreck/Schuhe/Garderobe gleich im UG und in den anderen Geschossen ist alles "sauber" ;-)
Ich hab mir folgende Grundrisse/Beispiele im Internet gesucht und finde diese ganz ok. Wie wir es tatsächlich machen wird sich erst noch zeigen, wir haben erst noch die Gespräche mit den Architekten.
Ähnliche Themen