ᐅ Elektroplanung / Lichtplanung / Netzwerk für Neubau - Erfahrungen?
Erstellt am: 20.09.23 17:50
G
Gregor_K
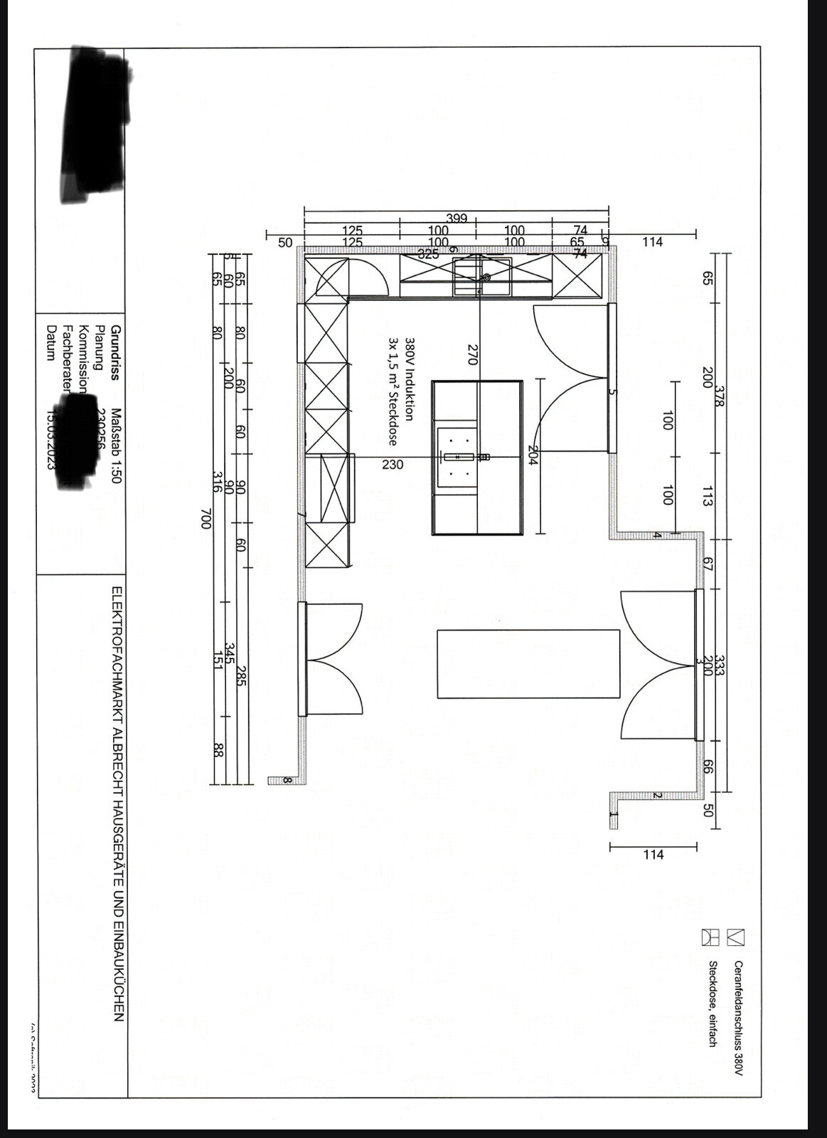
Wir waren vor kurzem bei der Elektrobemusterung. Dabei ist folgender Plan entstanden, leider sind keine Möbel eingezeichnet daher habe ich zusätzlich nochmal einen Grundriss mit Möbeln eingestellt. Für uns ist es das erste mal das wir so etwas machen. Gerne würde ich mal Eure Meinung dazu haben, ich bin mir sicher das ihr noch wertvolles Feedback und den ein oder anderen Denkanstoß für mich habt.
Speziell im Bereich Küche, Hauptbad und Treppenbereich bin ich mir noch nicht sicher.
Zum Haus:
- 3 Etagen KG+EG+OG
- alle 3 Etagen ca 258qm Wohnfläche
- Deckenhöhe EG+OG ca 2,55m
- Deckenhöhe KG ca 2,38m
Frage:
Soll ich wirklich 5 Deckenauslässe (Licht) in der Küche machen? Man braucht zwar viel Licht aber könnte mir vorstellen das es etwas zu viel ist.
Wie findet ihr die Wandauslässe im Treppenbereich?
Wenn der Raum mindestens 16qm groß ist habe ich immer 2 Deckenauslässe geplant. Findet ihr das es auch nötig ist wenn der Raum z.B. 16,5qm hat?
Soll ich ein Kabel für beleuchtete Waschtische ziehen lassen?
Reicht ein 50er Leerrohr für Photovoltaik?





Speziell im Bereich Küche, Hauptbad und Treppenbereich bin ich mir noch nicht sicher.
Zum Haus:
- 3 Etagen KG+EG+OG
- alle 3 Etagen ca 258qm Wohnfläche
- Deckenhöhe EG+OG ca 2,55m
- Deckenhöhe KG ca 2,38m
Frage:
Soll ich wirklich 5 Deckenauslässe (Licht) in der Küche machen? Man braucht zwar viel Licht aber könnte mir vorstellen das es etwas zu viel ist.
Wie findet ihr die Wandauslässe im Treppenbereich?
Wenn der Raum mindestens 16qm groß ist habe ich immer 2 Deckenauslässe geplant. Findet ihr das es auch nötig ist wenn der Raum z.B. 16,5qm hat?
Soll ich ein Kabel für beleuchtete Waschtische ziehen lassen?
Reicht ein 50er Leerrohr für Photovoltaik?
N
NatureSys20.09.23 21:22Zu den Wandlampen: Bei uns hängen alle auf ca. 195 cm Höhe und leuchten ausschließlich nach oben. So haben wir schönes indirektes Licht (jeweils dimmbar) im Wohn- und im Esszimmer. Im Wohnzimmer sind es drei Stück, im Esszimmer zwei Stück. Im Esszimmer haben wir zusätzlich noch eine Lampe über dem esstisch, im Wohnzimmer noch schwenkbare, Aufbauspots (also nicht in die Decke eingelassen).
HeimatBauer schrieb:
Photovoltaik 50er reicht - sollte exclusiv dafür sein. Ich habe aktuell nur zwei Strings, überlege noch einen dritten dazu zu bauen. Reserve tut gut.
Küche: Unbedingt Deckenauslässe über die Arbeitsplatten und einem etwaigen Tisch. Steckdosen ohne Ende, auch an etwaigen Sitzpositionen, sei es für Toaster oder Handy-Laden.
Im Wohnzimmer habe ich an zwei möglichen Positionen alles installiert was ich für den Fernseher brauche - habe ich schon gebraucht. Im Keller habe ich teilweise nur einen Deckenauslass pro Raum gelegt, das war ne doofe Idee, war ne mächtige Frickelei nachher daran drei Lampen hübsch (!) zu montieren.
In meinem Musikzimmer habe ich dedizierte, direkt verlegte (dadurch halbe Leitungslänge) Kabel mit höherem Querschnitt von der Verteilung zu den Verstärkern verlegt. In die Garage eine richtig dicke Leitung für etwaiges E-Auto.
Auf Reserve verlegt habe ich Leitungen unters Dach für etwaige Strahler, im Keller einfach in alle Abflussrohr-Verkofferungen sowie in jedes WC ein Kabel für etwaige Hightech-WCs. Überall wo ich evtl. Kunstwerke aufhängen möchte, gegenüber einen Wandauslass.
Bei mir im Haus habe ich insgesamt 16 Satelliten-Steckdosen, 25 Lautsprecher-Strecken und 120 Netzwerkports. Das ist sicher overkill, ich habe aber erstaunlich viele davon schon gebraucht und vor allem: Man weiß ja vorher nicht, welche man nach 40 Jahren nie verwendet hat.
Im nächsten Haus würde ich Licht und Steckdosen trennen. Alles was Fluchtwege beleuchtet, würde ich separat absichern.Bei dem 50er Rohr habe ich nur eins. Wollte noch eins legen aber die Kellerdecke ist schon drauf, da habe ich leider gepennt. 🙁
Danke für den Tipp Mit dem Keller, da habe ich nun spontan mal einen weiteren Deckenauslass im Kellerraum 1 geplant da der mit 32qm doch recht groß ist.
N
NatureSys20.09.23 21:25N
NatureSys20.09.23 21:28Licht war tatsächlich einer der Punkte mit dem wir in unserem frühen Haus unglücklich waren. Das macht einen riesigen Unterschied hinsichtlich des Wohlbefindens.
Kann noch jemand auf meine Fragen eingehen?
Soll ich wirklich 5 Deckenauslässe (Licht) in der Küche machen? Man braucht zwar viel Licht aber könnte mir vorstellen das es etwas zu viel ist.
Wie findet ihr die Wandauslässe im Treppenbereich? Reicht das Licht mit den 2 Wandauslässen?
Wenn der Raum mindestens 16qm groß ist habe ich immer 2 Deckenauslässe geplant. Findet ihr das es auch nötig ist wenn der Raum z.B. 16,5qm hat?
Soll ich ein Kabel für beleuchtete Waschtische ziehen lassen?
Soll ich wirklich 5 Deckenauslässe (Licht) in der Küche machen? Man braucht zwar viel Licht aber könnte mir vorstellen das es etwas zu viel ist.
Wie findet ihr die Wandauslässe im Treppenbereich? Reicht das Licht mit den 2 Wandauslässen?
Wenn der Raum mindestens 16qm groß ist habe ich immer 2 Deckenauslässe geplant. Findet ihr das es auch nötig ist wenn der Raum z.B. 16,5qm hat?
Soll ich ein Kabel für beleuchtete Waschtische ziehen lassen?
Ähnliche Themen