ᐅ Einschätzung "Festpreis" freistehendes Einfamilienhaus (massiv)
Erstellt am: 07.05.21 06:32
JennySing 07.05.21 06:32
Hallo zusammen,
mein Mann und ich planen für uns und unsere zwei Kids (3 Monate und 5 Jahre) den Bau eines freistehenden Einfamilienhaus in Massivbauweise.
Wir haben ein Grundstück im Kreis Böblingen reserviert und würden von der Firma, die uns auch das Grundstück verkauft, das Haus bauen lassen. (Keine Ahnung ob es sich dann dabei um einen GU oder GÜ oder was auch immer handelt 🙁 )
Nach einer ersten Runde mit den Architekten haben wir nun gestern die dazugehörige Kalkulation bekommen. Diese liegt deutlich über unserem Budget. Nun würden wir gerne verstehen, ob die aufgerufenen Preise realistisch sind und wir also die Planung vereinfachen müssen oder ob da bei der bestehenden Planung noch Sparpotential existiert.
Hier nun die Eckdaten. Wenn wesentliche Infos fehlen, bitte gerne einen Hinweis geben, dann kann ich das - soweit diese mir vorliegen - auch gerne ergänzen.
Festpreis 658.000 € (ohne Grundstück, Baunebenkosten, weiße Wanne, Garage, Außenanlagen, Küche) --> knapp 3300 € pro m² Wohnfläche
Der Quadratmeterpreis pro Wohnfläche finde ich im Vergleich zu den sonstigen Werten, die ich so im Forum finde, sehr hoch.
Was meint Ihr? Realistische/Plausible Preisgestaltung insbesondere wenn man an die aktuellen Preissteigerungen bei Baumaterialien denkt oder eher Wucher?
Danke Euch!
Jenny
mein Mann und ich planen für uns und unsere zwei Kids (3 Monate und 5 Jahre) den Bau eines freistehenden Einfamilienhaus in Massivbauweise.
Wir haben ein Grundstück im Kreis Böblingen reserviert und würden von der Firma, die uns auch das Grundstück verkauft, das Haus bauen lassen. (Keine Ahnung ob es sich dann dabei um einen GU oder GÜ oder was auch immer handelt 🙁 )
Nach einer ersten Runde mit den Architekten haben wir nun gestern die dazugehörige Kalkulation bekommen. Diese liegt deutlich über unserem Budget. Nun würden wir gerne verstehen, ob die aufgerufenen Preise realistisch sind und wir also die Planung vereinfachen müssen oder ob da bei der bestehenden Planung noch Sparpotential existiert.
Hier nun die Eckdaten. Wenn wesentliche Infos fehlen, bitte gerne einen Hinweis geben, dann kann ich das - soweit diese mir vorliegen - auch gerne ergänzen.
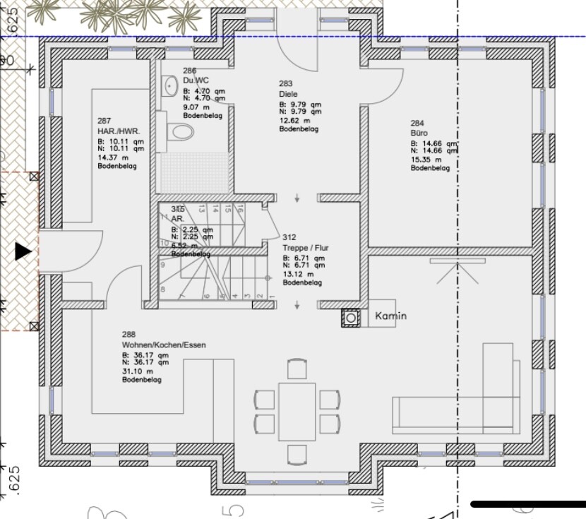
- freistehendes Einfamilienhaus mit UG, EG, OG und tlw. DG mit Flachdach
- UG ist nicht als Wohnraum ausgebaut, d.h. insbesondere keine Heizung
- im OG gibt es eine kleine Terrasse (über Eingangsbereich hin zur Garage) + Dachterrasse im DG mit Brüstung
- Flächenangaben:
- Wohnfläche: 201 m²
- Terrassen: 47 m² *0.5 = 23.5 m²
- Nutzfläche (=Kellerflächen): 73 m²
- lichte Raumhöhe in EG, OG und DG 2,625 m
- Bodenbelag in EG, OG und DG Fließen bzw. Parkett mit max 40 €/m² Materialkosten
- Wandfließen in Feuchträumen
- Fußbodenheizung
- Luft-Wasser-Wärmepumpe
- elektrische Rollläden in EG, OG und DG
- 1 x Schiebe-Hebetür im EG
- kein Smart-Home
- Sanitär-und Elektroinstallationen würde ich als Standard beschreiben. Sonderwünsche wie Netzwerkdosen, mehr Steckdosen kommen aber sicher noch dazu
- Ausführung gemäß Gebäudeenergiegesetz 2020
- Außenanlagen nicht im Preis enthalten
- Doppelgarage mit 7.5x 6.20 m² und zwei Türen, Sektionaltor nicht im Preis enthalten
- Eingangsbereich (ca 9 m²) ist mit recht viel Glas, ansonsten würde ich die Planung nicht als sonderlich glaslastig beschreiben
- Die Baunebenkosten wurden mit 69.000 € angegeben
Festpreis 658.000 € (ohne Grundstück, Baunebenkosten, weiße Wanne, Garage, Außenanlagen, Küche) --> knapp 3300 € pro m² Wohnfläche
Der Quadratmeterpreis pro Wohnfläche finde ich im Vergleich zu den sonstigen Werten, die ich so im Forum finde, sehr hoch.
Was meint Ihr? Realistische/Plausible Preisgestaltung insbesondere wenn man an die aktuellen Preissteigerungen bei Baumaterialien denkt oder eher Wucher?
Danke Euch!
Jenny
Hausbautraum20 07.05.21 06:53
Also ich hätte aufgrund dieser doch überdurchschnittlichen Standards, insbesondere auch mit 2 Dachterrassen (+elektrische Rollläden, Fliesen für 40€, Hebeschiebetür, höhere Raumhöhe, 4 Stockwerke) und der gigantischen Wohnfläche beim Lesen auf Richtung 700k geschätzt.
Böblingen ist ja auch nicht grad eine günstige Gegend.
Böblingen ist ja auch nicht grad eine günstige Gegend.
HilfeHilfe 07.05.21 06:53
Hi Jenny,
was ist den euer Wunschbudget und habt ihr es der Firma mitgeteilt ?
was ist den euer Wunschbudget und habt ihr es der Firma mitgeteilt ?
Hausbautraum20 07.05.21 07:02
Wenn ihr mit der Baufirma bauen müsst, die das Grundstück verkauft, handelt es sich meines Wissens um einen Bauträger.
Damit werden bei 5% Grunderwerbsteuer bei der Gesamtsumme nochmal an die 50k hierfür fällig.
Vielleicht auch nicht ganz unerheblich.
Damit werden bei 5% Grunderwerbsteuer bei der Gesamtsumme nochmal an die 50k hierfür fällig.
Vielleicht auch nicht ganz unerheblich.
nordanney 07.05.21 09:10
Stimme meinen Vorredner zu. Riesiges Haus (unter Einbeziehung diverser Terrasse) mit anspruchsvoller Architektur.
Nehmen wir mal 2.500€/qm Wohnfläche. = T€ 500
Dazu den Keller = T€ 73
Dann noch Aufpreis wg/Terrassen, Raumhöhe usw.
Und schwupps bist Du bei Deinem Preis.
Reicht nicht eine normale Architektur? Oder geht es auch kleiner als fast 300qm Wohn-/Nutzfläche? Ansonsten wirst Du entsprechend tief ins Portemonnaie greifen müssen.
Nehmen wir mal 2.500€/qm Wohnfläche. = T€ 500
Dazu den Keller = T€ 73
Dann noch Aufpreis wg/Terrassen, Raumhöhe usw.
Und schwupps bist Du bei Deinem Preis.
Reicht nicht eine normale Architektur? Oder geht es auch kleiner als fast 300qm Wohn-/Nutzfläche? Ansonsten wirst Du entsprechend tief ins Portemonnaie greifen müssen.
Bookstar 07.05.21 09:21
Ich hätte auch etwas mehr geschätzt, finde den Preis eigentlich recht gut für das Projekt. Wo habt ihr denn eine abweichende Kalkulation?
die Rechnung meines Vorredners zeigt es ganz gut, er hat aber die Baunebenkosten vergessen. Mit denen bist du eh schon bei 640 TEuro. Dann noch diverse Aufpreise.
Oder sind in den 658 TEuro kein Baunebenkosten, kein Keller enthalten? warum hast du weiße Wanne ausgeklammert, ihr werden den Keller hoffentlich nicht Mauern??
die Rechnung meines Vorredners zeigt es ganz gut, er hat aber die Baunebenkosten vergessen. Mit denen bist du eh schon bei 640 TEuro. Dann noch diverse Aufpreise.
Oder sind in den 658 TEuro kein Baunebenkosten, kein Keller enthalten? warum hast du weiße Wanne ausgeklammert, ihr werden den Keller hoffentlich nicht Mauern??
Ähnliche Themen