ᐅ Einfamilienhaus–Neubauvorhaben von Tag 1 an - Und die Planung beginnt
Erstellt am: 07.02.20 22:54
D
DaSch17
Hallo liebe Community,
seit ein paar Wochen lese ich hier im Forum mit und konnte schon ein paar wertvolle Tipps für unsere eigene Planung sammeln.
Ich würde diesen Thread gerne nutzen um Euch vom ersten Tag der Planung an bis zum Einzug auf dem Laufenden zu halten. Ich hoffe, dass ich hierdurch einige wertvolle Tipps von der Community erhalten kann und dieser Thread zudem anderen Frisch–Bauherren als Orientierung dient.
Nun erst mal zu unserem Bauvorhaben:
Wir stehen – wie bereits geschrieben – ziemlich am Anfang...
Begonnen hat es, wie vermutlich bei den meisten, mit der Anforderung eines Katalogs bei einer Fertighausfirma. Bei uns war das Mitte Dezember Fingerhaus.
Darauf folgte ein Telefonat mit einem Hausverkäufer der o.g. Firma und die Vereinbarung eines ersten Beratungsgespräches. Dieser Termin steht nun kommenden Sonntag, den 09.02.2020, an.
Darauf folgte eine intensive Beschäftigung mit der Budgetplanung, möglichen Grundrissen und Bauplätzen sowie idealtypischen Wohnflächenaufteilungen.
Ein Grundstück haben wir bislang noch nicht gekauft. Allerdings stehen wir im Kontakt mit einer Gemeinde, die derzeit die Erweiterung eines Neubaugebietes plant. Dadurch hatten wir das große Glück die Größe, die Lage und den Schnitt unseres zukünftigen Grundstücks mitbestimmen zu können. Unser Wunschgrudnstück ist für uns reserviert.
Die Eckdaten unseres geplanten Einfamilienhaus:
– Bauort: Südwestfalen, Kreis Siegen–Wittgenstein
– Wohnfläche 179 qm
– Bodenplatte
– Satteldach
– 1,5 Geschosse mit Satteldach
– Einzelgarage mit Überlänge für Geräte–/Abstellraum
Unser Budget:
– Grundstück inkl. Grunderwerbsteuer 70 TEUR
– Baukosten 470 TEUR
– Baunebenkosten inkl. Erdarbeiten 70 TEUR
Unser Zeitplan:
– bis Mai 2021: Auswahl der Baufirma
– bis Juli 2021: Vertragsabschluss, Bauantrag
– bis Juli 2023: Abschluss Bauarbeiten
– bis Oktober 2023: Abschluss Eigenleistungen (Malerarbeiten und Bodenbeläge) und Einzug
Uns ist klar, dass der Baubeginn abhängig von der Lieferzeit der Fertighausfirma ist und diese zwischen 6 und 24 Monaten variiert.
Wir haben nun 8 verschiedene Firmen ausgewählt, mit denen wir ein Erstgespräch führen wollen:
– FingerHaus
– Hanse Haus
– Schwörerhaus
– Bien-Zenker
– Schäfer Haus (Kontakt über die Familie)
– Büdenbender Haus
– Weberhaus
– ein ortsansässiger Bauträger
Danach möchten wir mit 4 dieser Anbieter in konkretere Gespräche gehen.
–––––––––––––––––––
Was sollten wir in den Erstgesprächen beachten? Was ist besonders wichtig? Sollten wir gegenüber den Hausverkäufern unser Budget kommunizieren?
seit ein paar Wochen lese ich hier im Forum mit und konnte schon ein paar wertvolle Tipps für unsere eigene Planung sammeln.
Ich würde diesen Thread gerne nutzen um Euch vom ersten Tag der Planung an bis zum Einzug auf dem Laufenden zu halten. Ich hoffe, dass ich hierdurch einige wertvolle Tipps von der Community erhalten kann und dieser Thread zudem anderen Frisch–Bauherren als Orientierung dient.
Nun erst mal zu unserem Bauvorhaben:
Wir stehen – wie bereits geschrieben – ziemlich am Anfang...
Begonnen hat es, wie vermutlich bei den meisten, mit der Anforderung eines Katalogs bei einer Fertighausfirma. Bei uns war das Mitte Dezember Fingerhaus.
Darauf folgte ein Telefonat mit einem Hausverkäufer der o.g. Firma und die Vereinbarung eines ersten Beratungsgespräches. Dieser Termin steht nun kommenden Sonntag, den 09.02.2020, an.
Darauf folgte eine intensive Beschäftigung mit der Budgetplanung, möglichen Grundrissen und Bauplätzen sowie idealtypischen Wohnflächenaufteilungen.
Ein Grundstück haben wir bislang noch nicht gekauft. Allerdings stehen wir im Kontakt mit einer Gemeinde, die derzeit die Erweiterung eines Neubaugebietes plant. Dadurch hatten wir das große Glück die Größe, die Lage und den Schnitt unseres zukünftigen Grundstücks mitbestimmen zu können. Unser Wunschgrudnstück ist für uns reserviert.
Die Eckdaten unseres geplanten Einfamilienhaus:
– Bauort: Südwestfalen, Kreis Siegen–Wittgenstein
– Wohnfläche 179 qm
– Bodenplatte
– Satteldach
– 1,5 Geschosse mit Satteldach
– Einzelgarage mit Überlänge für Geräte–/Abstellraum
Unser Budget:
– Grundstück inkl. Grunderwerbsteuer 70 TEUR
– Baukosten 470 TEUR
– Baunebenkosten inkl. Erdarbeiten 70 TEUR
Unser Zeitplan:
– bis Mai 2021: Auswahl der Baufirma
– bis Juli 2021: Vertragsabschluss, Bauantrag
– bis Juli 2023: Abschluss Bauarbeiten
– bis Oktober 2023: Abschluss Eigenleistungen (Malerarbeiten und Bodenbeläge) und Einzug
Uns ist klar, dass der Baubeginn abhängig von der Lieferzeit der Fertighausfirma ist und diese zwischen 6 und 24 Monaten variiert.
Wir haben nun 8 verschiedene Firmen ausgewählt, mit denen wir ein Erstgespräch führen wollen:
– FingerHaus
– Hanse Haus
– Schwörerhaus
– Bien-Zenker
– Schäfer Haus (Kontakt über die Familie)
– Büdenbender Haus
– Weberhaus
– ein ortsansässiger Bauträger
Danach möchten wir mit 4 dieser Anbieter in konkretere Gespräche gehen.
–––––––––––––––––––
Was sollten wir in den Erstgesprächen beachten? Was ist besonders wichtig? Sollten wir gegenüber den Hausverkäufern unser Budget kommunizieren?
Hallo liebe Community,
wir haben auf Basis des aktuellen Grundrisse (#145) unsere Budgetierung nochmal überarbeitet. Könntet Ihr da mal drüber schauen, ob die Kalkulation so passt und halbwegs realistisch ist:

Wir haben hier diverse Puffer eingebaut, die zum Teil in der Position "Puffer" zu finden sind und zum Teil großzügig kalkuliert wurden:
1.) Grundstück: Im darüberliegenden Neubaugebiet wurden die Grundstücke von der Gemeinde zuletzt für 75 EUR/m² verkauft. Nach Aussage der Gemeinde möchte man auch im neuen Neubaugebiet zu diesem Preis anbieten. Wir haben trotzdem lieber mit 90 EUR/m² kalkuliert: Puffer = 11,5 TEUR
2.) Gründung: Kostenschätzung der Hausbauanbieter (jeweils unabhängig voneinander): ca. 30 TEUR; wir haben hier zusätzlich 10 TEUR Puffer unterlegt (hoher Grundwasserspiegel, lehmiger Boden (schlechte Versickerung Regenwasser) sowie Höhenunterschied von 2,5m auf Grundstück)
Insgesamt ergibt sich hieraus eine Reserve von 52,5 TEUR.
Die Eigenleistungen haben wir wie folgt bestimmt:

Wir haben erstmal vollständig ohne externe Hilfe gerechnet, sondern lediglich mit unserem bereits angesparten Urlaubstagen.
Meint Ihr das kommt so hin oder ist das totaler Quatsch?
wir haben auf Basis des aktuellen Grundrisse (#145) unsere Budgetierung nochmal überarbeitet. Könntet Ihr da mal drüber schauen, ob die Kalkulation so passt und halbwegs realistisch ist:
Wir haben hier diverse Puffer eingebaut, die zum Teil in der Position "Puffer" zu finden sind und zum Teil großzügig kalkuliert wurden:
1.) Grundstück: Im darüberliegenden Neubaugebiet wurden die Grundstücke von der Gemeinde zuletzt für 75 EUR/m² verkauft. Nach Aussage der Gemeinde möchte man auch im neuen Neubaugebiet zu diesem Preis anbieten. Wir haben trotzdem lieber mit 90 EUR/m² kalkuliert: Puffer = 11,5 TEUR
2.) Gründung: Kostenschätzung der Hausbauanbieter (jeweils unabhängig voneinander): ca. 30 TEUR; wir haben hier zusätzlich 10 TEUR Puffer unterlegt (hoher Grundwasserspiegel, lehmiger Boden (schlechte Versickerung Regenwasser) sowie Höhenunterschied von 2,5m auf Grundstück)
Insgesamt ergibt sich hieraus eine Reserve von 52,5 TEUR.
Die Eigenleistungen haben wir wie folgt bestimmt:
Wir haben erstmal vollständig ohne externe Hilfe gerechnet, sondern lediglich mit unserem bereits angesparten Urlaubstagen.
Meint Ihr das kommt so hin oder ist das totaler Quatsch?
R
RotorMotor29.07.20 12:19Warum tauchen die Puffer als Kosten auf? Sind doch eher Einsparungen als Kosten.
RotorMotor schrieb:
Warum tauchen die Puffer als Kosten auf? Sind doch eher Einsparungen als Kosten.Warum Einsparungen?
Der Reservepuffer ist sozusagen aktuell neutral. Auf der Kostenseite wird er als "Ausgabe" aufgelistet und auf der Eigenkapital-/Eigenleistung-/Förderseite wieder abgezogen.
A
Alessandro29.07.20 13:26ich finde es eigentlich ganz schlüssig mit den Bildern als Erklärung. Das kann sehr gut und modern aussehen.
Pass nur beim Kamin bzw. Ofen auf! Das war bei uns ein Problem.
Du solltest schon jetzt wissen welchen Ofen du haben willst und dich dementsprechend beim Ofenbauer informieren.
Oft benötigt der nämlich viel mehr Platz als die Architekten dafür vorsehen. Außerdem soll man den nicht gerade an den Seitenteil der Wand ansetzen, da sonst durch die unterschiedlichen Materialien Risse entstehen.
Du musst dir auch überlegen welchen Funkenschutz du verwenden willst.
Hier mal unser damaliger Entwurf (wurde zu 90% so gebaut, nur mit Tür in die Garderobe und Kamin etwas nach hinten versetzt).
Bei uns verläuft die Treppe vom WZ nach oben wodurch ein größerer Eingangsbereich ensteht und man nicht das Gefühl hat, den Flur neben einer 4m langen Treppe entlang zu laufen.

Pass nur beim Kamin bzw. Ofen auf! Das war bei uns ein Problem.
Du solltest schon jetzt wissen welchen Ofen du haben willst und dich dementsprechend beim Ofenbauer informieren.
Oft benötigt der nämlich viel mehr Platz als die Architekten dafür vorsehen. Außerdem soll man den nicht gerade an den Seitenteil der Wand ansetzen, da sonst durch die unterschiedlichen Materialien Risse entstehen.
Du musst dir auch überlegen welchen Funkenschutz du verwenden willst.
Hier mal unser damaliger Entwurf (wurde zu 90% so gebaut, nur mit Tür in die Garderobe und Kamin etwas nach hinten versetzt).
Bei uns verläuft die Treppe vom WZ nach oben wodurch ein größerer Eingangsbereich ensteht und man nicht das Gefühl hat, den Flur neben einer 4m langen Treppe entlang zu laufen.
Alessandro schrieb:
Pass nur beim Kamin bzw. Ofen auf! Das war bei uns ein Problem.
Du solltest schon jetzt wissen welchen Ofen du haben willst und dich dementsprechend beim Ofenbauer informieren.
Oft benötigt der nämlich viel mehr Platz als die Architekten dafür vorsehen. Außerdem soll man den nicht gerade an den Seitenteil der Wand ansetzen, da sonst durch die unterschiedlichen Materialien Risse entstehen.
Du musst dir auch überlegen welchen Funkenschutz du verwenden willst.
Hier mal unser damaliger Entwurf (wurde zu 90% so gebaut, nur mit Tür in die Garderobe und Kamin etwas nach hinten versetzt).
Bei uns verläuft die Treppe vom WZ nach oben wodurch ein größerer Eingangsbereich ensteht und man nicht das Gefühl hat, den Flur neben einer 4m langen Treppe entlang zu laufen.Danke für den Tipp mit dem Kamin. Sobald alles soweit mit dem Grundriss fix ist, werden wir mal zu einem Kaminbauer gehen.
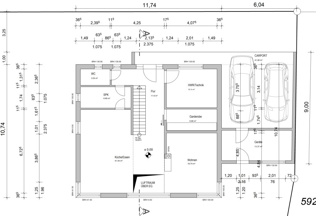
Total verrückt! Euer Grundriss ist unserem ja sehr, sehr ähnlich!
Bzgl. der Treppe planen wir aktuell mit 15 Stufen und haben mal 4,20m x 1,00m als Maße angenommen. Was habt Ihr für eine Raumhöhe?
Leider können wir den Verlauf der Treppe nicht ändern, da wir eine eine geschlossene Treppe benötigen um darunter die Speisekammer unterzubringen.
Ich habe den Grundriss jetzt nochmal nach Eurer Kritik angepasst.
Der Flur im EG hat jetzt eine Breite von 1,20m. Darüber hinaus habe ich die Treppe um 0,60m näher zur Haustür gerückt, sodass sich der Flur entsprechend früher in den Wohnbereich öffnet.
Im OG ist der Flur links 1,40m und ansonsten 1,20m breit.
Darüber hinaus habe ich die Galerie um 0,20m zu Lasten des Elternbadezimmers vergrößert, damit die beiden Wänden im EG und OG "auf Stoß" sind. So wird kein hässlicher Träger im EG sichtbar.

Der Flur im EG hat jetzt eine Breite von 1,20m. Darüber hinaus habe ich die Treppe um 0,60m näher zur Haustür gerückt, sodass sich der Flur entsprechend früher in den Wohnbereich öffnet.
Im OG ist der Flur links 1,40m und ansonsten 1,20m breit.
Darüber hinaus habe ich die Galerie um 0,20m zu Lasten des Elternbadezimmers vergrößert, damit die beiden Wänden im EG und OG "auf Stoß" sind. So wird kein hässlicher Träger im EG sichtbar.
Ähnliche Themen