Hallo zusammen,
wir sind mit der Hausplanung schon gut fortgeschritten, einzig unser Hauptbad im OG lässt uns noch bisschen grübeln. Vielleicht habt ihr Ideen, wie wir das Bad noch ein wenig umgestalten könnten?
Herzlichen Dank für eure Ideen und Anregungen 😉
Hier die Fakten:
Bebauungsplan/Einschränkungen
Größe des Grundstücks --- 600qm
Hang --- ja
Anzahl Stellplatz --- 3
Anforderungen der Bauherren
Stilrichtung, Dachform, Gebäudetyp --- Walmdach Einfamilienhaus
Keller, Geschosse --- ja 3 KG, EG, OG
Anzahl der Personen, Alter --- 2+2 (Kinder) bzw. 2+3 (Kinder)
Raumbedarf im EG, OG
Büro: Familiennutzung oder Homeoffice? --- Homeoffice
Schlafgäste pro Jahr --- selten
konservativ oder moderne Bauweise --- eher konservativ
offene Küche, Kochinsel --- Küche mit Flügeltür getrennt zum Esszimmer, Kochinsel
Anzahl Essplätze --- mind. 6
Kamin --- ja im Wohnzimmer
Balkon, Dachterrasse --- wir haben uns bewusst für den Flur mit Tür im Westen im OG entschieden, da wir eine Möglichkeit offen lassen wollten dort auch noch eine Dachterrasse zu erweitern
Garage, Carport --- Doppelgarage
Hausentwurf
Von wem stammt die Planung: --- Architekt
Was gefällt besonders? Warum? --- Wir sind mit dem Plan schon sehr zufrieden
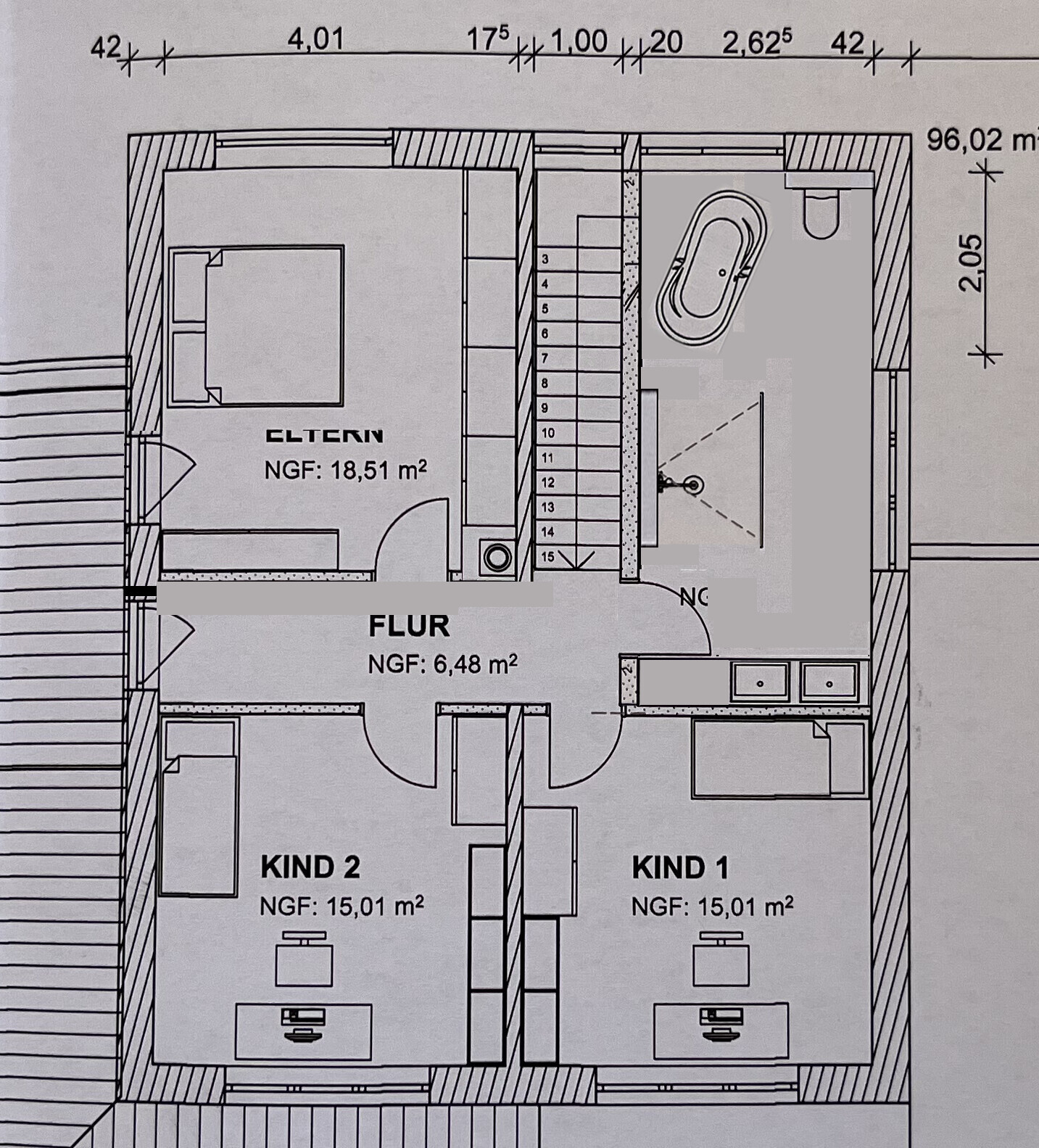
Was gefällt nicht? Warum? --- Einzig das Bad im OG würden wir gerne noch optimieren. Aktuell sind die Badewanne und Dusche im Norden ausgerichtet und dies finden wir bisschen gequetscht. Wir haben uns eigentlich immer eine freistehende Badewanne im Norden mit Panoramafenster in den Norden gewünscht, dort haben wir einen unverbaubaren Blick auf Felder. Hat jemand eine Idee wie wir das Bad besser anordnen können? Das wird unser Hauptbadezimmer (für alle Familienmitglieder) sein.
Vielen Dank schon einmal für eure Ideen und Anregungen
wir sind mit der Hausplanung schon gut fortgeschritten, einzig unser Hauptbad im OG lässt uns noch bisschen grübeln. Vielleicht habt ihr Ideen, wie wir das Bad noch ein wenig umgestalten könnten?
Herzlichen Dank für eure Ideen und Anregungen 😉
Hier die Fakten:
Bebauungsplan/Einschränkungen
Größe des Grundstücks --- 600qm
Hang --- ja
Anzahl Stellplatz --- 3
Anforderungen der Bauherren
Stilrichtung, Dachform, Gebäudetyp --- Walmdach Einfamilienhaus
Keller, Geschosse --- ja 3 KG, EG, OG
Anzahl der Personen, Alter --- 2+2 (Kinder) bzw. 2+3 (Kinder)
Raumbedarf im EG, OG
Büro: Familiennutzung oder Homeoffice? --- Homeoffice
Schlafgäste pro Jahr --- selten
konservativ oder moderne Bauweise --- eher konservativ
offene Küche, Kochinsel --- Küche mit Flügeltür getrennt zum Esszimmer, Kochinsel
Anzahl Essplätze --- mind. 6
Kamin --- ja im Wohnzimmer
Balkon, Dachterrasse --- wir haben uns bewusst für den Flur mit Tür im Westen im OG entschieden, da wir eine Möglichkeit offen lassen wollten dort auch noch eine Dachterrasse zu erweitern
Garage, Carport --- Doppelgarage
Hausentwurf
Von wem stammt die Planung: --- Architekt
Was gefällt besonders? Warum? --- Wir sind mit dem Plan schon sehr zufrieden
Was gefällt nicht? Warum? --- Einzig das Bad im OG würden wir gerne noch optimieren. Aktuell sind die Badewanne und Dusche im Norden ausgerichtet und dies finden wir bisschen gequetscht. Wir haben uns eigentlich immer eine freistehende Badewanne im Norden mit Panoramafenster in den Norden gewünscht, dort haben wir einen unverbaubaren Blick auf Felder. Hat jemand eine Idee wie wir das Bad besser anordnen können? Das wird unser Hauptbadezimmer (für alle Familienmitglieder) sein.
Vielen Dank schon einmal für eure Ideen und Anregungen
A
Aloha_Lars16.08.22 13:38Interessant dürfte es werden, wenn ihr den Stock möbeliert. Treppe 1m breit, Flur 1,25 breit. Keine Rangiermöglichkeiten. Viel Spass mit nem Bett, Kindersofa, Schreibtisch, Schrank.
doolittle schrieb:
dies finden wir bisschen gequetscht.Ich auch. Wer möchte denn die unförmig unpraktische Dusche haben?doolittle schrieb:
unverbaubaren Blick auf Felder.Da sollte das Panoramafenster etwas größer ausfallen. Ich bin persönlich kein Freund von Rauschschauen von der Wanne aus. Ich bade, wenn es draußen schon dunkel ist. Im Sommer oder tagsüber ist das unpassend. Ich denke, dass solltet ihr Euch überlegen. Für den Toigang allerdings finde ich immer ein paar Sekunden, wo ich unser Panorama auf den Dom genießen kann.Aloha_Lars schrieb:
Interessant dürfte es werden, wenn ihr den Stock möbeliert. Treppe 1m breit, Flur 1,25 breit. Keine Rangiermöglichkeiten. Viel Spass mit nem Bett, Kindersofa, Schreibtisch, Schrank.schenkt dem Treppenloch unbedingt den seitlichen Platz für den Handgriff plus 100cm. Sonst könnt Ihr später noch nicht mal die Kinder ins Bett tragen oder Möbelpakete / Wäschekörbe hochschleppen.Ich würde das Podest der Treppe um eine Stufe schmäler machen, dann spart ihr im OG eine Stufenbreite. Dann könnte man die Badtür um ca. 25 cm nach planoben versetzen und an die Wand dann den Waschtisch mit viel Stauraum. Große Dusche als "Walkthrough" oder auch mit 3 Seiten Glas und oben links vor ein größeres Fenster eine freistehende Wanne platzieren. Daneben unauffällig das WC.
In dem Zuge würde ich auch den Flur um eine Wandbreite vergrößern.

In dem Zuge würde ich auch den Flur um eine Wandbreite vergrößern.
Würfel* schrieb:
Ich würde das Podest der Treppe um eine Stufe schmäler machen,Habe ich einen Knoten im Kopf`? Das Podest schmäler hieße doch dann die Laufbreite der Stufen, die von rechts kommen, auch zu verschmälern.kbt09 schrieb:
Habe ich einen Knoten im Kopf`? Das Podest schmäler hieße doch dann die Laufbreite der Stufen, die von rechts kommen, auch zu verschmälern.Wir sehen ja nicht, wie die Treppe weiter geht und wie es mit der Kopffreiheit aussieht. Ansonsten find ich den Vorschlag von Würfel zwar nicht schlecht, aber "schön" geht im Neubau imho trotzdem anders.Ähnliche Themen