Hallo zusammen,
anbei ein Haus, wie es sicher nur einmal gebaut werden wird. Die Planung erfolgte quasi auf den letzten Drücker, da aus formalen Gründen das Einreichen des Bauantrags bis Ende des Monats notwendig ist. Für Ideen und Kritik bin ich sehr dankbar.
Randbedingungen:
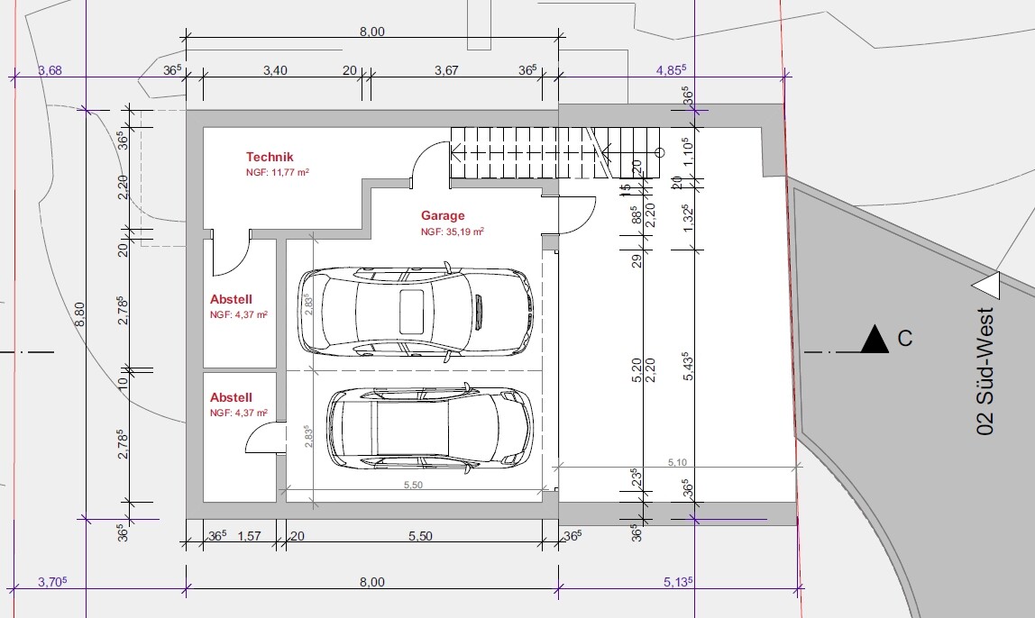
Grundstück in starker Hanglage. Ungefähr 15 m x 35 m. Haus darf nicht Breite als 8 m sein und oberstes Geschoss muss in zwei Richtungen rückspringen (Pseudo-Staffelgeschoss).
Anforderungen des Bauherren:
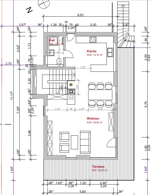
Platz für mindestens zwei Kinder, zusätzlich Einliegerwohnung. Großzügiger Wohn-/Essbereich mit Zugang zum Garten hinter dem Haus. Moderne Architektur. Kfw40 angestrebt. Möglichst wenig Fläche mit Haus zubauen.
Planung stammt vom Architekten mit sehr vielen Vorgaben des Bauherren. Erstellt innerhalb relativ kurzer Zeit.
Erste Kostenschätzung: 500.000 Euro inklusive aller Nebenkosten (ohne Grundstück). Dies entspricht auch dem oberen Limit des Bauherren.
Was (noch) nicht gefällt:
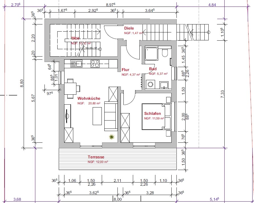
- Einbindung des Gartens im Dachgeschoss erfolgt mittels eines winzigen Terrassentürleins.
- Seitliche Dachterrasse ist mit etwas weniger als 150 cm Tiefe weder Fisch noch Fleisch. Wird vermutlich Richtung 120 cm reduziert. Vielleicht kommt da auch einfach (begrüntes?) Dach hin, falls das eine merkliche Ersparnis gegenüber Dachterrasse liefert.
- Aus dem Haus ragende Eingangstreppe wirkt erstmal komisch.
- Bad in Einliegerwohnung ohne Abstellfläche (naja, ist auch klein).
Gut zu wissen:
Im Hauswirtschaftsraum im 1OG würden wir gern auch die zentrale Kontrollierte-Wohnraumlüftung für die Hauptwohnung unterbringen. Kontrollierte-Wohnraumlüftung in Einliegerwohnung mittels dreier dezentraler Geräte.
Worauf könnte man verzichten:
- Treppenhaus mit Podesten. Eine einfache halbgewendelte Treppe würde mit dem übrigen Fassade abschließen.
- Der rechte Teil der Dachterrasse im 2OG (stattdessen halt normales Flachdach).
Bin gespannt auf alle Kommentare und bedanke mich schon einmal herzlich dafür!





anbei ein Haus, wie es sicher nur einmal gebaut werden wird. Die Planung erfolgte quasi auf den letzten Drücker, da aus formalen Gründen das Einreichen des Bauantrags bis Ende des Monats notwendig ist. Für Ideen und Kritik bin ich sehr dankbar.
Randbedingungen:
Grundstück in starker Hanglage. Ungefähr 15 m x 35 m. Haus darf nicht Breite als 8 m sein und oberstes Geschoss muss in zwei Richtungen rückspringen (Pseudo-Staffelgeschoss).
Anforderungen des Bauherren:
Platz für mindestens zwei Kinder, zusätzlich Einliegerwohnung. Großzügiger Wohn-/Essbereich mit Zugang zum Garten hinter dem Haus. Moderne Architektur. Kfw40 angestrebt. Möglichst wenig Fläche mit Haus zubauen.
Planung stammt vom Architekten mit sehr vielen Vorgaben des Bauherren. Erstellt innerhalb relativ kurzer Zeit.
Erste Kostenschätzung: 500.000 Euro inklusive aller Nebenkosten (ohne Grundstück). Dies entspricht auch dem oberen Limit des Bauherren.
Was (noch) nicht gefällt:
- Einbindung des Gartens im Dachgeschoss erfolgt mittels eines winzigen Terrassentürleins.
- Seitliche Dachterrasse ist mit etwas weniger als 150 cm Tiefe weder Fisch noch Fleisch. Wird vermutlich Richtung 120 cm reduziert. Vielleicht kommt da auch einfach (begrüntes?) Dach hin, falls das eine merkliche Ersparnis gegenüber Dachterrasse liefert.
- Aus dem Haus ragende Eingangstreppe wirkt erstmal komisch.
- Bad in Einliegerwohnung ohne Abstellfläche (naja, ist auch klein).
Gut zu wissen:
Im Hauswirtschaftsraum im 1OG würden wir gern auch die zentrale Kontrollierte-Wohnraumlüftung für die Hauptwohnung unterbringen. Kontrollierte-Wohnraumlüftung in Einliegerwohnung mittels dreier dezentraler Geräte.
Worauf könnte man verzichten:
- Treppenhaus mit Podesten. Eine einfache halbgewendelte Treppe würde mit dem übrigen Fassade abschließen.
- Der rechte Teil der Dachterrasse im 2OG (stattdessen halt normales Flachdach).
Bin gespannt auf alle Kommentare und bedanke mich schon einmal herzlich dafür!
Ich kenne den Entwurf, aber nicht die dazugehörige Diskussion (Zeitmangel) 🙂
WC-Tür in der Küche: nogo!
Schlafzimmer hätte ich rechte Seite im Ursprung behalten, dafür ein gängigeres und größeres Bad geplant. Hauswirtschaftsraum... Als Abstellraum viel zu klein. Wo wollt ihr etwas lagern?
Wo kommt denn überhaupt die Technik hin?
Was soll denn welches Geschoss sein? UG erkennt man ja noch 😉
Edit: die neusten Kritiken werden wohl ihre Berechtigung haben, ohne zu wissen, welche es denn sind
WC-Tür in der Küche: nogo!
Schlafzimmer hätte ich rechte Seite im Ursprung behalten, dafür ein gängigeres und größeres Bad geplant. Hauswirtschaftsraum... Als Abstellraum viel zu klein. Wo wollt ihr etwas lagern?
Wo kommt denn überhaupt die Technik hin?
Was soll denn welches Geschoss sein? UG erkennt man ja noch 😉
Edit: die neusten Kritiken werden wohl ihre Berechtigung haben, ohne zu wissen, welche es denn sind
Ähnliche Themen