ᐅ Einfamilienhaus - "fast" Finaler Grundriss - Verbesserungsvorschläge ???
Erstellt am: 17.10.19 16:08
F
Fabsta MDanke .. Ich habe deine Spiegelung mal vergleichend mit Norden planoben mit den Originalgrundrissen gebaut. .. als Vergleich zunächst Original ... ganz klar Fenster müssen angepasst werden, Garage weiter nach hinten. Den Südgarten könnte man vermutlich besser nutzen

Und passend zur horizontalen Drehung auch der Vergleich der OGs. Da müsste man nach der Drehung den First umdenken und ich denke auch die Räume neu anordnen, sonst kommt das, was zunächst gedacht war .. möglichst große Fenster im Süden zu ermöglichen da in Ost und West der Kniestock mit 140 cm gedacht war. Links wieder Original, rechts gedrehter gespiegelter bisheriger Grundriss:

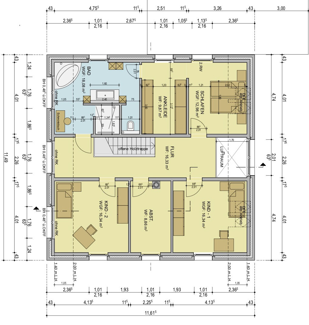
Anmerkung zum Originalgrundriss OG:
In den Kinderzimmern würde ich Richtung Süden statt bodentiefer Türenfenster eher breitere Fenster mit Brüstungshöhe einbauen und dem einen Kinderzimmer auch noch ein Ostfenster spendieren. Breitere Fenster geben einem Raum eigentlich mehr Licht als ein schmales bodentiefes Fenster und erlauben zusätzlich mehr Möglichkeiten möbel zu stellen.
Und passend zur horizontalen Drehung auch der Vergleich der OGs. Da müsste man nach der Drehung den First umdenken und ich denke auch die Räume neu anordnen, sonst kommt das, was zunächst gedacht war .. möglichst große Fenster im Süden zu ermöglichen da in Ost und West der Kniestock mit 140 cm gedacht war. Links wieder Original, rechts gedrehter gespiegelter bisheriger Grundriss:
Anmerkung zum Originalgrundriss OG:
In den Kinderzimmern würde ich Richtung Süden statt bodentiefer Türenfenster eher breitere Fenster mit Brüstungshöhe einbauen und dem einen Kinderzimmer auch noch ein Ostfenster spendieren. Breitere Fenster geben einem Raum eigentlich mehr Licht als ein schmales bodentiefes Fenster und erlauben zusätzlich mehr Möglichkeiten möbel zu stellen.
Curly schrieb:
auf das Kinderbad würde ich nie verzichten und schon gar nicht würde ich ein Bad mit zwei Türen planen. Die Kinder werden die Türe zu eurer Ankleide immer abschließen und später vergessen wieder aufzuschließen und ihr müsst auch immer die Tür zum Flur abschließen. Wenn die Kinder älter sind, dann kommt Besuch, auch spät am Abend und in der Nacht und dann habt ihr dann Teenies nachts in eurem Bad. Außerdem verbringen Teenager ewig im Bad und die werden auch nicht so begeistert sein, wenn sie unten duschen sollen. Wenn es ins Budget passt, würde ich also lieber oben ein Kinderbad planen und den Zugang zum Elternbereich auf jeden Fall durch die Ankleide planen.
LG
SabineHallo Sabine,
Noch ein weiteres Bad wollen wir definitiv nicht. Wir sind beide in quasi gleich ähnlich aufgebauten Elternhäusern aufgewachsen und finden es völlig in Ordnung so. Zumal ich dann später insgesamt 3 Bäder habe, wenn die Kinder mal aus dem Haus sind
Das mit dem Zugang durch das Ankleidezimmer werden wir uns noch mal durch den Kopf gehen lassen.
-----------------------------
kaho674 schrieb:
Guter Ausgangsentwurf.
600K - da würde ich auch das Kinderbad planen und diese 2-Türen-Badsache verwerfen. Außerdem das Elternbad ein klein wenig kompakter machen und dafür den Schminktisch in die Ankleide holen und diese vergrößern. Wenn die Dame schon nen Schminktisch braucht, dann braucht sie auch Schuhe...
Der Rest wurde schon gesagt.Haha, ja wenn es danach geht, könnte das Ankleidezimmer auch gute 30qm haben Aber größer kann es einfach nicht mehr werden. Da ist das Budget dann doch schon gut ausgereizt Ich hab mich bei den 600k wohl etwas falsch ausgedrückt. Das ist das Budget inkl dem Grundstück
Die Sache mit der zweiten Tür ist einfach, wenn ich schon fertig bin im Bad und nicht unbedingt mehr ins Schlafzimmer muss, warum sollte ich wieder den "weg" gehen anstatt einfach direkt raus in den Flur, jedenfalls ist das so unsere Vorstellung. das der schminktisch dann ein wenig im "weg" steht stimmt wohl. aber dafür jetzt die Tür "opfern" wollen wir auch ungerne.
----------------------------------
Moin Moin,
Joar, ich bin im Haushalt der "Koch" und habe mir die Küche schon sehr nach meinen Vorstellungen zusammengebaut. also JA, ich möchte auf jedenfalls so eine große Abtropffläche, denn auch wenn ich einen Geschirrspüler habe, nutze ich diese trotzdem für Kleinigkeiten zwischendurch. Die Spüle und das kochfeld tauschen ? Da ich viel und oft koche, auch oft mit Freunden, ist das Kochfeld genau dort wo es ist. damit man beim Kochen den Blick zum Esstisch hat und weiter in der Kommunikation mit freunden stehen kann.
Ja, so etwas in der Art werden wir eventuell noch verbauen, also z.b. eine Schiebetür ins Ankleidezimmer, aber noch sind wir uns nicht ganz sicher wie wir das lösen. Das man sich dann einfach entspannter fertig machen kann und den anderen der eventuell noch schläft nicht stört ist natürlich ein Gedanke der da mit rein spielt.
Wir haben einen solchen Luftraum schon bei vielen Häusern gesehen und finden ihn (auch wenn er größer sein könnte) trotzdem toll vom Raumgefühl her. Wenn man sich hier vernünftige Türen einbaut, hört man auch wieder quasi nichts. natürlich, wenn sich jemand auf dem Flur bewegt, das lässt sich in dem Fall nicht vermeiden.
Hehe, die Carrera-Bahn wäre natürlich eine gute Option
------------------------------------
kaho674 schrieb:
Alter, willst Du mir jetzt erzählen, wie man sich schminkt? Da muss der Lidschatten zum Kleid passen und die Schuhe natürlich zum Kleid - Du hast doch gar keine Ahnung... !
Ab davon blockiert die Dame so ja stundenlang das Bad, während der Mann längst mal das WC bräuchte...Grundliegend denke ich auch das es irgendwie besser passen würde wenn der Schminktisch im Ankleidezimmer wäre, wir werden da noch mal sehen was wir machen können. Auf der anderen Seite, haben wir den jetzt auch mit im Bad und das klappt sehr gut
Fabsta M schrieb:
Haha, ja wenn es danach geht, könnte das Ankleidezimmer auch gute 30qm haben Aber größer kann es einfach nicht mehr werden. Da ist das Budget dann doch schon gut ausgereizt Wieso? Wenn das Bad kleiner wird, ändert sich doch nichts am Preis.Fabsta M schrieb:
Ich hab mich bei den 600k wohl etwas falsch ausgedrückt. Das ist das Budget inkl dem Grundstück UPS!Fabsta M schrieb:
Die Sache mit der zweiten Tür ist einfach, wenn ich schon fertig bin im Bad und nicht unbedingt mehr ins Schlafzimmer muss, warum sollte ich wieder den "weg" gehen anstatt einfach direkt raus in den Flur, jedenfalls ist das so unsere Vorstellung. Ich glaub, das Problem sind die Kiddis. Das die Eltern untereinander klarkommen, könnte man sich noch vorstellen.Fabsta M schrieb:
Haha, ja wenn es danach geht, könnte das Ankleidezimmer auch gute 30qm habenDazu gibt es gerade aktuell einen Vorschlag - man tausche im Geiste Schlafen und Ankleide, dann "stimmt" es mit den Flächen - https://www.hausbau-forum.de/attachments/screenshot_20191002-155841_gallery-jpg.39119/https://www.instagram.com/11antgmxde/
https://www.linkedin.com/company/bauen-jetzt/
Fabsta M schrieb:
Die Sache mit der zweiten Tür ist einfach, wenn ich schon fertig bin im Bad und nicht unbedingt mehr ins Schlafzimmer muss, warum sollte ich wieder den "weg" gehen anstatt einfach direkt raus in den Flur, jKlug gedacht, schlecht umgesetzt.Fabsta M schrieb:
Die Sache mit der zweiten Tür ist einfach, wenn ich schon fertig bin im Bad und nicht unbedingt mehr ins Schlafzimmer muss, warum sollte ich wieder den "weg" gehen anstatt einfach direkt raus in den Flur,Nacktfrühstücker, erwischt https://www.instagram.com/11antgmxde/
https://www.linkedin.com/company/bauen-jetzt/
Ähnliche Themen