Einfamilienhaus 160 qm in Oberbayern - wie geht's besser?

4,00 Stern(e) 5 Votes
Zuletzt aktualisiert 23.12.2025
Sie befinden sich auf der Seite 4 der Diskussion zum Thema: Einfamilienhaus 160 qm in Oberbayern - wie geht's besser?
>> Zum 1. Beitrag <<

kbt09

kbt09

Ich finde auch, wenig zu mosern ;) ;).
Würde allerdings auch keine so breiten bodentiefen Fenster in den Kinderzimmern vorsehen. Dann eher im Süden mit Fensterbrüstung und evlt. im Osten und Westen je ein türbreites bodentiefes Fenster.

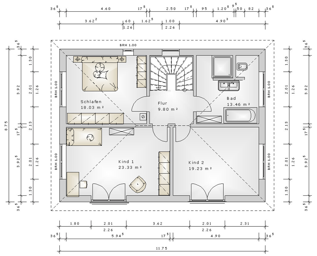
Im EG finde ich die Badlösung im Eingangsthread auch besser, weil dann die Dusche auch Platz hat und auch das WC gut nutzbar ist.

Fenster im Westen dann eher so (passt vielleicht auch gut mit bodentiefem Fenster im OG von Kind 1


2D-Grundriss eines Wohnhauses mit Küche, Essen, Wohnzimmer, Büro und Treppen


Grün soll planunten bedeuten, hier einen Fensterteil, der sich öffnet ... denn dort soll doch bestimm schon Terrasse beginnen ... oder wie liegt die?
 
Y

ypg

Wenn ich dran denke, Fotografiere ich unsere Ecke. Ich könnte es mir ohne Fenster dort nicht vorstellen. Ansonsten schaust Du ja gg eine geschlossene Wand?! Das ist doch bei einer Außenwand nicht gerade die schönste Idee.
Modernes Wohnzimmer mit Fernseher, dunkelgraues Sideboard, Treppe und grossen Glasfenstern.


Hier mal eine Variante der Fensteranordnung im WZ, wo Rausschauen und TV schauen gewährleistet ist ;)
 
B

Bambula

Im EG finde ich die Badlösung im Eingangsthread auch besser
So wird es wahrscheinlich auch gemacht. Ein quadratisches 3,6 qm Bad ist doch sehr beengt. der 2m breite Flur sollte dann auch für eine Garderobe genügen (wenn auch nicht zu üppig).

Fenster im Westen dann eher so
Was mir an dieser Lösung nicht so gefällt: 2 zusätzliche Fenster, somit entsprechende Mehrkosten (elektr. Rollladen usw.) Der Fensterteil, den du grün markiert hast, soll der bewegl. Teil der Schiebe-Hebe-Tür werden. (Konnte ich im Programm nicht darstellen)

Hier mal eine Variante der Fensteranordnung im WZ, wo Rausschauen und TV schauen gewährleistet ist
Gefällt mir gut. Wir spielen auf jeden Fall noch mit der Fensteranordnung im WZ. Vielleicht nordsseitig nur eine "Schießscharte" und statt der 2-flügeligen Tür in der Westwand nur eine Tür? (siehe Skizze)

Außerdem überlegen wir, ob im Schlafzimmer ein zweites Fenster sinnvoll wäre. Dann würde der Raum von 2 Seiten belichtet und man könnte im Bett untertags auch mal lesen (kommt bei uns vor). Was meint ihr? Würde das dem Raum gut tun?

Grundriss eines Hauses mit offener Küche, Essbereich, Wohnzimmer und Büro


2D-Grundriss eines Hauses mit Flur, Schlafzimmer, zwei Kinderzimmern, Bad und Treppe
 
J

j.bautsch

Außerdem überlegen wir, ob im Schlafzimmer ein zweites Fenster sinnvoll wäre. Dann würde der Raum von 2 Seiten belichtet und man könnte im Bett untertags auch mal lesen (kommt bei uns vor).
licht von hinten ist nie praktisch
finde das tut dem raum überhaupt nicht gut, seitliches großes fenster reicht eigentlich vollkommen aus ;)
 
Zuletzt aktualisiert 23.12.2025
Im Forum Grundrissplanung / Grundstücksplanung gibt es 2554 Themen mit insgesamt 88560 Beiträgen


Ähnliche Themen zu Einfamilienhaus 160 qm in Oberbayern - wie geht's besser?
Nr.ErgebnisBeiträge
1Anschlagrichtung und Position Tür im Bad OG 14
2Tür Haus/Garage: Nebeneingangstür als Brandschutztür? - Seite 327
3Abdichtung Terrassenaustritt / -Tür bei zweischaligem Mauerwerk 10
4Besta-Regal mit Tür und Schublade Inreda/IKEA, brauche Hilfe 11
5Schalter für Rollläden am Fenster oder an der Tür? 38
6Ausbesserung der Tür machte es noch "schlimmer" - Seite 225
7Tür Schiebeeinrichtung falschherum - Seite 221
8Hörmann T30 Tür zwischen Wohnhaus & Garage - U-Wert - Seite 211
9Tür nach innen oder außen aufgehend? Was ist normal? - Seite 432
10Pflastern bis an die Tür - wie Abschluss? 15
11Suche Gartenhaus 3x3 Meter mit hoher Tür 15
12Kann eine Hebeschiebetür so dicht sein wie eine normale Tür? - Seite 319
13Duschwanne 140+ cm lang: Tür dadurch einsparen? 24
14Einrichtung Ankleidezimmer Tür zum Badezimmer - Seite 234
15Badplanung - Dusche ohne Tür - Seite 210
16Ikea Faktum Eckhängeschrank - Tür / Scharniere - Seite 210
17Walk-In Dusche, Spritzwasser, brauche ich eine Tür? 35

Oben