Einbehalt von Zahlungen für Mängel am Rohbau

4,90 Stern(e) 11 Votes
Zuletzt aktualisiert 23.11.2025
Sie befinden sich auf der Seite 4 der Diskussion zum Thema: Einbehalt von Zahlungen für Mängel am Rohbau
>> Zum 1. Beitrag <<

I

icandoit

Der meint, das sind definitv Mängel. Er meint auch, er würde dem GU nichts mehr zahlen und hat uns zu nem Anwalt geraten. Er meint aber auch, dass er die Marktpreise auf dem "Endverbrauchermarkt" nicht gut genug kennt um uns saubere Summen nennen zu können.

Das sehe ich wie gesagt auch so.

Das ist ja aktuell mein Problem. Ich kenne mich nicht gut genug in der Materie aus um die Rechnung sauber aufzumachen.

Frag doch einen Anderen Unternehmer was das kostet. Du brauchst doch eh einen Neuen.
Andernfalls kann Ich Dir ja helfen.


Warum nicht? Das ist mehr als sie an "effektiver" Arbeitszeit gebraucht haben um das Stockwerk zu mauern. Was wäre denn eine angemessene Frist zur Beseitigung?

Abbruch dauert. DIe Frist war schon OK. Der hat ja nun schon fast 4 Wochen verstreichen lassen.
Druecke Dir die Daumen.
 
I

icandoit

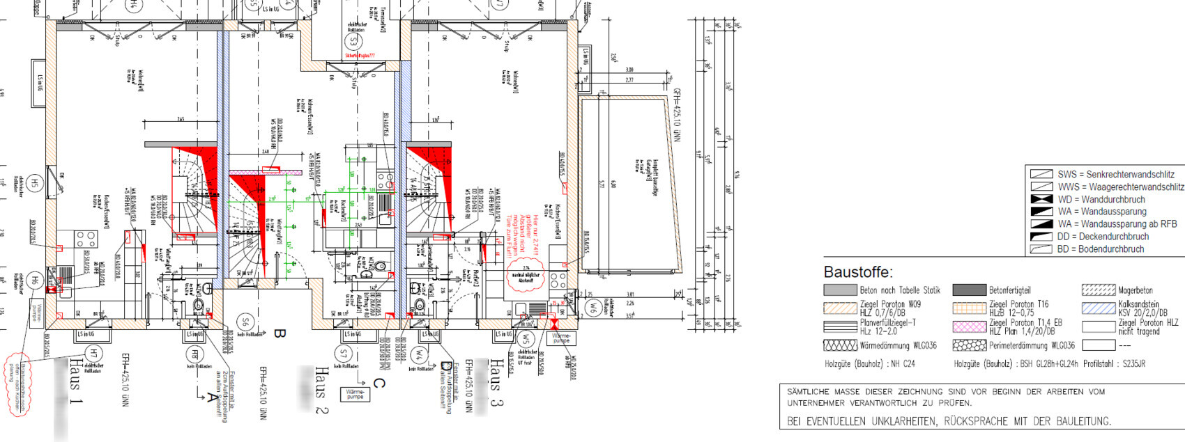
Ich wuere hier gern mal Ausfuehrungsplaene von der Trennwand sehen wollen. Warum sind da keine Eisen drin? Stahlfasebeton?
 
K

Kishihmen

Unter dem Beton ist Kalksandstein. Der Beton wurde über die Steine gegossen. Keine Ahnung ob das so richtig ist, das geht für mich (als Laien) auch nicht wirklich aus den Plänen hervor.
 
I

icandoit

OK dann wurde das mit der Decke gegossen. Vermutlich der Bereich wo die Treppe hin kommt.

Ohne Mangelbeseitigung geht es hier nicht voran.
 
Zuletzt bearbeitet:
Zuletzt aktualisiert 23.11.2025
Im Forum Fundament / Bodenplatte gibt es 528 Themen mit insgesamt 5021 Beiträgen


Ähnliche Themen zu Einbehalt von Zahlungen für Mängel am Rohbau
Nr.ErgebnisBeiträge
1Keller aus Hochlochziegeln oder Beton? - Seite 211
2Dacheindeckung - Ton oder Beton? 16
3Geschossdecke: Beton oder Holzbalkendecke - Vor und Nachteile!? 20
4Beton wasserdichten oder wasser durchlassen? 14
5Keller aus WU-Beton - Schalterproblem 12
6Regen auf Beton Betonplatte schädlich? 12
7Beton vs. Tondachziegel - Seite 226
8Beton unter Dachrinnen-Fallrohr 13
9Fliesen auf Beton entfernen 16
10Haus aus Beton ohne zusätzliche Dämmung - monolithisch - Seite 212
11Keller ursprünglich zum teil in Beton, nun ggf. komplett gemauert 28
12Hausbau aus Beton vs Energieeinsparverordnung 2016 - Seite 231
13WU-Beton +Unterputzdosen im Wohnkeller - wie kann man das lösen? 35
14Roststellen Beton - Decke zu Wand - Neubau 12
15Gipskarton direkt auf beton kleben? 29
16L-Stein mittels einer Schalung und Beton "aufdicken"? - Seite 215
17Garagenbau aus Beton! 3 Wände oder Hausanbau? Was meint ihr? 26
18Bauhaus-Villa aus Beton mit Kerndämmung - Erfahrungen - Seite 551658
19Y-Tong vs Beton ohne extra Dämmung in der Praxis (Heizkosten) 38
20Sind Leerrohre und Leerdosen in WU-Beton gefährlich? 10

Oben