D
DanielG12515.12.18 18:36Guten Abend zusammen,
nachdem ich seit nunmehr zwei Jahren interessiert diesem Forum folge, wird es nun so allmählich auch bei uns konkret.
Ein Grundstück ist gekauft und zusammen mit dem Architekten unseres Vertrauens planen wir dort den Bau eines Doppelhauses für uns und meine Eltern mit Blick in den Wald.
Bebauungsplan/Einschränkungen
§34 Baugesetzbuch
Größe des Grundstücks
1003 qm
Hang
ja, Süd-Ost Hang - auf der Länge des Grundstücks insgesamt 7 Meter
Straße im Nord-Westen
Grundflächenzahl
-
Geschossflächenzahl
-
Baufenster, Baulinie und -grenze
Grundstücksmaße ca. 24m x 41m.
Randbebauung
nein
Anzahl Stellplatz pro Doppelhaushälfte
-
Geschossigkeit
In der Nachbarschaft Eingeschossigkeit (Kellergeschoss, Erdgeschoss, Staffelgeschoss)
Dachform
in der Nachbarschaft sowohl Sattel- als auch Walmdächer
Stilrichtung
Massivhaus, Modern
Ausrichtung
-
Maximale Höhen/Begrenzungen
-
weitere Vorgaben
-
Anforderungen der Bauherren
Stilrichtung, Dachform, Gebäudetyp
Modern, Pultdach, Doppelhaus
Keller, Geschosse
Kellergeschoss, Erdgeschoss, Staffelgeschoss
Anzahl der Personen, Alter
Doppelhaushälfte Planlinks: 1955m, 1957w
Doppelhaushälfte Planrecht: 1988m, 1987w, 2 Kinder in Planung
Raumbedarf im EG, OG
Doppelhaushälfte Planlinks:
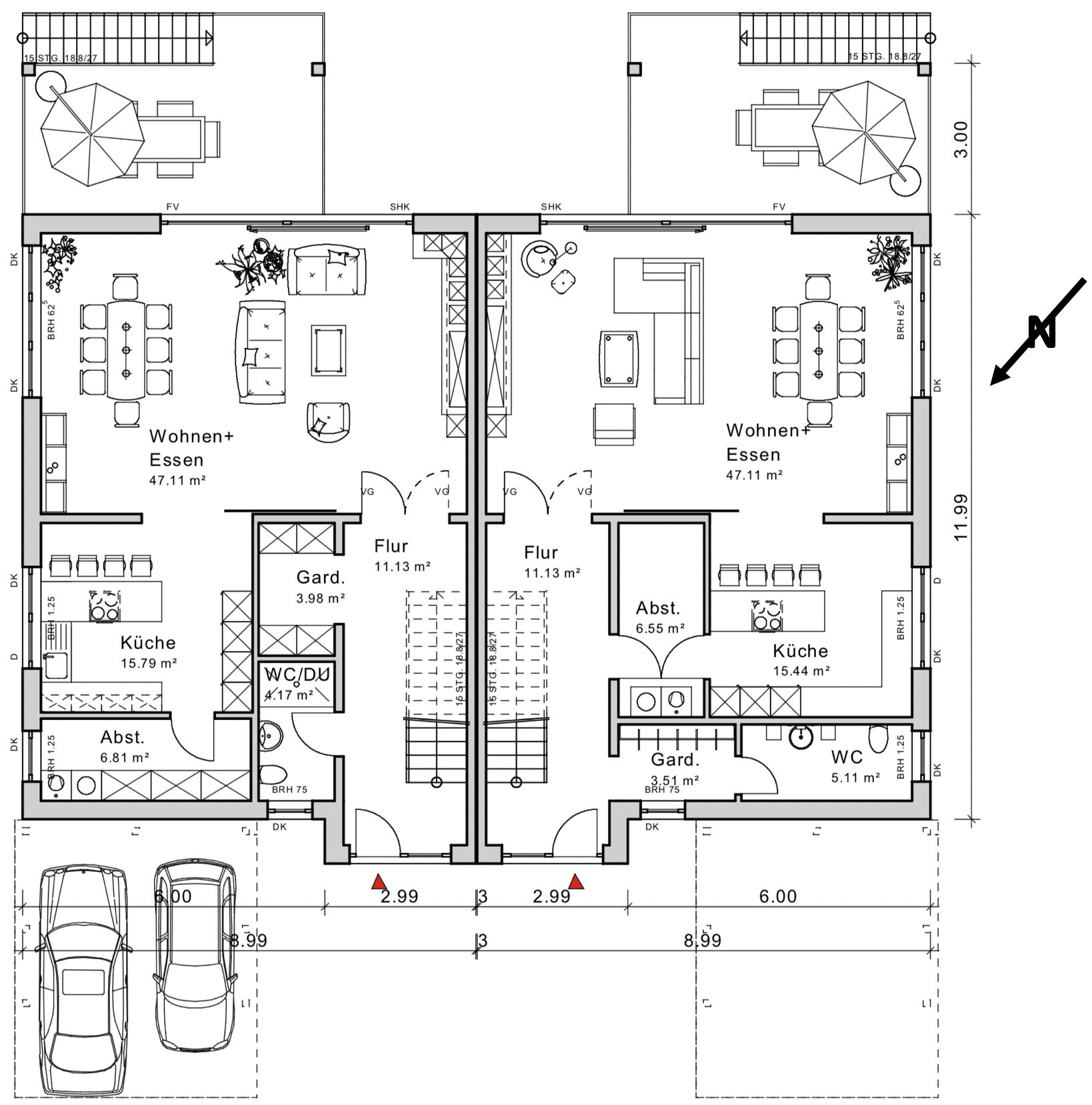
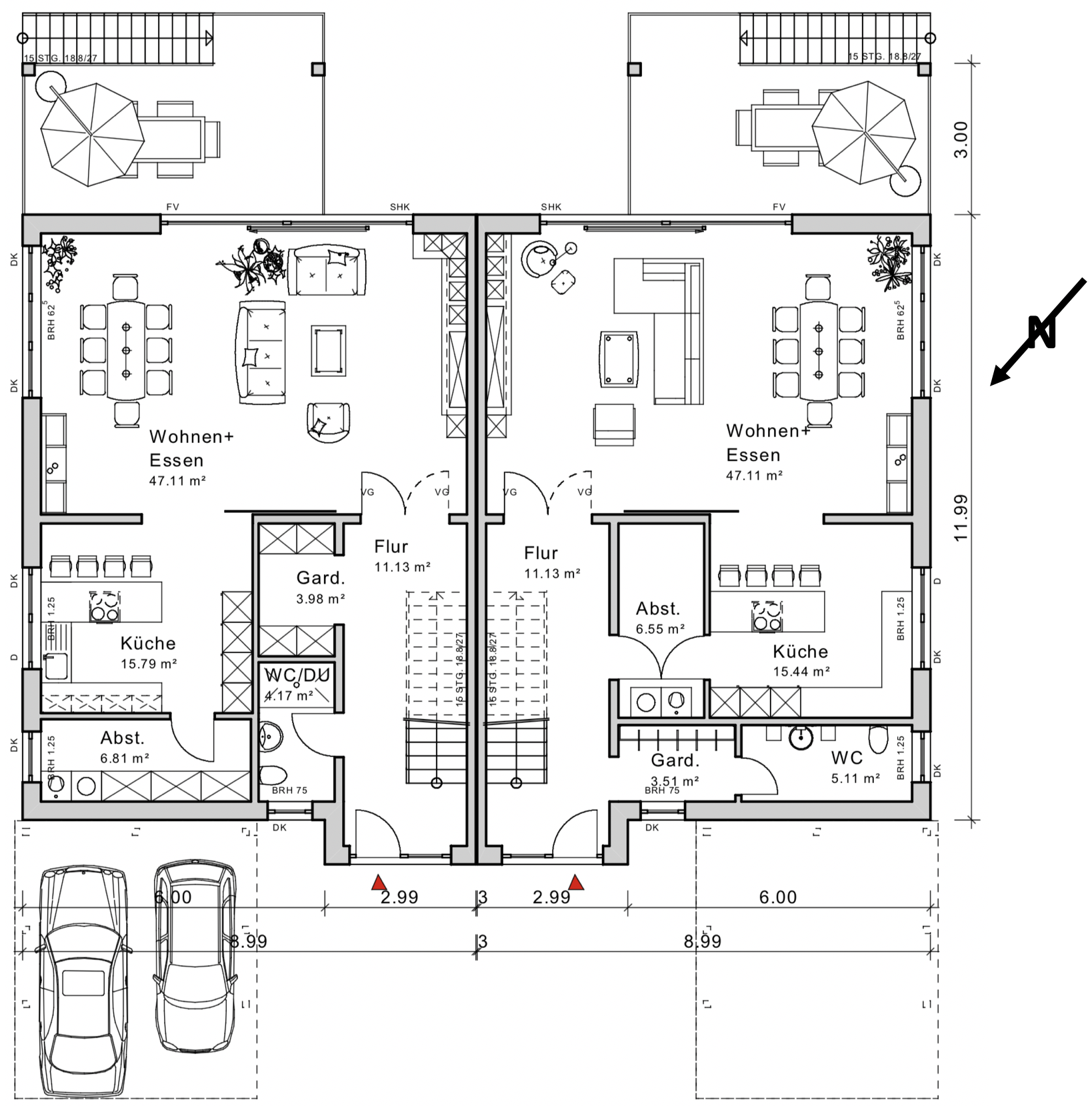
EG: Gäste-WC, Garderobe, Wohnzimmer, Esszimmer, Küche, Abstellraum
OG: Elternschlafzimmer, Gästezimmer, Bad
KG: Apartment (für bspw. Pflegekraft), Technik, Keller
Doppelhaushälfte Planrechts:
EG: Gäste-WC, Garderobe, Wohnzimmer, Esszimmer, Küche, Abstellraum
OG: 2 Kinderzimmer, 1 Arbeitszimmer / Elternschlafzimmer (wenn die Kinder klein sind), Kinderbad
Büro: Familiennutzung oder Homeoffice?
Homeoffice
Schlafgäste pro Jahr
pro Doppelhaushälfte 6
offene oder geschlossene Architektur
offen
konservativ oder moderne Bauweise
modern
offene Küche, Kochinsel
kein Muss
Anzahl Essplätze
pro Doppelhaushälfte 6-8
Kamin
nein
Musik/Stereowand
nein
Balkon, Dachterrasse
in der Planung sowohl im Staffelgeschoss als auch im Erdgeschoss
Garage, Carport
Carport
Nutzgarten, Treibhaus
nein
weitere Wünsche/Besonderheiten/Tagesablauf, gern auch Begründungen, warum dieses oder das nicht sein soll
Doppelhaushälfte Planlinks:
- Gerade Treppe, um perspektivisch einfach einen Treppenlift montieren zu können
- Großes Bad mit T-Lösung
- separate Ankleide
Doppelhaushälfte Planrechts:
- Im Keller ist das Elternschlafzimmer mit Zugang zum Garten vorgesehen. Wenn Nachwuchs kommt, ist der Weg von KG ins OG zu weit, sodass auch die Eltern temporär im OG schlafen sollten.
- Möglichkeit, dass die Kinder im Jugend-Alter in den Keller ziehen können.
Hausentwurf
Von wem stammt die Planung:
Architekt
Was gefällt besonders? Warum?
Der Plan gefällt uns soweit sehr gut. Allerdings sind wir keine Bau-Profis
Was gefällt nicht? Warum?
-
Preisschätzung lt Architekt/Planer:
-
Persönliches Preislimit fürs Haus, inkl Ausstattung:
700.000 Euro
favorisierte Heiztechnik:
Erdwärme
Wenn Ihr verzichten müsst, auf welche Details/Ausbauten
-könnt Ihr verzichten:
Wohnfläche
-könnt Ihr nicht verzichten:
Großes Wohn- / Esszimmer
Entsprechende/Welche Wünsche wurden vom Architekten umgesetzt?
Der Architekt hat unsere Wünsche berücksichtigt. Problematisch waren die Stellplätze, die durch die Hanglade eine mittlere Höhe von 3 Metern überschreiten würden und somit für eine Grenzbebauung ausscheiden. So entstand die aktuelle Lösung mit den Carports.
Was ist die wichtigste/grundlegende Frage zum Grundriss in 130 Zeichen zusammengefasst?
Gerne würde ich eure Meinung zum Entwurf hören. Gibt es Verbesserungsvorschläge, Tipps, Einsparmöglichkeiten oder sonstige Hinweise?
Da es für uns der erste Hausbau ist, freuen wir uns über Kritik, Vorschläge und Anregungen!




nachdem ich seit nunmehr zwei Jahren interessiert diesem Forum folge, wird es nun so allmählich auch bei uns konkret.
Ein Grundstück ist gekauft und zusammen mit dem Architekten unseres Vertrauens planen wir dort den Bau eines Doppelhauses für uns und meine Eltern mit Blick in den Wald.
Bebauungsplan/Einschränkungen
§34 Baugesetzbuch
Größe des Grundstücks
1003 qm
Hang
ja, Süd-Ost Hang - auf der Länge des Grundstücks insgesamt 7 Meter
Straße im Nord-Westen
Grundflächenzahl
-
Geschossflächenzahl
-
Baufenster, Baulinie und -grenze
Grundstücksmaße ca. 24m x 41m.
Randbebauung
nein
Anzahl Stellplatz pro Doppelhaushälfte
-
Geschossigkeit
In der Nachbarschaft Eingeschossigkeit (Kellergeschoss, Erdgeschoss, Staffelgeschoss)
Dachform
in der Nachbarschaft sowohl Sattel- als auch Walmdächer
Stilrichtung
Massivhaus, Modern
Ausrichtung
-
Maximale Höhen/Begrenzungen
-
weitere Vorgaben
-
Anforderungen der Bauherren
Stilrichtung, Dachform, Gebäudetyp
Modern, Pultdach, Doppelhaus
Keller, Geschosse
Kellergeschoss, Erdgeschoss, Staffelgeschoss
Anzahl der Personen, Alter
Doppelhaushälfte Planlinks: 1955m, 1957w
Doppelhaushälfte Planrecht: 1988m, 1987w, 2 Kinder in Planung
Raumbedarf im EG, OG
Doppelhaushälfte Planlinks:
EG: Gäste-WC, Garderobe, Wohnzimmer, Esszimmer, Küche, Abstellraum
OG: Elternschlafzimmer, Gästezimmer, Bad
KG: Apartment (für bspw. Pflegekraft), Technik, Keller
Doppelhaushälfte Planrechts:
EG: Gäste-WC, Garderobe, Wohnzimmer, Esszimmer, Küche, Abstellraum
OG: 2 Kinderzimmer, 1 Arbeitszimmer / Elternschlafzimmer (wenn die Kinder klein sind), Kinderbad
Büro: Familiennutzung oder Homeoffice?
Homeoffice
Schlafgäste pro Jahr
pro Doppelhaushälfte 6
offene oder geschlossene Architektur
offen
konservativ oder moderne Bauweise
modern
offene Küche, Kochinsel
kein Muss
Anzahl Essplätze
pro Doppelhaushälfte 6-8
Kamin
nein
Musik/Stereowand
nein
Balkon, Dachterrasse
in der Planung sowohl im Staffelgeschoss als auch im Erdgeschoss
Garage, Carport
Carport
Nutzgarten, Treibhaus
nein
weitere Wünsche/Besonderheiten/Tagesablauf, gern auch Begründungen, warum dieses oder das nicht sein soll
Doppelhaushälfte Planlinks:
- Gerade Treppe, um perspektivisch einfach einen Treppenlift montieren zu können
- Großes Bad mit T-Lösung
- separate Ankleide
Doppelhaushälfte Planrechts:
- Im Keller ist das Elternschlafzimmer mit Zugang zum Garten vorgesehen. Wenn Nachwuchs kommt, ist der Weg von KG ins OG zu weit, sodass auch die Eltern temporär im OG schlafen sollten.
- Möglichkeit, dass die Kinder im Jugend-Alter in den Keller ziehen können.
Hausentwurf
Von wem stammt die Planung:
Architekt
Was gefällt besonders? Warum?
Der Plan gefällt uns soweit sehr gut. Allerdings sind wir keine Bau-Profis
Was gefällt nicht? Warum?
-
Preisschätzung lt Architekt/Planer:
-
Persönliches Preislimit fürs Haus, inkl Ausstattung:
700.000 Euro
favorisierte Heiztechnik:
Erdwärme
Wenn Ihr verzichten müsst, auf welche Details/Ausbauten
-könnt Ihr verzichten:
Wohnfläche
-könnt Ihr nicht verzichten:
Großes Wohn- / Esszimmer
Entsprechende/Welche Wünsche wurden vom Architekten umgesetzt?
Der Architekt hat unsere Wünsche berücksichtigt. Problematisch waren die Stellplätze, die durch die Hanglade eine mittlere Höhe von 3 Metern überschreiten würden und somit für eine Grenzbebauung ausscheiden. So entstand die aktuelle Lösung mit den Carports.
Was ist die wichtigste/grundlegende Frage zum Grundriss in 130 Zeichen zusammengefasst?
Gerne würde ich eure Meinung zum Entwurf hören. Gibt es Verbesserungsvorschläge, Tipps, Einsparmöglichkeiten oder sonstige Hinweise?
Da es für uns der erste Hausbau ist, freuen wir uns über Kritik, Vorschläge und Anregungen!
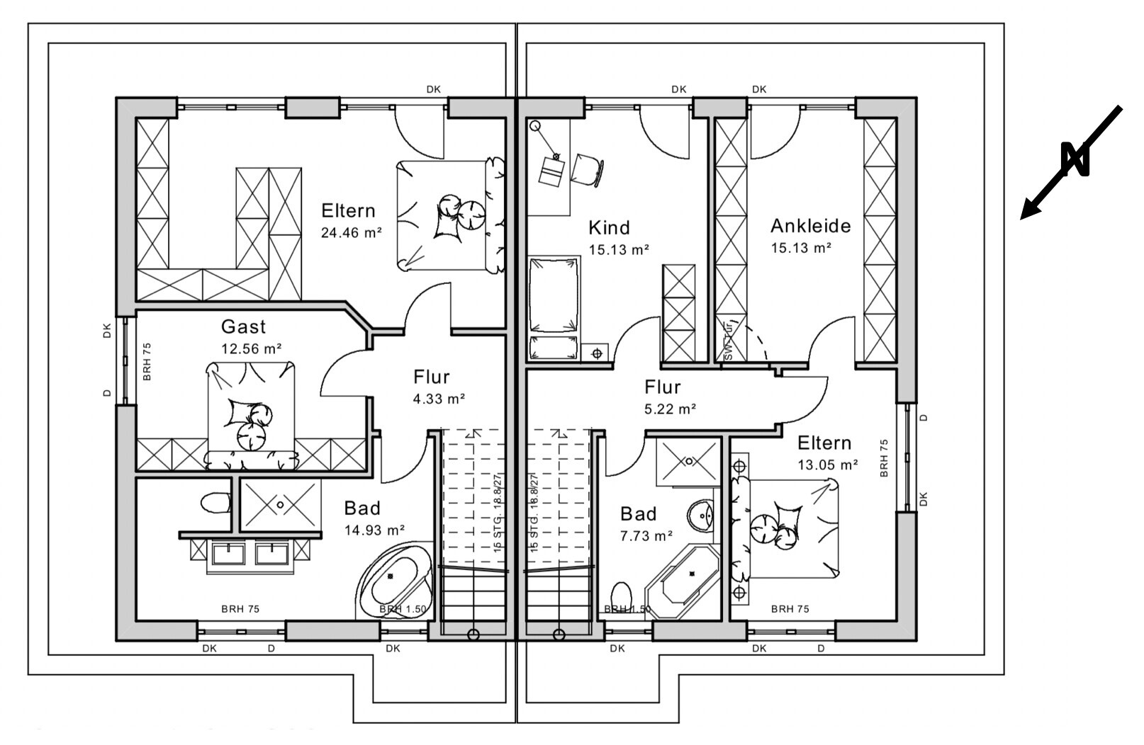
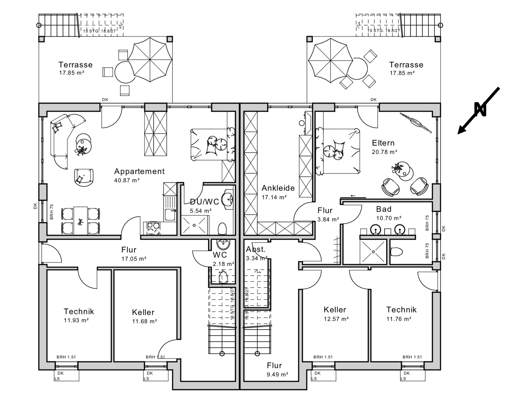
Zur Elternhälfte
Ihr plant eine gerade Treppe wegen Treppenlift und Einliegerwohnung für Pflegekraft
Der Bereich vor der Treppe EG ins OG könnte etwas zu wenig sein um z.b mit einem Rollator bis zum Lift zu laufen.
Die Bäder im EG und OG würde ich umplanen. Rückwärts mit Rollator auf‘s WC einzuparken ist nicht ohne
Evtl ist auch Hilfe notwendig z.b Hose hochziehen oder Morgens kommt der Pflegedienst und unterstützt
Im EG würde ich die Dusche raus nehmen und im OG das T.
WC, Dusche, waschbecken so planen, das Rollator genutzt werden kann oder Ehepartner/Pflegedienst unterstützen. Badewanne evtl so auslegen das ein Badewannenlift genutzt werden kann und trotzdem noch genug Beinfreiheit vorhanden ist.
Zwischen gesund und Pflegeheim gibt es viele Abstufungen und Möglichkeiten sich das Leben leichter zu machen.
Wie breit sind die Türen geplant?
Steckdose auf Lichtschalterhöhe einbauen damit man sich nicht bücken muss.
Ich würde einfach mal die Seite barrierefrei im Internet nutzen.
Die gibt Tipps für Wendekreise, barrierefreies Wohnen etc.
Unser Bad im EG ist behindertengerecht mit Rollstuhl befahrbar und im OG ebenfalls wenn auch nicht so komfortabel. Sieht nicht nach Krankenhaus aus
Ihr plant eine gerade Treppe wegen Treppenlift und Einliegerwohnung für Pflegekraft
Der Bereich vor der Treppe EG ins OG könnte etwas zu wenig sein um z.b mit einem Rollator bis zum Lift zu laufen.
Die Bäder im EG und OG würde ich umplanen. Rückwärts mit Rollator auf‘s WC einzuparken ist nicht ohne
Evtl ist auch Hilfe notwendig z.b Hose hochziehen oder Morgens kommt der Pflegedienst und unterstützt
Im EG würde ich die Dusche raus nehmen und im OG das T.
WC, Dusche, waschbecken so planen, das Rollator genutzt werden kann oder Ehepartner/Pflegedienst unterstützen. Badewanne evtl so auslegen das ein Badewannenlift genutzt werden kann und trotzdem noch genug Beinfreiheit vorhanden ist.
Zwischen gesund und Pflegeheim gibt es viele Abstufungen und Möglichkeiten sich das Leben leichter zu machen.
Wie breit sind die Türen geplant?
Steckdose auf Lichtschalterhöhe einbauen damit man sich nicht bücken muss.
Ich würde einfach mal die Seite barrierefrei im Internet nutzen.
Die gibt Tipps für Wendekreise, barrierefreies Wohnen etc.
Unser Bad im EG ist behindertengerecht mit Rollstuhl befahrbar und im OG ebenfalls wenn auch nicht so komfortabel. Sieht nicht nach Krankenhaus aus
Bin im Elternbereich (um die 60/65) auch gegen das T im Bad.
Für 6 Gäste im Jahr schaff ich normalerweise kein Gästezimmer an, aber für getrennte Schlafräume für später ist das zweite Zimmer gut.
Die Zuwegung im EG zur Küche führt über den Chill-Bereich. Würde ich ändern.
Ich seh bei einem 2 Personen-Haushalt auch keine 4-Mann-Theke.. ich seh auch die Terrasse bei beiden Einheiten nicht mit Treppe, eher auch bei den Küchen angegliedert.
Soll die Einliegerwohnung nur für die Pflege sein oder auch jetzt schon für Mieter? Wenn auch jetzt schon für weitere Mieter, dann fehlt dort Staufläche wie auch ein Waschmaschine-Anschluss.
Wenn sie nur erst später für die Pflegekraft sein soll, würde ich sie jetzt schon für Gäste vorhalten und das OG in gleichwertige Zimmer aufteilen bzw den schrankraum extern in einem separaten Zimmer.
In Eurer Seite: fragt Euch mal, ob ihr alle, auch die Kinder immer durch einen Abstellraum in die Küche wollt.
Ihr, die Eltern, schaut SamstagAbend-Krimi, der 8-Jährige muss durch den Abstellraum durch, wenn er ein Glas Milch will. Oder am blutrünstigen TV vorbei... und morgens regt Igr Euch über diese beiden Türen auf, weil sie offen stehen.
Zu Eurer Wanderung UG/OG: ich glaube nicht, dass man das zufriedenstellend mit den Schränken durchzieht.
Für 6 Gäste im Jahr schaff ich normalerweise kein Gästezimmer an, aber für getrennte Schlafräume für später ist das zweite Zimmer gut.
Die Zuwegung im EG zur Küche führt über den Chill-Bereich. Würde ich ändern.
Ich seh bei einem 2 Personen-Haushalt auch keine 4-Mann-Theke.. ich seh auch die Terrasse bei beiden Einheiten nicht mit Treppe, eher auch bei den Küchen angegliedert.
Soll die Einliegerwohnung nur für die Pflege sein oder auch jetzt schon für Mieter? Wenn auch jetzt schon für weitere Mieter, dann fehlt dort Staufläche wie auch ein Waschmaschine-Anschluss.
Wenn sie nur erst später für die Pflegekraft sein soll, würde ich sie jetzt schon für Gäste vorhalten und das OG in gleichwertige Zimmer aufteilen bzw den schrankraum extern in einem separaten Zimmer.
In Eurer Seite: fragt Euch mal, ob ihr alle, auch die Kinder immer durch einen Abstellraum in die Küche wollt.
Ihr, die Eltern, schaut SamstagAbend-Krimi, der 8-Jährige muss durch den Abstellraum durch, wenn er ein Glas Milch will. Oder am blutrünstigen TV vorbei... und morgens regt Igr Euch über diese beiden Türen auf, weil sie offen stehen.
Zu Eurer Wanderung UG/OG: ich glaube nicht, dass man das zufriedenstellend mit den Schränken durchzieht.
D
DanielG12515.12.18 22:30Vielen Dank für die bisherigen Antworten.
Ich glaube wir haben es dem Architekten sehr schwer gemacht: 4 komplett unterschiedliche Ansprüche, Wünsche und auch Lebensabschnitte unter ein Dach zu bekommen.
Würdet ihr denn den EG-Grundriss der linken Doppelhaushälfte spiegeln? Habt Ihr Vorschläge, um einen kürzeren Weg mit den Einkäufen in den Abstellraum zu generieren?
Bezüglich der Barrierefreiheit sind das sehr gute Hinweise! Ich‚werde mich mal intensiver indas Thema einlesen und mit dem Architekten sprechen.
Das „Appartement“ in der elterlichen Doppelhaushälfte soll nicht vermietet werden. Es dienst wirklich nur einer Pflegekraft, wenn man sie denn mal brauchen sollte oder möglicherweise für Gartenfeste o.ä.
Durch den Hang müssen wir mit Keller bauen, sodass Kellerräume mit Garten- und Terrassenzugang dort „verschenkt“ wären.
Ich glaube wir haben es dem Architekten sehr schwer gemacht: 4 komplett unterschiedliche Ansprüche, Wünsche und auch Lebensabschnitte unter ein Dach zu bekommen.
Würdet ihr denn den EG-Grundriss der linken Doppelhaushälfte spiegeln? Habt Ihr Vorschläge, um einen kürzeren Weg mit den Einkäufen in den Abstellraum zu generieren?
Bezüglich der Barrierefreiheit sind das sehr gute Hinweise! Ich‚werde mich mal intensiver indas Thema einlesen und mit dem Architekten sprechen.
Das „Appartement“ in der elterlichen Doppelhaushälfte soll nicht vermietet werden. Es dienst wirklich nur einer Pflegekraft, wenn man sie denn mal brauchen sollte oder möglicherweise für Gartenfeste o.ä.
Durch den Hang müssen wir mit Keller bauen, sodass Kellerräume mit Garten- und Terrassenzugang dort „verschenkt“ wären.
D
DanielG12515.12.18 22:36ypg schrieb:
ich seh auch die Terrasse bei beiden Einheiten nicht mit Treppe, eher auch bei den Küchen angegliedert.Wie meinst du das?
Ähnliche Themen