T
Traumhaus06.03.25 22:39Liebes Forum,
wir kommen an einigen Punkten aktuell mit unserem Grundriss bzw. der finalen Entscheidung dazu nicht weiter.
Vielleicht habt ihr noch ein paar Ideen.
Wir möchten ein Bestandshaus aus den 60er Sanieren, umbauen und Aufstocken.
Uns geht vor allem um ein paar Ideen für folgende Details:
- Erdgeschoss: Bereich des aktuellen Bads zu einem kleineren Bad und eine Garderobe mit kleinem Raum umbauen - Ideen? Uns fehlt die zündende Idee
Das Bad aktuell ist anders als eingezeichnet ein großer Raum
- Balkon Erdgeschoss: Wir möchten eine Treppe in den Garten, die gute Idee fehlt noch 3,5x5m sollte für Essbereich, Gasgrill und kleine Loungeecke reichen oder unterschätzen wir den Platzbedarf
- Obergeschoss: wird im Prinzip komplett neugebaut, passt in das Bad Badewanne und eine große ebenerdige Dusche mit einer Wand?
Im Moment Tendenz zu vier "gleichgroßen" Räumen von der Grundfläche her, d.h. Zimmer etwas kleiner machen, damit Zimmer 5 größer wird
Falls es doch gute Ideen für ein Schlafzimmer mit Garderobe gibt, wäre das wieder Thema, aber drei sehr große Räume fanden wir doof
- Umbau UG ist nicht Genehmigungspflichtig und erfolgt erst als zweiter Schritt
Im Moment sind Balkon und OG die dringendsten Themen damit der Bauantrag raus kann.
Bebauungsplan/Einschränkungen
Größe des Grundstücks 1300 qm
Hang ja
Grundflächenzahl k.A.
Geschossflächenzahl k.A.
Baufenster, Baulinie und -grenze k.A.
Randbebauung nein
Anzahl Stellplatz Doppelgarage vorhanden
Geschossigkeit aktuell zur Straße 1, danach 1,5
Dachform Satteldach, Dachneigung 35°
Stilrichtung k.A.
Ausrichtung Südost
Maximale Höhen/Begrenzungen Kniestockerhöhung um 1 m wurde in der Bauvoranfrage zugesagt sowie Gauben 2/3 oder Zwerchgiebel (in Richtung Straße 2/3, zum Garten um 1/3)
weitere Vorgaben
Anforderungen der Bauherren
Stilrichtung, Dachform, Gebäudetyp k.A.
Keller, Geschosse Keller, zum Grundstück ebenerdig, EG, DG
Anzahl der Personen, Alter 2, Anfang 30
Raumbedarf im EG, OG EG: Küche, Bad mit Dusche, Garderobe/Abstellraum, Arbeitszimmer (ehemaliges Schlafzimmer), Wohnzimmer
OG: Familienbad, Waschküche, 3-4 Zimmer, Schlafzimmer mit Ankleide, sodass man diese nutzen kann, während der andere schläft
UG: Einlieger soll durch Verlegung des Technikraums abgetrennt und vermietet werden
Büro: Familiennutzung oder Homeoffice? vermutlich beides
Schlafgäste pro Jahr noch nicht abschätzbar, mit Kindern werden die Eltern sicher öfter für 3-4 Tage kommen
offene oder geschlossene Architektur geschlossen
konservativ oder moderne Bauweise ?
offene Küche, Kochinsel "halboffen" mit Halbinsel / U oder Insel
Anzahl Essplätze Tisch mit Eckbank in der Küche, größerer Esstisch im Wohnzimmer
Kamin ja
Musik/Stereowand k.A.
Balkon, Dachterrasse großer Balkon im EG
Garage, Carport Doppelgarage vorhanden, keine Änderung geplant
Nutzgarten, Treibhaus gewünscht, Garten wird nach Einzug schrittweise erneuert
weitere Wünsche/Besonderheiten/Tagesablauf, gern auch Begründungen, warum dieses oder das nicht sein soll
Hausentwurf
Von wem stammt die Planung:
-Planer eines Bauunternehmens nein
-Architekt ja
-Do-it-Yourself teils
Was gefällt besonders? Warum? die Schrägen Eingänge wirken Interessant
Was gefällt nicht? Warum? Bad im EG, kein separater Garderoben/Abstellraum
Preisschätzung laut Architekt/Planer: 560k
Persönliches Preislimit fürs Haus, inkl. Ausstattung: 600-650k
favorisierte Heiztechnik: Wärmepumpe statt der Ölheizung
Wenn Ihr verzichten müsst, auf welche Details/Ausbauten
-könnt Ihr verzichten: Umgestaltung Keller, damit wir Zwei Kellerräume haben / Ankleide beim Schlafzimmer / "Waschküche" im OG
-könnt Ihr nicht verzichten: mind. ein Kellerraum für uns, vernünftige Garderobe im Eingangsbereich
Warum ist der Entwurf so geworden, wie er jetzt ist? ZB
Anpassung des bestehenden Grundrisses an unsere Wünsche ohne zu viel im Bestand zu verändern
Uns gefällt der schmale Eingang bisher nicht, ob ein Umbau der Treppe auf ohne Podest die Kosten rechtfertigt ist fraglich, Idee ist bisher noch nicht geplant.




wir kommen an einigen Punkten aktuell mit unserem Grundriss bzw. der finalen Entscheidung dazu nicht weiter.
Vielleicht habt ihr noch ein paar Ideen.
Wir möchten ein Bestandshaus aus den 60er Sanieren, umbauen und Aufstocken.
Uns geht vor allem um ein paar Ideen für folgende Details:
- Erdgeschoss: Bereich des aktuellen Bads zu einem kleineren Bad und eine Garderobe mit kleinem Raum umbauen - Ideen? Uns fehlt die zündende Idee
Das Bad aktuell ist anders als eingezeichnet ein großer Raum
- Balkon Erdgeschoss: Wir möchten eine Treppe in den Garten, die gute Idee fehlt noch 3,5x5m sollte für Essbereich, Gasgrill und kleine Loungeecke reichen oder unterschätzen wir den Platzbedarf
- Obergeschoss: wird im Prinzip komplett neugebaut, passt in das Bad Badewanne und eine große ebenerdige Dusche mit einer Wand?
Im Moment Tendenz zu vier "gleichgroßen" Räumen von der Grundfläche her, d.h. Zimmer etwas kleiner machen, damit Zimmer 5 größer wird
Falls es doch gute Ideen für ein Schlafzimmer mit Garderobe gibt, wäre das wieder Thema, aber drei sehr große Räume fanden wir doof
- Umbau UG ist nicht Genehmigungspflichtig und erfolgt erst als zweiter Schritt
Im Moment sind Balkon und OG die dringendsten Themen damit der Bauantrag raus kann.
Bebauungsplan/Einschränkungen
Größe des Grundstücks 1300 qm
Hang ja
Grundflächenzahl k.A.
Geschossflächenzahl k.A.
Baufenster, Baulinie und -grenze k.A.
Randbebauung nein
Anzahl Stellplatz Doppelgarage vorhanden
Geschossigkeit aktuell zur Straße 1, danach 1,5
Dachform Satteldach, Dachneigung 35°
Stilrichtung k.A.
Ausrichtung Südost
Maximale Höhen/Begrenzungen Kniestockerhöhung um 1 m wurde in der Bauvoranfrage zugesagt sowie Gauben 2/3 oder Zwerchgiebel (in Richtung Straße 2/3, zum Garten um 1/3)
weitere Vorgaben
Anforderungen der Bauherren
Stilrichtung, Dachform, Gebäudetyp k.A.
Keller, Geschosse Keller, zum Grundstück ebenerdig, EG, DG
Anzahl der Personen, Alter 2, Anfang 30
Raumbedarf im EG, OG EG: Küche, Bad mit Dusche, Garderobe/Abstellraum, Arbeitszimmer (ehemaliges Schlafzimmer), Wohnzimmer
OG: Familienbad, Waschküche, 3-4 Zimmer, Schlafzimmer mit Ankleide, sodass man diese nutzen kann, während der andere schläft
UG: Einlieger soll durch Verlegung des Technikraums abgetrennt und vermietet werden
Büro: Familiennutzung oder Homeoffice? vermutlich beides
Schlafgäste pro Jahr noch nicht abschätzbar, mit Kindern werden die Eltern sicher öfter für 3-4 Tage kommen
offene oder geschlossene Architektur geschlossen
konservativ oder moderne Bauweise ?
offene Küche, Kochinsel "halboffen" mit Halbinsel / U oder Insel
Anzahl Essplätze Tisch mit Eckbank in der Küche, größerer Esstisch im Wohnzimmer
Kamin ja
Musik/Stereowand k.A.
Balkon, Dachterrasse großer Balkon im EG
Garage, Carport Doppelgarage vorhanden, keine Änderung geplant
Nutzgarten, Treibhaus gewünscht, Garten wird nach Einzug schrittweise erneuert
weitere Wünsche/Besonderheiten/Tagesablauf, gern auch Begründungen, warum dieses oder das nicht sein soll
Hausentwurf
Von wem stammt die Planung:
-Planer eines Bauunternehmens nein
-Architekt ja
-Do-it-Yourself teils
Was gefällt besonders? Warum? die Schrägen Eingänge wirken Interessant
Was gefällt nicht? Warum? Bad im EG, kein separater Garderoben/Abstellraum
Preisschätzung laut Architekt/Planer: 560k
Persönliches Preislimit fürs Haus, inkl. Ausstattung: 600-650k
favorisierte Heiztechnik: Wärmepumpe statt der Ölheizung
Wenn Ihr verzichten müsst, auf welche Details/Ausbauten
-könnt Ihr verzichten: Umgestaltung Keller, damit wir Zwei Kellerräume haben / Ankleide beim Schlafzimmer / "Waschküche" im OG
-könnt Ihr nicht verzichten: mind. ein Kellerraum für uns, vernünftige Garderobe im Eingangsbereich
Warum ist der Entwurf so geworden, wie er jetzt ist? ZB
Anpassung des bestehenden Grundrisses an unsere Wünsche ohne zu viel im Bestand zu verändern
Uns gefällt der schmale Eingang bisher nicht, ob ein Umbau der Treppe auf ohne Podest die Kosten rechtfertigt ist fraglich, Idee ist bisher noch nicht geplant.
K
K a t j a25.03.25 19:52Sorry, aber mir fällt es echt schwer, die vielen Sachverhalte zu erfassen und zu verarbeiten. Anscheinend geht es anderen genauso. Ich kann nicht einmal sagen, ob Infos fehlen oder nicht.
Auch die Zeichnungen erschließen sich mir kaum. Welches ist denn überhaupt der neue Plan und was sind Bestandszeichnungen?
Sollen die dünnen grünen Striche Wände sein oder nicht? Wo sind Türen und wo sollen sie weg? Falls dieser Plan der neue Plan ist, sehe ich keinen Mehrwert zum Bestand. Was ist das Ziel?
Wo ist denn der Keller und wie sind die Höhenunterschiede zum Garten, so dass eine Treppe nötig ist? Wo soll die Treppe hin? Ist die eingezeichnet? Wie gesagt, sehr viele unverständliche Details.
Auch die Zeichnungen erschließen sich mir kaum. Welches ist denn überhaupt der neue Plan und was sind Bestandszeichnungen?
Sollen die dünnen grünen Striche Wände sein oder nicht? Wo sind Türen und wo sollen sie weg? Falls dieser Plan der neue Plan ist, sehe ich keinen Mehrwert zum Bestand. Was ist das Ziel?
Wo ist denn der Keller und wie sind die Höhenunterschiede zum Garten, so dass eine Treppe nötig ist? Wo soll die Treppe hin? Ist die eingezeichnet? Wie gesagt, sehr viele unverständliche Details.
Also..
es gibt ein Bestandshaus, eine alte Zeichnung von einem Geschoss mit grünen Markierungen als auch roten und blauen Beschriftungen.
Gilt das rote Fragezeichen uns?
Dann gibt es einem Architektenentwurf, ist der neu oder ist das ein alter?
Dann gibt es ein Geschoss verdreht.
Du hast Dir viel Mühe gegeben, aber bei einem Bestand muss man dem Leser auch mitteilen, was der Bestandsentwurf und was der neue ist. Dann las man weiter oben etwas von finaler Entscheidung und ich sehe eigentlich nichts.
Beim bestand ist es hilfreich, systematisch ranzugehen und ggf auch dem Leser mittels Fotos abzuholen, die ja vieles erklären und mehr sagen als tausend Worte.
und ehrlich? Wenn es nur darum geht, ein Bad zu verkleinern, dann macht das doch.
es gibt ein Bestandshaus, eine alte Zeichnung von einem Geschoss mit grünen Markierungen als auch roten und blauen Beschriftungen.
Gilt das rote Fragezeichen uns?
Dann gibt es einem Architektenentwurf, ist der neu oder ist das ein alter?
Dann gibt es ein Geschoss verdreht.
Traumhaus schrieb:Sicherlich.. aber dazu muss man ja erst einmal wissen, auf welchen Entwurf man sich hier beziehen soll?
Ideen?
Traumhaus schrieb:Dann erschließt sich mir zB. gar nicht, warum man im EG einen Balkon hat. Und dann gibt es den Entwurf, wo eine elend lange Treppe eingezeichnet ist. Wie hoch ist denn das EG vom Terrain entfernt?
Balkon Erdgeschoss: Wir möchten eine Treppe in den Garten,
Traumhaus schrieb:Auch hier kann ich keinen Bezug erkennen: was ist denn nun aktuell, was alt?
- Obergeschoss: wird im Prinzip komplett neugebaut,
Traumhaus schrieb:Wo ist denn das UG hier abgebildet. Wenn man natürlich irgendwann von einem UG liest, dann erklärt sich ein Balkon, aber ehrlich? es sind so viele Fragezeichen bis jetzt beim Leser, dass man keine Lust mehr hat, weiter zu lesen.
Umbau UG
Du hast Dir viel Mühe gegeben, aber bei einem Bestand muss man dem Leser auch mitteilen, was der Bestandsentwurf und was der neue ist. Dann las man weiter oben etwas von finaler Entscheidung und ich sehe eigentlich nichts.
Beim bestand ist es hilfreich, systematisch ranzugehen und ggf auch dem Leser mittels Fotos abzuholen, die ja vieles erklären und mehr sagen als tausend Worte.
und ehrlich? Wenn es nur darum geht, ein Bad zu verkleinern, dann macht das doch.
Traumhaus schrieb:Wo sind denn schräge Eingänge? Ich sehe nur zwei Türen, die im Flur schräg angeordnet sind. Das macht man so, wenn es zu viele Räume sind, die erschlossen werden müssen. Meinst Du das? Aber letztendlich hier erstmal nicht wichtig, aber Du siehst: Fragen über Fragen.
Was gefällt besonders? Warum? die Schrägen Eingänge wirken Interessant
T
Traumhaus26.03.25 21:30Danke für eure Antworten. Entschuldigt, die unklare Fragestellung in der Fragestellung.
Ich versuche nochmal unsere Fragen geordneter zustellen.
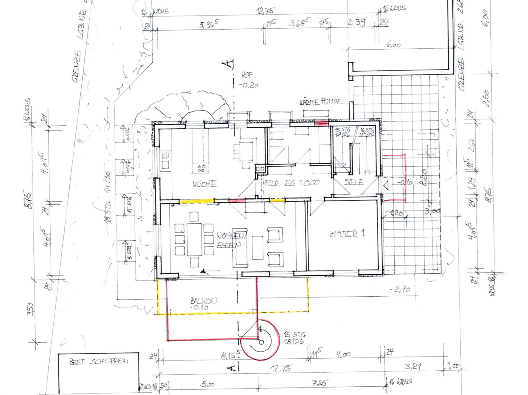
Ich habe die aktuellen und alten Pläne nochmal neu hochgeladen und entsprechend beschriftet.
Es gibt leider nur den Grundriss aus dem ursprünglichen Baujahr und die aktuellen Pläne.
Ich habe die Umbauten der letzten Jahrzehnte in die alten Pläne mit blau und weiß eingezeichnet. So sieht es aktuell in dem Haus aus.
Die neuen Pläne sind die aktuelle Version für den Bauantrag.
Neben genereller Kritik / Vorschlägen / Ideen zu den aktuellen Umbauplänen freue ich mich über Input zu folgenden Fragen.
Ich schreibe einfach mal zu jedem Geschoss was uns gut gefällt und wozu wir noch Fragen haben.
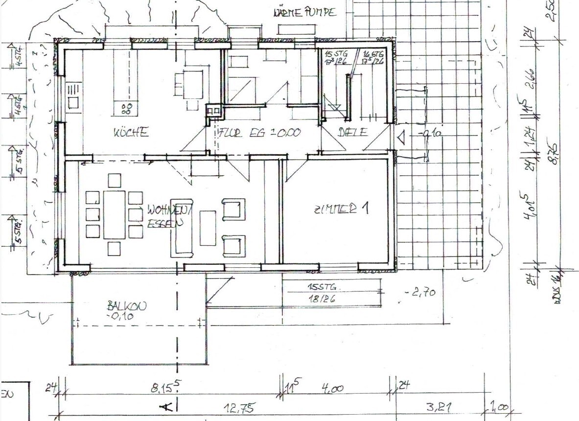
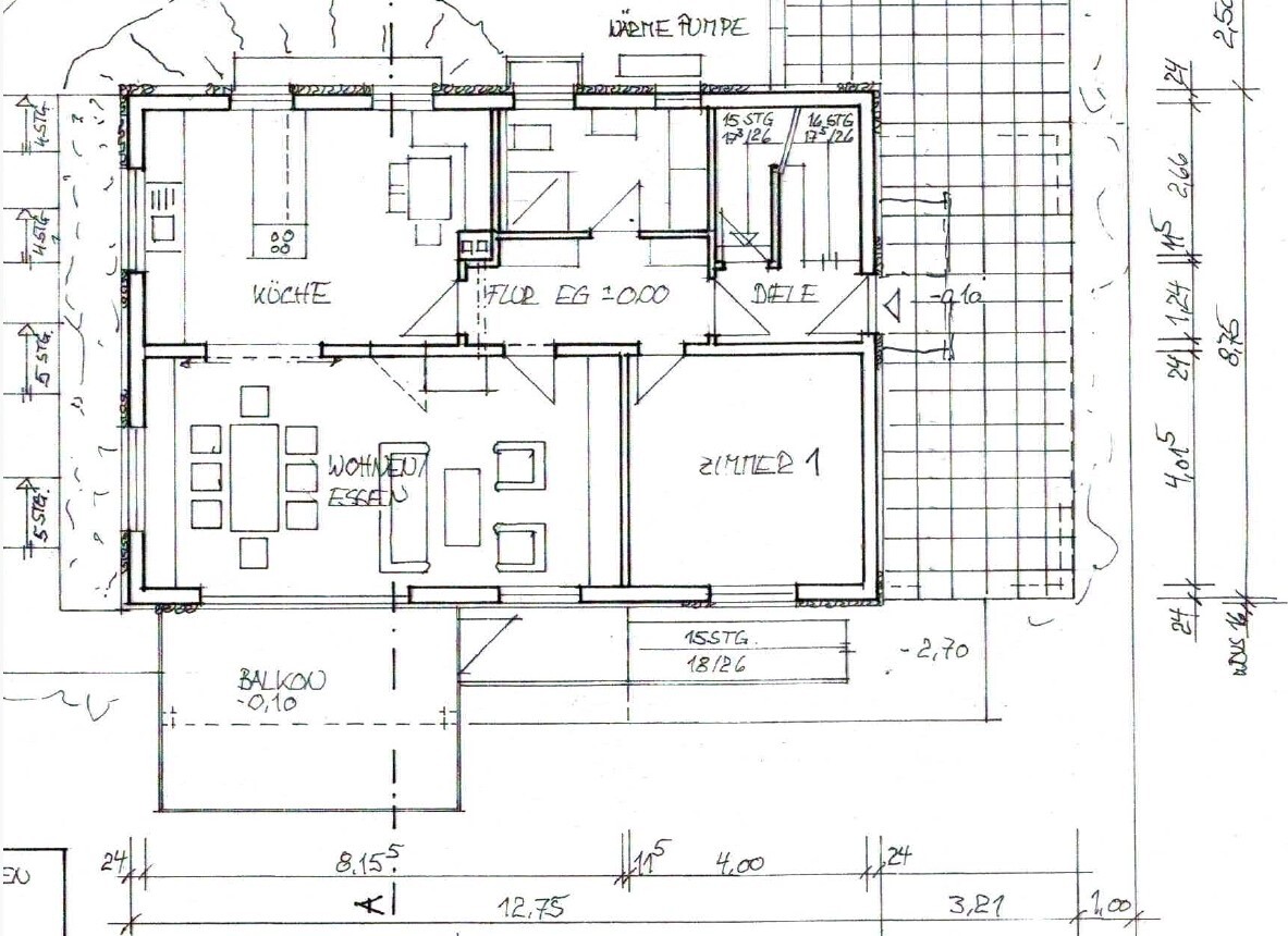
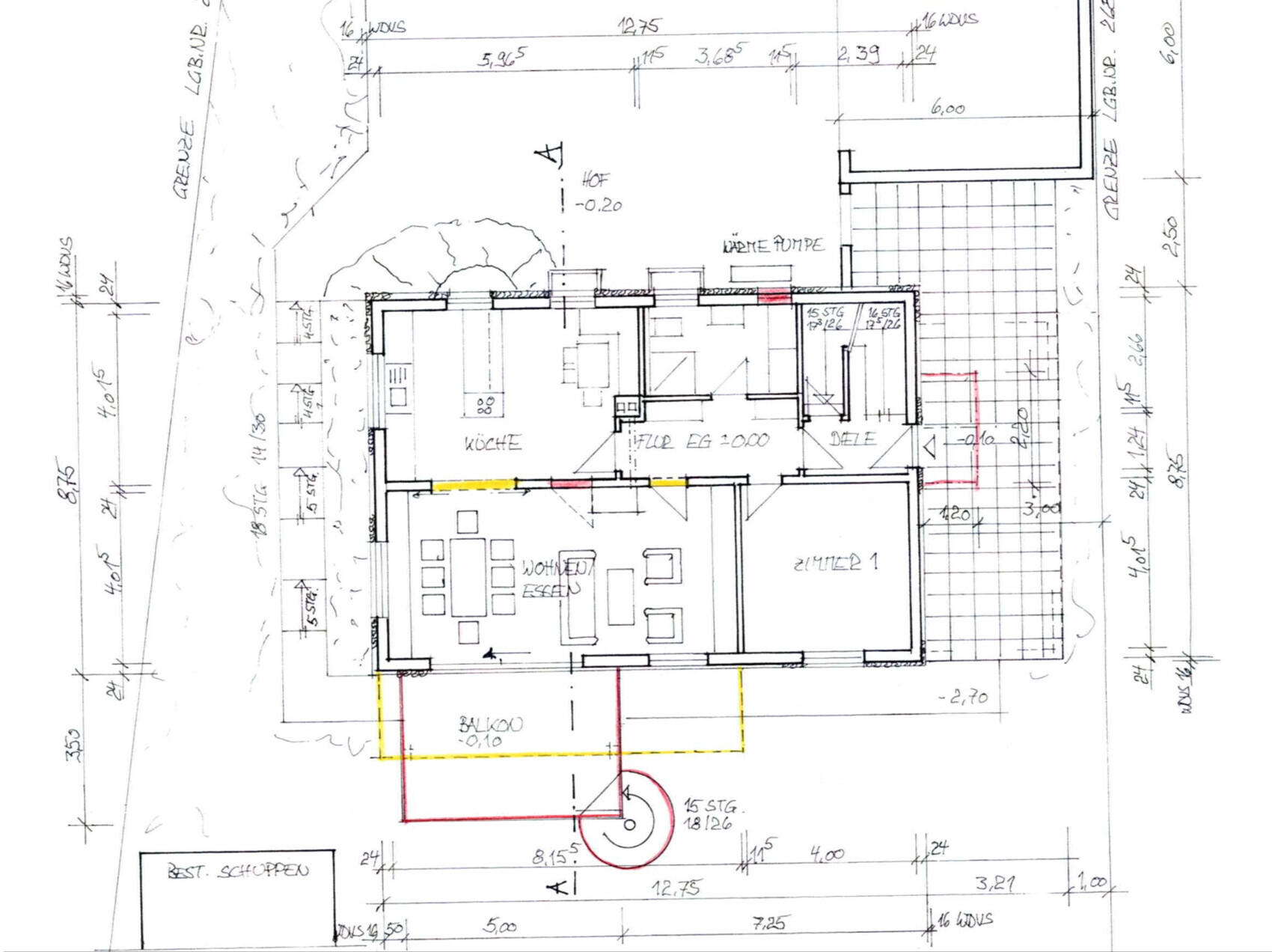
Erdgeschoss:
Wohnzimmer und Zimmer 1 wollen wir wie im Bestand erhalten. Im Wohnzimmer sollen die Türen ungefähr wie in der Zeichnung neu verändert werden. Umbau der Küche zu einem großen Raum ist unser Wunsch gewesen. Verbindung Küche und Wohnzimmer soll halboffen sein. Zimmer 1 wird ein Arbeits-/Gästezimmer.
1) Wir möchten das aktuelle Bad verkleinern und möglichst Platz für einen Garderobenraum gewinnen sowie den Flur etwas verbreitern.
Uns und unserem Architekten ist bisher keine gute Lösung für ein Bad mit Dusche, WC, Waschbecken und ein Garderoben/ Abstellraum eingefallen. Er meint das würde zu schmal werden.
2) Mir ist die Diele hinter der Eingangstür etwas zu schmal. Wir haben das Gedankenspiel, etwas Platz durch Umbau der Podesttreppen in halbgewendelte Treppen zu gewinnen. An den Treppen muss auf jeden Fall was gemacht werden, aber um sich ein kompletter Umbau lohnt ist fraglich. Wie seht ihr das?
3) In der aktuellen Planung hat der Balkon eine Wendeltreppe in den Garten. Bisher aus unserer Sicht die beste Idee. Die Treppenplanung im Ursprungspost fanden wir ganz schlecht. Gibt es noch bessere Lösungen? Von unserem Architekten kommen wenig Vorschläge. Der Balkon soll so groß sein, damit eine kleine Loungeecke, ein großer Essbereich und ggf. noch ein Gasgrill drauf passen. Man hat hier einfach einen schönen Blick.
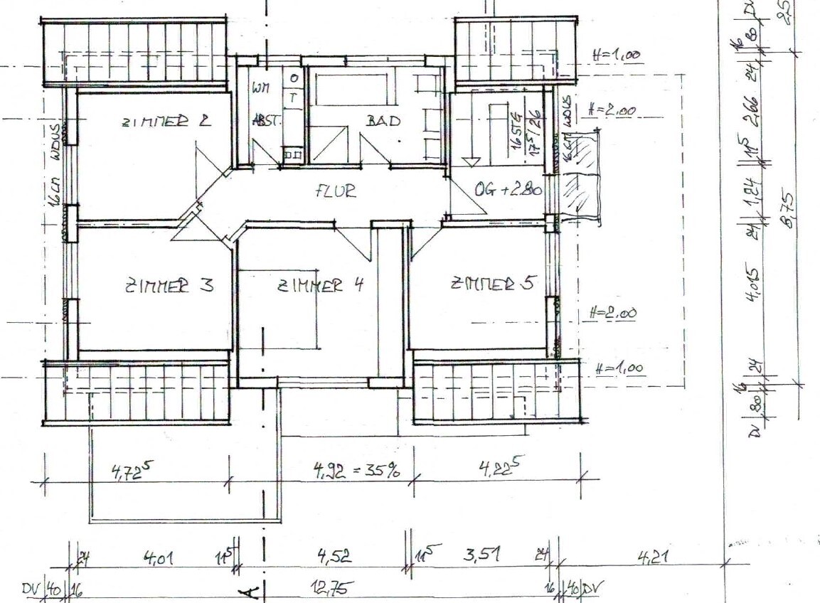
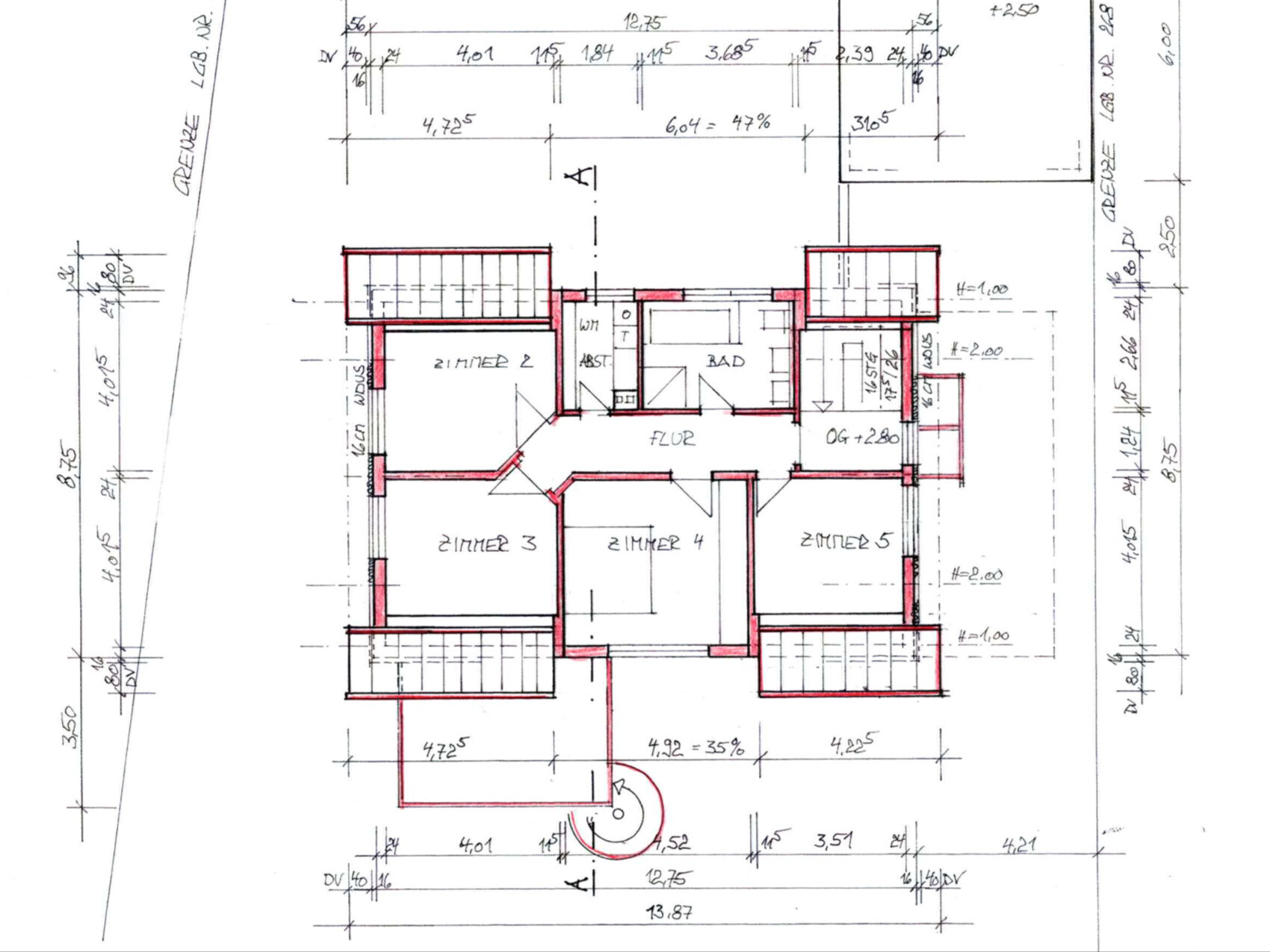
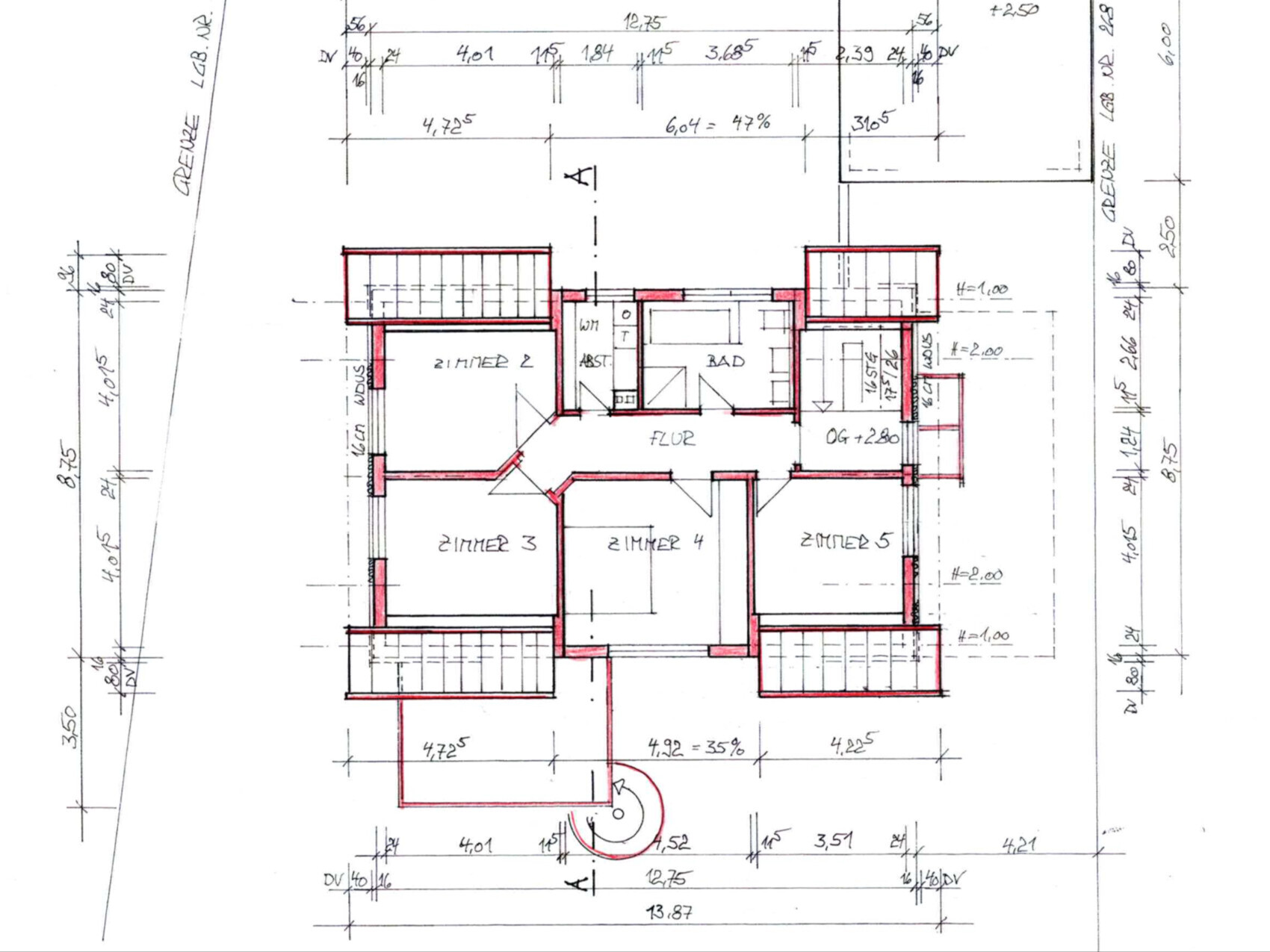
Obergeschoss:
Ist aktuell ein offiziell nicht ausgebautes Dachgeschoss ohne Kniestock. Dort wird durch die Aufstockung alles neu werden.
Uns gefällt die Planung ganz gut. Besser als eine vorgeschlagene Variante mit 3 Zimmer und Ankleide.
Nur bei den Zugängen zu Zimmer 2 und 3 suchen wir noch die optimale Variante und wir überlegen Zimmer 4 etwas kleiner zu machen, damit Zimmer 5 etwas größer wird.
Welches der Zimmer unser Schlafzimmer wird ist noch Gestand interner Diskussion.
Beim Bad sind wir uns aktuell nicht ganz sicher, ob es von der Größe als Familienbad mit ebenerdiger Dusche, Badewanne, zwei Waschbecken und WC passt.
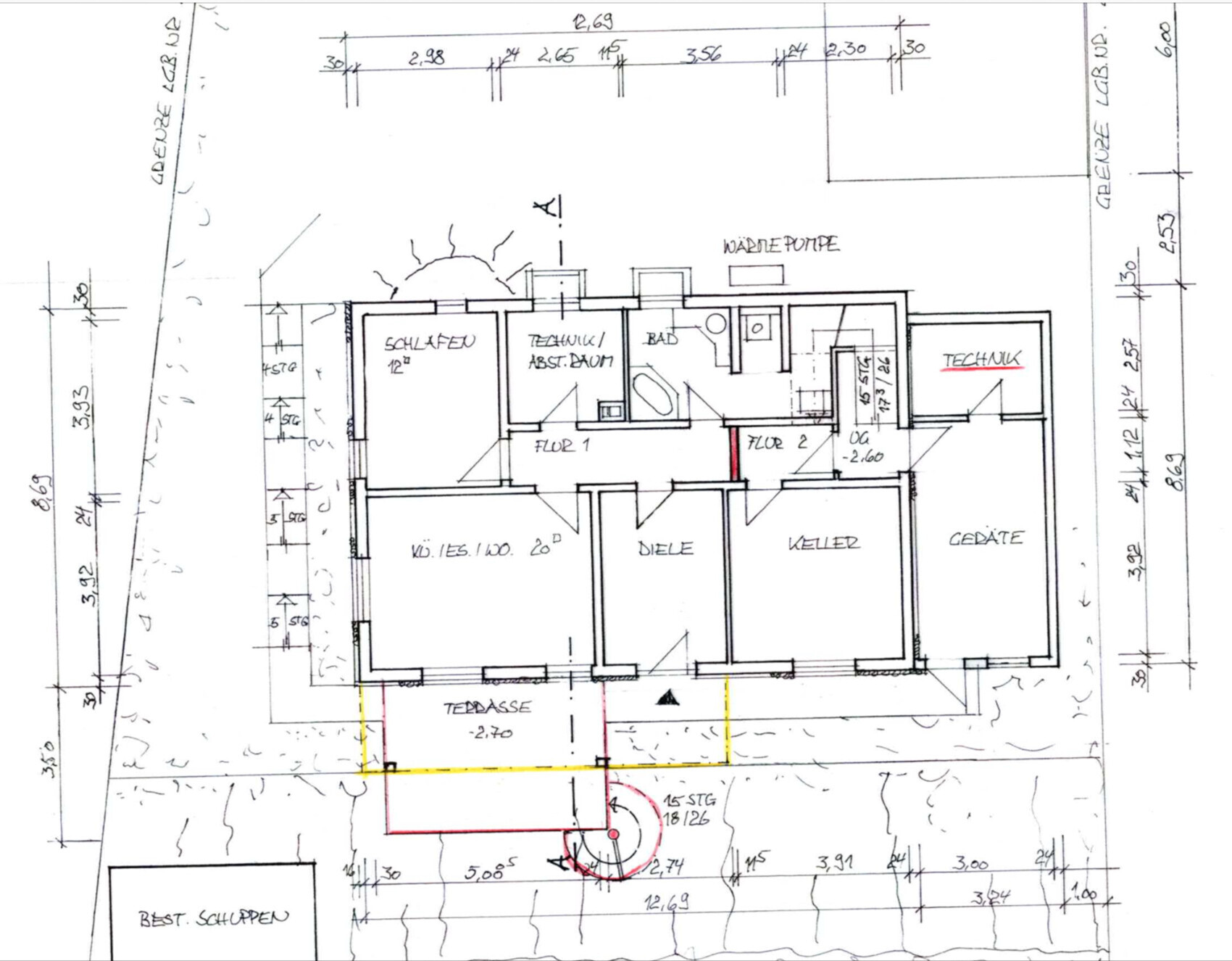
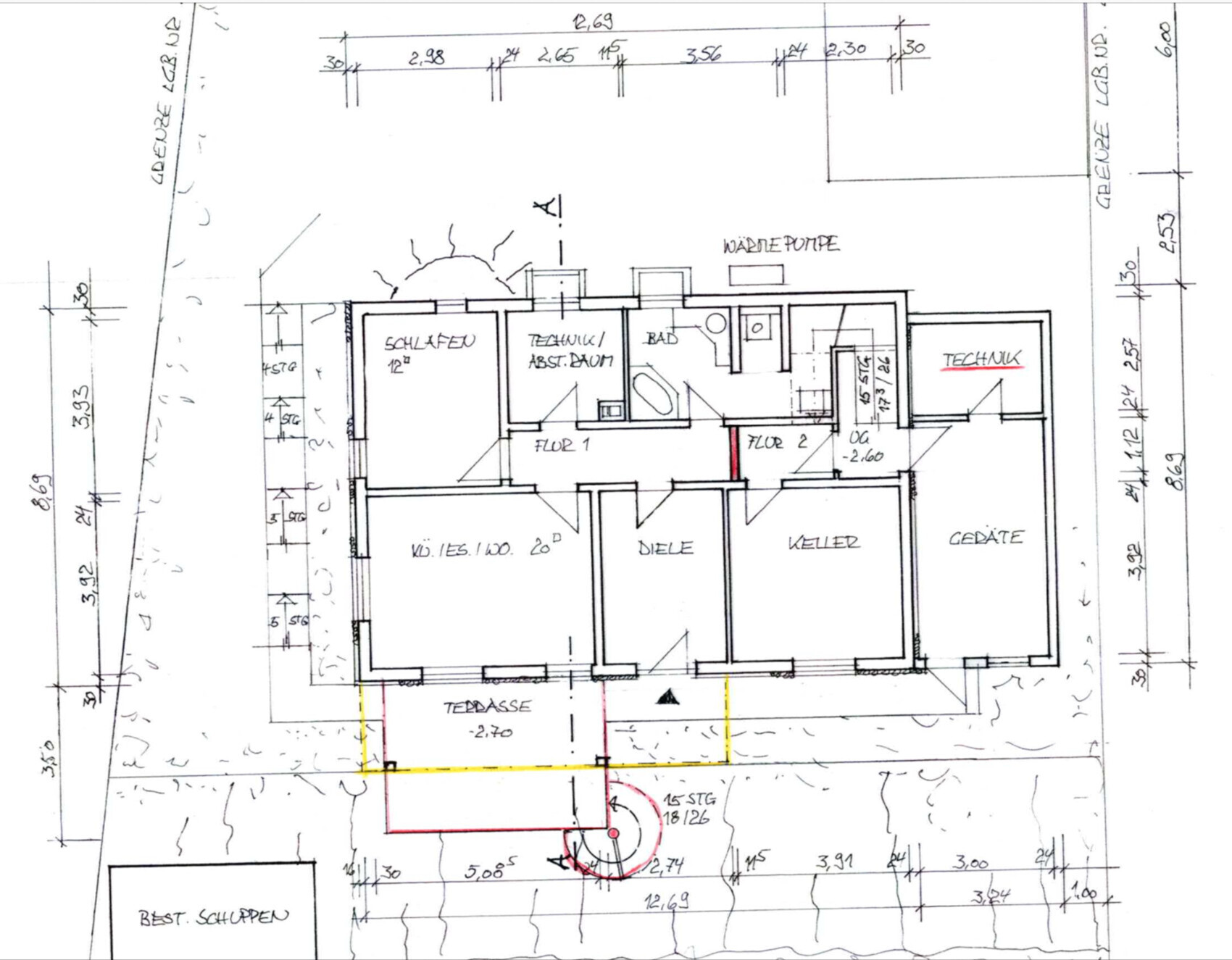
Untergeschoss:
Damit die Einliegerwohnung vermietet werden kann, wird der Technikraum in den Anbaukeller verlegt. Wir möchten zunächst so wenig wie möglich dort umbauen, da dieser Bereich als letztes renoviert wurde. Wichtig ist uns wir das aktuelle Schlafzimmer als Kellerraum zu erhalten. Den weiteren Umbau hat unser Architekt für den Bauantrag ausgeklammert, damit sich nicht zu viel verändert. Im Prinzip soll eine kleine Einliegerwohnung zum Vermieten entstehen.
Falls sich jemand dazu Gedanken machen möchte gerne. Wir hatten überlegt, dass wir langfristig das Bad in den aktuellen Heizkeller verlegen und wir das derzeitige Bad als zusätzlichen Keller und ggf. als drittes Klo mit guten Zugang vom Garten erhalten. Ansonsten ist uns nur ein abgetrennter Schlafraum wichtig.
Ich hoffe, der aktuelle Planungsstand wird verständlicher.
Das Bestandshaus steht auf einem Hanggrundstück. Von der Straße hat kommt man ebenerdig ins Erdgeschoss. Das Untergeschoss ist zu Garten hin ebenerdig.
Falls ich was vergessen haben sollte, bitte Bescheid geben. Danke






Ich versuche nochmal unsere Fragen geordneter zustellen.
Ich habe die aktuellen und alten Pläne nochmal neu hochgeladen und entsprechend beschriftet.
Es gibt leider nur den Grundriss aus dem ursprünglichen Baujahr und die aktuellen Pläne.
Ich habe die Umbauten der letzten Jahrzehnte in die alten Pläne mit blau und weiß eingezeichnet. So sieht es aktuell in dem Haus aus.
Die neuen Pläne sind die aktuelle Version für den Bauantrag.
Neben genereller Kritik / Vorschlägen / Ideen zu den aktuellen Umbauplänen freue ich mich über Input zu folgenden Fragen.
Ich schreibe einfach mal zu jedem Geschoss was uns gut gefällt und wozu wir noch Fragen haben.
Erdgeschoss:
Wohnzimmer und Zimmer 1 wollen wir wie im Bestand erhalten. Im Wohnzimmer sollen die Türen ungefähr wie in der Zeichnung neu verändert werden. Umbau der Küche zu einem großen Raum ist unser Wunsch gewesen. Verbindung Küche und Wohnzimmer soll halboffen sein. Zimmer 1 wird ein Arbeits-/Gästezimmer.
1) Wir möchten das aktuelle Bad verkleinern und möglichst Platz für einen Garderobenraum gewinnen sowie den Flur etwas verbreitern.
Uns und unserem Architekten ist bisher keine gute Lösung für ein Bad mit Dusche, WC, Waschbecken und ein Garderoben/ Abstellraum eingefallen. Er meint das würde zu schmal werden.
2) Mir ist die Diele hinter der Eingangstür etwas zu schmal. Wir haben das Gedankenspiel, etwas Platz durch Umbau der Podesttreppen in halbgewendelte Treppen zu gewinnen. An den Treppen muss auf jeden Fall was gemacht werden, aber um sich ein kompletter Umbau lohnt ist fraglich. Wie seht ihr das?
3) In der aktuellen Planung hat der Balkon eine Wendeltreppe in den Garten. Bisher aus unserer Sicht die beste Idee. Die Treppenplanung im Ursprungspost fanden wir ganz schlecht. Gibt es noch bessere Lösungen? Von unserem Architekten kommen wenig Vorschläge. Der Balkon soll so groß sein, damit eine kleine Loungeecke, ein großer Essbereich und ggf. noch ein Gasgrill drauf passen. Man hat hier einfach einen schönen Blick.
Obergeschoss:
Ist aktuell ein offiziell nicht ausgebautes Dachgeschoss ohne Kniestock. Dort wird durch die Aufstockung alles neu werden.
Uns gefällt die Planung ganz gut. Besser als eine vorgeschlagene Variante mit 3 Zimmer und Ankleide.
Nur bei den Zugängen zu Zimmer 2 und 3 suchen wir noch die optimale Variante und wir überlegen Zimmer 4 etwas kleiner zu machen, damit Zimmer 5 etwas größer wird.
Welches der Zimmer unser Schlafzimmer wird ist noch Gestand interner Diskussion.
Beim Bad sind wir uns aktuell nicht ganz sicher, ob es von der Größe als Familienbad mit ebenerdiger Dusche, Badewanne, zwei Waschbecken und WC passt.
Untergeschoss:
Damit die Einliegerwohnung vermietet werden kann, wird der Technikraum in den Anbaukeller verlegt. Wir möchten zunächst so wenig wie möglich dort umbauen, da dieser Bereich als letztes renoviert wurde. Wichtig ist uns wir das aktuelle Schlafzimmer als Kellerraum zu erhalten. Den weiteren Umbau hat unser Architekt für den Bauantrag ausgeklammert, damit sich nicht zu viel verändert. Im Prinzip soll eine kleine Einliegerwohnung zum Vermieten entstehen.
Falls sich jemand dazu Gedanken machen möchte gerne. Wir hatten überlegt, dass wir langfristig das Bad in den aktuellen Heizkeller verlegen und wir das derzeitige Bad als zusätzlichen Keller und ggf. als drittes Klo mit guten Zugang vom Garten erhalten. Ansonsten ist uns nur ein abgetrennter Schlafraum wichtig.
Ich hoffe, der aktuelle Planungsstand wird verständlicher.
Das Bestandshaus steht auf einem Hanggrundstück. Von der Straße hat kommt man ebenerdig ins Erdgeschoss. Das Untergeschoss ist zu Garten hin ebenerdig.
Falls ich was vergessen haben sollte, bitte Bescheid geben. Danke
Also, zum WC im EG: Ich finde das völlig ok, wie der Architekt das eingezeichnet hat. So einen separaten Raum finde ich befremdlich. Wir haben zwar auch einen separaten Raum, der ist aber nur 1qm klein, sodass er quasi nur Schrank ist.
Ansonsten kann man ja auch hier die 2Qm mit dem kleinen Fenster abteilen und die linke Seite für das Dusch-WC nehmen. Es mus ja auch keine klobige Dusche rein, sondern ggf. etwas mit Rundung, sodass der Raum gefälliger wird.
Ich persönlich halte von einer bewussten Vergrößerung für eine Vermietung nicht so viel.
Zudem man hier ja einen immensen Aufwand betreibt hinsichtlich einen Kelleranbau, Versetzung der Hausanschlüsse sowie eine Dacherhöhung.
Und es gibt den nicht schön zu redenden Umstand, dass man Mieter im Haus hat. Der benutzt nicht nur die Auffahrt mit, sondern hat auch Berührungspunkte zum Garten. Hier ja sogar den Eingang. Und vor die Fenster könnt Ihr auch keine Mauer setzen.
Ds hat halt neben den Kosten viele Nachteile:
So mal im Adamskostüm die Wendeltreppe runter zum Pool ist da nicht.
Garten Einblick hat der Mieter inklusive, bei Kindern oder Frau ist das nicht so schön. Man kann sich beobachtet fühlen. Mieter oder Mieterin darf quasi den ganzen schönen Tag vor der Haustür verweilen oder am Fenster und Euch zuschauen. Da kannst Du gar nichts gegen machen.
Ich persönlich halte aber auch nichts von einem Eigenheim, wo mich etwas, sei es ein Balkon oder Treppe vom Garten trennt. Die Treppe ist und bleibt eine Barriere. Mal schnell in den Garten, während Essen auf dem Herd brutzelt, ist nicht. Liegt man auf der Liege oder puzzelt im Garten, klingelt das Handy, was oben liegt.
Eine ganz andere Nummer wird es, wenn noch Kinder im Spiel sind: da packt man ein Körbchen, wenn Kind 1 oder 2 in den Garten will: Kekse und Saft.. dann ist man unten, muss das Kleinkind auf Toi.. will man dann das andere Kind mit nach oben nehmen Oder nur das eine?
@haydee kann es besser erzählen.
Mein Rat:
verzichtet auf den Untermieter und lasst den aufwändigen Dachausbau sein. Baut Euch das UG für Euch aus, nehmt dort die Küche und das WZ mit rein, Schlafebene dann im EG, Dach als Reserve für Arbeit und Hobby. Schafft Euch einen Lebensraum mit Garten, Outdoor bedeutet mehr als Gasgrill, und Privatsphäre ist auch mehr ein ein Schlafzimmer im DG.
Ansonsten kann man ja auch hier die 2Qm mit dem kleinen Fenster abteilen und die linke Seite für das Dusch-WC nehmen. Es mus ja auch keine klobige Dusche rein, sondern ggf. etwas mit Rundung, sodass der Raum gefälliger wird.
Traumhaus schrieb:Der eine braucht die Mieteinnahmen, der andere denkt praktisch.
Im Prinzip soll eine kleine Einliegerwohnung zum Vermieten entstehen.
Ich persönlich halte von einer bewussten Vergrößerung für eine Vermietung nicht so viel.
Zudem man hier ja einen immensen Aufwand betreibt hinsichtlich einen Kelleranbau, Versetzung der Hausanschlüsse sowie eine Dacherhöhung.
Und es gibt den nicht schön zu redenden Umstand, dass man Mieter im Haus hat. Der benutzt nicht nur die Auffahrt mit, sondern hat auch Berührungspunkte zum Garten. Hier ja sogar den Eingang. Und vor die Fenster könnt Ihr auch keine Mauer setzen.
Ds hat halt neben den Kosten viele Nachteile:
So mal im Adamskostüm die Wendeltreppe runter zum Pool ist da nicht.
Garten Einblick hat der Mieter inklusive, bei Kindern oder Frau ist das nicht so schön. Man kann sich beobachtet fühlen. Mieter oder Mieterin darf quasi den ganzen schönen Tag vor der Haustür verweilen oder am Fenster und Euch zuschauen. Da kannst Du gar nichts gegen machen.
Ich persönlich halte aber auch nichts von einem Eigenheim, wo mich etwas, sei es ein Balkon oder Treppe vom Garten trennt. Die Treppe ist und bleibt eine Barriere. Mal schnell in den Garten, während Essen auf dem Herd brutzelt, ist nicht. Liegt man auf der Liege oder puzzelt im Garten, klingelt das Handy, was oben liegt.
Traumhaus schrieb:
Anzahl der Personen, Alter 2, Anfang 30
Traumhaus schrieb:
mit Kindern
Eine ganz andere Nummer wird es, wenn noch Kinder im Spiel sind: da packt man ein Körbchen, wenn Kind 1 oder 2 in den Garten will: Kekse und Saft.. dann ist man unten, muss das Kleinkind auf Toi.. will man dann das andere Kind mit nach oben nehmen Oder nur das eine?
@haydee kann es besser erzählen.
Mein Rat:
verzichtet auf den Untermieter und lasst den aufwändigen Dachausbau sein. Baut Euch das UG für Euch aus, nehmt dort die Küche und das WZ mit rein, Schlafebene dann im EG, Dach als Reserve für Arbeit und Hobby. Schafft Euch einen Lebensraum mit Garten, Outdoor bedeutet mehr als Gasgrill, und Privatsphäre ist auch mehr ein ein Schlafzimmer im DG.
K
K a t j a27.03.25 06:45Traumhaus schrieb:
Wir möchten ein Bestandshaus aus den 60er Sanieren, umbauen und Aufstocken.Ja, sag nochmal warum?! Wenn ich das richtig verstanden habe, ist das UG jetzt schon als Wohnraum mit Küche nutzbar und hat die Gartenanbindung. Ihr wollt jetzt ein Geschoss drauf setzen, die Wohnräume eine Etage höher holen, das Dach teuer ausbauen und dann unten vermieten? Dann ärgert Ihr Euch über mangelnden Gartenzugang, obwohl dieser dann hauptsächlich dem Mieter zugänglich sein dürfte?
Ernsthaft?
Das ist absurd. Warum genau ist das Haus im jetzigen Zustand für Euch ungeeignet?
Ähnliche Themen