ᐅ Dachgeschoss: Kniestock / Dachneigung / Luftraum wirtschaftlich planen
Erstellt am: 28.08.19 18:53
A
allstar83A
allstar8328.08.19 18:53Hallo zusammen,
wir stehen gerade vor der Entscheidung wie wir unserer Dachgeschoss gestalten möchten.
Da wir eigentlich alle "benötigten" Räume im EG haben, werden dort lediglich 3 Räume als Ausbaureserve vorgesehen sein: Lager, mögliches Gästezimmer/Kinderzimmer/Büro & Hobbyraum.
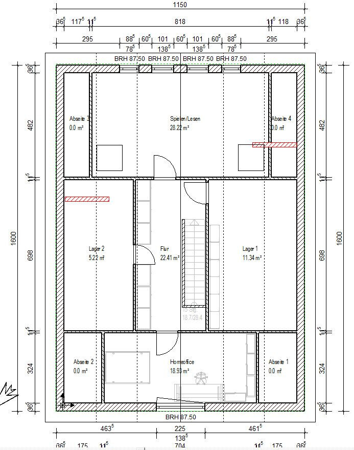
Der Grundriss (14,5 * 10,5) ist so groß, dass uns eigentlich schwer erreichbare schräge Dach-Quadratmeter im DG "egal" sind.
Vom Dach her sind min. 30 Grad und Satteldach vorgegeben.
Meine Frage ist, welche Variante die finanziell beste Lösung im Verhältnis zu gut nutzbarem Raum wäre:
Kosten für einen gedämmten Luftraum, kann ich nicht einschätzen - müsste da der Estrich auch bis an die Dachkante gezogen werden?
Ich neige zu Variante 3 - da das Dach eh sehr groß ist.
Vielen Dank wenn hier jemand etwas Input hat.
wir stehen gerade vor der Entscheidung wie wir unserer Dachgeschoss gestalten möchten.
Da wir eigentlich alle "benötigten" Räume im EG haben, werden dort lediglich 3 Räume als Ausbaureserve vorgesehen sein: Lager, mögliches Gästezimmer/Kinderzimmer/Büro & Hobbyraum.
Der Grundriss (14,5 * 10,5) ist so groß, dass uns eigentlich schwer erreichbare schräge Dach-Quadratmeter im DG "egal" sind.
Vom Dach her sind min. 30 Grad und Satteldach vorgegeben.
Meine Frage ist, welche Variante die finanziell beste Lösung im Verhältnis zu gut nutzbarem Raum wäre:
- Dachneigung: 30 Grad + 0,5m Kniestock + 0m Luftraum (also gedämmte Einrückung von Dachkante aus)
- Dachneigung: 30 Grad + 1m Kniestock + 0m Luftraum
- Dachneigung: 38 Grad + 0m Kniestock + 0m Luftraum
- Dachneigung: 30 Grad + 0m Kniestock + 1m hoher eingerückter, gedämmter "Luftraum" (Dr?)
Kosten für einen gedämmten Luftraum, kann ich nicht einschätzen - müsste da der Estrich auch bis an die Dachkante gezogen werden?
Ich neige zu Variante 3 - da das Dach eh sehr groß ist.
Vielen Dank wenn hier jemand etwas Input hat.
Warum dann so steil werden und 38° wählen?
Wir haben hier gerade die Grundrissdiskussion von Chrisi1906, der auch einen Bungalow mit Dach bauen möchte.
Einer meiner Entwürfe hat dieses Dach als Ergebnis:

Es sind 28°, 0 cm Kniestock, allerdings 1150 cm breit.
Bei dir 1050 cm breit, du musst allerdings mind. 30° wählen, das solltest du dir mal aufzeichnen, welche Flächen dann zustande kommen. Sie dürften in dem Bereich des oben gezeigten Daches kommen.
Wir haben hier gerade die Grundrissdiskussion von Chrisi1906, der auch einen Bungalow mit Dach bauen möchte.
Einer meiner Entwürfe hat dieses Dach als Ergebnis:
Es sind 28°, 0 cm Kniestock, allerdings 1150 cm breit.
Bei dir 1050 cm breit, du musst allerdings mind. 30° wählen, das solltest du dir mal aufzeichnen, welche Flächen dann zustande kommen. Sie dürften in dem Bereich des oben gezeigten Daches kommen.
A
allstar8328.08.19 19:22Vielen Dank.
Und von der finanziellen Seite betrachtet... Was wäre da wohl am günstigsten von den o.g. Optionen. 30Grad ist halt minimale Dachneigung.
Und von der finanziellen Seite betrachtet... Was wäre da wohl am günstigsten von den o.g. Optionen. 30Grad ist halt minimale Dachneigung.
allstar83 schrieb:
Der Grundriss (14,5 * 10,5) ist so groß, dass uns eigentlich schwer erreichbare schräge Dach-Quadratmeter im DG "egal" sind.
Vom Dach her sind min. 30 Grad und Satteldach vorgegeben.Von welchem Planungsstand zu https://www.hausbau-forum.de/threads/l-Bungalow-mit-120qm-Aufteilung-etc.31712/ reden wir denn aktuell ?Aufgezwungene Dachneigung, keine richtige Lust auf diese Räume, keine Abteilbarkeit der Raumreserve: das klingt für mich so ganz und gar nicht nach Sinn von mehr als unvermeidlich zu investieren. Folglich würde ich die Mindestdachneigung auch nicht übererfüllen. Ein Staubsaugerkniestock könnte hier notfalls vollständig als Drempel (was Du wohl mit "Luftraum" meinst) erzeugt werden.
https://www.instagram.com/11antgmxde/
https://www.linkedin.com/company/bauen-jetzt/
allstar83 schrieb:
Vielen Dank.
Und von der finanziellen Seite betrachtet... Was wäre da wohl am günstigsten von den o.g. Optionen. 30Grad ist halt minimale Dachneigung.Keinen Bungalow zu bauen!
Wir haben 28 Grad und das mit Luftraum. Die Dachschräge ist megahoch... mit gefälligem 22 Grad-Dach hat das nichts zu tun.
Ähnliche Themen