ᐅ Bungalow Grundriss ~16x9.5m ( außen ) in 1000m² mit Altbestand
Erstellt am: 25.06.19 09:14
M
micric3
Hallo Forengemeinde,
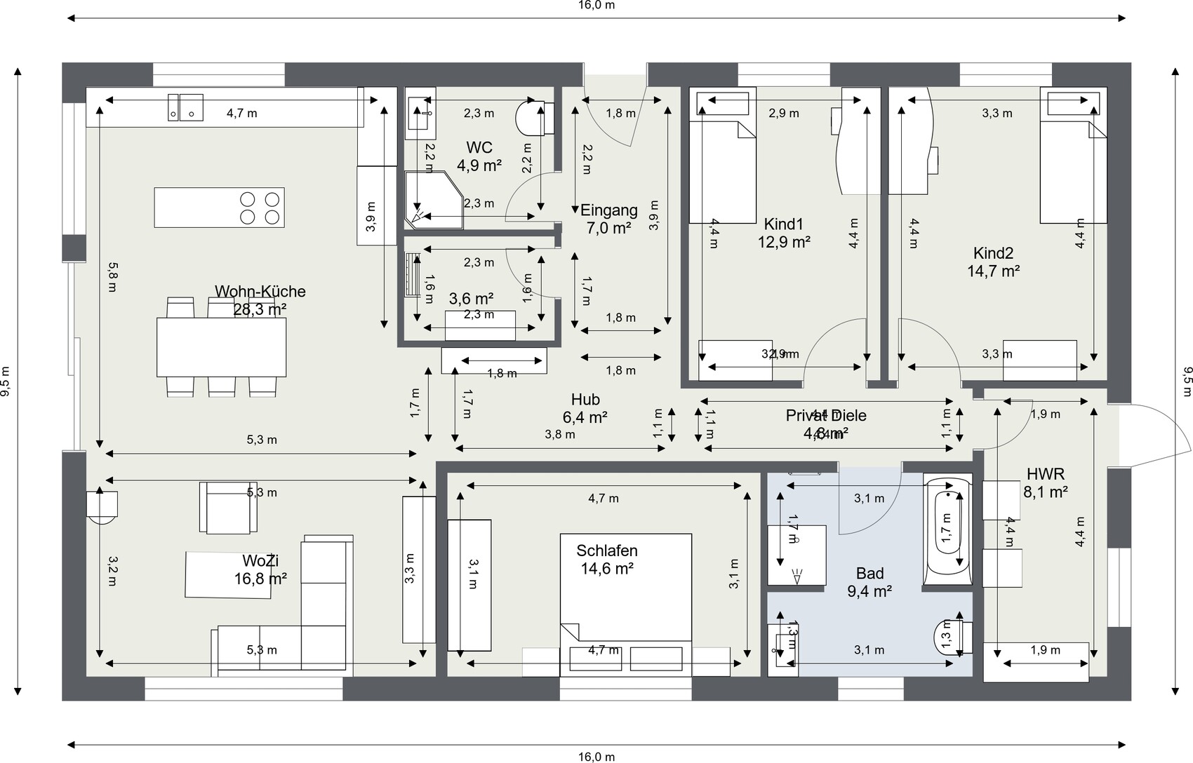
nachdem wir nun noch ein paar mehr Ideen sammeln konnten - und ich aus vorherigen Beiträgen gutes Feedback erhalten und versucht habe einzuarbeiten - bitte ich euch um euer Feedback zum aktuellen Grundriss bzw. einer generellen Meinung zum Bungalow in unserem 1000m² Grundstück mit Altbestand.
Der Grundriss wurde mit RoomSketche erstellt. Ich habe versucht relativ viele Möbel ( Küche fehlt ) soweit als Referenz einzuarbeiten. Fenster für Schlafzimmer und Bad sind noch nicht passgenau, habe dafür auch noch keine Ideen.
Im Anhang
1.) Bild Grundstück + Ausrichtung
2.) Original des BU nachdem ich dent Entwurf gestaltet/abgeändert habe
3.) Mein Entwurf ( mit RoomSketcher )
Bebauungsplan/Einschränkungen
Größe des Grundstücks: 1000m²
Außenmaße des Hauses: 15,87 m x 9,50 m ( die sind durch den BU vorgegeben um möglichst nahe am Preis zu bleiben )
Hang: Nein
Anzahl Stellplatz: 0
Geschossigkeit: Bungalow
Dachform: Walmdach oder Sateldach ( BU hat im Preiss Walmdach )
Ausrichtung: Eingang West, Wohnzimmer Südostausrichtung, Esszimmer Südwestausrichtung
Maximale Höhen/Begrenzungen
weitere Vorgaben: muss sich an Altbestand anpassen
Anforderungen der Bauherren
Anzahl der Personen, Alter: 4 Personen (2x 40Jahre, 2x 3Jahre)
Büro: Im Nebengebäude
Schlafgäste pro Jahr: Max. 2
offene oder geschlossene Architektur: unentschlossen
konservativ oder moderne Bauweise: egal
offene Küche, Kochinsel: Schiebetür, L oder U Küche vermutlich
Anzahl Essplätze: 4 in Küche ggf. 6-8 im Wohnzimmer
Kamin: ggf. Schwedenofen
Garage, Carport: Auf Zufahrtsweg
Hausentwurf
Von wem stammt die Planung: orientiert am Bungalow 131 Grundriss von Town & Country. Entwurf selbts geplant mit RoomSketcher
-Planer eines Bauunternehmens
Was gefällt besonders? Warum?
- Zugang über West
- schlicht & kompakt
Preisschätzung lt Architekt/Planer: 215.000
Persönliches Preislimit fürs Haus, inkl Ausstattung: 250.000
favorisierte Heiztechnik: Luft-Wasser-Wärmepumpe ( Entweder Vaillant aroSplit oder Vaillant recoCompact )
Wenn Ihr verzichten müsst, auf welche Details/Ausbauten
-könnt Ihr verzichten: Größe Wohnzimmer
-könnt Ihr nicht verzichten: 2tes Bad
Warum ist der Entwurf so geworden, wie er jetzt ist?
- Lage im Grundstücks
- Lage zum vorhandenen Nebengebäude
Was ist die wichtigste/grundlegende Frage zum Grundriss in 130 Zeichen zusammengefasst?
- Ist die Westausrichtung der Kinderzimmer sinnvoll gegenüber einer Ostausrichtung?
- Ist das Schlafzimmer zu schmal,da das Bett ~ 2x2m ist
- Küche mit eigenem kleinen Essplatz?
- Größe und Anzahl der Fenster für Wohnzimmer in Südostausrichtung
- Wie sollten die Möbel im Wohnzimmer gestellt werden?
- Sollte Wohnzimmer und Esszimmer getauscht werden? ( SO <-> SW Ausrichtung? )
--> Esszimmer hat Südwestausrichtung, damit man sieht wer kommt
- Ist es besser 1x bodentifes Fensters ( welche Größe ) in Kinderzimmer oder 2x Fenster ins Kinderzimmer?


nachdem wir nun noch ein paar mehr Ideen sammeln konnten - und ich aus vorherigen Beiträgen gutes Feedback erhalten und versucht habe einzuarbeiten - bitte ich euch um euer Feedback zum aktuellen Grundriss bzw. einer generellen Meinung zum Bungalow in unserem 1000m² Grundstück mit Altbestand.
Der Grundriss wurde mit RoomSketche erstellt. Ich habe versucht relativ viele Möbel ( Küche fehlt ) soweit als Referenz einzuarbeiten. Fenster für Schlafzimmer und Bad sind noch nicht passgenau, habe dafür auch noch keine Ideen.
Im Anhang
1.) Bild Grundstück + Ausrichtung
2.) Original des BU nachdem ich dent Entwurf gestaltet/abgeändert habe
3.) Mein Entwurf ( mit RoomSketcher )
Bebauungsplan/Einschränkungen
Größe des Grundstücks: 1000m²
Außenmaße des Hauses: 15,87 m x 9,50 m ( die sind durch den BU vorgegeben um möglichst nahe am Preis zu bleiben )
Hang: Nein
Anzahl Stellplatz: 0
Geschossigkeit: Bungalow
Dachform: Walmdach oder Sateldach ( BU hat im Preiss Walmdach )
Ausrichtung: Eingang West, Wohnzimmer Südostausrichtung, Esszimmer Südwestausrichtung
Maximale Höhen/Begrenzungen
weitere Vorgaben: muss sich an Altbestand anpassen
Anforderungen der Bauherren
Anzahl der Personen, Alter: 4 Personen (2x 40Jahre, 2x 3Jahre)
Büro: Im Nebengebäude
Schlafgäste pro Jahr: Max. 2
offene oder geschlossene Architektur: unentschlossen
konservativ oder moderne Bauweise: egal
offene Küche, Kochinsel: Schiebetür, L oder U Küche vermutlich
Anzahl Essplätze: 4 in Küche ggf. 6-8 im Wohnzimmer
Kamin: ggf. Schwedenofen
Garage, Carport: Auf Zufahrtsweg
Hausentwurf
Von wem stammt die Planung: orientiert am Bungalow 131 Grundriss von Town & Country. Entwurf selbts geplant mit RoomSketcher
-Planer eines Bauunternehmens
Was gefällt besonders? Warum?
- Zugang über West
- schlicht & kompakt
Preisschätzung lt Architekt/Planer: 215.000
Persönliches Preislimit fürs Haus, inkl Ausstattung: 250.000
favorisierte Heiztechnik: Luft-Wasser-Wärmepumpe ( Entweder Vaillant aroSplit oder Vaillant recoCompact )
Wenn Ihr verzichten müsst, auf welche Details/Ausbauten
-könnt Ihr verzichten: Größe Wohnzimmer
-könnt Ihr nicht verzichten: 2tes Bad
Warum ist der Entwurf so geworden, wie er jetzt ist?
- Lage im Grundstücks
- Lage zum vorhandenen Nebengebäude
Was ist die wichtigste/grundlegende Frage zum Grundriss in 130 Zeichen zusammengefasst?
- Ist die Westausrichtung der Kinderzimmer sinnvoll gegenüber einer Ostausrichtung?
- Ist das Schlafzimmer zu schmal,da das Bett ~ 2x2m ist
- Küche mit eigenem kleinen Essplatz?
- Größe und Anzahl der Fenster für Wohnzimmer in Südostausrichtung
- Wie sollten die Möbel im Wohnzimmer gestellt werden?
- Sollte Wohnzimmer und Esszimmer getauscht werden? ( SO <-> SW Ausrichtung? )
--> Esszimmer hat Südwestausrichtung, damit man sieht wer kommt
- Ist es besser 1x bodentifes Fensters ( welche Größe ) in Kinderzimmer oder 2x Fenster ins Kinderzimmer?
micric3 schrieb:
da wir uns vermutlich für einen Offenen Koch/Wohnbereich entscheiden, kann die Küche ja auch wieder in den Westen. Licht sollte vorhanden sein.Der Unterschied ist der, dass Du hier den Ruhebereich als Durchgangsraum machst.
ypg schrieb:
Der Unterschied ist der, dass Du hier den Ruhebereich als Durchgangsraum machst.Ist ja bei einem offenen Design - in diesem falle - nicht anders möglich. theoretisch läuft aber niemand durch Wohnzimmer, da die Lauflinie hinterm Wohnbereich liegt
Ich könnte den aktuellen Grundriss auch mit Trennwand fürs Wohnzimmer machen ( würde hier dann aber die Sitzanordnung verändern und planmässig Süd noch ein Fenster reinnehmen.
PS: Glastür nur zur Veranschaulichung
micric3 schrieb:
Ich finde dieses 3D feauture gut, um ein Gefühl für die Räume zu bekommen.Ich finde das 3D Feature schlecht, weil es das Gefühl für Räume erkennbar nicht verbessert: ich (als Preuße, also aus einer Kultur, in der das Fensterln unüblich ist) erkenne auch in 2D pfeilgerade sofort, daß das Schlafzimmer keine Tür hat *sauber Schenkel klopfen lach*Und ebenfalls ist für mich ratzfatz erkennbar, warum es keine Tür hat: in der linken Ecke wäre sie ungünstig, in der rechten auch, und dazwischen schlüge sie am Bett an :-(
https://www.instagram.com/11antgmxde/
https://www.linkedin.com/company/bauen-jetzt/
Ähnliche Themen