Ich finde den Ansatz von @kbt09 gut. Natürlich ist es "nur" ein Ansatz, ein Bsp, wie man es mit vorhandenen Informationen ansetzen kann.
Auch ich habe mir Gedanken gemacht und auch an zwei versetzte Rechtecke gedacht, sodass Innenhöfe entstehen. Ich würde aber auch das Schlafzimmer mehr in Rtg Garten sehen.
Das Spielen mit den Räumen und Möglichkeiten bringt einem schnell die Sichtweise, dass bestimmte Räume sich zu viel Raum in den Außenwänden nehmen, wie @kbt09 schon sagt. Dennoch fehlen wahnsinnig viel Informationen. Zb die Länge des Nachbargebäudes... wie viel Abstand zu dem Nordgrundstück, wie ist der Grundflächenzahl und, und.... Auch wenn das Bauamt Aussagen trifft, kann ein guter Architekt bei einem Problemgrundstück Möglichkeiten erkennen, die wir so keinesfalls wissen können.
Außerdem bleibt das Fragezeichen, ob ein Gästezimmer nicht doch angebracht wäre oder ein Homeoffice. Soll das Haus barrierefrei gebaut werden? Was steht auf der anderen Seite der Mauer? Zum Herumspielen und Experimentieren finde ich so eine Herausforderung allemal besser als 20 x 30 Nord-Westausrichtung, aber ich würde doch gern alle Spielregeln kenne, bevor man sich Gedanken macht, die nur die Hälfte des Möglichen beinhalten kann.
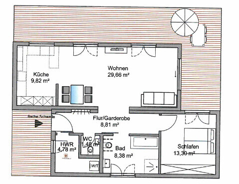
Zum Pultdachhaus: Ankleide wäre verzichtbar. Flur kann mehr Fläche vertragen. statt des Bades den Hauswirtschaftsraum, Schlafen statt Hauswirtschaftsraum, in der Mitte Bad. Ich könnte mir auch ein Atrium an der Mauer im Haus vorstellen (Bad mit Außenbereich ), bissel größer müsste allerdings die Grundfläche des Hauses werden. Aber noch ist ja alles offen
Auch ich habe mir Gedanken gemacht und auch an zwei versetzte Rechtecke gedacht, sodass Innenhöfe entstehen. Ich würde aber auch das Schlafzimmer mehr in Rtg Garten sehen.
Das Spielen mit den Räumen und Möglichkeiten bringt einem schnell die Sichtweise, dass bestimmte Räume sich zu viel Raum in den Außenwänden nehmen, wie @kbt09 schon sagt. Dennoch fehlen wahnsinnig viel Informationen. Zb die Länge des Nachbargebäudes... wie viel Abstand zu dem Nordgrundstück, wie ist der Grundflächenzahl und, und.... Auch wenn das Bauamt Aussagen trifft, kann ein guter Architekt bei einem Problemgrundstück Möglichkeiten erkennen, die wir so keinesfalls wissen können.
Außerdem bleibt das Fragezeichen, ob ein Gästezimmer nicht doch angebracht wäre oder ein Homeoffice. Soll das Haus barrierefrei gebaut werden? Was steht auf der anderen Seite der Mauer? Zum Herumspielen und Experimentieren finde ich so eine Herausforderung allemal besser als 20 x 30 Nord-Westausrichtung, aber ich würde doch gern alle Spielregeln kenne, bevor man sich Gedanken macht, die nur die Hälfte des Möglichen beinhalten kann.
Zum Pultdachhaus: Ankleide wäre verzichtbar. Flur kann mehr Fläche vertragen. statt des Bades den Hauswirtschaftsraum, Schlafen statt Hauswirtschaftsraum, in der Mitte Bad. Ich könnte mir auch ein Atrium an der Mauer im Haus vorstellen (Bad mit Außenbereich ), bissel größer müsste allerdings die Grundfläche des Hauses werden. Aber noch ist ja alles offen
Ja, da stimme ich dir voll zu, ypg, auch zu dem, was du in dem anderen Thread schon geschrieben hast. Es fehlen noch zu viele Parameter. Vor allem Parameter, die tatsächlich ein Architekt auch aus Bebauungsplänen etc. herauslesen kann.
So Sachen wie ein drittes Zimmer, auch als Gästezimmer nutzbar, fände ich z. B. auch sinnvoll.
Mir bringt halt Grundrisse planen Spaß und ich wollte vor allem mal die Möglichkeit prüfen, ob man alles grundsätzlich so anlegen kann, dass alle Räume Fenster haben.
So Sachen wie ein drittes Zimmer, auch als Gästezimmer nutzbar, fände ich z. B. auch sinnvoll.
Mir bringt halt Grundrisse planen Spaß und ich wollte vor allem mal die Möglichkeit prüfen, ob man alles grundsätzlich so anlegen kann, dass alle Räume Fenster haben.
F
frosch00620.11.14 00:50Hallo,
ich hab lane nichtsmehr geschrieben, denn ich möchte erst die Sache mit dem Bauamt abklären, wie was und wo genau gebaut werden darf.
Leider hab ich erst den Termin für den 16.12.2014 bekommen.
ma
ich hab lane nichtsmehr geschrieben, denn ich möchte erst die Sache mit dem Bauamt abklären, wie was und wo genau gebaut werden darf.
Leider hab ich erst den Termin für den 16.12.2014 bekommen.
ma
F
frosch00620.12.14 15:30Hallo,
Ich war diese Woche auf dem Bauamt. So richtige Aussagen wurden nicht getroffen. Ich soll mal Vorschläge bringen und dann wird man es sich in einer Teambesprechung ansehen.
Problem ist, es gibt offiziell keine Wohnraum Bebauung nach diesem Plan. Es gibt aber Ausnahmen und es könnte auch hier so eine Ausnahme getroffen werden, das hängt aber vom geplanten Objekt ab. Es soll sich harmonisch ins Umfeld einfügen und schlicht gehalten werden.
Das Problem mit der Grenzbebauung an die Brandwand auf der Südseite wurde ebenfalls angesprochen, sie erkennen natürlich auch die Probleme und sind nicht prinzipiell gegen eine Teilweise abgerückte Bebauung. Soll heißen, es könnte schon eine U-Form, oder zwei versetzte Rechtecke Anwendung finden, wenn es gut verkauft wird. Auch eine L-Form ist denkbar, jedoch muss der lange Schenkel an der Brandmauer ausgeführt werden.
Von der Dachform, wurde sich gegen ein versetztes Dach ausgesprochen, es wirke zu unruhig. Mann könne ich bei diesem Objekt ein Flachdach vorstellen.
Am kann als grobe Richtung von maximal 9 Meter Breite ausgehen und sollte von der Gartenseite aus mit dem Nachbargebäude abschließen.
Auch sollen Parkmöglichkeiten berücksichtigt werden.
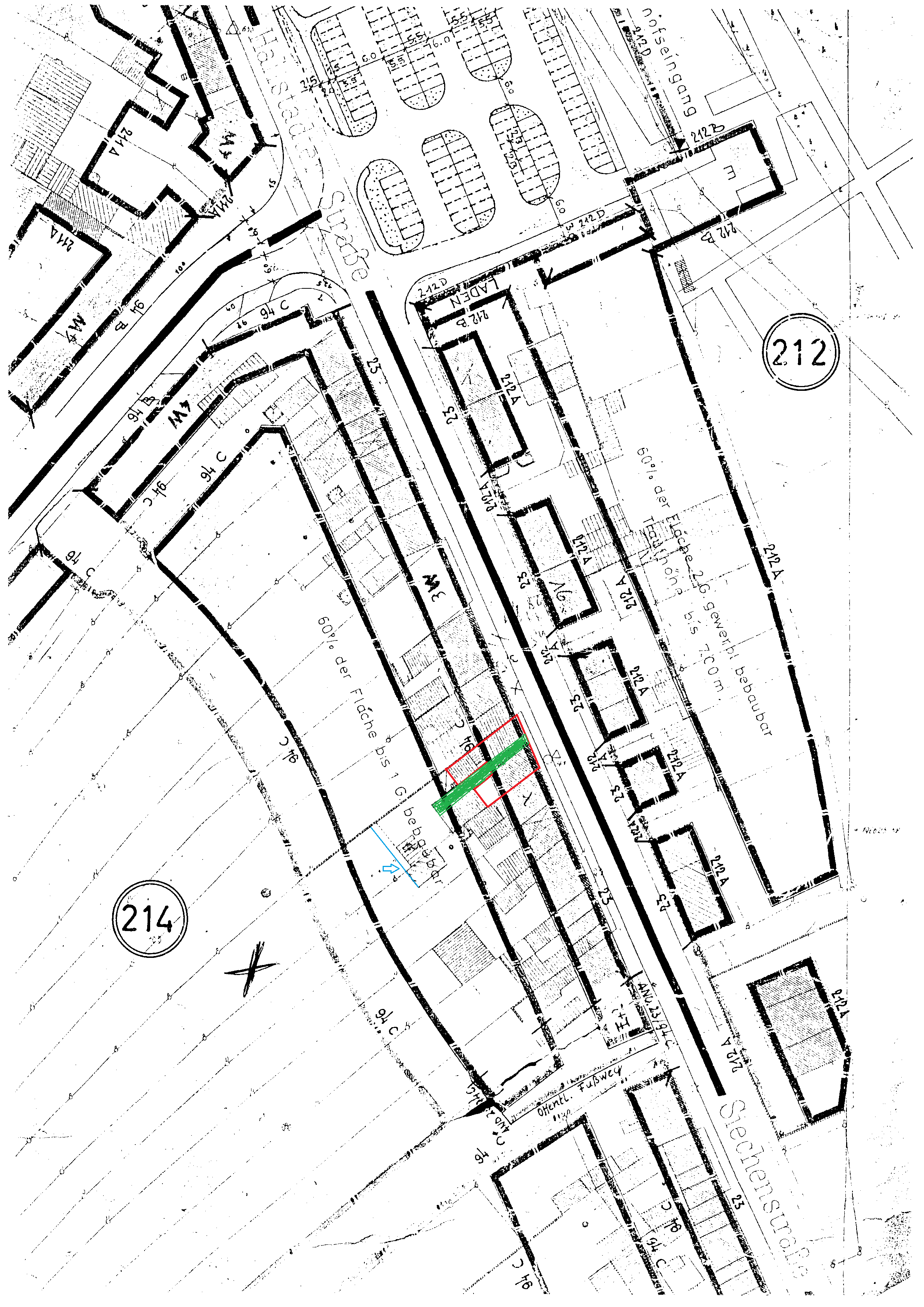
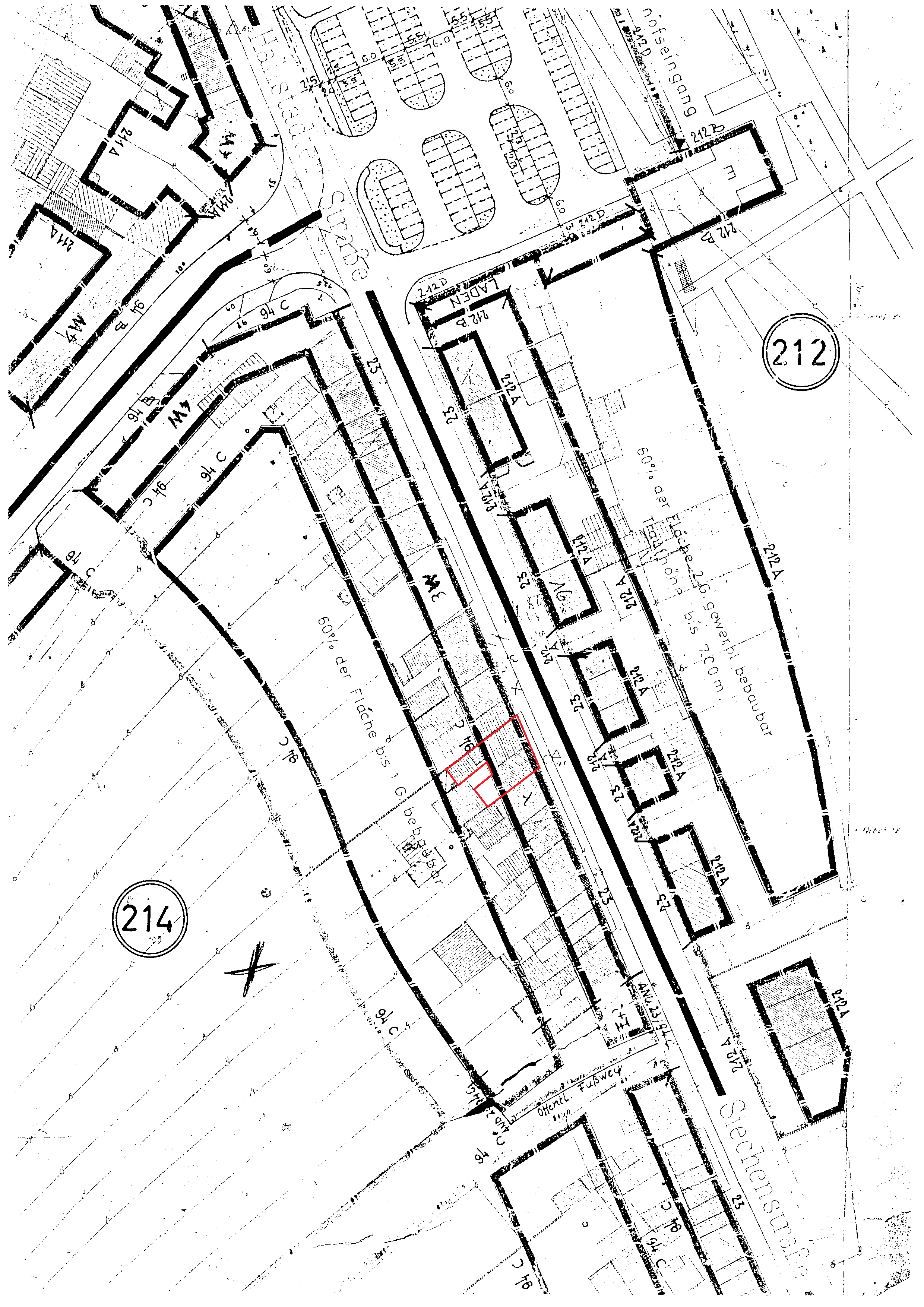
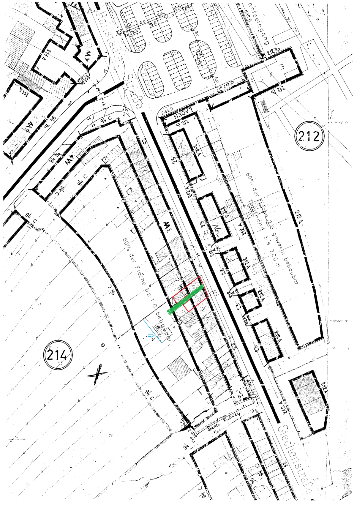
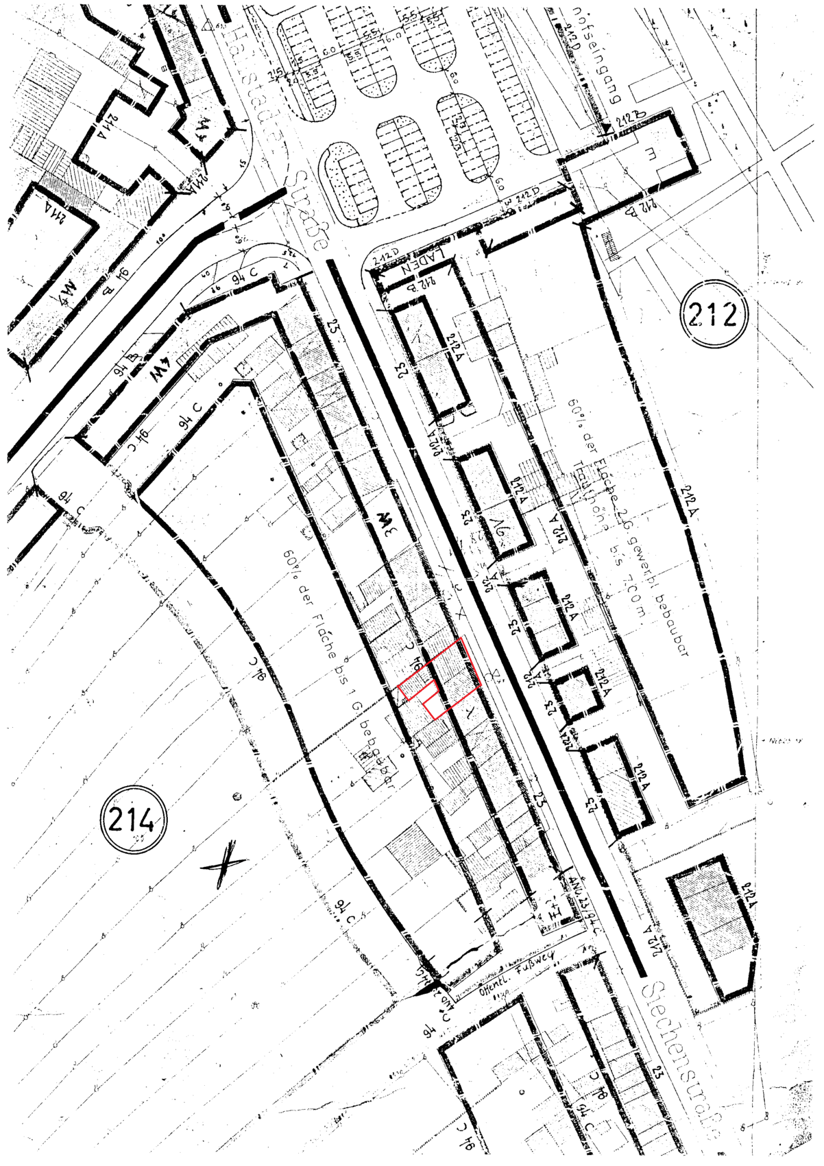
Ich hab mal den aktuellsten (1943) Flächennutzungsplan von der Stadt mitbekommen. Ich füge auch mal verschiedene andere Pläne mit bei.
Die Rot eingezeichneten Gebäude bleiben bestehen.
Das grün eingezeichnete, soll die Durchfahrt anzeigen.
Die blaue Linie, ist die Grenze zum Garten, weiter Richtung Garten darf nicht gebaut werden und es sollte von dieser Linie aus auch gebaut werden um im Vorderen Bereich möglichst Luft zu schaffen und das ganze auflockert.
Euch wird sicher auch auffallen, dass das Dach vom Vorderhaus verkehrt eingezeichnet ist, das Satteldach ist um 90 Grad verdreht.

Ich war diese Woche auf dem Bauamt. So richtige Aussagen wurden nicht getroffen. Ich soll mal Vorschläge bringen und dann wird man es sich in einer Teambesprechung ansehen.
Problem ist, es gibt offiziell keine Wohnraum Bebauung nach diesem Plan. Es gibt aber Ausnahmen und es könnte auch hier so eine Ausnahme getroffen werden, das hängt aber vom geplanten Objekt ab. Es soll sich harmonisch ins Umfeld einfügen und schlicht gehalten werden.
Das Problem mit der Grenzbebauung an die Brandwand auf der Südseite wurde ebenfalls angesprochen, sie erkennen natürlich auch die Probleme und sind nicht prinzipiell gegen eine Teilweise abgerückte Bebauung. Soll heißen, es könnte schon eine U-Form, oder zwei versetzte Rechtecke Anwendung finden, wenn es gut verkauft wird. Auch eine L-Form ist denkbar, jedoch muss der lange Schenkel an der Brandmauer ausgeführt werden.
Von der Dachform, wurde sich gegen ein versetztes Dach ausgesprochen, es wirke zu unruhig. Mann könne ich bei diesem Objekt ein Flachdach vorstellen.
Am kann als grobe Richtung von maximal 9 Meter Breite ausgehen und sollte von der Gartenseite aus mit dem Nachbargebäude abschließen.
Auch sollen Parkmöglichkeiten berücksichtigt werden.
Ich hab mal den aktuellsten (1943) Flächennutzungsplan von der Stadt mitbekommen. Ich füge auch mal verschiedene andere Pläne mit bei.
Die Rot eingezeichneten Gebäude bleiben bestehen.
Das grün eingezeichnete, soll die Durchfahrt anzeigen.
Die blaue Linie, ist die Grenze zum Garten, weiter Richtung Garten darf nicht gebaut werden und es sollte von dieser Linie aus auch gebaut werden um im Vorderen Bereich möglichst Luft zu schaffen und das ganze auflockert.
Euch wird sicher auch auffallen, dass das Dach vom Vorderhaus verkehrt eingezeichnet ist, das Satteldach ist um 90 Grad verdreht.
F
frosch00621.12.14 17:59So, jetzt kommen die anderen Fotos noch dazu, konnte ich gestern nicht hochladen. Ich musste das Format erst ändern.
Ich hab mal ein Luftbild beigefügt um einen besseren Gesamt Eindruck zu bekommen. Unser Grundstück ist auf Höhe, des "Google" Schriftzuges ("Go"gle) Rotes Dach mit der großen Gaube zum Garten.
Ich hab mal ein Luftbild beigefügt um einen besseren Gesamt Eindruck zu bekommen. Unser Grundstück ist auf Höhe, des "Google" Schriftzuges ("Go"gle) Rotes Dach mit der großen Gaube zum Garten.
F
frosch00621.12.14 18:01Ähnliche Themen