F
frosch00613.10.14 12:59Hallo kbt09,
oh, da hast du recht. Soll heißen Süd nach Nord. Kann leider erst heute antworten, ich kam seit Samstag nicht mehr rein???
ma
oh, da hast du recht. Soll heißen Süd nach Nord. Kann leider erst heute antworten, ich kam seit Samstag nicht mehr rein???
ma
Zu
Ein Dach mit 15° fände ich jetzt nicht so schlimm.
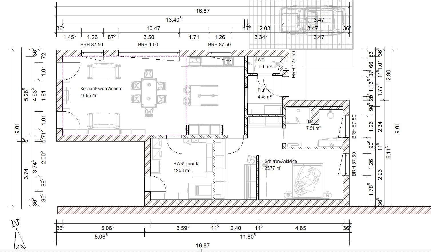
Im Grundriss sieht man im Wohnbereich eine rot gestrichelte Linie. Hier ist ein Deckenausschnitt angedacht, um Südlicht aufzufangen. Sofern es erlaubt ist, das Haus quasi nicht komplett an der Brandschutzwand zu bauen.
Vom Hauswirtschaftsraum/Technikraum habe ich einen Ausgang in den quasi entstehenden kleinen Hof geplant. Wäschetrocknen oder so könnte da möglich sein.
Nicht 100%ig gefällt mir Gäste-WC und Kollision Eingangstür. Allerdings wird in beiden Bereichen ja kein ständiger Verkehr sein, so dass man damit leben kann.
Im Bad jetzt nur eine große Dusche mit einem gefliestem Bereich in Sitzhöhe.
Die Küche quasi gleichzeitig als Durchgangs Bereich.
Wie das dann bautechnisch alles zu machen ist .. da habe ich keine große Ahnung







kbt09 schrieb:hast du ja leider keine Stellung genommen. Ich habe trotzdem mal ein bisschen geplant.
Und, ihr solltet mal noch beschreiben, was ihr unbedingt so braucht. Z. B.
- wie viele Meter Schrank stellt ihr euch vor,
- was soll ca. im Wohnbereich sein (Sofa, Sessel, TV ja oder nein, Esstisch welche Größe bzw. für wie viel Leute),
- Kochen so ein paar Vorlieben,
- Bad .. Dusche oder Dusche und Wanne usw.)
- Wofür wird sonst noch Stauraum benötigt? Weihnachtsdeko, Skiklamotten oder ähnliches
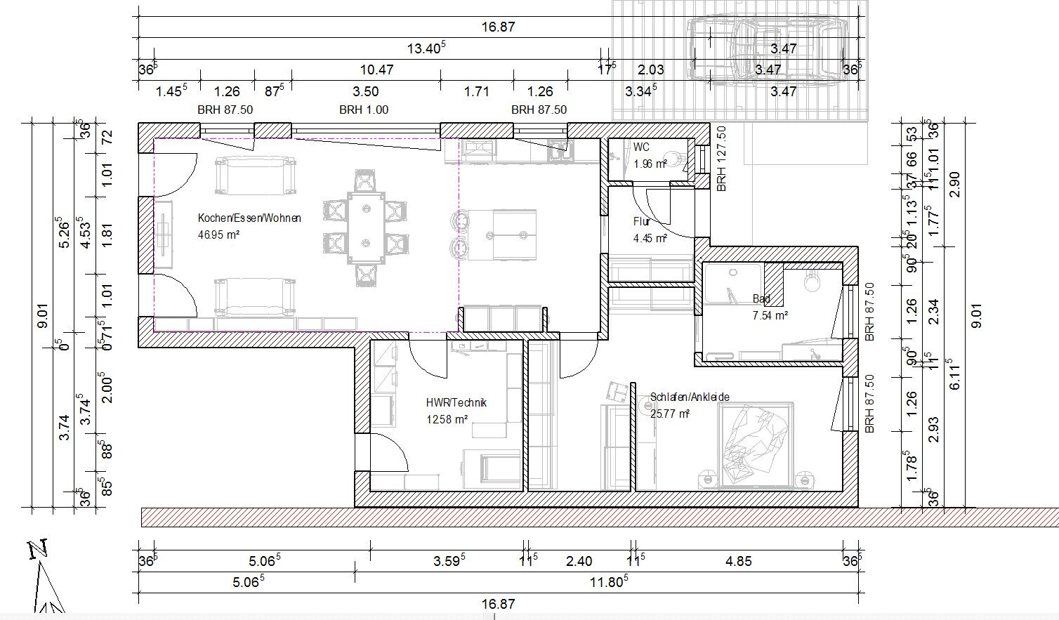
Ein Dach mit 15° fände ich jetzt nicht so schlimm.
Im Grundriss sieht man im Wohnbereich eine rot gestrichelte Linie. Hier ist ein Deckenausschnitt angedacht, um Südlicht aufzufangen. Sofern es erlaubt ist, das Haus quasi nicht komplett an der Brandschutzwand zu bauen.
Vom Hauswirtschaftsraum/Technikraum habe ich einen Ausgang in den quasi entstehenden kleinen Hof geplant. Wäschetrocknen oder so könnte da möglich sein.
Nicht 100%ig gefällt mir Gäste-WC und Kollision Eingangstür. Allerdings wird in beiden Bereichen ja kein ständiger Verkehr sein, so dass man damit leben kann.
Im Bad jetzt nur eine große Dusche mit einem gefliestem Bereich in Sitzhöhe.
Die Küche quasi gleichzeitig als Durchgangs Bereich.
Wie das dann bautechnisch alles zu machen ist .. da habe ich keine große Ahnung
F
frosch00613.10.14 21:11Manu1976 schrieb:
@Frosch. Deine Planungen funktionieren nicht. 8 Meter Außenbreite - Außenwand - 2 Innenwände, dann bleiben dir innen grob 7 Meter für 3 Räume. Dann gehen wir mal von einem Minimum von 3,50 für ein Schlafzimmer aus (soll es altersgerecht sein, eher 4m), dann bleiben noch 3,5 für Bad und Ankleide. Braucht ihr unbedingt eine Ankleide? Wenn nicht unbedingt notwendig würde ich darauf verzichten. Das engt euch unnötig an.Hallo Manu,Wichtig ist uns das Schlafzimmer zum Garten zu haben, die Straßenseite ist extrem laut und wir schlafen bei geöffnetem Fenster.
Ankleide kann ich darauf verzichten, meine Frau würde sie gerne behalten.
Bad mit Dachkuppel hab ich auch schon darüber nachgedacht, aber wie siehts da mit Wäredämmung aus, gibts da was ordentliches?
Dachfenster im Schlafzimmer können wir uns nichtmehr vorstellen, haben wir bereits sogar mit Rollo von Außen.
Manu1976 schrieb:
Wenn ich Zeit und Lust hab, stell ich dir heute Mittag mal meine Idee vor Ich würde auf keinen Fall den Eingang im Osten machen. Mach ihn im Norden und zoniere richtig. Wohnzimmer als Durchgangszimmer ist nicht gerade, das was man sich wünscht.Genau deshalb hab ich es hier ins Forum gesetzt um einfach auch andere Sichtweisen zu bekommen. Die Idee mit dem Eingang in den Norden zu setzen und dadurch Zonen zu schaffen finde ich super, jedoch soll der Der Wohnbereich möglichst offen gehalten werden.kbt09 schrieb:
Nee, so denke ich wird das nichts:
Wohn/Essbereich etc. bekommt ja dann nur morgens etwas Sonne durch die Küche und liegt dann nur gen Norden.
Und, ihr solltet mal noch beschreiben, was ihr unbedingt so braucht. Z. B.
- wie viele Meter Schrank stellt ihr euch vor,
- was soll ca. im Wohnbereich sein (Sofa, Sessel, TV ja oder nein, Esstisch welche Größe bzw. für wie viel Leute),
- Kochen so ein paar Vorlieben,
- Bad .. Dusche oder Dusche und Wanne usw.)
- Wofür wird sonst noch Stauraum benötigt? Weihnachtsdeko, Skiklamotten oder ähnliches
----------
Wo Norden prinzipiell ist, ist ja klar. Nur deinen Lagebildern kann man nicht entnehmen, ob sie genau geradlinig die Himmelsrichtungen präsentieren
VARIANTE 1

Oder ob die Brandmauer wirklich GENAU im Süden liegt
VARIANTE 2

EDIT:
Welche Dachform? Flachdach?Hallo kbt09,-Schrank Länge sollten 4-5m reichen denke ich, meine Frau sagt, es gibt nie genug Schrankflächen.
-Wohnbereich mit Sofa und TV, Sessel wird nicht benötigt.
-Esszimmertisch für bis zu 6 Personen.
-Offenes Kochen, evtl. Insel und Platz für meine 2 gruppige Festwasser Espressomaschine.
-Ebenerdige Dusche, bzw. Dampfdusche.
-Stauraum im Hauswirtschaftsraum für Lebensmittel, Waschmaschine, Wäschetrockner, Wärmepumpe, Serverschrank für Netzwerk und Telefon.
ma
F
frosch00613.10.14 21:14Hallo Kbt09,
sorry, deine Fragen konnte ich leider erst jetzt beantworten, ich war seit Samstag hier ausgesperrt. Ich schau mir deinen Vorschlag gleich mal an.
ma
sorry, deine Fragen konnte ich leider erst jetzt beantworten, ich war seit Samstag hier ausgesperrt. Ich schau mir deinen Vorschlag gleich mal an.
ma
Das Problem mit quasi Tausch der Positionen Bad/Schlafzimmer und Hauswirtschaftsraum ist, dass der Eingangsbereich ja ruhig schmaler sein kann, so bleibt Platz Schlafzimmer und Bad nebeneinander mit Fenster zu planen.
Dieser Platz bleibt auf der Westseite eben nicht. Und die Schläuche, die du stattdessen angedeutet hast, sind .. ähem weder schön noch gut zu möblieren.
Dieser Platz bleibt auf der Westseite eben nicht. Und die Schläuche, die du stattdessen angedeutet hast, sind .. ähem weder schön noch gut zu möblieren.
Ähnliche Themen