C
Chrisi190621.08.19 21:50ypg schrieb:
Hast Du gut zusammen gefasst
Ich bin ja quasi ausgestiegen, eben genau aus den ausgeführten Gründen.
Ich kann mittlerweile ein BU verstehen, das sich auf wenig bis kaum Mühe mit dem Entwurf auszeichnet
Ja, solang der Subwoofer für den Feierabend eine größere Rolle spielt als die Waschmaschine
Und statt Papa seine Frau mit den Entwürfen und Kommentaren konfrontieren.Sorry aber das der Subwoofer eine Größe Rolle spielt als die Waschmaschine ist ja wohl Schwachsinn. Das äußern von Wünschen ist mir untersagt?
Ich zeige meiner Frau natürlich die Grundrisse, warum sollte ich das auch nicht tun? Mein Vater wohnt 200km weit weg, dem zeige ich immer nur ein paar wenige. Meine Frau bekommt alle Grundrisse zu sehen.
Das man auch Verständnis für einen BU haben sollte ist nachvollziehbar. Ich bin selbst IT Berater und merke oft das sich die Wünsche meiner Kunden im Projektverlauf ändern und die Arbeit dann für die Katz war.
C
Chrisi190621.08.19 22:30kaho674 schrieb:
Ich denke, dass Satteldach bei Euren Wünschen gesetzt ist.
Kannst Du noch mal genauer sagen, wie sich das mit den 5m Abstand zur Straße für Garagen verhält? Gilt das auch für Carports und wäre ein solches auch eine Option?Ist es dann okay ein flaches Satteldach zu nehmen und einen höheren Kniestock? Gefällt uns optisch besser. Kannst du vielleicht noch mal erklären warum Satteldach bei unseren Wünschen gesetzt ist? Liegt es daran das man die Treppe einfach positionieren kann im Grundriss, an der besseren Fläche im Dachgeschoss, oder? Kosten mal außen vorgelassen...
Garage muss einen Abstand von 5m zur Straße haben. Bezüglich Carport habe ich im Bebauungsplan nichts gefunden. Ich denke daher nein. Ja, Carport wäre eine Option.
Hier der Auszug aus dem Bebauungsplan.
Für Garagen ist ein Abstand von mindestens 5 m zur erschließenden Straße einzuhalten, um ein Fahrzeug
auf dem Grundstück kurzzeitig einzuparken und den Verkehr auf der Erschließungsstraße durch das Öffnen
des Garagentores nicht zu behindern.
Ich finde wir haben schon sehr gute Grundrisse gefunden. Hier meine Top 2.
Wenn Du auf den großen Grundkörper jetzt auch noch einen Kniestock setzt, sprengt es das Budget.
Das Dach ist doch so schon kaum mit drin. Sehe ich persönlich schon eher in Eigenleistung - bei 2 kleinen Kindern aber utopisch. Nach meiner Meinung kannst Du froh sein, wenn Du die Treppe, Fußboden und Dämmung unter dem Dach drin hast - Schönheit hin oder her. Zudem würde ein Kniestock den Platz unterm Dach ja auch noch vergrößern - das wird dann immer mehr Fläche und der Preis steigt bei jedem cm mit. Den Platz braucht Ihr aber gar nicht.
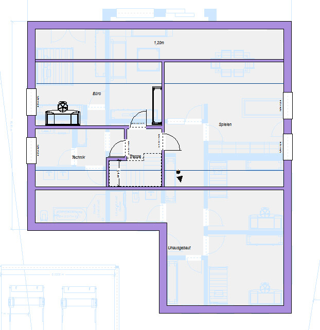
Das Satteldach ist m.E. die preiswerteste und passendste Lösung für Eure Wünsche. Es bietet genügend Raum - auch ohne Kniestock, außerdem Fenster im Giebel für ansprechende Räume. Außerdem sieht es bei höherer Dachneigung besser aus, als z.B. Walm. Ich würde aber trotzdem nicht über 31° gehen. Bei 1,20m würde ich abkoffern. Das wäre beim letzten Entwurf dann etwa so:

Mit dem Doppelflügelfenster über der Treppe kommt übrigens schon mal etwas Licht in den Flur darunter.
Wenn das möglich wäre, würde ich das Carport nicht an den Winkelbungalow dran setzen. Finde, es sieht besser aus, wenn er frei steht. Ist allerdings die Frage, ob es bei 3m stehen darf - sonst musst Du noch 2m nach hinten.


Das Dach ist doch so schon kaum mit drin. Sehe ich persönlich schon eher in Eigenleistung - bei 2 kleinen Kindern aber utopisch. Nach meiner Meinung kannst Du froh sein, wenn Du die Treppe, Fußboden und Dämmung unter dem Dach drin hast - Schönheit hin oder her. Zudem würde ein Kniestock den Platz unterm Dach ja auch noch vergrößern - das wird dann immer mehr Fläche und der Preis steigt bei jedem cm mit. Den Platz braucht Ihr aber gar nicht.
Das Satteldach ist m.E. die preiswerteste und passendste Lösung für Eure Wünsche. Es bietet genügend Raum - auch ohne Kniestock, außerdem Fenster im Giebel für ansprechende Räume. Außerdem sieht es bei höherer Dachneigung besser aus, als z.B. Walm. Ich würde aber trotzdem nicht über 31° gehen. Bei 1,20m würde ich abkoffern. Das wäre beim letzten Entwurf dann etwa so:
Mit dem Doppelflügelfenster über der Treppe kommt übrigens schon mal etwas Licht in den Flur darunter.
Wenn das möglich wäre, würde ich das Carport nicht an den Winkelbungalow dran setzen. Finde, es sieht besser aus, wenn er frei steht. Ist allerdings die Frage, ob es bei 3m stehen darf - sonst musst Du noch 2m nach hinten.
C
Chrisi190622.08.19 08:53kaho674 schrieb:
Wenn Du auf den großen Grundkörper jetzt auch noch einen Kniestock setzt, sprengt es das Budget.
Das Dach ist doch so schon kaum mit drin. Sehe ich persönlich schon eher in Eigenleistung - bei 2 kleinen Kindern aber utopisch. Nach meiner Meinung kannst Du froh sein, wenn Du die Treppe, Fußboden und Dämmung unter dem Dach drin hast - Schönheit hin oder her. Zudem würde ein Kniestock den Platz unterm Dach ja auch noch vergrößern - das wird dann immer mehr Fläche und der Preis steigt bei jedem cm mit. Den Platz braucht Ihr aber gar nicht.
Das Satteldach ist m.E. die preiswerteste und passendste Lösung für Eure Wünsche. Es bietet genügend Raum - auch ohne Kniestock, außerdem Fenster im Giebel für ansprechende Räume. Außerdem sieht es bei höherer Dachneigung besser aus, als z.B. Walm. Ich würde aber trotzdem nicht über 31° gehen. Bei 1,20m würde ich abkoffern. Das wäre beim letzten Entwurf dann etwa so:
[ATTACH alt="DG.jpg"]37706[/ATTACH]
Mit dem Doppelflügelfenster über der Treppe kommt übrigens schon mal etwas Licht in den Flur darunter.
Wenn das möglich wäre, würde ich das Carport nicht an den Winkelbungalow dran setzen. Finde, es sieht besser aus, wenn er frei steht. Ist allerdings die Frage, ob es bei 3m stehen darf - sonst musst Du noch 2m nach hinten.
[ATTACH alt="Carport.jpg"]37707[/ATTACH]
[ATTACH alt="Ansicht.jpg"]37708[/ATTACH]Bei deinem Vorschlag würde ich auch keinen Kniestock nehmen, gefällt mir auch so gut die Optik. Carport sehe ich wie du... Ist freistehend besser.
Vielen Dank!!! Mir gefällt es richtig gut und es bietet viele Vorteile im Vergleich zu den bisherigen Entwürfen.
Chrisi1906 schrieb:
Vielen Dank!!! Mir gefällt es richtig gut und es bietet viele Vorteile im Vergleich zu den bisherigen Entwürfen.Finde den persönlich auch am besten, muss ich gestehen. Die Fahrradfrage müsste allerdings noch geklärt werden. Außerdem würde ich mir über die Heizung und deren Dimension mal Gedanken machen. Soll das Luftwärme oder Erdwärme werden? Bei Luftwärme hat man ja auch noch das Außengerät.Ähnliche Themen