Hausbau - Ratgeber
Bauherrenhilfe
- Bauherrenhilfe vor Vertragsabschluss
-- Warum einen unabhängigen Baubetreuer?
-- Vertragsgrundlagen
-- Bausumme
-- Zahlungsplan zur Kostenkontrolle
-- Pflichten des Bauherren vor Vertragsabschluss
-- Unterlagen beim Hausbau vor Vertragsabschluss
- Bauherrenhilfe nach Vertragsabschluss
-- Bauantrag bei Behörden
-- Bau-Genehmigungsverfahren bei Baubehörden
-- Bauspezifische Versicherungen
-- Bauzeitenplan
-- Baubeginn - die Letzten Pflichten der Bauherrschaft
- Bauherrenhilfe während der Bauzeit
- Gewährleistungsansprüche
- Bauabnahme
Baufinanzierung
- Baufinanzierung - Allgemeine Fragen
- Kreditarten
- Kredit-Konditionen
- Bausparen
- Staatliche Förderungen
- Verkehrswert
- Haushaltsrechnung und Bonität
Hausbau Planung
- Haustypen
- Hausbau Vorbereitungsarbeiten
- Das Baugrundstück
- Baugrund beim Hausbau
- Baurecht
- Gebäudeschutz
- Erdarbeiten und Wasserhaltung
- Stützmauern
- Einfriedung
- Untergeschoss
- Kanalisation
- Tragende Elemente
- Nichttragende Innenwände
- Fundation / Fundament
- Deckenkonstruktionen
- Dächer
- Kaminanlagen
- Treppen Rampen Leitern
- Dachbeläge und Spengler
- Fenster
- Sonnen und Wetterschutz
- Aussenputze
- Einbauten, Küchen, Türen
- Bodenbeläge und Unterlagsböden
- Parkett
- Gips, Wand, Decke
Haustechnik und Energie
- Heiztechnik
- Lüftung und Klimatechnik
- Sanitärtechnik
- Elektrotechnik
- Erneuerbare Energie
Whirlpools / Jacuzzi
Hausbau Magazin
- Baufinanzierung trotz Krise?
- Das Blockhaus
- Moderne Dämmstoffe im Vergleich
- Erker Vor- und Nachteile
- Glasflächen beim Hausbau
- Günstig ein Haus Bauen
- Mediterraner Hausbaustil
- Mehrgenerationenhaus
- Moderne Architektur
- Gartengestaltung leicht gemacht
- Traditioneller Ziegelbau
- Villa als höchster Traum
- Im Eigenheim Ruhestand geniessen
- Altbau sanieren
- Kauf einer Holzgarage
- Immobilienmakler
- Arbeitshandschuhe für den Winter
- Zuhause verschönern
- Outdoor-Plissees
- Schlafzimmer planen
- Terrassenüberdachung
- Wohngebäudeversicherung
- Zaunarten und Eigenschaften
- Hauseingang gestalten
- Der perfekte Grundriss
- Sparsamer heizen im Altbau
- Einfamilienhaus smart finanzieren
- Planung einer PV-Anlage
- Neues Haus
- Immobilienfinanzierung
- Installation einer Photovoltaikanlage
- Asbest erkennen und entfernen
- Gartenpflege im Frühling – worauf achten
- Sauna im Fokus - Wellness zuhause
- Erfolgreich vermieten
- Die perfekte Winterbekleidung
- Das Niedrigenergiehaus
- Der April und seine Stürme
- Architektonische Vielfalt
- Ökologisch und nachhaltig bauen
- Das perfekte Schlafzimmer
- Nachhaltige Energieversorgung
- Zukunftsorientiert bauen
- Nachhaltigkeit beim Hausbau
- Tiny Houses
- Wärmepumpen als nachhaltige Heizvariante
- Maßgeschneiderten Kleiderschrank
- Der richtige Baukredit
- Ratgeber für erfolgreichen Hausbau
- Haus als Altersvorsorge
Do-it-yourself Anleitungen
- Verlegeanleitung für Bodenbeläge und Parkett
- Bodenbeläge und Parkett reinigen und pflegen
- Malerarbeiten am Haus
- Garten Tipps
- Umzug und Reinigung

ᐅ Blockhaus mit Krüppelwalmdach am Wald - Planung verbessern?

Erstellt am: 11.06.18 19:45
K
keychain
Climbee10.07.18 13:36
Sorry, merk grad daß ich im vorletzten Beitrag was verschlimmbessert habe:
Climbee schrieb:
Aber hier würde ich den Kinderbereich über den Bauherrenbereich (Elternbereich hab ich jetzt für die Eltern der Bauherren genutzt) planen, ggf. kann das Kinderbad noch über dem Eingangsbereich liegen.

Der Kinderbereich soll über dem Elternbereich liegen, wobei hier der links liegende Bereich für die Eltern der Bauherren gemeint ist.
H
haydee
10.07.18 13:48
Die Treppenstufen auf dem 2. Bild sind der Hammer
Climbee10.07.18 13:49
Jou, wenn wir keinen Keller hätten, würden wir auch so eine Treppe haben wollen... *sabber*
H
haydee
10.07.18 13:52
Darf dann nicht wie bei uns zwischen zwei tragenden Wänden verschwinden. Wir mußten umplanen deswegen
S
sichtbeton82
10.07.18 14:01
Es gibt die TV-Sendereihe Traumhäuser. Gibt auch eine HP des BR dazu. Dort können auch Grundrisse heruntergeladen werden. Vielleicht ist "Ein Riegel mit Weitblick" was für euch zum Ideeneinholen. Ist in Staffel 2.

Grundriss eines Gebäudes von oben: Sauna/Fitness, WC, Gast, Büro/Einlieger, Flur, Technik.


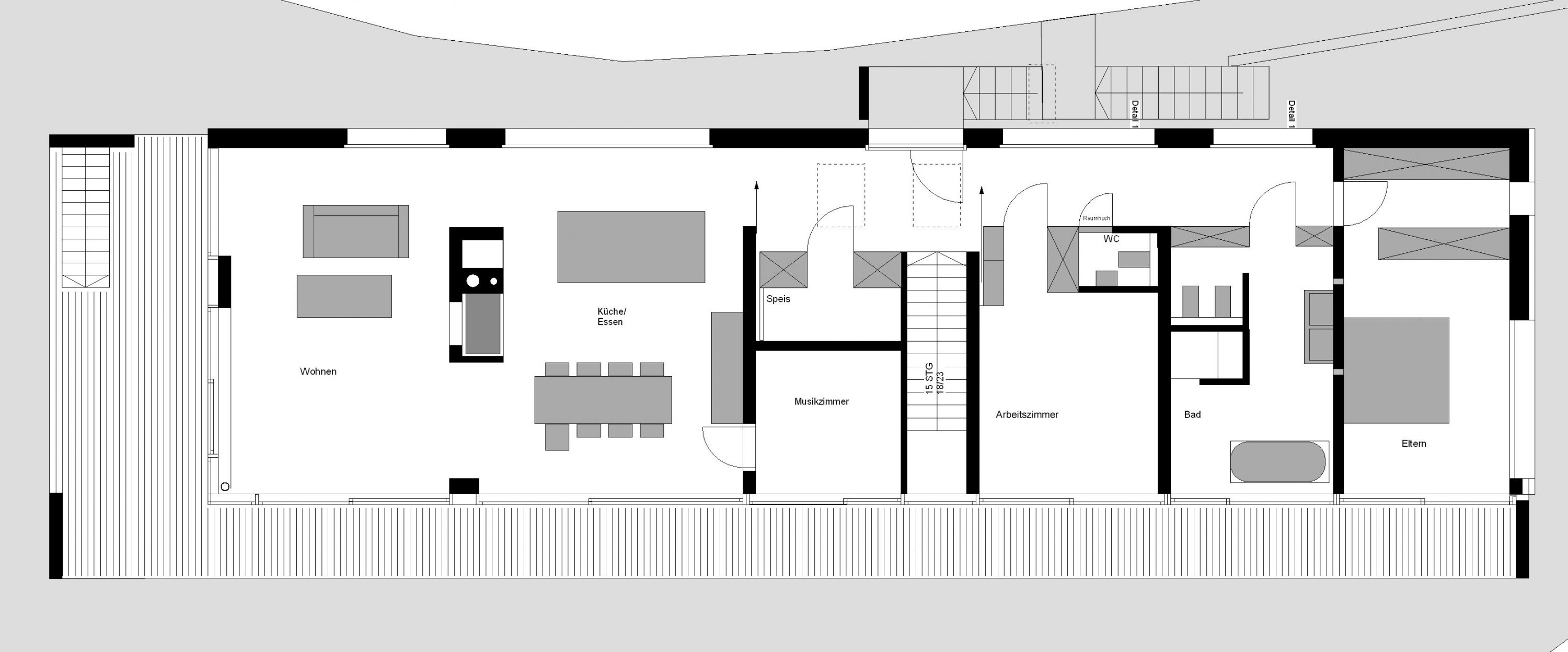
Grundriss eines Hauses mit Wohnen, Küche/Essen, Speis, Musikzimmer, Arbeitszimmer, Bad, Elternzimmer.
Y
ypg
10.07.18 14:13
Ich hab das mit der Symmetrie auch eher als ironisches Eigentor gesehen - vermisse aber tatsächlich dann die erwähnte Symmetrie.
Und da Du die Turnhalle noch erwähntest - Ja, die sehe ich auch: mit Stellwänden für die Bewohnbarkeit der Flüchtlinge.

Nur weil Eure aufgelisteten Bedürfnisse dort zustande kommen, ist es ja noch kein gelungener Entwurf. Mag ich mir nicht vorstellen, die ellenlangen Flure mit einer Deckenhöhe, die einen von oben einengt. Aber ich kann es mir vorstellen... habe ich vor meinem Büro, so einen Flur. Aber zum Glück mit höherer Decke.

Gab es jetzt schon mal den Hinweis, zum Architekten zu gehen? Ich mein: wenn man sich die Lage vieler Türen anschaut, gepaart mit den Linien als Mauern und Größenordnung der Treppe hinsichtlich anderer Referenzgrössen, sehe ich jetzt nicht unbedingt den Hang oder das Talent zum räumlichen Denken und deren Umsetzung in 2D
treppe