Hausbau - Ratgeber
Bauherrenhilfe
- Bauherrenhilfe vor Vertragsabschluss
-- Warum einen unabhängigen Baubetreuer?
-- Vertragsgrundlagen
-- Bausumme
-- Zahlungsplan zur Kostenkontrolle
-- Pflichten des Bauherren vor Vertragsabschluss
-- Unterlagen beim Hausbau vor Vertragsabschluss
- Bauherrenhilfe nach Vertragsabschluss
-- Bauantrag bei Behörden
-- Bau-Genehmigungsverfahren bei Baubehörden
-- Bauspezifische Versicherungen
-- Bauzeitenplan
-- Baubeginn - die Letzten Pflichten der Bauherrschaft
- Bauherrenhilfe während der Bauzeit
- Gewährleistungsansprüche
- Bauabnahme
Baufinanzierung
- Baufinanzierung - Allgemeine Fragen
- Kreditarten
- Kredit-Konditionen
- Bausparen
- Staatliche Förderungen
- Verkehrswert
- Haushaltsrechnung und Bonität
Hausbau Planung
- Haustypen
- Hausbau Vorbereitungsarbeiten
- Das Baugrundstück
- Baugrund beim Hausbau
- Baurecht
- Gebäudeschutz
- Erdarbeiten und Wasserhaltung
- Stützmauern
- Einfriedung
- Untergeschoss
- Kanalisation
- Tragende Elemente
- Nichttragende Innenwände
- Fundation / Fundament
- Deckenkonstruktionen
- Dächer
- Kaminanlagen
- Treppen Rampen Leitern
- Dachbeläge und Spengler
- Fenster
- Sonnen und Wetterschutz
- Aussenputze
- Einbauten, Küchen, Türen
- Bodenbeläge und Unterlagsböden
- Parkett
- Gips, Wand, Decke
Haustechnik und Energie
- Heiztechnik
- Lüftung und Klimatechnik
- Sanitärtechnik
- Elektrotechnik
- Erneuerbare Energie
Whirlpools / Jacuzzi
Hausbau Magazin
- Baufinanzierung trotz Krise?
- Das Blockhaus
- Moderne Dämmstoffe im Vergleich
- Erker Vor- und Nachteile
- Glasflächen beim Hausbau
- Günstig ein Haus Bauen
- Mediterraner Hausbaustil
- Mehrgenerationenhaus
- Moderne Architektur
- Gartengestaltung leicht gemacht
- Traditioneller Ziegelbau
- Villa als höchster Traum
- Im Eigenheim Ruhestand geniessen
- Altbau sanieren
- Kauf einer Holzgarage
- Immobilienmakler
- Arbeitshandschuhe für den Winter
- Zuhause verschönern
- Outdoor-Plissees
- Schlafzimmer planen
- Terrassenüberdachung
- Wohngebäudeversicherung
- Girokonto für Bauherren finden
- Hauseingang gestalten
- Zaunarten und Eigenschaften
- Der perfekte Grundriss
- Sparsamer heizen im Altbau
- Einfamilienhaus smart finanzieren
- Planung einer PV-Anlage
- Neues Haus
- Immobilienfinanzierung
- Installation einer Photovoltaikanlage
- Asbest erkennen und entfernen
- Gartenpflege im Frühling – worauf achten
- Sauna im Fokus - Wellness zuhause
- Erfolgreich vermieten
- Die perfekte Winterbekleidung
- Das Niedrigenergiehaus
- Der April und seine Stürme
- Architektonische Vielfalt
- Ökologisch und nachhaltig bauen
- Das perfekte Schlafzimmer
- Nachhaltige Energieversorgung
- Zukunftsorientiert bauen
- Nachhaltigkeit beim Hausbau
- Tiny Houses
- Wärmepumpen als nachhaltige Heizvariante
- Maßgeschneiderten Kleiderschrank
- Der richtige Baukredit
- Ratgeber für erfolgreichen Hausbau
- Haus als Altersvorsorge
Do-it-yourself Anleitungen
- Verlegeanleitung für Bodenbeläge und Parkett
- Bodenbeläge und Parkett reinigen und pflegen
- Malerarbeiten am Haus
- Garten Tipps
- Umzug und Reinigung

ᐅ Bitte um Rückmeldung zu unserem Grundriss

Erstellt am: 27.06.22 20:36
A
AnneMarco
Hallo liebes Forum,

wir stehen kurz vor der finalen Entscheidung für einen Grundriss und können uns nicht entscheiden (wir haben halt auch keine Ahnung). Daher bitten wir Euch um Hilfe.

Grundsätzlich:

- Doppelhaus von 1965.
- Abriss aktueller Erweiterungen und ein neuer Anbau.
- Das Obergeschoss ist für die Kindern (mit eingenem Bad).

Was meint Ihr? Ist dies soweit sinnvoll? Ist der Anbau groß genug, oder sollten wir noch einen Meter weiter rausbauen?

Vielen Dank bereits im Voraus.
AnneMarco

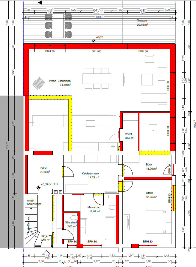
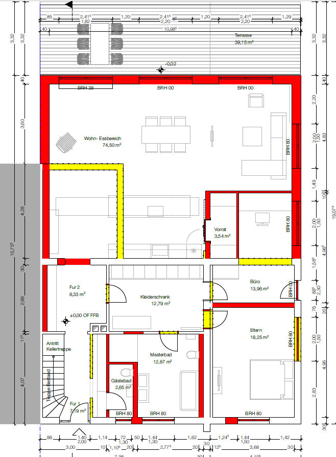
Grundriss eines Hauses mit Wohnzimmer, Essbereich, Küche, Schlafzimmer, Bad, Büro und Terrasse.
A
AnneMarco
27.06.22 21:43
Ich sende noch mal eine Version mit 1m längerem Anbau.

Grundriss Erdgeschoss: Offen Wohn- Essbereich, Küche, Büro, Eltern, Masterbad, Gäste-Bad.
K
kbt09
27.06.22 21:53
Naja ... was erwartest du denn von dem 1m extra? Planlinks entsteht viel freie Fläche ...nutzbar für was?
TV mitten in den Raum gezeichnet?
Büro nur durch den begehbaren Kleiderschrank?

Von allem rundum sieht man nichts. Man weiß noch nicht mal wo Norden ist. Wie das Grundstück liegt. In der 1 m verlängerten Version sind das gut 150 qm... was ist mit oben? Auch nochmal so groß? Wieviel Leute sollen denn dort wohnen (wenn du https://www.hausbau-forum.de/threads/grundriss-planung-unbedingt-vor-beitrag-erstellung-lesen.11714/ gelesen hättest, dann hätten wir ja den hier schon mehrfach nachgefragten Fragebogen 😉 ).
A
AnneMarco
27.06.22 22:08
Bebauungsplan/Einschränkungen
Größe des Grundstücks: 800m2
Hang: Nein
Grundflächenzahl: ???
Geschossflächenzahl 0,2
Baufenster, Baulinie und -grenze

Blau getönter technischer Bauplan mit Rechtecken, Linien und Beschriftungen.
Randbebauung: Yepp
Anzahl Stellplatz: 2
Geschossigkeit: 1 Vollgeschoss
Dachform: Satteldach
Stilrichtung: alt
Ausrichtung. Haustür nach Norden, Lebensraum nach Süden.
Maximale Höhen/Begrenzungen: 1 Geschoss plus Dach
weitere Vorgaben

Anforderungen der Bauherren
Anzahl der Personen, Alter: 4, 2 Kindern im Obergeschoss, zwei Zimmer, eigenes Bad. Eltern unten.

Oben ist die alte Grundfläche, ca. 50m2

Büro: Homeoffice?
Schlafgäste pro Jahr: wenige

offene Küche mit Kochinsel
Anzahl Essplätze: 6
Kamin: Leider nicht möglich
Musik/Stereowand: TV, Fernsehecke als reine Fernsehecke à Couch, TV fertig.


Hausentwurf
Von wem stammt die Planung: Architektin MA.
-Architekt: JA
Was gefällt besonders? Warum? Thema ist „leben im Garten“, die nähe zum Garten ist uns wichtig.
Preisschätzung lt Architekt/Planer: Anbau&Ausbau 300.000
Persönliches Preislimit fürs Haus, inkl Ausstattung: 320.000
favorisierte Heiztechnik: Wärmepumpe usw.

Warum ist der Entwurf so geworden, wie er jetzt ist? ZB
Ein Gemisch aus vielen Beispielen aus div. Magazinen...
Was macht ihn in Euren Augen besonders gut oder schlecht?

Was ist die wichtigste/grundlegende Frage zum Grundriss in 130 Zeichen zusammengefasst?
Wie ist der „Lebensraum“ aus Küche, Aufenthalt, TV-Couch zu bewerten? Klappt dass?
Y
ypg
27.06.22 22:12
ypg schrieb:

Bitte fülle den angepinnten Fragebogen aus und zeige den IST-Zustand sowie den Sollzustand aller Geschosse.
Und bitte die eingestellten Dateien in lesbarer Größe.
Danke.
AnneMarco schrieb:

Huhu, danke für die Rückmeldungen. Wo ist der "angepinnte Fragebogen"?
Siehe zb #8 oder einfach im Forum…
Und bitte alle Infos einstellen.
Erfahrungsgemäß ist ein Thread, wo man auf 2 Seiten nicht auf die wichtigsten Infos eingehen kann, verbrannt.

Edit: muss man _alles_ in Grossschrift setzen? Oder sind die Sätze auch so klar?… WIR KENNEN DAS HAUS NICHT!
A
AnneMarco
27.06.22 22:12

Moderne weiße Villa mit steilem Giebel, großen Fenstern, grünem Garten und Grundriss.
Hier nochBilder von der Architektin
K
kbt09
27.06.22 22:41
ypg schrieb:

Erfahrungsgemäß ist ein Thread, wo man auf 2 Seiten nicht auf die wichtigsten Infos eingehen kann, verbrannt.
Jetzt klickern wir hier wieder zwischen den Seiten hin und her, weil es dir nicht gelingt, in dem Beitrag mit dem Fragebogen auch noch die Grundrisse einzubinden ... sorry, so bringt es keinen Spaß. Ich frage mich immer, warum Forenkultur so den Berg runter läuft. Jeder denkt, man kann jede Frage einfach mal so los werden. Keiner macht sich die Mühe, in einem Forum erstmal etwas zu lesen, zu sehen, wie am besten man seinen Fragenkomplex los wird. Manchmal denke ich, es sollte einen Führerschein für Computer- und Internetnutzung geben 😉.
architektinanbauküchefernseheckecouchgarten