Hallo zusammen,
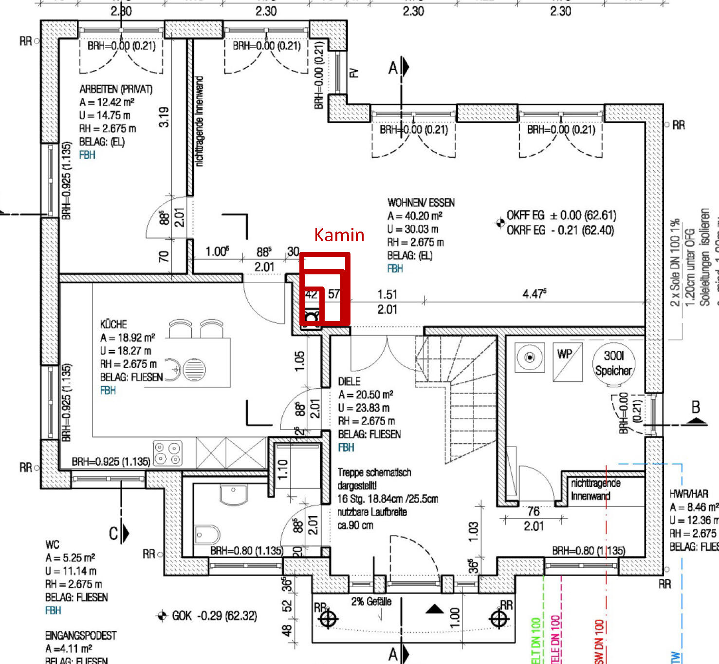
wir bauen gerade eine Stadtvilla und planen auch einen Kamin. Damit wir bei der Ausführungsplanung gleich alles mit bedenken, beschäftigen wir uns nun mit der Kaminplanung. Wir haben im Haus zwischen Wohn- und Esszimmer (41 m²) eine Ecke wo der Schiedelschornstein hinkommt und auch der Kamin stehen soll.
Der geplante Kamin soll:
- in unsere Ecke passen (1,00 x 1,27 m inkl. Schornstein)
- über eine 2-Seiten-Scheibe ein optisches Feuer ermöglichen
- dadurch leichte Strahlungswärme verbreiten
- möglichst lange die Wärme speichern; >= 6-10h (meine Eltern haben eine Hypokautenanlage)
- gerne hätten wir ein modernes Aussehen, eine Stufung über zwei Ebenen und einen Überhang für den Schornstein, damit dieser optisch integriert wirkt # link durch Moderation entfernt; Bauexperte
Nun haben uns zwei Kaminbauer zwei völlig verschiedene Konzepte angeboten. Der eine will uns einen Warmluftofen mit Speicher verkaufen (z. B. Kamineinsatz der Fa. Sparthern Varia 1 V-4S mit Magnethermspeicher, ggf. Kamineinsatz auch mit Speicher). Der andere hat uns einen Kamin mit Doppelkammer–Speicher–Technik ohne Warmluftausgleich angeboten (z. B. Rüegg Venus). Beides ist preislich gleich bei 8.000 EUR plus angesiedelt.
Was sagt ihr? Welches Konzept speichert länger und hat die bessere Qualität? Der Kaminbauer mit dem Warmluftofen meinte, wir kommen mit einem geschlossenen System vom Platz und Budget nicht hin und seiner speichert auch sehr lange. Der Kollege mit dem Speicherkamin sagt, dass der Warmluftofen allein schon baulich nur 3h speichern kann, selbst wenn man den mit Speichern vollpackt.
Danke und viele Grüße, Redsonic

wir bauen gerade eine Stadtvilla und planen auch einen Kamin. Damit wir bei der Ausführungsplanung gleich alles mit bedenken, beschäftigen wir uns nun mit der Kaminplanung. Wir haben im Haus zwischen Wohn- und Esszimmer (41 m²) eine Ecke wo der Schiedelschornstein hinkommt und auch der Kamin stehen soll.
Der geplante Kamin soll:
- in unsere Ecke passen (1,00 x 1,27 m inkl. Schornstein)
- über eine 2-Seiten-Scheibe ein optisches Feuer ermöglichen
- dadurch leichte Strahlungswärme verbreiten
- möglichst lange die Wärme speichern; >= 6-10h (meine Eltern haben eine Hypokautenanlage)
- gerne hätten wir ein modernes Aussehen, eine Stufung über zwei Ebenen und einen Überhang für den Schornstein, damit dieser optisch integriert wirkt # link durch Moderation entfernt; Bauexperte
Nun haben uns zwei Kaminbauer zwei völlig verschiedene Konzepte angeboten. Der eine will uns einen Warmluftofen mit Speicher verkaufen (z. B. Kamineinsatz der Fa. Sparthern Varia 1 V-4S mit Magnethermspeicher, ggf. Kamineinsatz auch mit Speicher). Der andere hat uns einen Kamin mit Doppelkammer–Speicher–Technik ohne Warmluftausgleich angeboten (z. B. Rüegg Venus). Beides ist preislich gleich bei 8.000 EUR plus angesiedelt.
Was sagt ihr? Welches Konzept speichert länger und hat die bessere Qualität? Der Kaminbauer mit dem Warmluftofen meinte, wir kommen mit einem geschlossenen System vom Platz und Budget nicht hin und seiner speichert auch sehr lange. Der Kollege mit dem Speicherkamin sagt, dass der Warmluftofen allein schon baulich nur 3h speichern kann, selbst wenn man den mit Speichern vollpackt.
Danke und viele Grüße, Redsonic
Hi,
ich habe einen Grundofen der wenn mal warm ist hält die wärme etwa 16-20 stunden. zusätzlich habe ich eine wassertasche im ofen so das ich die Heizung unterstützen kann.
Eine bekannte hat einen warmluftofen. im prinzip ist das ein Stahlbrennraum der von eine Speicherschicht (bei meiner bekannten Kacheln) ummauert ist und luftschlitze hat wo die warme luft aus austritt. Wenn der mal richtig war ist hält er etwa 4-6 stunden die wärme. Vorteil von der warmluft geschichte ist das er relativ schnell wärme abgibt. mein Ofen braucht etwa 2-3 stunden bis er so richtig schön warm ist. ich muss dafür auch nur 2 mal am tag schüren (ausser ich schalte auf die wassertasche um und fülle den Puffer).
ich persönlich möchte keinen warmluftofen haben konvektionswärme ist nicht so meins ....
ich habe einen Grundofen der wenn mal warm ist hält die wärme etwa 16-20 stunden. zusätzlich habe ich eine wassertasche im ofen so das ich die Heizung unterstützen kann.
Eine bekannte hat einen warmluftofen. im prinzip ist das ein Stahlbrennraum der von eine Speicherschicht (bei meiner bekannten Kacheln) ummauert ist und luftschlitze hat wo die warme luft aus austritt. Wenn der mal richtig war ist hält er etwa 4-6 stunden die wärme. Vorteil von der warmluft geschichte ist das er relativ schnell wärme abgibt. mein Ofen braucht etwa 2-3 stunden bis er so richtig schön warm ist. ich muss dafür auch nur 2 mal am tag schüren (ausser ich schalte auf die wassertasche um und fülle den Puffer).
ich persönlich möchte keinen warmluftofen haben konvektionswärme ist nicht so meins ....
Da kann ich nur zustimmen. In meiner Mietwohnung habe ich aktuell einen Kaminofen, welcher das Schlafzimmer und das Wohnzimmer versorgt. Abends hats im Wohnzimmer ziemlich heiße 25°C die Luft ist ziemlich trocken. Außerdem kühlt das Ganze schnell ab, nach 2-3h ist der Ofen nur noch laufwarm und morgens dann nur noch 20°C, was fast schon wieder zu kalt ist.
Lieber hätte ich einen Ofen, der die Wärme länger hält und auf Strahlungswärme setzt. Meine Eltern haben einen Kochherd zwischen Küche und Esszimmer und selbst dieser macht eine angenehmere Wärme und es kommt mir auch so vor, als ob dieser länger warm hält.
Lieber hätte ich einen Ofen, der die Wärme länger hält und auf Strahlungswärme setzt. Meine Eltern haben einen Kochherd zwischen Küche und Esszimmer und selbst dieser macht eine angenehmere Wärme und es kommt mir auch so vor, als ob dieser länger warm hält.
Danke für eure Antworten. Bin gerade recht ratlos, nachdem ich jetzt beim dritten Kaminbauer war und das gleiche Konzept angeboten bekomme: Ein Heizeinsatz, mit Magnetherm ummauert (dadurch Wärmespeichernd), verpackt in eine verputzte Hülle mit wärmespeichernden- und durchlässigen Steinen mit höherer Rohdichte als der übliche Ytongg. D. h. wieder ein Gerät mit Konvektionswärme, aufgerüstet mit Speichern für Strahlungswärme.
Das Thema Grundofen will oder kann mir keiner anbieten. Hat jemand eine Idee woran das liegen könnte? Ist mein Platz zu gering? Wir haben max. 1,00m Tiefe und 1,07 Breite inkl. 0,42er Schornstein in der Ecke, wobei wir auch noch ca. +0,30 m in den Raum reingehen würden.
Jetzt will unser Architekt für die Ausführungsplanung Angaben für den Rohrdurchmesser, das Kaminfundament und die Position der Bodenzuluft wissen. Das will mir aber keiner sagen, solange ich nicht den Kaminvertrag unterschrieben habe. Kann ich nicht einfach das Fundament mit den Maßen 1,00 x 1,30 m erstellen lassen und wenn der Kamin kleiner wird ist es auch nicht so wild?
Viel Glück, Redsonic
Das Thema Grundofen will oder kann mir keiner anbieten. Hat jemand eine Idee woran das liegen könnte? Ist mein Platz zu gering? Wir haben max. 1,00m Tiefe und 1,07 Breite inkl. 0,42er Schornstein in der Ecke, wobei wir auch noch ca. +0,30 m in den Raum reingehen würden.
Jetzt will unser Architekt für die Ausführungsplanung Angaben für den Rohrdurchmesser, das Kaminfundament und die Position der Bodenzuluft wissen. Das will mir aber keiner sagen, solange ich nicht den Kaminvertrag unterschrieben habe. Kann ich nicht einfach das Fundament mit den Maßen 1,00 x 1,30 m erstellen lassen und wenn der Kamin kleiner wird ist es auch nicht so wild?
Viel Glück, Redsonic
Hi,
also mein Grundofen hat eine Grundfläche von 1,20m mal 2m mit 7 m Zügen. Das Fundament ist genau da ausgespart. Mein brennraum fasst 10kg. Wanddurchführung für den Ofen ist ein180mm Rohr und zuluft ist ein 150er rohr. Ich habe noch einen Kaminofen im Arbeitszimmer (42qm) mit 6kw der hat eine zuluft von 120mm und ein Rauchrohr von 150mm. ich habe auch lange gesucht bis ich einen Ofenbauer gefunden habe der machte was ich wollte und nicht irgend ein 'Industrieteil' verkaufen will.
Im I-Net gibts einige die Deutschlandweit anbieten. Sind aber etwa 10% teurer als mein lokaler Handwerker war.
also mein Grundofen hat eine Grundfläche von 1,20m mal 2m mit 7 m Zügen. Das Fundament ist genau da ausgespart. Mein brennraum fasst 10kg. Wanddurchführung für den Ofen ist ein180mm Rohr und zuluft ist ein 150er rohr. Ich habe noch einen Kaminofen im Arbeitszimmer (42qm) mit 6kw der hat eine zuluft von 120mm und ein Rauchrohr von 150mm. ich habe auch lange gesucht bis ich einen Ofenbauer gefunden habe der machte was ich wollte und nicht irgend ein 'Industrieteil' verkaufen will.
Im I-Net gibts einige die Deutschlandweit anbieten. Sind aber etwa 10% teurer als mein lokaler Handwerker war.
Ähnliche Themen