S
Samsonite
So wir haben nun die Genehmigung zur Nachverdichtung erhalten und laut Landratsamt sollte es nach aktuellem Stand auch keinerlei Probleme beim Bau geben. Das freut mich natürlich sehr.
Jetzt gehts an die weitere Planung und ich hab direkt ne Frage:
Meint ihr, ich kann hier mit dem unteren Fahrzeug rückwärts raus und wenden? Fahrzeug ist 5,20 lang und die Breite des Hofs (also von unterer Grenze bis Hauswand) aktuell auf 7 Meter geplant. Irgendwie scheint es mir als könnte es passen
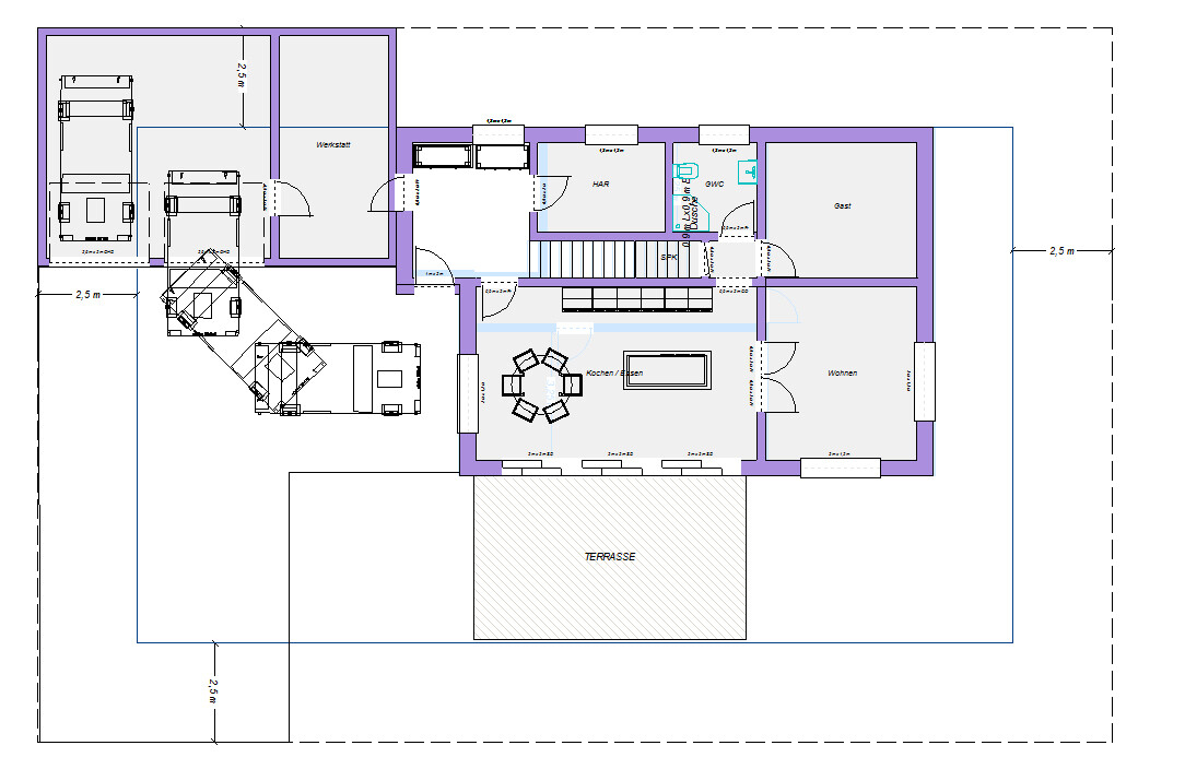
Jetzt gehts an die weitere Planung und ich hab direkt ne Frage:
Meint ihr, ich kann hier mit dem unteren Fahrzeug rückwärts raus und wenden? Fahrzeug ist 5,20 lang und die Breite des Hofs (also von unterer Grenze bis Hauswand) aktuell auf 7 Meter geplant. Irgendwie scheint es mir als könnte es passen