Moin moin allerseits!
Ich möchte gerne eine ETW kaufen, die über einen Bauträger zum Festpreis angeboten wird.
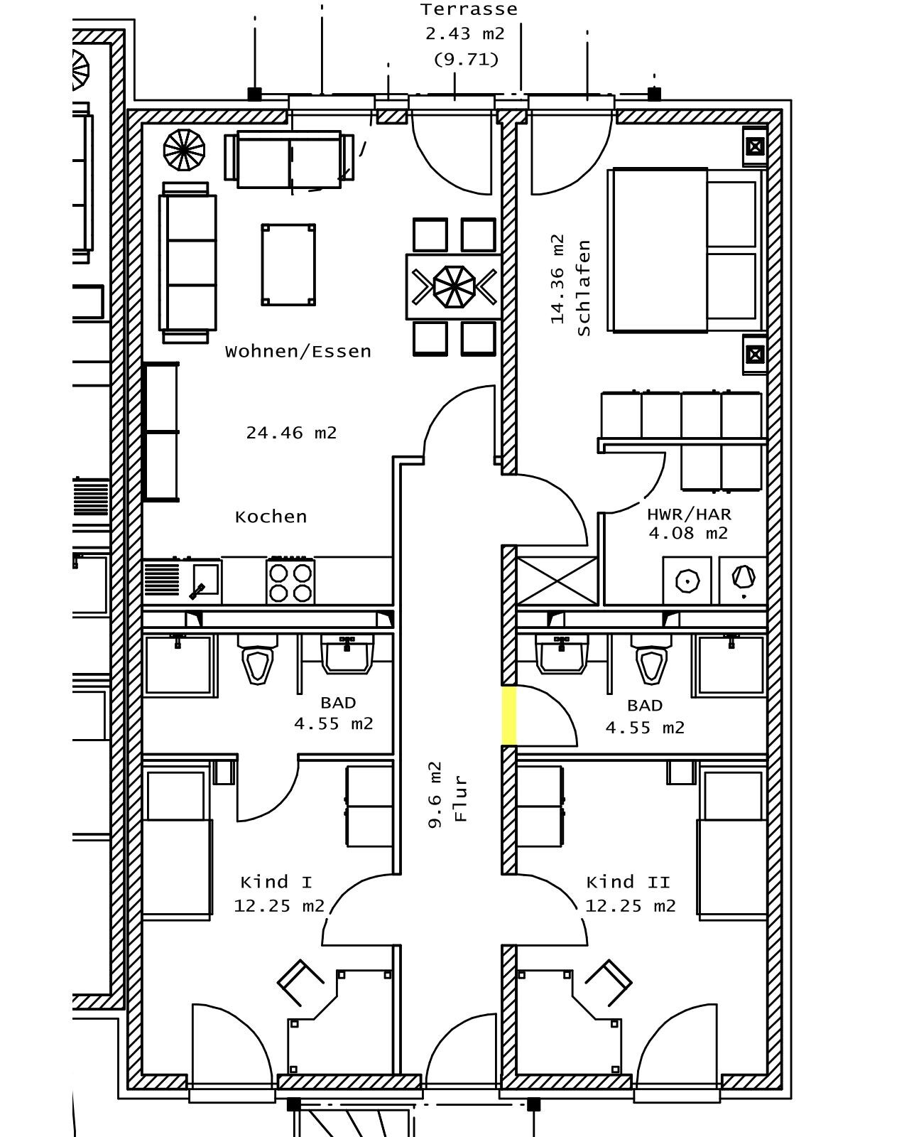
Zum Regelgrundriss (es sind mehrere Wohnungen gleichen Grundrisses geplant) habe ich einige Änderungswünsche und habe mir diese zusätzlich vom Bauträger anbieten lassen.
Im Einzelnen handelt es sich um den Entfall eines zweiten Badezimmers, um die Verschiebung einer Wand, den zusätzlichen Einbau einer Badewanne, die Umpositionierung des Hauswirtschaftsraum und den zusätzlichen Einbau zweier Fenster. Für weiteres siehe Bilder im Anhang.
Der gesamte Wohnungskaufpreis mit Außenanlage beläuft sich auf 96.500 € brutto. Ich erhielt ein Angebot über 8.000 € brutto für die zusätzlichen Leistungen, welches ebenfalls zum Festpreis erstellt wurde.
Mir scheint das Angebot sehr hoch angesetzt zu sein, zu mal alle Arbeiten bis auf die zusätzlichen Fenster annähernd Kostenneutral sein sollten. Nun zu meinen Fragen:
1. Habe ich ein Recht darauf, mir die Kosten für die Zusatzarbeiten aufschlüsseln zu lassen?
2. Habt ihr Tipps für mich, wie ich das Angebot herunterhandeln kann?
Vielen Dank für eure Hilfe!

Ich möchte gerne eine ETW kaufen, die über einen Bauträger zum Festpreis angeboten wird.
Zum Regelgrundriss (es sind mehrere Wohnungen gleichen Grundrisses geplant) habe ich einige Änderungswünsche und habe mir diese zusätzlich vom Bauträger anbieten lassen.
Im Einzelnen handelt es sich um den Entfall eines zweiten Badezimmers, um die Verschiebung einer Wand, den zusätzlichen Einbau einer Badewanne, die Umpositionierung des Hauswirtschaftsraum und den zusätzlichen Einbau zweier Fenster. Für weiteres siehe Bilder im Anhang.
Der gesamte Wohnungskaufpreis mit Außenanlage beläuft sich auf 96.500 € brutto. Ich erhielt ein Angebot über 8.000 € brutto für die zusätzlichen Leistungen, welches ebenfalls zum Festpreis erstellt wurde.
Mir scheint das Angebot sehr hoch angesetzt zu sein, zu mal alle Arbeiten bis auf die zusätzlichen Fenster annähernd Kostenneutral sein sollten. Nun zu meinen Fragen:
1. Habe ich ein Recht darauf, mir die Kosten für die Zusatzarbeiten aufschlüsseln zu lassen?
2. Habt ihr Tipps für mich, wie ich das Angebot herunterhandeln kann?
Vielen Dank für eure Hilfe!
N
nordanney20.10.15 21:15Das einzige "Recht" was Du hast, ist lieb zu fragen und auf eine Antwort zu hoffen 😉. Der Bauträger hat zumindest das Recht, nein zu sagen und dann an einen anderen Interessenten zu verkaufen.
Ob Du verhandeln kannst "Ich bin nicht bereit, die T€ 8 zu bezahlen, wie können Sie mir entgegenkommen?", ist eine Frage von Angebot und Nachfrage. Bei T€ 96,5 Kaufpreis gehe ich mal davon aus, dass Du irgendwo in einer sehr günstigen Gegend kaufen möchtest (Osten, ADW, sehr ländlich o.ä. - 1.100 €/qm Wohnfläche inkl. Grundstücksanteil, da kann man in vielen Regionen von Deutschland noch nicht einmal für bauen, geschweige denn als Bauträger Geld verdienen!!!). Da wird die Nachfrage wahrscheinlich nicht so hoch sein, so dass der Bauträger eher zu Zugeständnissen bereit sein wird - sofern der Aufpreis zunächst das Portemonnaie des Bauträgers füllen sollte und tatsächlich zu hoch ist.
Ob Du verhandeln kannst "Ich bin nicht bereit, die T€ 8 zu bezahlen, wie können Sie mir entgegenkommen?", ist eine Frage von Angebot und Nachfrage. Bei T€ 96,5 Kaufpreis gehe ich mal davon aus, dass Du irgendwo in einer sehr günstigen Gegend kaufen möchtest (Osten, ADW, sehr ländlich o.ä. - 1.100 €/qm Wohnfläche inkl. Grundstücksanteil, da kann man in vielen Regionen von Deutschland noch nicht einmal für bauen, geschweige denn als Bauträger Geld verdienen!!!). Da wird die Nachfrage wahrscheinlich nicht so hoch sein, so dass der Bauträger eher zu Zugeständnissen bereit sein wird - sofern der Aufpreis zunächst das Portemonnaie des Bauträgers füllen sollte und tatsächlich zu hoch ist.
An sich ist es egal wie er auf den Preis kommt und ob du das günstig oder teuer findest.
Aber er hat definitiv planugskosten, möglicherweise statische Nachberechnungen usw, die er nicht hätte wenn du den Standard Grundriss behalten würdest.
Die kommen ja noch zu "sichtbaren" Veränderungen dazu.
Versuch zu verhandeln, wenn die Wohnungen gefragt sind, wird es wahrscheinlich aussichtslos sein.
Dann musst du dir klar werden ob die Wohnung es zu dem neuen Preis noch wert ist von dir gekauft zu werden.
Aber er hat definitiv planugskosten, möglicherweise statische Nachberechnungen usw, die er nicht hätte wenn du den Standard Grundriss behalten würdest.
Die kommen ja noch zu "sichtbaren" Veränderungen dazu.
Versuch zu verhandeln, wenn die Wohnungen gefragt sind, wird es wahrscheinlich aussichtslos sein.
Dann musst du dir klar werden ob die Wohnung es zu dem neuen Preis noch wert ist von dir gekauft zu werden.
Chebu schrieb:
Zum Regelgrundriss (es sind mehrere Wohnungen gleichen Grundrisses geplant)Da muss jetzt aber jeder eingesetzte Handwerker mehrmals auf die Pläne schauen, damit er aus seinen routinierten Handgriffen herausgelockt wird - das kann man sich schon mal als BT bezahlen lassen. Das sind schonmal ein paar nicht wenig teure Handwerkerstunden... das sollte man als Laie bedenken, um die Mehrkosten zu verstehen.
Und da du ja gerade die Zimmer mit viel Technik verändern möchtest kann ich mir schon vorstellen, dass es nicht preiswert wird, denn es sind womöglich Trassen (Strom, Wasser, Abwasser)geplant, welche durch das ganze Haus gehen...und nun muss man diese womöglich teilweise verlegen...
H
HilfeHilfe21.10.15 07:25Hallo.
erscheint mir im Verhältniss zum Kaufpreis sehr teuer. Aber hast du einen Wahl außer zu Fragen ?
Du kannst es nett versuchen und hier die Antwort posten.
In unserem Fall haben wir faire Preise für die Änderung bekommen. nichttragende Wände wurden sogar "kostenneutral" verschoben. War damals übrigens mein Lieblingswort.
erscheint mir im Verhältniss zum Kaufpreis sehr teuer. Aber hast du einen Wahl außer zu Fragen ?
Du kannst es nett versuchen und hier die Antwort posten.
In unserem Fall haben wir faire Preise für die Änderung bekommen. nichttragende Wände wurden sogar "kostenneutral" verschoben. War damals übrigens mein Lieblingswort.
Ähnliche Themen