S
Stein202317.05.23 22:43kbt09 schrieb:
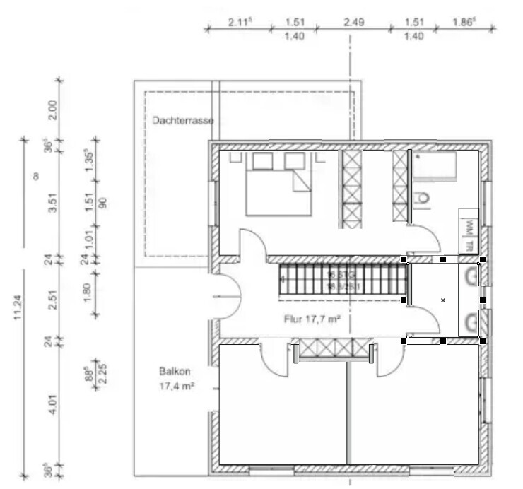
Mal mit den beiden Querwänden im OG wie in deinem OG. Die senkrechten Wände müssen meiner Meinung nach nicht unbedingt über den EG-Wänden liegen.
Bad ist jetzt eher quick and dirty.
Elternschlafzimmer ca. 370 bis 380 an Kopfseite vom Bett, Ankleidebereich ca. 210 bis 215 cm.
Im Flur eine Schranknische integriert, dann müssen auch nicht so schrecklich viele Schränke ins Bad.

Wir hatten es exakt so geplant ursprünglich. Aber wie gesagt, der Statiker sagte, dass dies nicht umsetzbar sei. Es kommt noch ein Dachboden drauf, daher müssten die Lasten entsprechend abgetragen werden durch richtige Wände. Trotzdem Danke für den Vorschlag, der wirklich gut ist.
Welche Lasten? Ich kann mir das wirkliich kaum vorstellen.
In deiner Schlafzimmervariante ... Bett wirklich nur 2m breit? Bei Matratzen immer auch ans bettgestell denken.
Sind dann also 280 bis 290 cm Minimum von deiner 313 cm Wand zur Ankleide. Miniplatz für Nachtisch.
Und, man muss immer direkt an der einen schlafenden Person am Kopf vorbei um in die Ankleide zu kommen.
Zusätzlich .. die Kinderzimmer haben Nord- und West/oder Ostfenster. Sie wären eigentlich mit Südfenster besser aufgehoben.
Und, Bad über Bad vereinfacht einiges.
Bad mit WC-Abfluss ins Gästezimmer ist ja nicht alles ... der WC-Abfluss sollte sich ja idealerweise dann noch mit dem WC-Abfluss vom Gäste-WC vereinen und irgendwo in einen gemeinsamen Hausabfluß münden. Frag mal deinen Architekt danach.
In deiner Schlafzimmervariante ... Bett wirklich nur 2m breit? Bei Matratzen immer auch ans bettgestell denken.
Sind dann also 280 bis 290 cm Minimum von deiner 313 cm Wand zur Ankleide. Miniplatz für Nachtisch.
Und, man muss immer direkt an der einen schlafenden Person am Kopf vorbei um in die Ankleide zu kommen.
Zusätzlich .. die Kinderzimmer haben Nord- und West/oder Ostfenster. Sie wären eigentlich mit Südfenster besser aufgehoben.
Und, Bad über Bad vereinfacht einiges.
Bad mit WC-Abfluss ins Gästezimmer ist ja nicht alles ... der WC-Abfluss sollte sich ja idealerweise dann noch mit dem WC-Abfluss vom Gäste-WC vereinen und irgendwo in einen gemeinsamen Hausabfluß münden. Frag mal deinen Architekt danach.
Stein2023 schrieb:
Ich weiß ja nicht, was für ein breites Bett du hast... 4 Meter ist die Raumbreite. 3,13 Meter ist die Rückwand am Betkopf. 2 Meter breit ist das Bett:

Das Schlafzimmer ist exakt 1 zu 1 dieses:

Wo ist das Problem an diesem Schlafzimmer? Vielleicht zu wenig Platz für einen etwas breiten Nachschrank oder was ist es? Erkläre es nochmal. So wie jetzt eingezeichnet, hat der planoben Schlafende keinen Nachtschrank. Ich könnte so nicht schlafen und leben. Brille, Wecker, Lampe, Buch und ne Flasche Wasser brauchen jeden Abend ihren Platz. Ihr könnt ja untereinander um die Zentimeter feilschen, aber zufriedenstellend wird das imho nie.
Schorsch_baut schrieb:
Nun habt ihr in dem Plan ein großes Bad, aber das ist ein unattraktiver Mehrzweckraum mit zwei Türen. Wo die Waschecke ist, da stehen ja auch Waschmittel und Wäschekörbe. Ich würde noch mal über die Prioritäten nachdenken. Ich teile mir lieber das Bad mit den Dreckspatzen, pardon Kindern als mit der Dreckwäsche. 🙂Ich störe mich da auch massiv dran, aber der TE geht auf die Nachfragen bzgl WA/Trockner bisher nicht ein.Mein Bad könnte 30m² groß sein, wenn ich dort beim Relaxen - wo auch immer, so ganz ohne Wanne - auf die Schmutzwäsche schaue ist jede Entspannung dahin. Zumal es im Alltag doch auch ne Katastrophe ist die ganze Wäsche dort in dem Raum zu haben. Seit kurzem mit 2 Kindern hab' ich das Gefühl ich wasche neuerdings für 10 Personen, und ungefähr so sieht's dann auch im Hauswirtschaftsraum aus.
C
chand198618.05.23 05:31kati1337 schrieb:
Ich störe mich da auch massiv dran, aber der TE geht auf die Nachfragen bzgl WA/Trockner bisher nicht ein.
Mein Bad könnte 30m² groß sein, wenn ich dort beim Relaxen - wo auch immer, so ganz ohne Wanne - auf die Schmutzwäsche schaue ist jede Entspannung dahin. Zumal es im Alltag doch auch ne Katastrophe ist die ganze Wäsche dort in dem Raum zu haben. Seit kurzem mit 2 Kindern hab' ich das Gefühl ich wasche neuerdings für 10 Personen, und ungefähr so sieht's dann auch im Hauswirtschaftsraum aus.Naja, der TE hat im Thread einmal deutlich gemacht, dass für ihn ein Bad ein reiner Nutzraum ist, dem kein Erholungswert zukommt. Das Zitat war grob: „duschen, waschen, usw.“So befremdlich ich das finde, ich muss so ja nicht wohnen.
Was für @Stein2023 das Bad sein mag ist für mich das Auto - versteht in meinem Umfeld auch keiner.
Ich würde eher eruieren, ob diese außerdurchschnittliche Einstellung wirklich von allen Bewohnern geteilt wird und auch so bleiben wird.
Späterer Umbau ist teuer und ein paar Eventualitäten kann man ja vorher erledigen. Eine zweite Tür hätte ICH z. B. in keinem Szenario, auch bei reinem Nutzraum ohne jeden Beiwert nicht.
M
motorradsilke18.05.23 06:13kati1337 schrieb:
Ich störe mich da auch massiv dran, aber der TE geht auf die Nachfragen bzgl Waschmaschine / Trockner bisher nicht ein.
Mein Bad könnte 30m² groß sein, wenn ich dort beim Relaxen - wo auch immer, so ganz ohne Wanne - auf die Schmutzwäsche schaue ist jede Entspannung dahin. Zumal es im Alltag doch auch ne Katastrophe ist die ganze Wäsche dort in dem Raum zu haben. Seit kurzem mit 2 Kindern hab' ich das Gefühl ich wasche neuerdings für 10 Personen, und ungefähr so sieht's dann auch im Hauswirtschaftsraum aus.Doch, er hat doch geschrieben, dass er es so haben will. Das sollte doch reichen.
Es hat doch Jeder andere Vorstellungen. TE ist doch ein erwachsener Mensch, der sich Gedanken gemacht hat und weiss, wie er leben möchte.
Ich würde die Waschmaschine auch nicht mehr im Bad haben wollen. Aber wenn es so gewollt ist, dann ist es so.
Ähnliche Themen