V
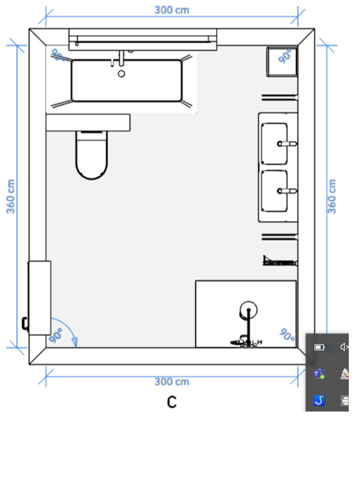
Viwaldi2526.07.22 18:10Wir sind bei den Planungen für das Elternbad, welches keine große Wellnessoase werden soll/muss, sondern eher funktional eingerichtet werden soll. Wir möchten gerne eine Badewanne in 180x75, weil mein Mann über 1,90m groß ist. Zudem haben wir eine bodentiefe Dusche in 120x90 eingeplant mit Glasabtrennung und mein Mann möchte gerne einen doppelwaschtisch oder zwei einzelne nebeneinander, aber auf jedenfall zwei Waschbecken. Die Fallrohre für die Entwässerung werden an der Stelle mit dem roten Punkt verlaufen. Idealerweise wäre also die Toilette auf der Seite, sonst müssten wir entsprechend dicke Rohre in den Boden einarbeiten lassen.
Im Grundriss eingezeichnet ist die Idee des Bauunternehmers, wir haben mehrere weitere durchgespielt, kommen aber irgendwie noch nicht zur perfekten Lösung. Wir hätten gerne auf jedenfall noch ein bisschen Stauraum für einen schrank, welcher nicht riesig sein muss, da wir auf unter den Waschbecken Unterschränke anbringen wollen, aber der fehlt uns in den bisherigen Varianten. Vielleicht hat ja jemand eine Idee.

Vielen Dank im Voraus :-)



Im Grundriss eingezeichnet ist die Idee des Bauunternehmers, wir haben mehrere weitere durchgespielt, kommen aber irgendwie noch nicht zur perfekten Lösung. Wir hätten gerne auf jedenfall noch ein bisschen Stauraum für einen schrank, welcher nicht riesig sein muss, da wir auf unter den Waschbecken Unterschränke anbringen wollen, aber der fehlt uns in den bisherigen Varianten. Vielleicht hat ja jemand eine Idee.
Vielen Dank im Voraus :-)
M
Myrna_Loy26.07.22 18:59Warum denn ein Doppelwaschtisch, wenn nicht mal die Gefahr besteht, mit Kindern das Bad teilen zu müssen? Ihr wollt ganz schön große Objekte unterbringen.
V
Viwaldi2526.07.22 20:15ja der Doppelwaschtisch hätte für mich auch keine Priorität, ich habe bisher meinen Mann aber nicht überzeugen können, diesen wegzulassen
M
Myrna_Loy26.07.22 20:16Putzt er das Bad? 😎
Was sind denn seine Argumente?
Was sind denn seine Argumente?
M
Myrna_Loy26.07.22 20:27ich tendiere zu Idee 1 und dann eine freistehende Wanne mittig unters Fenster. Der Raum ist so groß, da könnte die sogar so weit von der Wand weg, dass man dahinter putzen kann.
V
Viwaldi2526.07.22 20:45Myrna_Loy schrieb:
Putzt er das Bad? 😎
Was sind denn seine Argumente?Keine rationalen Argumente. Schon immer so, man kann sich parallel fertig machen....nichts was man rational als sinnvoll erachten würde ;-)
Ähnliche Themen