N
neutronbx19.05.20 19:36Hallo zusammen,
wir sind gerade dabei die Badplanung abzuschließen. Leider hatten wir wegen Corona keine Möglichkeit eine Badausstellung zu besuchen und uns dort beraten zu lassen. Da die Werkpläne diese Woche fertig sein müssen bleibt uns nur heute und morgen uns für eine der 3 Varianten. Das Bad ist an die zentrale Lüftungsanlage angeschlossen (nahe der Dusche). Für welche der 3 würdet ihr euch entscheiden und vor allem warum? Gerne nehmen auch Optimierunsvorschläge entgegen
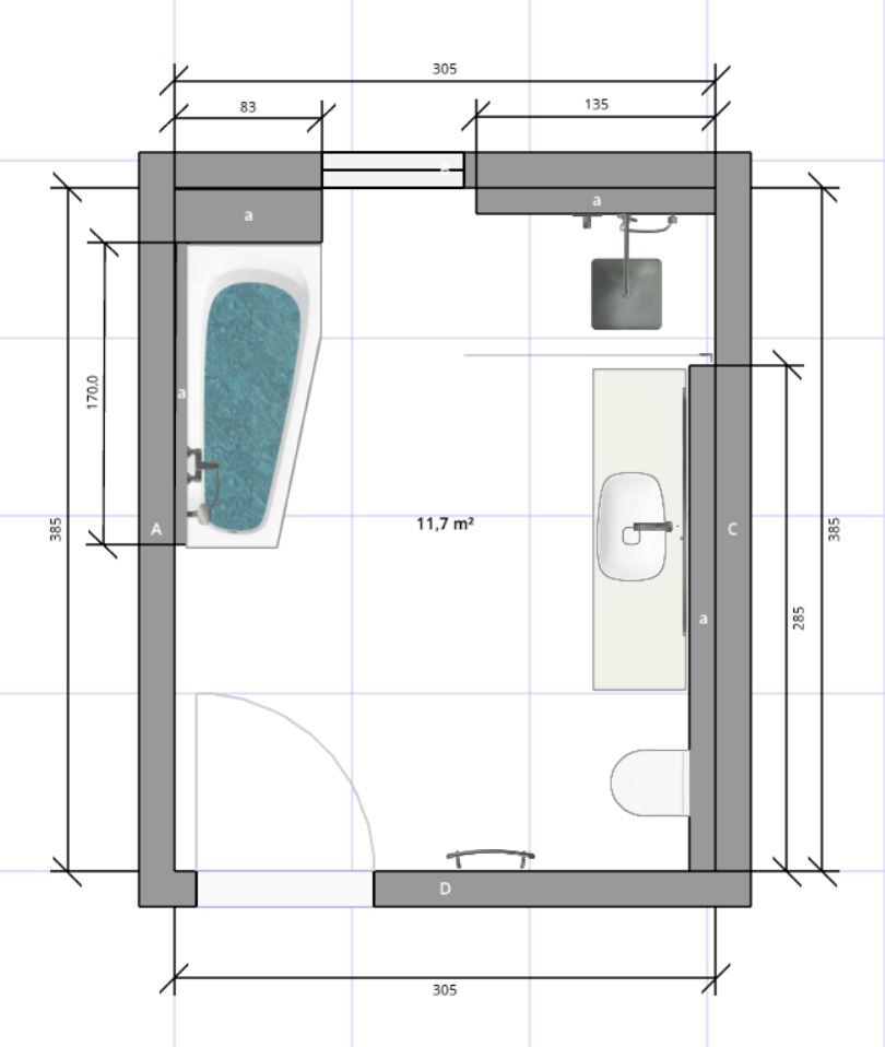
PS: bei Variante 3 ist der Bereich bei der Badewanne "a" keine Vorwand sondern eine Ablagefläche.



wir sind gerade dabei die Badplanung abzuschließen. Leider hatten wir wegen Corona keine Möglichkeit eine Badausstellung zu besuchen und uns dort beraten zu lassen. Da die Werkpläne diese Woche fertig sein müssen bleibt uns nur heute und morgen uns für eine der 3 Varianten. Das Bad ist an die zentrale Lüftungsanlage angeschlossen (nahe der Dusche). Für welche der 3 würdet ihr euch entscheiden und vor allem warum? Gerne nehmen auch Optimierunsvorschläge entgegen
PS: bei Variante 3 ist der Bereich bei der Badewanne "a" keine Vorwand sondern eine Ablagefläche.
S
saralina8719.05.20 19:45Ich finde Variante 3 am sympathischsten.
M
MasterXX12319.05.20 19:57Toilette neben der Badewanne fände ich nicht so toll...
Würde die Toilette eher in den "hinteren" Raum setzen. Am besten an eine Außenwand. Für mich optimal ist: Badzimmertür auf dann als erstes Dusche und waschtisch in optimaler Reichweite.
würde Waschtisch nach links Mitte schieben. Dusche gleich nach der Türe rechts. Badewanne mittig rechts. WC mit Trennwand (ca.90cm hoch oder ganz hoch) so wie varainte 1. handtuchheizkörper hinter die Türe. da wo jetzt die Dusche ist ein Schrank für Handtücher, Putzzeugs etc.
würde Waschtisch nach links Mitte schieben. Dusche gleich nach der Türe rechts. Badewanne mittig rechts. WC mit Trennwand (ca.90cm hoch oder ganz hoch) so wie varainte 1. handtuchheizkörper hinter die Türe. da wo jetzt die Dusche ist ein Schrank für Handtücher, Putzzeugs etc.
Ähnliche Themen