ᐅ Badplanung 3.50 m x 2.86 m
Erstellt am: 08.10.15 09:11
Hallo allerseits!
Wer hat Lust, mich bei der der Badgestaltung zu beraten?
Unser Bad ist 3.50 m x 2.86 m groß. Wenn man es im Hochformat aufzeichnet, sind die Wände wie folgt:
- Links ist eine 350-cm-Wand, an der ein über die ganze Raumbreite laufendes Lichtband (Brüstungshöhe 132 cm) verläuft.
- Rechts ist eine 350-cm-Wand, in der die Tür sein muss, die aber noch verschoben werden kann.
- Oben und unten sind 286-cm-Wände.
Die bodentief geflieste Dusche muss wegen des Abflusses an der oberen Zimmerwand positioniert werden, allerdings natürlich nicht vor dem Fenster.
Ansonsten sollen folgende Objekte platziert werden:
- Doppelwaschtisch (130 cm x 48 cm)
- Badewanne in Standardgröße (175 cm x 75 cm)
- WC
Als Erstes kam uns eine T-Lösung in den Sinn:

Allerdings sind 2.86 m Raumbreite wohl zu schmal für eine T-Lösung. Der Durchgang zu Dusch ist zu eng, außerdem spritzt ohne eine Türe zur Dusche alles Wasser raus, was ja gerade der Vorteil der T-Lösung ist, dass man ohne Türe auskommt.
Daher modifizierten wir den Plan mal zu einer L-Lösung:

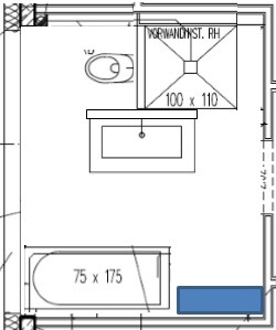
So richtig überzeugend fanden wir das aber auch nicht. Aktuell sind wir bei folgender Lösung:

wobei man WC und Badewanne auch noch vertauschen könnte, dann wäre quasi der Dusch-/Badebereich on der oberen Badhälfte und der WC-/Waschbeckenbereich in der unteren Zimmerhälfte.
Habt Ihr andere Ideen oder Anregungen?
Beste Grüße
jx7
Wer hat Lust, mich bei der der Badgestaltung zu beraten?
Unser Bad ist 3.50 m x 2.86 m groß. Wenn man es im Hochformat aufzeichnet, sind die Wände wie folgt:
- Links ist eine 350-cm-Wand, an der ein über die ganze Raumbreite laufendes Lichtband (Brüstungshöhe 132 cm) verläuft.
- Rechts ist eine 350-cm-Wand, in der die Tür sein muss, die aber noch verschoben werden kann.
- Oben und unten sind 286-cm-Wände.
Die bodentief geflieste Dusche muss wegen des Abflusses an der oberen Zimmerwand positioniert werden, allerdings natürlich nicht vor dem Fenster.
Ansonsten sollen folgende Objekte platziert werden:
- Doppelwaschtisch (130 cm x 48 cm)
- Badewanne in Standardgröße (175 cm x 75 cm)
- WC
Als Erstes kam uns eine T-Lösung in den Sinn:
Allerdings sind 2.86 m Raumbreite wohl zu schmal für eine T-Lösung. Der Durchgang zu Dusch ist zu eng, außerdem spritzt ohne eine Türe zur Dusche alles Wasser raus, was ja gerade der Vorteil der T-Lösung ist, dass man ohne Türe auskommt.
Daher modifizierten wir den Plan mal zu einer L-Lösung:
So richtig überzeugend fanden wir das aber auch nicht. Aktuell sind wir bei folgender Lösung:
wobei man WC und Badewanne auch noch vertauschen könnte, dann wäre quasi der Dusch-/Badebereich on der oberen Badhälfte und der WC-/Waschbeckenbereich in der unteren Zimmerhälfte.
Habt Ihr andere Ideen oder Anregungen?
Beste Grüße
jx7
Die letzte Variante finde ich schon ganz gut, aber Du wirst wahrscheinlich aus Spritzschutzgründen nicht ohne Tür vor der Dusche auskommen. Mir sagte mein Badumbauer, dass eine bodenebene Walk-In-Dusche am besten ca. 150 cm tief sein sollte, wenn man ohne Tür auskommen möchte. Zumindest habe ich das bei mir so geplant, allerdings verzichte ich dafür auf die ursprünglich vorhandene Badewanne.
Ich hab mir auch mal Gedanken gemacht: da ich selbst eine Walkin-Dusche habe, aber 2 Meter tief, erinnere ich mich, dass nach ca. 1,50 keine relevanten Spritzer mehr sind. Wenn dort die Toilette platziert wird, hat man mehr Bewegungsfreiheit dazwischen. Zum Baden finde ich es auch angenehmer, nicht auf eine Wandecke zu schauen.
B
Bieber081508.10.15 21:07Zur Toilette gehört vermutlich noch eine Belüftung über Dach, in der Ecke erwarte ich daher noch eine Abkofferung. Der freie Durchgang zwischen WC und Dusche wird dann kleiner (Wenn die Duscharmatur an die kurze Wand soll, wird ggf. noch eine Vorsatzwand notwendig).
Pro-Tipp (eigene Erfahrung): Am besten überall mit Vorsatzwänden planen, sollten sie nachher nicht nötig sein, gut. Andernfalls erspart man sich Überraschungen. Wie wird die Wanne entwässert? Kann die Armatur in die Wand? Dito Waschtisch ...

Pro-Tipp (eigene Erfahrung): Am besten überall mit Vorsatzwänden planen, sollten sie nachher nicht nötig sein, gut. Andernfalls erspart man sich Überraschungen. Wie wird die Wanne entwässert? Kann die Armatur in die Wand? Dito Waschtisch ...
Ähnliche Themen