Guten Tag liebe Forumsmitglieder,
ich beabsichtige Anfang des 2. Quartals ein eingeschossiges Wohnhaus zu realisieren. Das Bauvorhaben hat 110 m² Wohnfläche und ist für 2 Personen ausgelegt.
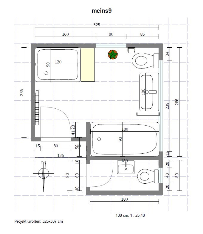
Bei der Badplanung bin ich noch nicht zufrieden. Ich habe mehrere Varianten ausprobiert, aber irgendwie erscheint mir die Anordnung der Sanitäreinrichtung noch nicht optimal.
Auf der rechten (östlichen) Seite befindet sich von der Traufe bis zum Giebel ein dreieckiges Fenster, das ist Fix, das andere Fenster nach Norden ist noch in Breite und Standort variabel.
Westlich grenzt der Hauswirtschaftsraum an, südlich habe ich ein Gäste-WC etabliert. Größer läßt sich der Raum leider nicht machen, eher müsste ich Ihn noch zugunsten des Hauswirtschaftsraum verkleinern.
Im Bad selbst möchte ich eine Bodenebene Dusche mit Schiebetür, eine Duowanne und einen großen Waschtisch. Das nördliche Fenster solle frei zugänglich sein.
Über das Gäste-WC habe ich lange nachgedacht, ob ich es überhaupt brauche, und mich dann knapp für eines entschieden.
Habt Ihr Verbesserungsvorschläge ?
LG
Peter


ich beabsichtige Anfang des 2. Quartals ein eingeschossiges Wohnhaus zu realisieren. Das Bauvorhaben hat 110 m² Wohnfläche und ist für 2 Personen ausgelegt.
Bei der Badplanung bin ich noch nicht zufrieden. Ich habe mehrere Varianten ausprobiert, aber irgendwie erscheint mir die Anordnung der Sanitäreinrichtung noch nicht optimal.
Auf der rechten (östlichen) Seite befindet sich von der Traufe bis zum Giebel ein dreieckiges Fenster, das ist Fix, das andere Fenster nach Norden ist noch in Breite und Standort variabel.
Westlich grenzt der Hauswirtschaftsraum an, südlich habe ich ein Gäste-WC etabliert. Größer läßt sich der Raum leider nicht machen, eher müsste ich Ihn noch zugunsten des Hauswirtschaftsraum verkleinern.
Im Bad selbst möchte ich eine Bodenebene Dusche mit Schiebetür, eine Duowanne und einen großen Waschtisch. Das nördliche Fenster solle frei zugänglich sein.
Über das Gäste-WC habe ich lange nachgedacht, ob ich es überhaupt brauche, und mich dann knapp für eines entschieden.
Habt Ihr Verbesserungsvorschläge ?
LG
Peter
Hallo Peter,
also ich persönlich finde es unnötig eine Gästetoilette zu machen wenn diese direkt neben dem hauptbad liegt. Dann können deine Gäste doch auch das Bad benutzen. Gäste-WC würde ich nur machen z.B. bei einem 1 1/2 Geschosser, damit die Gäste nicht hochlaufen müssen, aber nebeneinander? Ich würde das Bad vergrößern und somit ein schönes Eck Badezimmer schaffen, aber sicherlich ist das geschmackssache.
LG
Julia
also ich persönlich finde es unnötig eine Gästetoilette zu machen wenn diese direkt neben dem hauptbad liegt. Dann können deine Gäste doch auch das Bad benutzen. Gäste-WC würde ich nur machen z.B. bei einem 1 1/2 Geschosser, damit die Gäste nicht hochlaufen müssen, aber nebeneinander? Ich würde das Bad vergrößern und somit ein schönes Eck Badezimmer schaffen, aber sicherlich ist das geschmackssache.
LG
Julia
B
Bauexperte03.01.12 17:57Hallo Peter,
Das Dreiecksfenster ist nicht bodentief, richtig? Und - wenn ich Deine Ansicht richtig einordne, fehlt das Fenster vom Gäste-WC?
Anbei findest Du zwei schnell skizzierte Vorschläge; bei beiden Versionen der bodentiefen Dusche erfordern beide keine Glas-/Schiebetüre, weil das Wasser nicht weit genug spritzt; ein einfaches Bade-/Saunatuch reicht. Auf der Nordseite macht das 2. Fenster bei 2. Version Sinn - würde ich beide als Lichtband ausführen.
Ein Gäste-WC ist immer gut - selbst bei zwei Menschen teilen beide häufig die gleichen Bedürfnisse. Und - wenn ich von mir ausgehe, ich möchte keinen Fremden in "meinem" Bad haben 😉
Freundliche Grüße


peaches schrieb:
Bei der Badplanung bin ich noch nicht zufrieden. Ich habe mehrere Varianten ausprobiert, aber irgendwie erscheint mir die Anordnung der Sanitäreinrichtung noch nicht optimal.
Auf der rechten (östlichen) Seite befindet sich von der Traufe bis zum Giebel ein dreieckiges Fenster, das ist Fix, das andere Fenster nach Norden ist noch in Breite und Standort variabel.
Das Dreiecksfenster ist nicht bodentief, richtig? Und - wenn ich Deine Ansicht richtig einordne, fehlt das Fenster vom Gäste-WC?
Anbei findest Du zwei schnell skizzierte Vorschläge; bei beiden Versionen der bodentiefen Dusche erfordern beide keine Glas-/Schiebetüre, weil das Wasser nicht weit genug spritzt; ein einfaches Bade-/Saunatuch reicht. Auf der Nordseite macht das 2. Fenster bei 2. Version Sinn - würde ich beide als Lichtband ausführen.
peaches schrieb:
Über das Gäste-WC habe ich lange nachgedacht, ob ich es überhaupt brauche, und mich dann knapp für eines entschieden.
Ein Gäste-WC ist immer gut - selbst bei zwei Menschen teilen beide häufig die gleichen Bedürfnisse. Und - wenn ich von mir ausgehe, ich möchte keinen Fremden in "meinem" Bad haben 😉
Freundliche Grüße
Hallo,
v.g.
peaches schrieb:Darauf sollte man nicht verzichten.
...Über das Gäste-WC habe ich lange nachgedacht, ob ich es überhaupt brauche, ..
peaches schrieb:Das vielleicht nicht, aber rechtzeitig daran denken, dass, wenn der Wärmeerzeuger der Heizung eine Wärmepumpe sein sollte und/oder die Heizflächen zukunftsfähig ausgelegt werden sollen, im Bad rechtzeitig Flächen für eine zusätzliche WH als Ergänzung zur Fußbodenheizung vorgesehen werden!
...Habt Ihr Verbesserungsvorschläge ?
v.g.
Hallo,
und vielen Dank für eure Antworten und Hinweise. Den Ausschlag für ein Gäste-WC hat in der Tat die Überlegung gegeben, dass 2 Menschen, ggf. auchmal gleichzeitig "müssen", und dann ist ein 2. Klo einfach praktisch (auch wenn das Problem vermutlich selten auftritt) - irgendwie auch ein Form von Luxus.
Das Dreiecks-Fenster ist nicht bodentief, und geht von der Traufe bis zum First, Das Gäste-WC Fenster fehlt in der Zeichnung noch. Danke auch für die 2 Skizzen - ich dachte ich hätte alle Permutationen der Aufstellmöglichkeiten durch, die beiden sind neu und durchdenkenswert !
Die Heizung im Bad hängt mit der Heizung im ganzen Haus zusammen, ich habe aber im Wohnzimmer eine besondere/individuelle Situation, die mich zwischen den 2 Möglichkeiten hin und herschwanken lässt. Ich frage dazu morgen mal im passenden Forum - bin nach 13 h Arbeit momentan etwas zu geplättet, um eloquent meine Fragen zu formulieren....
freundliche Grüße
Peter
und vielen Dank für eure Antworten und Hinweise. Den Ausschlag für ein Gäste-WC hat in der Tat die Überlegung gegeben, dass 2 Menschen, ggf. auchmal gleichzeitig "müssen", und dann ist ein 2. Klo einfach praktisch (auch wenn das Problem vermutlich selten auftritt) - irgendwie auch ein Form von Luxus.
Das Dreiecks-Fenster ist nicht bodentief, und geht von der Traufe bis zum First, Das Gäste-WC Fenster fehlt in der Zeichnung noch. Danke auch für die 2 Skizzen - ich dachte ich hätte alle Permutationen der Aufstellmöglichkeiten durch, die beiden sind neu und durchdenkenswert !
Die Heizung im Bad hängt mit der Heizung im ganzen Haus zusammen, ich habe aber im Wohnzimmer eine besondere/individuelle Situation, die mich zwischen den 2 Möglichkeiten hin und herschwanken lässt. Ich frage dazu morgen mal im passenden Forum - bin nach 13 h Arbeit momentan etwas zu geplättet, um eloquent meine Fragen zu formulieren....
freundliche Grüße
Peter
Ich finde ein Gäste-WC auch wichtig und belasse es bei mir drin. Man muss schon mal auf zwei WC's - bedenkt die Quarantainephase : )
Wichtiger finde ich es allerdings für Gäste. Ich finde es angenehmer auf eine Gäste-WC zu gehen. Das Bad ist Privatsache, egal ob man bei Freunden oder Fremden ist.
Wichtiger finde ich es allerdings für Gäste. Ich finde es angenehmer auf eine Gäste-WC zu gehen. Das Bad ist Privatsache, egal ob man bei Freunden oder Fremden ist.
Ähnliche Themen