J
Jensowitsch07.02.14 18:23Hallo liebe Hausbau-Forum Nutzer,
ich bin der "Neue" hier. Nutze das Forum schon länger für Ideenfindung und Tipps.
Ich komme aus Hamburg und werde im April ein Haus bauen.
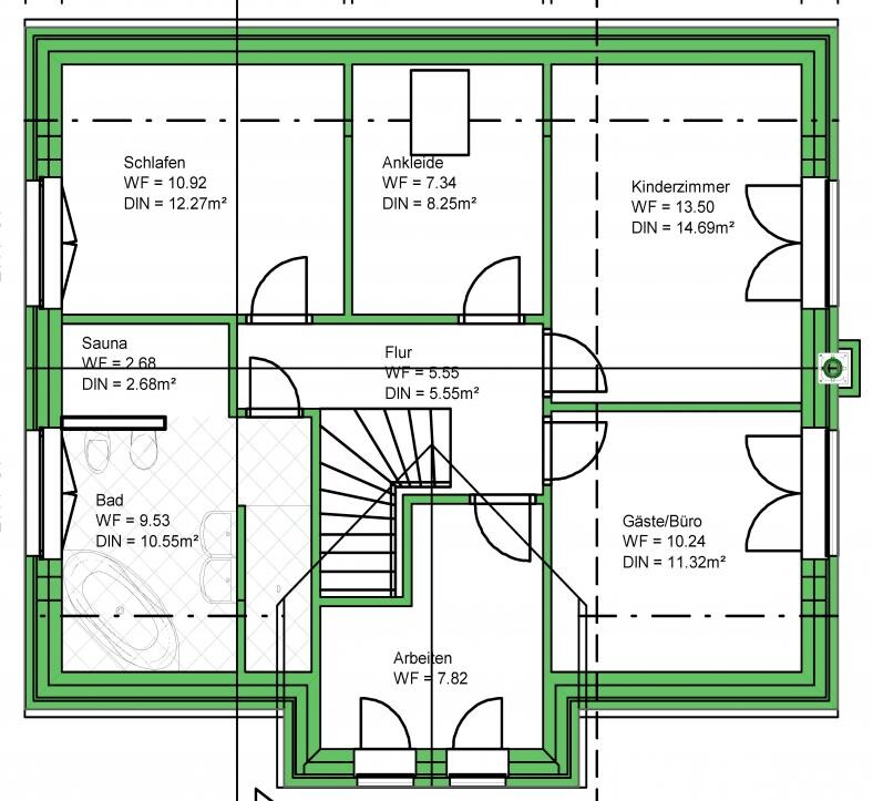
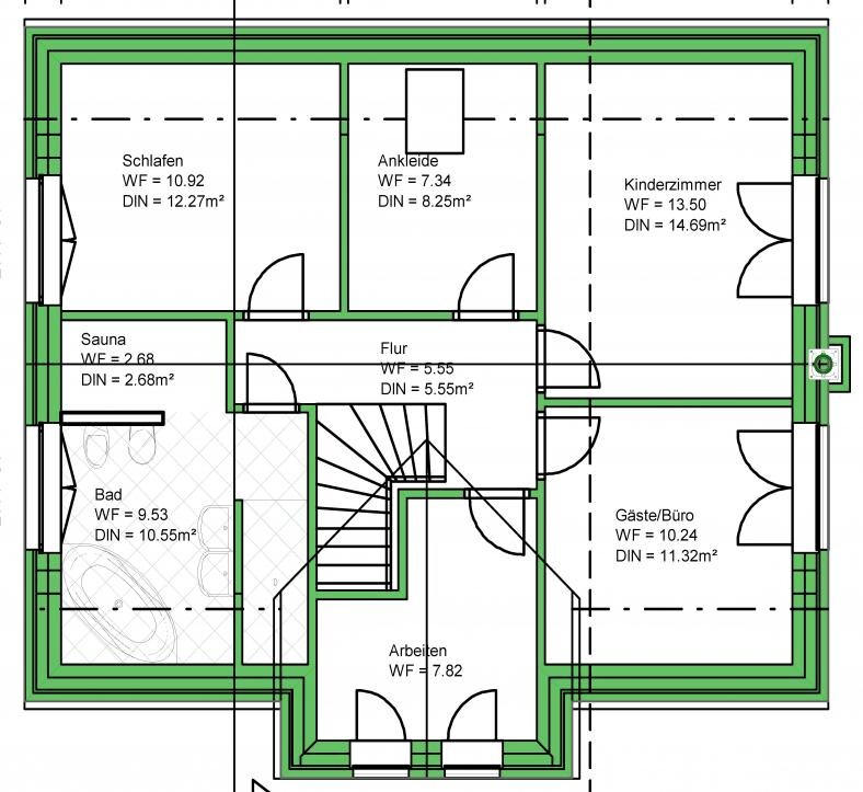
Wie Alle 🙂 haben auch wir ein Problem mit der Planung vom Bad.
Wir finden es nicht so schön direkt auf die Dusche zu gucken, wenn man ins Bad kommt.
Auch finde ich die Toilette direkt vor dem Fenster nicht ganz so schön 🙂
Hat einer der findigen Nutzer vielleicht eine Idee? Wir sind ein wenig betriebsblind.
Vielen Dank schon im Voraus.
Jensowitsch


ich bin der "Neue" hier. Nutze das Forum schon länger für Ideenfindung und Tipps.
Ich komme aus Hamburg und werde im April ein Haus bauen.
Wie Alle 🙂 haben auch wir ein Problem mit der Planung vom Bad.
Wir finden es nicht so schön direkt auf die Dusche zu gucken, wenn man ins Bad kommt.
Auch finde ich die Toilette direkt vor dem Fenster nicht ganz so schön 🙂
Hat einer der findigen Nutzer vielleicht eine Idee? Wir sind ein wenig betriebsblind.
Vielen Dank schon im Voraus.
Jensowitsch
J
Jensowitsch07.02.14 18:29J
Jensowitsch08.02.14 09:22Das soll laut Architekt eine Dusche sein.
Wahrscheinlich ist es eine Höhlendusche.
🙂
Wahrscheinlich ist es eine Höhlendusche.
🙂
Ähnliche Themen