ᐅ Anbaupläne für Einfamilienhaus von 2 auf 4 Kinderzimmer. Ideen willkommen!
Erstellt am: 28.11.20 15:04
H
Hendrik M.H
Hendrik M.28.11.20 15:04Hallo ihr lieben,
habt ihr Lust, unseren aktuelle Entwurf zu kommentieren?
Mit unseren Drillis ist das Haus zu klein geworden. Wir sind jetzt zu sechst.
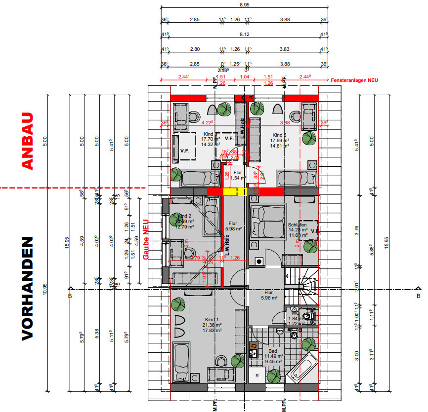
Der neue Teil erschließt sich schnell aus den Grundrissen.
Ich bin der Meinung, dass der Grundriss schon ziemlich optimiert ist, aber manchmal sieht man den Wald vor lauter Bäumen ja nicht.
Ich freue mich auf eure Kommentare!
Anmerkung:
Im aktuellen Entwurf ist die Gaube noch nicht anständig in das Zimmer Kind 2 eingepasst. Stellt euch einfach vor, dass die Gaube innen genauso breit wie das Zimmer ist.
Der Bebauungsplan und Baufenster geben diese Erweiterung her.






habt ihr Lust, unseren aktuelle Entwurf zu kommentieren?
Mit unseren Drillis ist das Haus zu klein geworden. Wir sind jetzt zu sechst.
Der neue Teil erschließt sich schnell aus den Grundrissen.
Ich bin der Meinung, dass der Grundriss schon ziemlich optimiert ist, aber manchmal sieht man den Wald vor lauter Bäumen ja nicht.
Ich freue mich auf eure Kommentare!
Anmerkung:
Im aktuellen Entwurf ist die Gaube noch nicht anständig in das Zimmer Kind 2 eingepasst. Stellt euch einfach vor, dass die Gaube innen genauso breit wie das Zimmer ist.
Der Bebauungsplan und Baufenster geben diese Erweiterung her.
H
Hendrik M.28.11.20 15:38Hi ypg, faire Frage.
Tatsächlich ist das Zimmer schon das Elternschlafzimmer 🙂 Das Bett ist um 180° gedreht und ganz an die rechte Wand geschoben.
Dadurch haben wir auf der Linken Seite genug Platz für einen dicken schrank.
Ich muss auch zugeben, dass unser Dach heute noch rot ist... Aber irgendwie finden wir für ein rotes Dach kein gutes Farbkonzept und haben uns daher (fast) entschlossen, das Dach in einer neuen Farbe einzudecken...
Tatsächlich ist das Zimmer schon das Elternschlafzimmer 🙂 Das Bett ist um 180° gedreht und ganz an die rechte Wand geschoben.
Dadurch haben wir auf der Linken Seite genug Platz für einen dicken schrank.
Ich muss auch zugeben, dass unser Dach heute noch rot ist... Aber irgendwie finden wir für ein rotes Dach kein gutes Farbkonzept und haben uns daher (fast) entschlossen, das Dach in einer neuen Farbe einzudecken...
Hendrik M. schrieb:
Der Bebauungsplan und Baufenster geben diese Erweiterung her.Das ist schön. Ich schaue mir das später weiter an.https://www.instagram.com/11antgmxde/
https://www.linkedin.com/company/bauen-jetzt/
wenn das Schlafzimmer paßt. Hätte die gleichen Bedenken.
Bin ja kein Freund von einem Kinderbad aber bei 4 Kindern kein Luxus. Sehe es bei meiner Freundin. Wichtiger wie eigene Kinderzimmer.
Warum der 2. Eingang?
Habt ihr einen Keller? Finde im EG ist etwas wenig Stauraum. Gerade wenn ich an den Wocheneinkauf für 4 Heranwachsende denke. Und da denke ich nicht unbedingt an Extremesser.
Bin ja kein Freund von einem Kinderbad aber bei 4 Kindern kein Luxus. Sehe es bei meiner Freundin. Wichtiger wie eigene Kinderzimmer.
Warum der 2. Eingang?
Habt ihr einen Keller? Finde im EG ist etwas wenig Stauraum. Gerade wenn ich an den Wocheneinkauf für 4 Heranwachsende denke. Und da denke ich nicht unbedingt an Extremesser.
H
Hendrik M.28.11.20 20:01Super, vielen Dank für die Kommentare! Gebt mir mehr davon 😀
Ich stimme mit euch überein, dass das Schlafzimmer sehr gedrungen ist. Ein Kompromiss, welchen wir bereit sind einzugehen (mangels klügerer Alternativen). Noch wollen wir in der Nähe der Kinder sein. In ein paar Jahre ist der Plan, den Kindern die obere Etage zu überlassen. Meine Frau und ich würden dann ins Gästezimmer unten wandern...
Die Frage nach der 2ten Tür ist berechtigt. Wir hatten mal Die Herausforderung, dass das Türschloss unsere Haustür streikte und wir nicht mehr in die Hütte kamen. Das hat irgendwie Spuren und den Wunsch nach einem alternativen Eingang hinterlassen. Wenn ich aber so drüber nachdenke, könnte man sicherlich auch eine der neuen Terrassentüren von außen öffenbar machen--> Mehr Stauraum in der Garderobe und Garage.
Viele Grüße
Hendrik
Ich stimme mit euch überein, dass das Schlafzimmer sehr gedrungen ist. Ein Kompromiss, welchen wir bereit sind einzugehen (mangels klügerer Alternativen). Noch wollen wir in der Nähe der Kinder sein. In ein paar Jahre ist der Plan, den Kindern die obere Etage zu überlassen. Meine Frau und ich würden dann ins Gästezimmer unten wandern...
Die Frage nach der 2ten Tür ist berechtigt. Wir hatten mal Die Herausforderung, dass das Türschloss unsere Haustür streikte und wir nicht mehr in die Hütte kamen. Das hat irgendwie Spuren und den Wunsch nach einem alternativen Eingang hinterlassen. Wenn ich aber so drüber nachdenke, könnte man sicherlich auch eine der neuen Terrassentüren von außen öffenbar machen--> Mehr Stauraum in der Garderobe und Garage.
Viele Grüße
Hendrik
Ähnliche Themen