ᐅ Anbau an Doppelhaushälfte von 1938, Bad, Flur und 1-2 Aufenthaltsräume
Erstellt am: 13.11.20 19:04
R
Reinhard84.2R
Reinhard84.213.11.20 19:04Guten Abend,
wir möchten an unsere kleine Doppelhaushälfte anbauen. Das Baufenster geht noch ca. die 10 Meter zur langen Seite (Osten) und 2 Meter nach Süden (im Plan Küche) raus. Die Doppelhaushälfte ist teilunterkellert
Was uns im Haus fehlt ist ein Flur, ein Badezimmer im EG und 1-2 Schlafzimmer oder Aufenthaltsräume.
Wir hätten gerne etwas Input, wie man das gestalten könnte. Ein- oder zwei/ drei/geschossig anbauen - entsprechend dem Ursprungshaus oder eingeschossig, dafür aber breiter. Wir sind da grad wirklich etwas ideenlos.
Preislich wäre es schön, wenn sich das ganze im Rahmen 200k abspielt, für Rohbau und Sanitär und tlw. Elektro. (evtl. Dach), Region Niederrhein, Tönisvorst.
Unser erster Gang muss uns dann wahrscheinlich zum Architekten führen.
Falls die Frage aufkommt: Wir haben das Haus trotz seiner Größe gekauft weil das Grundstück und Lage perfekt waren, auch ist der Anbau nicht super urgent.
Ich freue mich auf Input!"



wir möchten an unsere kleine Doppelhaushälfte anbauen. Das Baufenster geht noch ca. die 10 Meter zur langen Seite (Osten) und 2 Meter nach Süden (im Plan Küche) raus. Die Doppelhaushälfte ist teilunterkellert
Was uns im Haus fehlt ist ein Flur, ein Badezimmer im EG und 1-2 Schlafzimmer oder Aufenthaltsräume.
Wir hätten gerne etwas Input, wie man das gestalten könnte. Ein- oder zwei/ drei/geschossig anbauen - entsprechend dem Ursprungshaus oder eingeschossig, dafür aber breiter. Wir sind da grad wirklich etwas ideenlos.
Preislich wäre es schön, wenn sich das ganze im Rahmen 200k abspielt, für Rohbau und Sanitär und tlw. Elektro. (evtl. Dach), Region Niederrhein, Tönisvorst.
Unser erster Gang muss uns dann wahrscheinlich zum Architekten führen.
Falls die Frage aufkommt: Wir haben das Haus trotz seiner Größe gekauft weil das Grundstück und Lage perfekt waren, auch ist der Anbau nicht super urgent.
Ich freue mich auf Input!"
Also ein Anbau an die Giebelseite wäre möglich ?
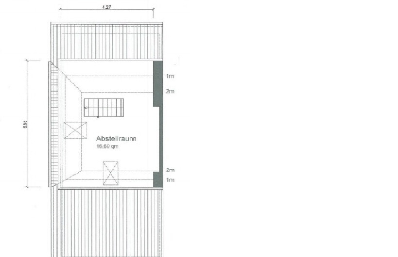
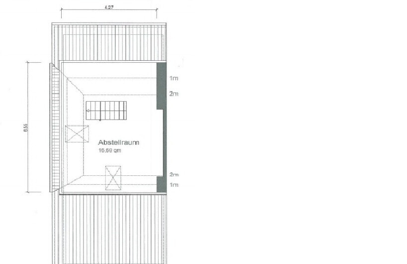
Interpretiere ich den (leider sehr klein geratenen) DG-Grundriss recht, daß das Haus ein Krüppelwalmdach hat ?
https://www.instagram.com/11antgmxde/
https://www.linkedin.com/company/bauen-jetzt/
Interpretiere ich den (leider sehr klein geratenen) DG-Grundriss recht, daß das Haus ein Krüppelwalmdach hat ?
https://www.instagram.com/11antgmxde/
https://www.linkedin.com/company/bauen-jetzt/
R
Reinhard84.213.11.20 21:30haydee schrieb:
Kannst du uns bitte mehr Input geben. Lageplan, wie das Haus aussiehtWas genau meinst du mit Lageplan? Das Haus ist rot verklinkert.
11ant schrieb:
Also ein Anbau an die Giebelseite wäre möglich ?
Interpretiere ich den (leider sehr klein geratenen) DG-Grundriss recht, daß das Haus ein Krüppelwalmdach hat ?Genau, es hat ein Krüppelwalmdach und der Anbau zur Giebelseite ist möglich - laut Erhaltungssatzung muss man dann wohl den Krüppelwalmdach am Anbau wieder anfügen, so dass es sich optisch einfügt.
R
Reinhard84.213.11.20 21:37R
Reinhard84.213.11.20 21:55Ähnliche Themen