Hausbau - Ratgeber
Bauherrenhilfe
- Bauherrenhilfe vor Vertragsabschluss
-- Warum einen unabhängigen Baubetreuer?
-- Vertragsgrundlagen
-- Bausumme
-- Zahlungsplan zur Kostenkontrolle
-- Pflichten des Bauherren vor Vertragsabschluss
-- Unterlagen beim Hausbau vor Vertragsabschluss
- Bauherrenhilfe nach Vertragsabschluss
-- Bauantrag bei Behörden
-- Bau-Genehmigungsverfahren bei Baubehörden
-- Bauspezifische Versicherungen
-- Bauzeitenplan
-- Baubeginn - die Letzten Pflichten der Bauherrschaft
- Bauherrenhilfe während der Bauzeit
- Gewährleistungsansprüche
- Bauabnahme
Baufinanzierung
- Baufinanzierung - Allgemeine Fragen
- Kreditarten
- Kredit-Konditionen
- Bausparen
- Staatliche Förderungen
- Verkehrswert
- Haushaltsrechnung und Bonität
Hausbau Planung
- Haustypen
- Hausbau Vorbereitungsarbeiten
- Das Baugrundstück
- Baugrund beim Hausbau
- Baurecht
- Gebäudeschutz
- Erdarbeiten und Wasserhaltung
- Stützmauern
- Einfriedung
- Untergeschoss
- Kanalisation
- Tragende Elemente
- Nichttragende Innenwände
- Fundation / Fundament
- Deckenkonstruktionen
- Dächer
- Kaminanlagen
- Treppen Rampen Leitern
- Dachbeläge und Spengler
- Fenster
- Sonnen und Wetterschutz
- Aussenputze
- Einbauten, Küchen, Türen
- Bodenbeläge und Unterlagsböden
- Parkett
- Gips, Wand, Decke
Haustechnik und Energie
- Heiztechnik
- Lüftung und Klimatechnik
- Sanitärtechnik
- Elektrotechnik
- Erneuerbare Energie
Whirlpools / Jacuzzi
Hausbau Magazin
- Baufinanzierung trotz Krise?
- Das Blockhaus
- Moderne Dämmstoffe im Vergleich
- Erker Vor- und Nachteile
- Glasflächen beim Hausbau
- Günstig ein Haus Bauen
- Mediterraner Hausbaustil
- Mehrgenerationenhaus
- Moderne Architektur
- Gartengestaltung leicht gemacht
- Traditioneller Ziegelbau
- Villa als höchster Traum
- Im Eigenheim Ruhestand geniessen
- Altbau sanieren
- Kauf einer Holzgarage
- Immobilienmakler
- Arbeitshandschuhe für den Winter
- Zuhause verschönern
- Outdoor-Plissees
- Schlafzimmer planen
- Terrassenüberdachung
- Wohngebäudeversicherung
- Zaunarten und Eigenschaften
- Hauseingang gestalten
- Der perfekte Grundriss
- Sparsamer heizen im Altbau
- Einfamilienhaus smart finanzieren
- Planung einer PV-Anlage
- Neues Haus
- Immobilienfinanzierung
- Installation einer Photovoltaikanlage
- Asbest erkennen und entfernen
- Gartenpflege im Frühling – worauf achten
- Sauna im Fokus - Wellness zuhause
- Erfolgreich vermieten
- Die perfekte Winterbekleidung
- Das Niedrigenergiehaus
- Der April und seine Stürme
- Architektonische Vielfalt
- Ökologisch und nachhaltig bauen
- Das perfekte Schlafzimmer
- Nachhaltige Energieversorgung
- Zukunftsorientiert bauen
- Nachhaltigkeit beim Hausbau
- Tiny Houses
- Wärmepumpen als nachhaltige Heizvariante
- Maßgeschneiderten Kleiderschrank
- Der richtige Baukredit
- Ratgeber für erfolgreichen Hausbau
- Haus als Altersvorsorge
Do-it-yourself Anleitungen
- Verlegeanleitung für Bodenbeläge und Parkett
- Bodenbeläge und Parkett reinigen und pflegen
- Malerarbeiten am Haus
- Garten Tipps
- Umzug und Reinigung

ᐅ Alte verteilung erneuern: Terrasse von Wohnzimmer Trennen?

Erstellt am: 06.10.25 10:59
H
Hanniball2k
H
Hanniball2k
06.10.25 10:59
Moin Leute,

im Rahmen der Sanierung bin ich mir unsicher wie meine Anbindung der Terrasse aussehen soll. Vorab: Elektriker ist beauftragt Zählerschrank zu erneuern und ggf. auch einzelne neu-gezogene Leitungen mit anzuschließen und berät mich auch (bzw. wird in den nächsten Wochen abgestimmt).

Dennoch gehts mir ein wenig darum Erfahrungen aus dem alltag zu bekommen.

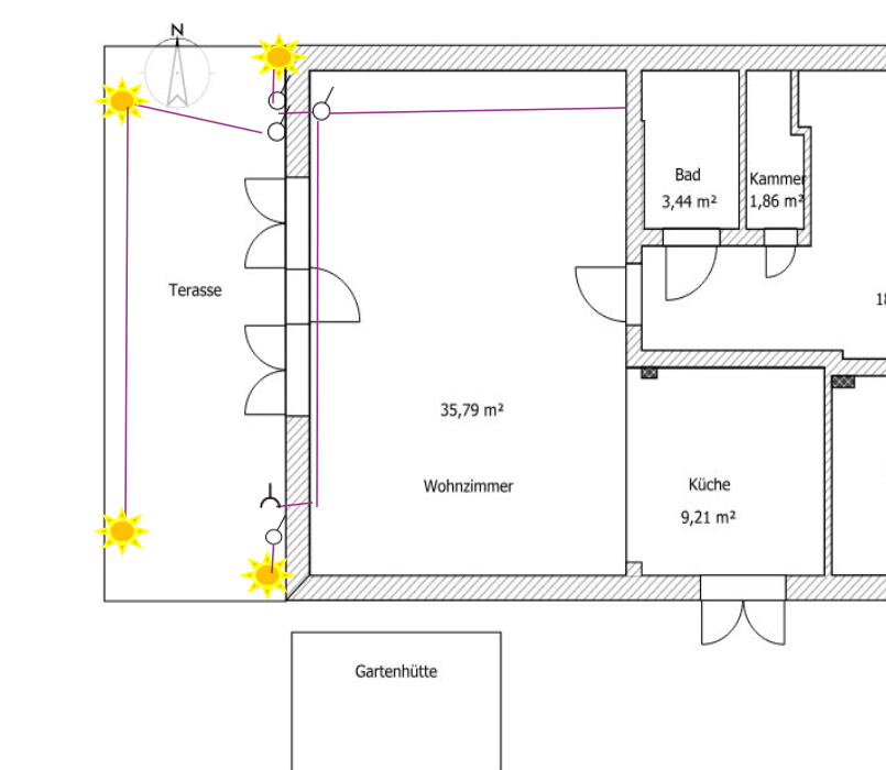
Aktuell ist die Terrasse über das Wohnzimmer abgesichert, das soll aufgetrennt werden. ich habe im WZ einen Hauptschalter der außen komplett wegschalten kann. Dann dazu außen 3 Schalter für 4 Lampen und eine Steckdose, die ziemlich schlecht per UNterputz außen angebracht sind im Klinker.

Ich habe mein SweetHome3d Kaputtgespielt, daher mit Powerpoint... 😀 Ich hoffe es wird ersichtlich.
1759740098601.png



Ich möchte nun einen Schalter für 4 Lampen haben, sowie ggf. eine Steckdose. Das ganze vom wohnzimmer trennen. Elektriker hat bereits für die Gartenhütte und Garage jeweils ein RCD/LS angeboten/vorgeschlagen.

Nun die Frage... Wie sieht das im Alltag aus. Benötigt man wirklich von Innen einen schalter für die Beleuchtung, oder reicht es aus das Außen zu machen? Muss/sollte man Steckdosen auch wirklich von innen wegschalten können?

Ich könnte mir sehr gut vorstellen die Versorgung über die Gartenhütte zu gestalten, und anstatt Unterputz, aufputz Schalter zu verwenden.
- Ein Lichtschalter außen an der Terrasse
- Ein Lichtschalter von innen im Wohnzimmer, beide Schalter mit einem Shelly kombinieren, so dass quasi eine Wechselschaltung realisiert wird und alle 4 Lampen geschaltet werden
- Steckdosen bekommen dauerplus aus der Gartenhütte (--> Auch schaltbar auslegen, ggf. aus der Gartenhütte? Die ist theoretisch abschließbar).

Grundrissplan eines Hauses mit Wohnzimmer, Küche, Bad, Flur und Terrasse.

Meinungen, Ideen, Erfahrungen aus dem Alltag? Wir wohnen bisher im 2. OG ohne solche Spielereien 😀
Außenansicht eines Fachwerkhauses mit Backsteinwänden, Terrasse, Gartenlampen und Grill
G
Ganneff
06.10.25 14:07
Hanniball2k schrieb:

Nun die Frage... Wie sieht das im Alltag aus. Benötigt man wirklich von Innen einen schalter für die Beleuchtung, oder reicht es aus das Außen zu machen? Muss/sollte man Steckdosen auch wirklich von innen wegschalten können?

Nötig ist das falsche Wort. Irgendwie an und aus kriegen, aber ob das mit Schalter innen oder außen oder nur via Bewegungsmelder oder ganz anders läuft, ist ja egal.

Das nötig ergibt sich eher daraus, was euch am besten kommt und das ist von eurer Lage abhängig. Z.b. wie gut kann der Nachbar (während deines Urlaubes, längeren Abwesenheiten) deine Steckdosen "mitnutzen"? Dann willst Du die vmtl. eher von innen schaltbar haben (Wer denkt schon dran, für den Urlaub immer die Sicherungen passend auszuschalten?). Mit dem Licht kenn ich die Frage auch eher andersrum - "brauche ich tatsächlich einen Schalter außen, innen reicht doch und ist sicher gegen Fremdbetätigung".

Und wenn Du schon Kabel neu legst, warum dann mit Shelly arbeiten? Von außen ein Kabel nach innen legen und eine richtige Schaltung bauen, statt einer Hilfslösung wie mit einem Shelly?
T
Tolentino
06.10.25 14:54
Bzgl Steckdosen: Würde ich nach meiner Erfahrung sagen eher nicht schaltbar machen! Denn das Problem ist, dass die üblichen Schalter nur für 10A ausgelegt sind und damit auch nur so abgesichert werden dürfen. D.h. aber dass ein Gartenhäcksler da schon an, bzw über die Grenze der Sicherung kommt.
höher dauerbelastbare Schalter sind seltenund dadurch mit Apothekerpreisen versehen.
Deswegen lieber weglassen, extra Schaltautomat sollte reichen.
W
wiltshire
06.10.25 15:32
Tolentino schrieb:

Bzgl Steckdosen: Würde ich nach meiner Erfahrung sagen eher nicht schaltbar machen!
Die Außensteckdosen am Haus haben wir schaltbar ausgelegt.
Für den Fall, dass wir Verbraucher mit hohem Energiebedarf draußen brauchen gibt es eine im Sicherungskasten zu schaltende 32A CEE Dose - mit großzügigem Querschnitt verkabelt und entsprechend abgesichert. So sind weder ein Häcksler, noch ein Holzspalter ein Problem, ohne dass ein Verbrenner in Einsatz gebracht werden muss, oder ein Kabel auf einer Terrasse herumliegt.

Mein Tipp: Je Terrasse eine eigene Sicherung, Gartenstrom noch einmal separat verkabeln.
M
MachsSelbst
06.10.25 20:23
Warum Shellys einbinden? Um Automationen laufen zu lassen, um ggf. PMs und BMs einzubinden, um das Licht bei Lust und Laune aus der Ferne zu schalten. Wobei das natürlich der klassischen Schaltungstechnik entgegensteht. Philips hat mit seinem Hue eine brauchbare Nachrüstung, wie man die Lampen dauerhaft unter Strom lassen kann, ohne die Funktion der Schalter zu verlieren, ob das bei Shelly auch so ist... ich gehe mal davon aus...

Im Außenbereich macht es definitiv Sinn sich einmal zu überlegen, was unabhängig voneinander funktionieren soll bzw. unter Umständen sogar muss. Sichere ich die komplette Außenanlage über einen einzige FI-Schutzschalter ab, funktionieren Licht, Springbrunnen, Außensteckdose(n), Sauna, Jacuzzi, Zisternenpumpe nicht mehr, weil in einem der Stromkreise ein Erdschluss vorliegt. Also sichere ich zumindest mal das Licht und vor allem die Außensteckdose separat ab. Es gibt inzwischen auf FI+B16 in einem Gerät mit der Baubreite eines Standard-LS.
In meiner eigenen Unterverteilung sichere ich jeden Stromkreis außen einzeln mit FI+Bxx ab. So hat man auch den (unter Umständen enormen) Vorteil, dass man sofort weiß , welcher Stromkreis den FI ausgelöst hat.

Außensteckdosen über einen Lichtschalter zu schalten, so wie es Tolentino erwähnt hat... das macht nicht nur keinen Sinn, weil man auf 10A beschränkt ist, sondern weil in der Unterverteilung ein FI dahinter hängt. Das ist für Außenanlagen Pflicht.
Und in aller Regel sichert der Elektriker die Außensteckdose nicht mit einem eigenen FI ab, da hängen auch andere Dinge mit dran, im allerschlimmsten Fall die Heizung, der Kühlschrank und die Belüftungsanlage...

Was ist daran nun schlimm... wer in der Elektrikerlehre mal ein 3phasiges Kabel in eins durchgeschnitten hat und danach von wütenden Büroangestellten fast gelyncht wurde, weiß warum. In einem normalen Netz ist der N niemals komplett stromlos. Das ist nur der Fall bei idealen Elektromotoren oder dreiphasigen Heizungen. Ein Kurzschluss allein zwischen N und PE reicht und ein 30mA FI fliegt... fast immer.
Kommt nun ein Spaßvogel und steckt keinen Schukostecker für seine Beatbox, sondern eine Brücke zwischen N und PE in deine Außensteckdose... in aller Regel wird L links und N rechts aufgelegt, das machen fast alle Elektriker so...
Dann kommst du nach 3 Wochen Urlaub zurück in eine eiskalte Wohnung, mit verschimmeltem Kühlschrank. Denn der FI ist geflogen, aufgrund von Asymmetrien zwischen den Phasen und damit einem Ausgleichsstrom mzwischen L(1-3) und N... und einem Fehlerstrom zwischen N und PE.
Der Witz ist... das funktioniert auch, wenn man die Sicherung (also den LS-Automaten) ausschaltet. Der N läuft weiterhin über den übergeordneten FI, der in aller Regel eine ganze Gruppe von LS-Automaten absichert.

Deswegen wird eine abschaltbare Außensteckdose immer(!!) allpolig ausgeführt, über einen entsprechenden Schalter, in der Regel in der Unterverteilung.

Und eine CEE-Steckdose macht in jedem Fall vorzusehen, sofern das wirtschaftlich möglich ist.
Elektro ersetzt immer mehr den Verbrenner, aber in diesem Vergleich sind 3,6kW Leistung leider eher am unteren Ende angesiedelt. Wenn man also ohnehin beigeht, sollte man überlegen, ob man nicht auch gleich eine dreiphasige Steckdose, CEE, nach außen legt. Ob nun 16A oder 32A...
16A 3phasig sind 11kW... 32A entsprechend 22kW. Ein Gartengerät mit 22kW elektrisch, welches man im normalen Einfamilienhaus braucht, das würde ich gerne mal sehen...

Da hat der Elektriker wahrscheinlich viel Verkaufstalent gehabt, denn auch den "großzügigen Querschnitt" braucht man nicht. Es gibt die Strombelastbarkeitstabellen gemäß Tabellenbuch und die gelten. Man gewinnt rein gar nichts, wenn man einen oder mehrere Querschnitte höher wählt, außer dass der Elektriker mehr Geld verdient, weil er das unter Umständen günstiger einkauft und wesentlich teurer verrechnet...
H
Hanniball2k
12.10.25 17:51
Die idee mit den Shellys war, dass ich eigentlich wenig (weitere) Durchbrüche von innen nach außen möchte, aber es dennoch gern irgendwie schaltbar hätte von innen. Daher die idee, die Terrassenbeleuchtung von der Gartenhütte abzuzwacken und dann per "remote" steuerbar zu machen.

Da sich inzwischen aber auch die aufgaben häufen, werden wir vermutlich den pragmatischen weg gehen und die aktuelle verkabelung so weiter nutzen, lediglich die außenanlage vom Wohnzimmer zu trennen, die bekommt ein eigenen RCD/LS. Also nach Bild 1. Hauptschalter innen, Beleuchtung außen.

Vermutlich muss ich mir dann dann, wenn in 5-10 Jahren mal die Terrasse neu gemacht wird, mir da noch gedanken machen. Der vorteil ist, an die Gartenhütte komm ich immer dran um da was abzuzwacken.

Meine Frau ist da irgendwie auch keine Hilfe und ihr ist es egal wo welcher Schalter sitzt oder nicht :P. (Ich denke noch egal, wenns dann im alltag nervt ist es nämlich nicht mehr egal).
außensteckdosenlichtschalterelektrikerlampengartenhütteschaltbarkabelsicherungunterverteilungwohnzimmer