Altbaukauf in Hannover – Wandstärken 51,5 / 44 / 40 / 24 cm – Wandaufbau & Dämmstrategie

4,80 Stern(e) 6 Votes
V

Verpohlt

Hallo zusammen,

ich plane den Kauf eines Altbaus in Hannover und möchte vorab besser verstehen, wie die Außenwände aufgebaut sind und welche Dämmmaßnahmen sinnvoll und technisch machbar wären. Vielleicht könnt ihr mir mit eurer Erfahrung weiterhelfen.

Folgende Wandstärken habe ich gemessen bzw. aus den Plänen entnommen – alle Wände sind von außen verklinkert:
  • Vorderfassade: ca. 51,5 cm
  • Rückseite: ca. 44 cm
  • Rechte Außenwand: ca. 40 cm
  • Linke Außenwand: ca. 24 cm
Meine Fragen:
  1. Ist bei diesen Wandstärken davon auszugehen, dass es sich um zweischaliges Mauerwerk mit Luftschicht handelt – oder könnten einzelne Wände massiv sein?
  2. Kann man den Klinker an der Vorderseite entfernen und dort ein WDVS aufbringen, während man die Seitenwände ebenfalls dämmt – oder sollte man alle Fassaden einheitlich behandeln?
  3. Gibt es typische Wandaufbauten für diese Maße (z. B. aus den 1920er–1950er Jahren), die ihr aus Erfahrung kennt?
Ich freue mich über eure Einschätzungen, Erfahrungen oder Hinweise auf gute Quellen und Schnittzeichnungen. Vielen Dank!

Viele Grüße Gerrit

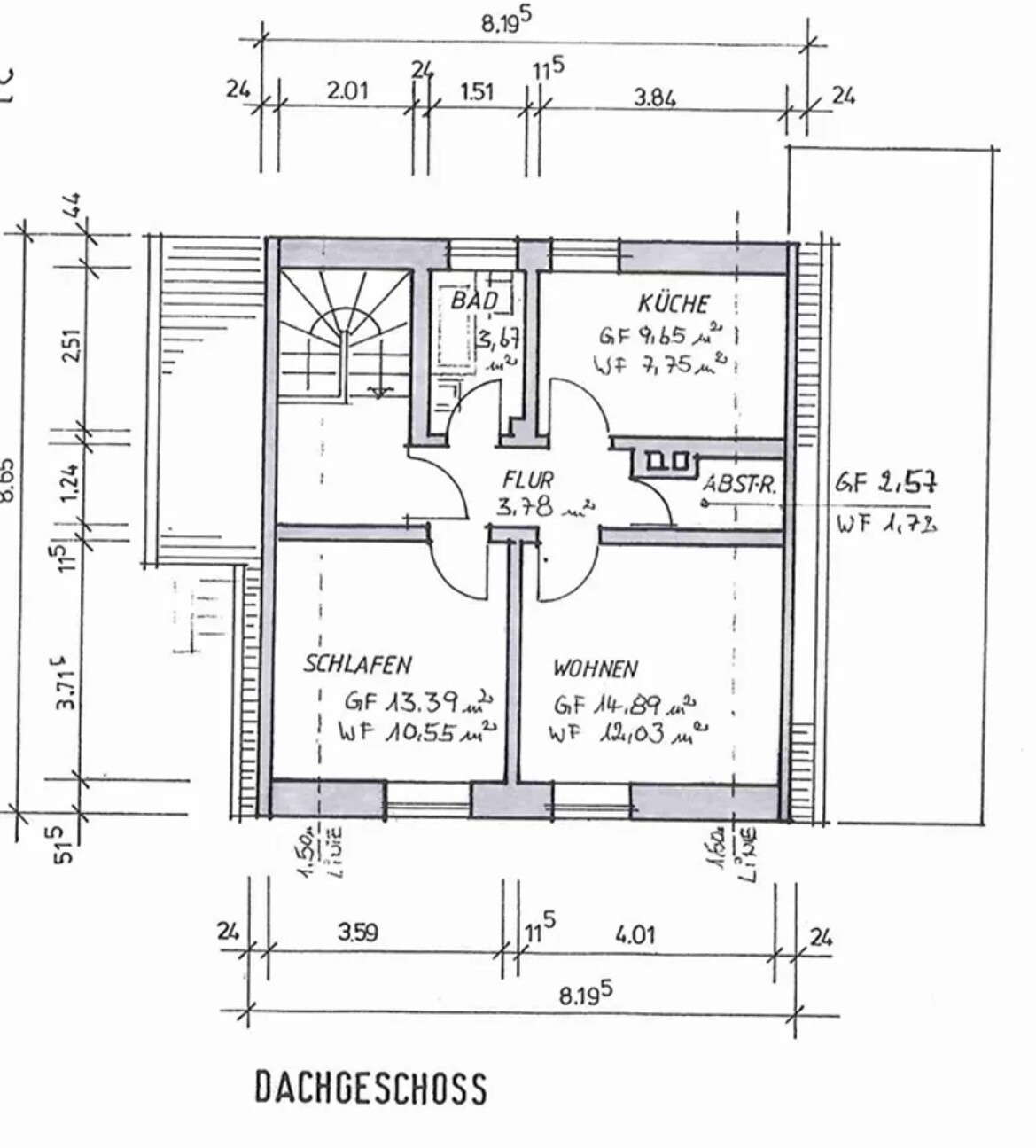
2D Grundrissplan Dachgeschoss mit Wohnzimmer, Schlafen, Küche, Bad und Flur.

Erdgeschoss-Grundriss eines Hauses mit Wohnzimmer, Schlafzimmer, Küche und Bad

Skizzenhafter Kellergrundriss mit Waschkeller, Garage und Kellerräumen

Frontansicht eines roten Ziegelhauses mit Garage, Büschen und grünem Garten vor blauem Himmel.

Fronteingang eines Backsteinhauses mit Treppe, Gelb-Chrysanthemen in Töpfen und Vordach.

Außenansicht eines roten Ziegelhauses mit grünem Garten und blauem Himmel

Außenansicht eines Klinkerhauses mit Garten, Terrasse und Treppenstufen.
 
11ant

11ant

Per Ferndiagnose sehe ich hier zu wenig (was aber nur wenig mit der Bildauflösung zu tun hat), vor Ort erkennt man mehr. Mehrere der Wandstärken und der genaue Wandaufbau sind mir ein Rätsel. Die Verklinkerung besteht augenscheinlich nur aus Läufern, aber eine Luftschicht gäbe die Wandstärke 24 cm nicht her (27 cm schon eher). Die Wandstärken 24 und 11,5 cm weisen klar auf das neuere (DIN) Format hin, zum alten Reichsformat passen sie nicht. Das Baujahr schätze ich auf etwa 1958 bis 1962/63. Bei der Dämmung wirst Du hier aufholen müssen, mit dem Eigentumsübergang beginnen Anpassungsfristen zu laufen. Der Dachüberstand wird aber nicht dabei mitspielen, eine Dämmung außen aufzubringen. Für einen Abriss ist das Haus zu charmant erhalten, aber billig werden die erforderlichen Maßnahmen nicht.
 
V

Verpohlt

Hi,

vielen Dank für die rasche Antwort. Noch haben wir das Haus nicht gesehen, vlt stimmt die Zeichnung auch nicht. Die Kellerräume sind jedenfalls alle 30 cm dick.

Welche Fristen fangen denn an zu laufen? Ich kenn nur die wegen der Dämmung der obersten Geschossdecke, des Heizungstauschs und der Dämmung der Heizungsrohre.

vielen Dank für die Rückmeldung.
 
Zuletzt aktualisiert 03.01.2026
Im Forum Kaufberatung / Substanzbewertung gibt es 521 Themen mit insgesamt 12035 Beiträgen


Ähnliche Themen zu Altbaukauf in Hannover – Wandstärken 51,5 / 44 / 40 / 24 cm – Wandaufbau & Dämmstrategie
Nr.ErgebnisBeiträge
136er Ytong Außenmauer, Massivbauweise, Schimmelbildung, Dämmung - Seite 637
2Lohnt sich Dämmung über Neubau-Standard hinaus? 34
3Haus aus Beton ohne zusätzliche Dämmung - monolithisch 12
4Belastung durch Dämmung im Kampa Haus Bj 1990 14
5Y-Tong vs Beton ohne extra Dämmung in der Praxis (Heizkosten) - Seite 238
6Dämmung Geschossdecke verstärken, Wärmeeintrag ins OG verringern 13
7Badlüftung tropft trotz Dämmung des Rohrs - Seite 210
8Dämmung sinnvoll bei Poroton Ziegel? - Seite 219
9Kabelausführung bei Außenwand abdichten? 12
10Außenwand einer Bestandsimmobilie korrekt ausgeführt? 18
11Satteldach/Dämmung in den First oder bis zur/auf Zwischendecke? - Seite 210
12Durchgehender, horizontaler Riss in der Außenwand. 11
13Außenwand Town & Country Häuser 11
14Welcher Stein wenn mit Klinker gebaut wird? 10
15Neubau: Welche Dämmung angemessen? - Seite 214
16Wandbaufbau Dämmung für Kfw 70 Haus okay? 19
17Dämmung Fertighaus nachisolieren, Eigenleistung, Styropor günstig 19
18Dämmung 70er Vgl. zu heute, moderne Dämmung, Heizkosten 26
19Allgemeine Fragen zur Dämmung 10
20Dämmung / Dampfbremse oberste Geschossdecke / Kehlbalken, Decke offen 14

Oben