Dickere Decke oder Unterzug/Traeger

4,30 Stern(e) 3 Votes
B

bauen2024d

Hallo,

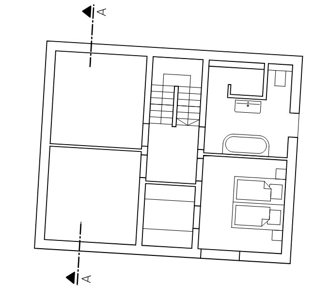
wir bauen ein Einfamilienhaus mit Dimensionen 9.99*8.11.
Wir haben noch nicht den Antrag eingereicht, sind noch in der Planung.

Der Architekt hat gemeint, dass er mit dem Statiker geklaert hat ob der Grundriss ohne einen Unterzug moeglich ist.
Der Statiker meint, ja aber statt einer 22er Decke eine 26er zu nehmen (Ich glaube Filigrandecke wird hier gemeint).

Boden ist mittelmaessig. Wir werden deswegen austauschen muessen. Bodengutachten ist schon gemacht worden.

Ich bin mir unsicher ob das ganze sich lohnt. Zuerst mein Bauchgefuehl sagt, dass ich lieber mit einem (oder sind zwei Traeger noetig??) leben kann, statt das ganze zu der Grenze zu bringen.
Die Kosten duerfen auch nicht explodieren.
Der Architekt meint hier auch dass es das gleiche kommen wuerde die Decke dicker zu machen oder den Traeger zu haben.

Wenn ich es richtig verstehe wuerden die Traeger in der Verlaengerund der Treppenwaende sein. Eventuell koennte man den einen da wo die Zeile ist (und auf den oberen Teil der Schränke verzichten).

Vor allem im 1.OG sind noch die tragenden Wände eingezeichnet. Macht das ueberhaupt Sinn?
Und wenn wir den Antrag schon eingereicht haben, dann heisst es wir haben eine bestimmte Hoehe, die wir dann nicht ueberschreiten duerfen falls die Decke noch dicker wird. Sollte man mit Puffer den Antrag stellen? Ich moechte auch 260 lichte Raumhoehe haben, mindestens im EG.

Ich weiss man kann nicht eine klare Empfehlung geben, aber ich wuerde gerne Ideen sammeln.

-- Mehr Stahl?
-- Dickere Decke?
-- 1 oder 2 Traeger und gut ist?

2D-Grundriss eines Hauses mit Treppen, Zimmern und Badezimmern
 

Anhänge

N

nordanney

Ich weiss man kann nicht eine klare Empfehlung geben, aber ich wuerde gerne Ideen sammeln.
Was ist genau Das Problem?

Wenn Statiker und Architekt sagen, dass es mit einer dickeren Decke funktioniert, dann ist doch alles erledigt. Warum willst Du dann lieber a) störende Unterzüge/Träger haben die b) wahrscheinlich sogar noch teurer sind.
Vor allem im 1.OG sind noch die tragenden Wände eingezeichnet. Macht das ueberhaupt Sinn?
Bist Du Statiker? Sind wir Statiker? Wenn der Statiker tragende Wände vorsieht, dann werden sie gebaut. Thema erledigt. Hast Du ein Problem damit?
aber ich wuerde gerne Ideen sammeln.
Anderen Grundriss wählen ;). Ansonsten sind die Möglichkeiten genannt. ICH wüsste nicht, warum man überhaupt Alternativen zur dickeren Decke sucht.
 
N

nordanney

Meinst Du dass der Grundriss problematisch ist?
Nein, aber Du brauchst ja wohl eine dickere Decke oder Unterzüge. Wollte damit sagen, dass Du einfach einen komplett anderen Grundriss als Möglichkeit hast. Einen ohne große Spannweite und damit "dünner" Decke. Ich denke aber nicht, dass Du das ernsthaft willst.
 
N

Nauer

Hi,

wenn ich mir den bisherigen Verlauf anschaue, fällt mir auf, dass sich der Architekt ziemlich sicher gibt, ohne dass klar ist, ob die statische Bemessung wirklich schon vorliegt. Eine dickere Decke kann technisch durchaus den Wegfall eines Unterzugs kompensieren, aber nur wenn die Spannweiten, Lastannahmen und Auflagerbedingungen exakt geprüft wurden. Oft wird unterschätzt, wie stark sich ein zusätzliches Eigengewicht der Decke auf die Bemessung der Wände und Fundamente auswirkt. Dadurch können Folgeanpassungen nötig werden, die dann doch wieder das angeblich vergleichbare Kostenbild durcheinanderbringen. Deshalb irritiert mich die pauschale Aussage, die Kosten seien ähnlich. Hat er dir denn erklärt, wie die zusätzliche Bewehrung und die veränderte Schalung berücksichtigt wurden und ob die Bauhöhen der angrenzenden Bauteile problemlos mitgehen?

Ich würde dir raten, dir den statischen Nachweis schriftlich geben zu lassen und konkret nachzufragen, warum er den Unterzug für verzichtbar hält. Gerade weil du mit einem Unterzug leben kannst, wäre es sinnvoll zu klären, welche der beiden Varianten konstruktiv robuster ist und langfristig weniger Risiken birgt. Manchmal ist der optisch weniger elegante Weg der, der bautechnisch entspannter funktioniert. Eine kleine, fast amüsante Randbemerkung sei mir erlaubt: Wenn ein Architekt sagt das sei alles kein Problem, lohnt es sich immer ein zweites Mal hinzusehen, ob wirklich kein Problem entsteht. Bist du sicher, dass er die Haustechnikleitungen, die später durch die Decke geführt werden sollen, schon berücksichtigt hat? Ein kleiner Denkfehler hat dort schnell große Auswirkungen.

Viel Erfolg!
 
Zuletzt aktualisiert 17.12.2025
Im Forum Statiker / Statik gibt es 116 Themen mit insgesamt 1169 Beiträgen


Ähnliche Themen zu Dickere Decke oder Unterzug/Traeger
Nr.ErgebnisBeiträge
1Einfamilienhaus,Zwei Varianten Grundriss vom Architekt 39
2Grundriss EFH165 qm erster Entwurf - Architekt unzufrieden - Seite 374
3Grundriss Planung passt? - Vom Bungalow zum 2-geschossigen Einfamilienhaus - Seite 328
4Grundriss Einfamilienhaus, 200m2, 2 Vollgeschosse, Garage, ohne Keller 39
5Grundriss: Neubau auf Bungalow-Bestandskeller, 1,5-Geschossige - Seite 1397
6Grundriss Einfamilienhaus, 2 Vollgeschosse und Staffelgeschoss - Seite 964
7Planung / Architekt, Einbeziehung Fachplaner für Genehmigungsplan 10
8Grundriss für Einfamilienhaus statisch realistisch? 25
9Angebot Statiker + Wärmeschutznachweis Energieeinsparverordnung 2016 16
10Einfamilienhaus 130-140 m² Grundriss Planung - Seite 11173
11Statiker für grobe Einschätzung zur Tragfähigkeit gesucht - Seite 425
12Kosten Statiker Einfamilienhaus Tragwerksplanung 23
13Grundriss-Planung Altbau aus den 30ern - Seite 663
14Hausbau 2.0 - erster Grundriss-Entwurf - Seite 22155
15Grundriss und Aufstockung eines Hauses - Baujahr 1966 - Seite 231
16Renovierung eines Altbaus Grundriss-Einteilung Erfahrungen 26
17Verständnisfrage: Satteldach - tragende Wände - Grundriss 11
18Grundriss-Ideen, 2,5-geschossig - Seite 431
19Baugenehmigung Antrag - Seite 212
20Unser Grundriss von 120qm auf 469qm Grundstück - Seite 1273

Oben