ᐅ Stadtvilla 180qm ohne Keller + Doppelgarage
Erstellt am: 08.08.20 23:50
C
Christobal08.08.20 23:50Bebauungsplan/Einschränkungen
Größe des Grundstücks
687qm
Hang
nein / rechts-links ca. 1m - über die Länge null
Grundflächenzahl
0,4
Geschossflächenzahl
0,8
Baufenster, Baulinie und -grenze
Abstand vorne 3m (Im Grundriss) Fenster ab dort 16m - also 19m ab Grenze
Randbebauung
Beidseitig erlaubt für Garage - RLP bis 3,2 m Höhe
Anzahl Stellplatz
2 vorgeschrieben
Geschossigkeit
2 Vollgeschosse
Dachform
kein Flachdach
Stilrichtung
Stadtvilla
Ausrichtung
Maximale Höhen/Begrenzungen
TH 6,5,m FH 10,5m - Straßenbezugspunkt(mitte)
weitere Vorgaben
Anforderungen der Bauherren
Stilrichtung, Dachform, Gebäudetyp
Stadtvilla ist gesetzt - Dachform Walm (kein Zelt)
Keller, Geschosse
Kein Keller, dafür 2 Vollgeschosse (Raum unter Dach nutzbar?)
Anzahl der Personen, Alter
36+32+2+geplant
Raumbedarf im EG, OG
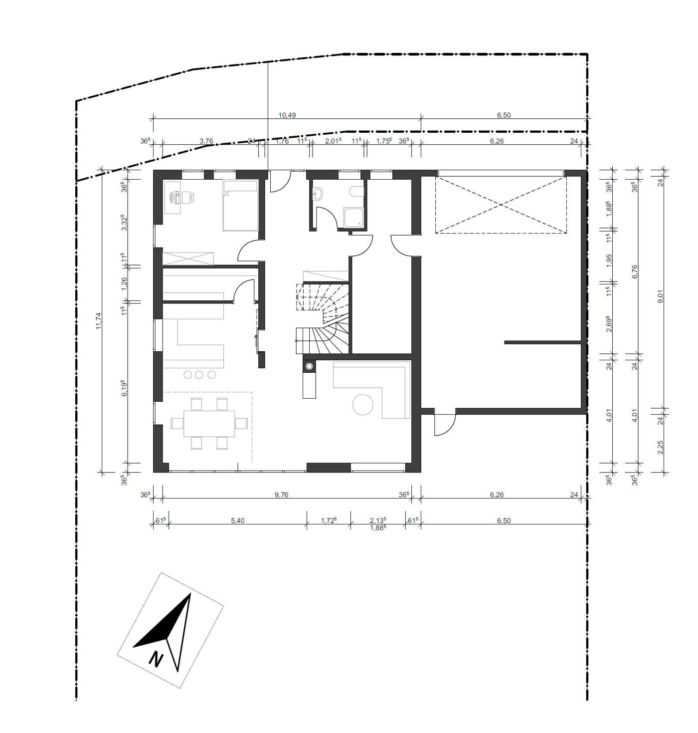
EG: Kochen, Essen, Wohnen + Office/Bad + Technik Hauswirtschaftsraum
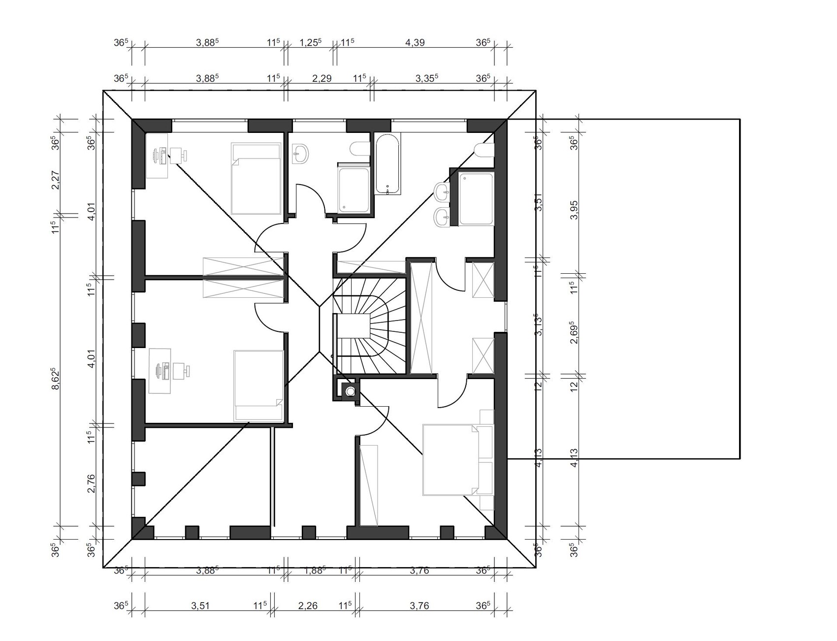
OG: Schlafzimmer, 2 KZ, 2 Bäder, Kinderbad vor Hauswirtschaftsraum im OG - Sind Trockner Gegner und Wäsche kommt eh raus, also waschen im OG sinnlos und abgewägt.
Büro: Familiennutzung oder Homeoffice?
Pflicht: Beide können 100 % im HomeOffice arbeiten
Schlafgäste pro Jahr
Reichlich - meist 2 Gäste ca 2-3 Wochenende je Monat
offene oder geschlossene Architektur
offen: Küche offen, Luftraum
konservativ oder moderne Bauweise
egal
offene Küche, Kochinsel
L-Theke eher als Insel, aber offen.
Anzahl Essplätze
8
Kamin
Sollte
Musik/Stereowand
überflüssig
Balkon, Dachterrasse
oben unnötig
Garage, Carport
Doppelgarage
Nutzgarten, Treibhaus
Ist, neben Garage mit Hebebühne in wenigen Minuten zu erreichen und im Besitz
weitere Wünsche/Besonderheiten/Tagesablauf, gern auch Begründungen, warum dieses oder das nicht sein soll
1. Meine Frau kann keine geraden Treppen gehen, gewendelt / Podest Pflicht
2. Luftraum und viel Licht Pflicht
3. Kamin gewünscht.
4. Wir können viel zu Hause arbeiten und tun dies auch. Aktuell ist immer ein Erwachsener tagsüber zu Hause: Prio EG Leben, OG Schlafen
5. Hauswirtschaftsraum im OG nicht vorschlagen. Wir sind Freilufttrockner
Hausentwurf
Von wem stammt die Planung:
-Do-it-Yourself: Meine Frau und ich + Die Software ArchiCAD eines Bekannten
Was gefällt besonders? Warum?
5,4-6m Fenster ist Pflicht. / Trennbarkeit Büro+GK zu Wohnraum.
Nutzung der 17m Breite
Kinderzimmer mit je ca. 16qm + Luftraum und nutzbare Verkehrsfläche daran.
Was gefällt nicht? Warum?
Alle 3 Bäder- Hier benötigen wir Input und Speisekammer oder Raum unter Treppe nutzen?
Preisschätzung lt Architekt/Planer:
keine Vorhanden
Persönliches Preislimit fürs Haus, inkl Ausstattung:
500K - Grundstück ist bereits Eigentum inkl. Nebenkosten
favorisierte Heiztechnik:
Gas-Brennwert oder Luftwärmepumpe konkurrieren
Wenn Ihr verzichten müsst, auf welche Details/Ausbauten
-könnt Ihr verzichten:
Dusche in Gäste-WC
Speisekammer - evtl. Treppen und Hauswirtschaftsraum Nutzbar
-könnt Ihr nicht verzichten:
Badewanne, Ankleide, Fenster zur Terrasse.
Warum ist der Entwurf so geworden, wie er jetzt ist? ZB
Ein Gemisch aus vielen Beispielen aus div. Magazinen...
und eurem Input hier.
Was macht ihn in Euren Augen besonders gut oder schlecht?
Wir lieben den Weg Treppe runter gerade in die Küche.
Bis zu 6m Fenster
Ankleide 3m Länge / Nutzbarkeit mit Bad
Wenig Verkehrsraum
Was ist die wichtigste/grundlegende Frage zum Grundriss in 130 Zeichen zusammengefasst?
- Das obere Bad / Bäder? Hilfe zur Anordnung auch mit Fenster
Prio 1!!
- Statik tragfähigkeit über dem 5-6 m Schiebefenster im EG
Prio2
- Hauswirtschaftsraum und Technik ist noch eins / Trennwand zur "dunklen" Technik ist möglich
- Luftraum oben dadurch evtl. 17er Wände?
- Raum unter Treppe wie nutzen? Kann die Diele zur Küche verschwinden? Sogar Wand an die Treppe ranschieben?
- Maximale Deckenhöhe licht bei 6,5m TH?
- Speisekammer? Ja/Nein?
Auf was ich verzichten kann:
Diskussion um Luftraum. Ja Geruch, Lärm versus offen. Ist bewusst entschieden
Hinweis: Wir haben uns im Juni entschieden zu bauen.
Grundstück gekauft und im Urlaub anfang Juli mal begonnen zu überlegen.
Jetzt steht die erste eigene Idee, auch nach durchlesen vieler Tipps hier, aber insgesamt sind wir erst gute 6 Wochen überhaupt dran




Größe des Grundstücks
687qm
Hang
nein / rechts-links ca. 1m - über die Länge null
Grundflächenzahl
0,4
Geschossflächenzahl
0,8
Baufenster, Baulinie und -grenze
Abstand vorne 3m (Im Grundriss) Fenster ab dort 16m - also 19m ab Grenze
Randbebauung
Beidseitig erlaubt für Garage - RLP bis 3,2 m Höhe
Anzahl Stellplatz
2 vorgeschrieben
Geschossigkeit
2 Vollgeschosse
Dachform
kein Flachdach
Stilrichtung
Stadtvilla
Ausrichtung
Maximale Höhen/Begrenzungen
TH 6,5,m FH 10,5m - Straßenbezugspunkt(mitte)
weitere Vorgaben
Anforderungen der Bauherren
Stilrichtung, Dachform, Gebäudetyp
Stadtvilla ist gesetzt - Dachform Walm (kein Zelt)
Keller, Geschosse
Kein Keller, dafür 2 Vollgeschosse (Raum unter Dach nutzbar?)
Anzahl der Personen, Alter
36+32+2+geplant
Raumbedarf im EG, OG
EG: Kochen, Essen, Wohnen + Office/Bad + Technik Hauswirtschaftsraum
OG: Schlafzimmer, 2 KZ, 2 Bäder, Kinderbad vor Hauswirtschaftsraum im OG - Sind Trockner Gegner und Wäsche kommt eh raus, also waschen im OG sinnlos und abgewägt.
Büro: Familiennutzung oder Homeoffice?
Pflicht: Beide können 100 % im HomeOffice arbeiten
Schlafgäste pro Jahr
Reichlich - meist 2 Gäste ca 2-3 Wochenende je Monat
offene oder geschlossene Architektur
offen: Küche offen, Luftraum
konservativ oder moderne Bauweise
egal
offene Küche, Kochinsel
L-Theke eher als Insel, aber offen.
Anzahl Essplätze
8
Kamin
Sollte
Musik/Stereowand
überflüssig
Balkon, Dachterrasse
oben unnötig
Garage, Carport
Doppelgarage
Nutzgarten, Treibhaus
Ist, neben Garage mit Hebebühne in wenigen Minuten zu erreichen und im Besitz
weitere Wünsche/Besonderheiten/Tagesablauf, gern auch Begründungen, warum dieses oder das nicht sein soll
1. Meine Frau kann keine geraden Treppen gehen, gewendelt / Podest Pflicht
2. Luftraum und viel Licht Pflicht
3. Kamin gewünscht.
4. Wir können viel zu Hause arbeiten und tun dies auch. Aktuell ist immer ein Erwachsener tagsüber zu Hause: Prio EG Leben, OG Schlafen
5. Hauswirtschaftsraum im OG nicht vorschlagen. Wir sind Freilufttrockner
Hausentwurf
Von wem stammt die Planung:
-Do-it-Yourself: Meine Frau und ich + Die Software ArchiCAD eines Bekannten
Was gefällt besonders? Warum?
5,4-6m Fenster ist Pflicht. / Trennbarkeit Büro+GK zu Wohnraum.
Nutzung der 17m Breite
Kinderzimmer mit je ca. 16qm + Luftraum und nutzbare Verkehrsfläche daran.
Was gefällt nicht? Warum?
Alle 3 Bäder- Hier benötigen wir Input und Speisekammer oder Raum unter Treppe nutzen?
Preisschätzung lt Architekt/Planer:
keine Vorhanden
Persönliches Preislimit fürs Haus, inkl Ausstattung:
500K - Grundstück ist bereits Eigentum inkl. Nebenkosten
favorisierte Heiztechnik:
Gas-Brennwert oder Luftwärmepumpe konkurrieren
Wenn Ihr verzichten müsst, auf welche Details/Ausbauten
-könnt Ihr verzichten:
Dusche in Gäste-WC
Speisekammer - evtl. Treppen und Hauswirtschaftsraum Nutzbar
-könnt Ihr nicht verzichten:
Badewanne, Ankleide, Fenster zur Terrasse.
Warum ist der Entwurf so geworden, wie er jetzt ist? ZB
Ein Gemisch aus vielen Beispielen aus div. Magazinen...
und eurem Input hier.
Was macht ihn in Euren Augen besonders gut oder schlecht?
Wir lieben den Weg Treppe runter gerade in die Küche.
Bis zu 6m Fenster
Ankleide 3m Länge / Nutzbarkeit mit Bad
Wenig Verkehrsraum
Was ist die wichtigste/grundlegende Frage zum Grundriss in 130 Zeichen zusammengefasst?
- Das obere Bad / Bäder? Hilfe zur Anordnung auch mit Fenster
Prio 1!!
- Statik tragfähigkeit über dem 5-6 m Schiebefenster im EG
Prio2
- Hauswirtschaftsraum und Technik ist noch eins / Trennwand zur "dunklen" Technik ist möglich
- Luftraum oben dadurch evtl. 17er Wände?
- Raum unter Treppe wie nutzen? Kann die Diele zur Küche verschwinden? Sogar Wand an die Treppe ranschieben?
- Maximale Deckenhöhe licht bei 6,5m TH?
- Speisekammer? Ja/Nein?
Auf was ich verzichten kann:
Diskussion um Luftraum. Ja Geruch, Lärm versus offen. Ist bewusst entschieden
Hinweis: Wir haben uns im Juni entschieden zu bauen.
Grundstück gekauft und im Urlaub anfang Juli mal begonnen zu überlegen.
Jetzt steht die erste eigene Idee, auch nach durchlesen vieler Tipps hier, aber insgesamt sind wir erst gute 6 Wochen überhaupt dran
Christobal schrieb:
Sind Trockner Gegner und Wäsche kommt eh raus, also waschen im OG sinnlos und abgewägt.Soll das heißen;Wir sind Gegner von Trocknern und Wäsche wird deshalb draußen getrocknet, also sinnvoller, dass Waschmaschine im EG? Bitte ganze Sätze bei solch inhaltlich komplizierten
ansonsten:
1,75 Breite ist schon sehr schmal, auch für einen Hauswirtschaftsraum... und 1,2x für die Speis einfach nur Platzfresser ohne Nutzen. Mir pers gefällt der Flur im EG sowie OG überhaupt nicht. Küche wäre mE nicht ausreichend mit Hochschränken und Arbeitsfläche
küche hat viel Verkehrsfläche,... die 6,10 zeigen, dass weniger Fläche zur Verfügung steht.
irgendwie ist das ein unprof. Rumgefrickel
Gönn´ dem Übergang Haus-Garagenfassade eine Schattenkante. Und nimm´ ein paar Milligramm Strenge aus den Fassaden. Die Raumwirkung im Elternbad leidet unter der Verwinkeltheit.
https://www.instagram.com/11antgmxde/
https://www.linkedin.com/company/bauen-jetzt/
Christobal schrieb:Die Prioritäten verstehe ich (rein inhaltlich) nicht. Was ist "dunkle Technik", meinst Du den bunten Heizkessel im Unterschied zur "weißen Ware" ?
- Das obere Bad / Bäder? Hilfe zur Anordnung auch mit Fenster Prio 1!!
- Statik tragfähigkeit über dem 5-6 m Schiebefenster im EG Prio2
- Hauswirtschaftsraum und Technik ist noch eins / Trennwand zur "dunklen" Technik ist möglich
Christobal schrieb:Eine Geradtreppenphobie kennt sogar mein Psychiater noch nicht
1. Meine Frau kann keine geraden Treppen gehen, gewendelt / Podest Pflicht
Christobal schrieb:Und wieder bin ich sprachlich überfordert :-(
Kann die Diele zur Küche verschwinden? Sogar Wand an die Treppe ranschieben?
https://www.instagram.com/11antgmxde/
https://www.linkedin.com/company/bauen-jetzt/
C
Christobal09.08.20 00:35Hallo Leute,
sorry.
Erste Anmerkung: Laienhaft, da Laie. Ich hab nichts anderes erwartet.
Zur Speisekammer:
Meine Eltern habe so eine 3m x 1m, daher kenne ich das, aber steht ja absichtlich ein Fragezeichen dran.
weglassen würde auch Hochschränke richtung Diele ermöglichen.
Raumbreite Küche 3,7 passabel für ein L?
Zum Hauswirtschaftsraum/Technik.
Irgendwie sind diese 1,7m nur um Tageslicht zu gewinnen. Ansonsten könnte auch das Gästebad die volle Breite nehmen und der Hauswirtschaftsraum ohne Tageslicht sein.
Mit Technik im dunkeln meine ich, das dieser Raum aktuell ca. 14qm hat, aber je nachdem wie man auch Raum unter der Treppe nutzen kann wäre es eine Option die Technik hinter der Treppe zu platzieren und evtl. noch eine Zwischenwand zu den Durchgangstüren in den Hauswirtschaftsraum/Technik einzuziehen. Das war mit ins dunkle Stellen gemeint.
Die weiße Ware meine ich damit nicht
Flure sehe ich. Unten ist es ein Garaderoben Kniff, wobei ich selbst am Sinn des Flures bis zum Treppenaufgang zweifle.
Im OG ist es so, dass das Bad so im quadratischen Bereich noch ungeordnet ist. Der Flur geht um die Ecke um ein gefangenes Bad zu vermeiden. Wir wollen nicht durchs Schlafzimmer wieder raus.
Hab ja selbst geschrieben. Diese Bäder nerven noch.
Danke.
sorry.
Erste Anmerkung: Laienhaft, da Laie. Ich hab nichts anderes erwartet.
Zur Speisekammer:
Meine Eltern habe so eine 3m x 1m, daher kenne ich das, aber steht ja absichtlich ein Fragezeichen dran.
weglassen würde auch Hochschränke richtung Diele ermöglichen.
Raumbreite Küche 3,7 passabel für ein L?
Zum Hauswirtschaftsraum/Technik.
Irgendwie sind diese 1,7m nur um Tageslicht zu gewinnen. Ansonsten könnte auch das Gästebad die volle Breite nehmen und der Hauswirtschaftsraum ohne Tageslicht sein.
Mit Technik im dunkeln meine ich, das dieser Raum aktuell ca. 14qm hat, aber je nachdem wie man auch Raum unter der Treppe nutzen kann wäre es eine Option die Technik hinter der Treppe zu platzieren und evtl. noch eine Zwischenwand zu den Durchgangstüren in den Hauswirtschaftsraum/Technik einzuziehen. Das war mit ins dunkle Stellen gemeint.
Die weiße Ware meine ich damit nicht
Flure sehe ich. Unten ist es ein Garaderoben Kniff, wobei ich selbst am Sinn des Flures bis zum Treppenaufgang zweifle.
Im OG ist es so, dass das Bad so im quadratischen Bereich noch ungeordnet ist. Der Flur geht um die Ecke um ein gefangenes Bad zu vermeiden. Wir wollen nicht durchs Schlafzimmer wieder raus.
Hab ja selbst geschrieben. Diese Bäder nerven noch.
Danke.
C
Christobal09.08.20 00:42Hallo Leute
nochmal ein kurzes Paint um zu erklären was ich mit Technik abtrennen meine und was bedeutet:
"Die Wand von der Küche vor die Treppe ziehen"
Ich will damit aber nicht von meinen Prio Themen Flur/Bad ablenken.
Die Hausfassade sehe ich auch zu clean. Garage wird zum Haus versetzt. Dazu ein Vordach, was von Garage bis zur Haustür geht. Sowas sieht man ja in jedem aktuellen Neubaugebiet. Wir sind erst seit Tagen/Wochen und nicht Monaten dran.
Danke für jeden Tipp.

nochmal ein kurzes Paint um zu erklären was ich mit Technik abtrennen meine und was bedeutet:
"Die Wand von der Küche vor die Treppe ziehen"
Ich will damit aber nicht von meinen Prio Themen Flur/Bad ablenken.
Die Hausfassade sehe ich auch zu clean. Garage wird zum Haus versetzt. Dazu ein Vordach, was von Garage bis zur Haustür geht. Sowas sieht man ja in jedem aktuellen Neubaugebiet. Wir sind erst seit Tagen/Wochen und nicht Monaten dran.
Danke für jeden Tipp.
Christobal schrieb:
Erste Anmerkung: Laienhaft, da Laie.Da habe ich hier schon weit unreifere und auch weniger umsetzbare Laienwerke gesehen. Mit dem Programm gehst Du zumindest so um, daß ich an Deinem Laientum leichte Zweifel habe Dennoch würde ich es vor dem Hintergrund
Christobal schrieb:
Jetzt steht die erste eigene Idee, auch nach durchlesen vieler Tipps hier, aber insgesamt sind wir erst gute 6 Wochen überhaupt dran"lieber sehen", Du nähmest erst´mal noch das klassische Kritzelpapier https://www.instagram.com/11antgmxde/
https://www.linkedin.com/company/bauen-jetzt/
Ähnliche Themen