Opinions sur le projet

  • Erstellt am 09.11.2012 13:16:46

Shism

09.11.2012 13:16:46
  • #1
Bonjour à tous,

Notre projet d’architecte commence à prendre forme…

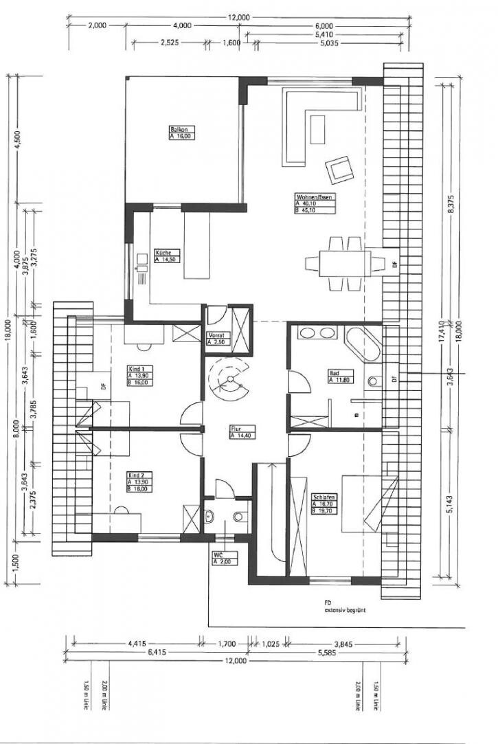
Quel est votre avis sur le projet joint ? Où voyez-vous éventuellement des problèmes ou qu’est-ce qui ne vous plaît pas ?

Pour expliquer, il s’agit d’une maison bi-familiale, mais avec deux portes d’entrée séparées, donc pas d’escalier commun. En bas les parents, en haut moi avec ma famille.

Une modification qui n’est pas encore incluse dans ce projet concerne la largeur de l’entrée pour l’étage supérieur. Elle sera élargie d’environ 30 cm, ce qui sera pris sur le garage…

Et expert en construction, que penserais-tu, à grands traits, du coût si tout est réalisé en Kfw70 ? Le chauffage est de la chaleur urbaine (6k de coûts de raccordement) avec un très bon facteur d’énergie primaire (pas besoin de solaire).
J’ai bien sûr une estimation des coûts de l’architecte, mais j’aimerais mieux pouvoir juger si ce prix est réaliste…











 

Musketier

09.11.2012 14:46:10
  • #2
Bonjour Shism,

as-tu déjà publié le projet quelque part ? Il me semble familier d'une manière ou d'une autre.
Je trouve la maison assez jolie en soi.

Ce qui me surprend un peu, c'est que vous, en tant que famille, n'ayez qu'une seule douche et que les parents en aient deux ?

Après y avoir réfléchi longtemps, j'ai plus ou moins compris le sens du sas, même si je ne suis pas du tout sûr que ce soit pratique quand on revient des courses depuis le garage. Qu'en est-il du chauffage de la cage d'escalier ? Je peux imaginer qu'une cage d'escalier non chauffée en haut provoquera toujours un courant d'air frais.

Qu'est-ce qui s'opposait en fait à un escalier commun ?

Avez-vous déjà prévu les meubles et la télévision dans le salon ? Selon la hauteur du mur pignon, cela pourrait poser problème.
 

Bauexperte

09.11.2012 14:58:18
  • #3
Bonjour,


Ma première question pour toi est déjà : pourquoi cela doit-il être aussi enchevêtré ? Je comprends bien que tu dois t’adapter à la configuration du terrain à droite – pourtant je ne vois pas la nécessité que le côté opposé suive ce modèle. Chaque décalage coûte de l’argent.

Au total, j’arrive à environ 260 m² de surface habitable – sans compter l’appartement indépendant au sous-sol. Comment veux-tu créer un accès ici ? Uniquement par la cage d’escalier ? Pour une location, à mon avis, c’est une mauvaise condition ; les toilettes au sous-sol te coûteront encore des euros supplémentaires, car tu auras besoin d’une station de relevage avec un broyeur.

Brièvement (vraiment brièvement), j’estime que tu planifies une construction aux alentours de 470 à 480 mille euros, y compris le sous-sol utilisable avec l’appartement indépendant aménagé, plus environ 30 mille euros pour le garage en maçonnerie. Ensuite viennent les frais annexes de construction connus, une réserve pour d’éventuels coûts supplémentaires de fondation, les coûts des travaux de peinture et des revêtements de sols, les coûts des aménagements extérieurs ainsi qu’une réserve pour les extras. Le volume total estimé est d’environ 600 mille euros, jusqu’à ton arrivée avec le camion de déménagement.

Cordialement
 

Shism

09.11.2012 17:22:30
  • #4

Des projets précédents ont déjà été partiellement publiés dans d'autres forums... cela m'a beaucoup aidé à avoir un œil pour les problèmes potentiels que l'on ne remarque pas forcément soi-même au départ...



Mon père tient absolument à avoir une "douche pour invités"... personnellement je peux m'en passer. Si jamais j'ai des invités qui veulent se doucher chez moi, ils peuvent bien utiliser la salle de bain...
Je m'épargne ainsi les quelques centaines/milliers d'euros pour une douche supplémentaire...

Pour le moment, nous sommes quatre à nous contenter d'une baignoire utilisée comme douche... À l'avenir, l'un pourra se doucher et l'autre pourra encore se laver dans la baignoire au besoin... cela devrait suffire pour nous... Je me réjouis déjà d'une grande douche au ras du sol ^^



En principe, on a toujours deux portes entre le garage et la cuisine... soit comme maintenant les portes Garage->Sas et Sas->Entrée, soit, en cas de cage d'escalier commune, la porte du garage vers la cage d'escalier puis de la cage d'escalier vers l'appartement... Je ne peux donc pas me passer d'une porte... elle se déplace simplement.
Certes, il y a une porte de plus que dans une maison individuelle, mais je n'ai encore vu aucune autre solution.



Ma femme et moi nous entendons bien avec mes parents, mais nous voulions tout de même une certaine possibilité de séparation...
Ainsi, mes parents ne sont pas toujours au courant quand nous recevons des invités et inversement... et si nos enfants courent dans la cage d'escalier avec des chaussures sales, ma femme n'a pas à se sentir coupable si elle ne nettoie pas aussitôt...
Je veux aussi essayer d'utiliser notre partie du rez-de-chaussée comme une sorte de "sas à saleté"... c’est-à-dire que les chaussures et vestes restent en bas, et on monte les escaliers en chaussons... ainsi, on a une séparation propre entre l'espace de vie et le vestiaire...



Oui, j'y ai déjà réfléchi. La hauteur sous la paroi inclinée est de 110 cm, ce qui est relativement peu problématique pour la télévision sous la pente... tant que je ne cherche pas à dépasser clairement 60 pouces, il n'y aura pas de problème :)


Nous avons déjà une pente de toit et une hauteur sous paroi inclinée de 110 cm à l'étage... le premier décalage de 12 m à 10 m de largeur sert à ce que les deux chambres d'enfants aient une fenêtre "normale"... par une fenêtre de toit, on ne verrait que le ciel bleu... de plus, cela me permet d'avoir une hauteur de mur de 2,6 m dans la cuisine au lieu d'une pente de toit... dans un bâtiment carré, il aurait fallu une lucarne pour utiliser des armoires hautes/ sur le mur dans la cuisine.
Le deuxième retrait de 10 m à 6 m sert à encadrer la terrasse/le balcon, ce qui nous permet de le réaliser bien protégé et couvert... De plus, les pièces et la répartition des pièces seraient complètement différentes dans une maison carrée... nous avions d'abord commencé la planification avec un bâtiment carré, mais nous nous en sommes vite détournés...



J'aurais dû le préciser... Il n'y aura pas de logement annexe séparé, c'est la chambre de ma sœur... L'appartement fait en principe partie de l'espace de vie de mes parents... Il n’est cependant pas certain combien de temps ma sœur restera encore vivre avec mes parents...
Peut-être qu'un jour mon fils aîné (actuellement 8 ans) descendra en bas car il aura la paix et sa propre salle de bain... Ou alors on aménagera une super salle de fitness là-bas :)

Louer en tant qu'appartement annexe n'est pas possible car seulement 2 unités d'habitation sont autorisées...



Cela me rassure quand même... :)
Cela correspond assez bien à l'estimation des coûts de mon architecte...
 

Bauexperte

09.11.2012 18:16:21
  • #5
Bonjour,


C'est ce que je pensais :-)

Je suis content de lire que "mon" estimation est correcte et que je ne raconte pas des bêtises ici à la gare centrale :D

Cordialement
 

Musketier

09.11.2012 22:09:47
  • #6


J’avais d’abord pensé à 2 portes séparées (une pour vous, une pour les parents) vers le garage et voulais déjà te le proposer. Cela permettrait d’avoir encore plus d’espace dans le « sas de décontamination » et une porte en moins. Cependant, je me suis rappelé ensuite de la cave. Pour cela, je n’ai pas encore trouvé de solution adaptée.
Est-ce que les parents doivent aussi accéder directement au garage ?
 

Sujets similaires
08.04.2015Installer une salle technique dans le garage ? Est-ce possible ?35
06.05.2015Ébauche de maison individuelle avec garage/carport - merci de faire une évaluation22
18.10.2016Planifier l'emplacement de la maison et du garage dans la fenêtre de construction *Pré-planification*129
07.04.2018Appartement pour les parents : maison individuelle de 210 m² et appartement de 80 m²129
23.04.2018Premier brouillon du dessinateur pour notre maison unifamiliale56
21.08.2020Plan d'étage d'une maison individuelle avec 4 chambres d'enfants et un appartement indépendant17
18.01.2021Projet de maison individuelle d'environ 168 m² retour d'information37
23.01.2021Plafond en bois et isolation partielle pour sous-sol avec garage15
01.12.2022Plan d'aménagement Maison individuelle sur pente, appartement indépendant, garage double71
08.06.2021Maison individuelle sur une pente sud, plan d'environ 160m² - avec sous-sol et garage34
07.07.2021Plan d'une maison individuelle avec appartement indépendant en tant que maison à 3 logements69
26.10.2024Plan de maison avec appartement indépendant - suggestions d'amélioration ?221
23.01.2024Plan d'une maison individuelle de 200 m² avec appartement indépendant de 75 m² + cave de 140 m² + garage de 56 m²59
07.03.2024Plan d'une maison individuelle de 240 m² avec un garage partiellement construit au-dessus96
09.09.2024Conception du plan : maison individuelle avec sous-sol ; terrain de 560 m²65
05.01.2025Terrain d'angle avec appartement annexe119
19.11.2024Plan d'une maison individuelle de 240 m² avec appartement annexe de 75 m² et garage39
01.01.2025Plan d'étage, disposition de la maison EFW 150m2, sous-sol + logement indépendant - retour souhaité67
01.02.2025Plan d'étage maison individuelle d'environ 250 m² avec appartement annexe70
29.03.2025Projet de maison individuelle (EFH), 2 étages pleins, toiture à un ou deux versants, pas de sous-sol, garage double31

Oben