Zusätzlicher Hauswirtschaftsraum im OG für Waschmaschine etc.

4,70 Stern(e) 3 Votes
Zuletzt aktualisiert 09.10.2025
Sie befinden sich auf der Seite 2 der Diskussion zum Thema: Zusätzlicher Hauswirtschaftsraum im OG für Waschmaschine etc.
>> Zum 1. Beitrag <<

Y

ypg

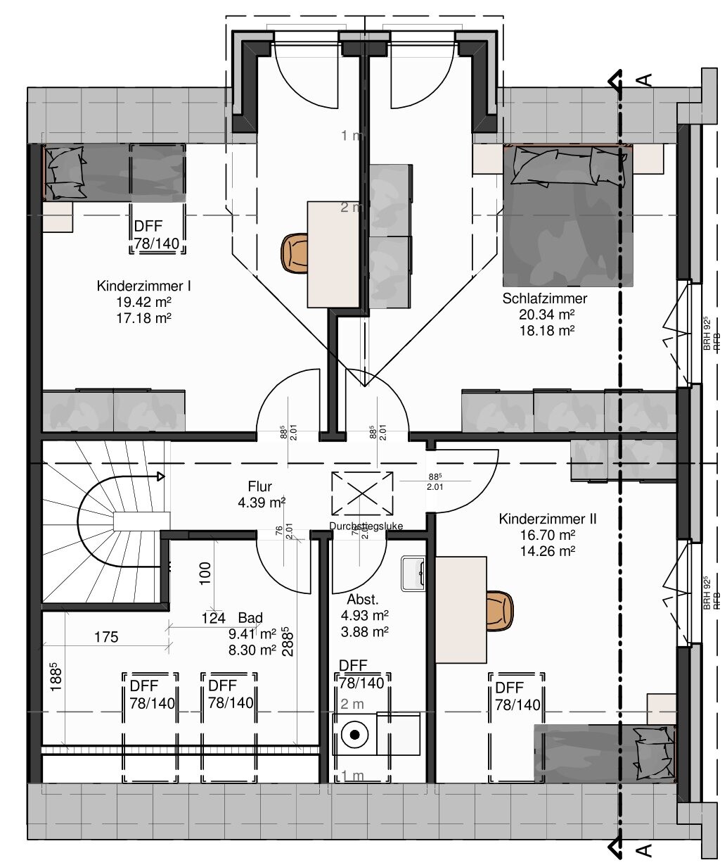
Und welche Größe habt ihr da? Weil wir haben auch da nur 5qm.. Und natürlich die" bösen" schrägen? Trotzdem ausreichend?
Für wie viel Personen?
Es kommt auf den Raum an: neben Waschmaschine und Trockner muss eine Trocknungsmöglichkeit für Sportwäsche und Wolle sein.
Wir haben so eine Wandgeschichte - komme nicht auf das Wort. Aber wir sind nur zu zweit!!
Jede Familie hat ja ihre eigenen Bekleidungsstoffe und Gewohnheiten.
Wer keinen Trockner hat, braucht Fläche zum Aufhängen, wer nur bügelfreie Sachen hat, muss mehr auf Leine trocknen, Baumwolle wieder macht sich selbst im Trockner. Dann überlege, wo Du bügelst: viele planen dafür keinen Platz ein, für mich ist ideal das Schlafzimmer, also gaben wir gleich dort mehr Freifläche zw TV und Bett geplant.
Andere müssen wieder ins WZ...

Ich hätte gern mehr Platz für einen Wandschrank, jetzt ist es nur ein kleiner Hängeschrank geworden

Stell doch Deinen Grundriss hier ein - dann können wir, bevor es zu spät ist, noch den einen oder anderen guten Hinweis geben.
Aber ich warne: wir können auch viel mäkeln, wo nichts zu mäkeln ist [emoji56][emoji6]


Gruß, Yvonne
 
Y

ypg

Mit bitte um Kommentare
Ich habe eigentlich gedacht, dass Du einen extra-Thread aufmachst [emoji6]

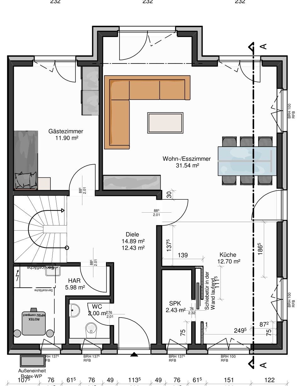
Das Haus ist relativ klein? Wollt ihr es so möblieren wie eingezeichnet? Dann wäre der teure Erker im EG nicht nutzbar.
Les Dir mal im Unterforum planungsideen (?) den angepinnten Beitrag durch.
Dort wäre auch ein neuer Thread zum Thema Grundrissdiskussion angebracht.
Zum Thema Hauswirtschaftsraum im OG: Waschbecken weglassen, da habt ihr eins nebenan.


Gruß, Yvonne
 
E

Ev-Marie86

Also es sind 145qm und es ist ein Doppelhaus ja... Möbel sind nur so eingezeichnet... und zum Waschbecken... ich habe kondenstrockner.. jedes mal ins Bad..Nein.. ach ja... Sind zu zweit.. noch... (einfach das gleiche noch mal einstellen im anderen Thread?!)
 
Zuletzt aktualisiert 09.10.2025
Im Forum Bauplanung gibt es 5062 Themen mit insgesamt 100669 Beiträgen


Ähnliche Themen zu Zusätzlicher Hauswirtschaftsraum im OG für Waschmaschine etc.
Nr.ErgebnisBeiträge
1Waschmaschine und Trockner in Ankleide? - Seite 216
28,02m Positionierung Waschbecken / Toilette - Seite 1069
3Waschbecken im Wäscheraum? 18
4Energiemanagementsysteme und Steuerung von WM, Trockner und Grundstück - Seite 356
5Wäscheturm für Waschmaschine und Trockner gesucht 19
6Waschmaschine und Trockner im Keller oder OG? 14
7Problem mit Anschluss Waschbecken zu Abwasserleitung/-Rohr 16
8Badplanung - Wie den Platz für Waschbecken und Schränke nutzen 32
9Waschbecken entfernen - Fließe kaputt? 10
10Waschbecken an Vorwandelement ersetzen 25
11Waschbecken ohne Schraubenlöcher 16
12Kann man ein Waschbecken nachträglich im WC-Raum installieren? 11
13Unterbauschrank Waschbecken 61
14Standdard-Waschbecken gegen Waschtischanlage selbst tauschen? 23
15Vormauer bei Toilette und Waschbecken 28

Oben