Hallo zusammen.
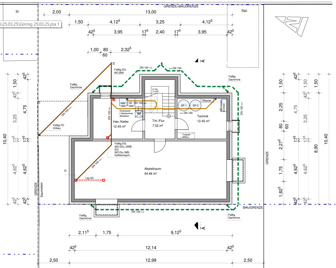
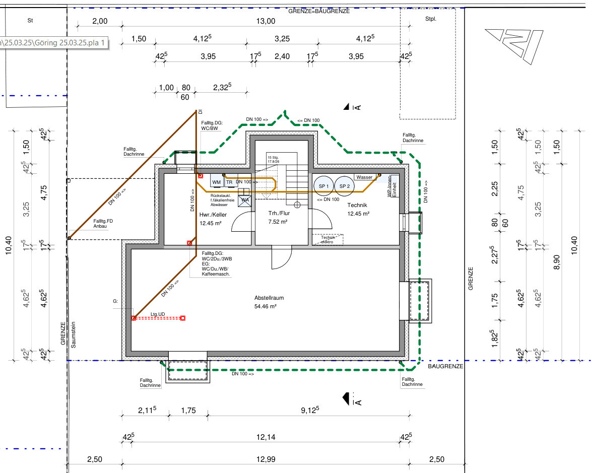
Wir haben vor ein anderthalb stöckiges Gebäude zu bauen. Es ist ein Technikschacht geplant, allerdings geht dieser nur vom Keller bis zum Boden des Obergeschosses.
Wir hatten zuerst ohne Lüftungsanlage geplant, wolllen diese aber nun doch einbauen. Allerdings soll das ganze in Eigenleistung passieren.
Ich hadere etwas, wie man denn am besten Zuluft und Fortluft relaisiert. Ich würde gerne ein Sole-Luft-Wärmetauscher vor die Zuluft planen um im Sommer die Luft vorzukühlen und vor allem zu entfeuchten. Deswegen ist es vermutlich sinnvoll die ganze Anlage in den Keller zur Heizung mitzuplanen. Die Zuluft sehe ich dann entweder nur als "komischer Turm im Garten" (dann eher im Süden) möglich, oder als längeres Rohr um das Gebäude führen und dann "irgendwie" über der Fahrradgarage die Luft ansaugen. Oder eben durch den Technikschacht und die Luft dann nördlich unter dem Giebel ansaugen. Dann transportiert man aber die ganze Luft quer durch das Haus bevor diese durch den Wärmetauscher geht und außerdme brauch so ein langes Rohr vermutlich auch einen entsprechenden Durchmesser, so dass das schwierig durch den Technikschacht geht.
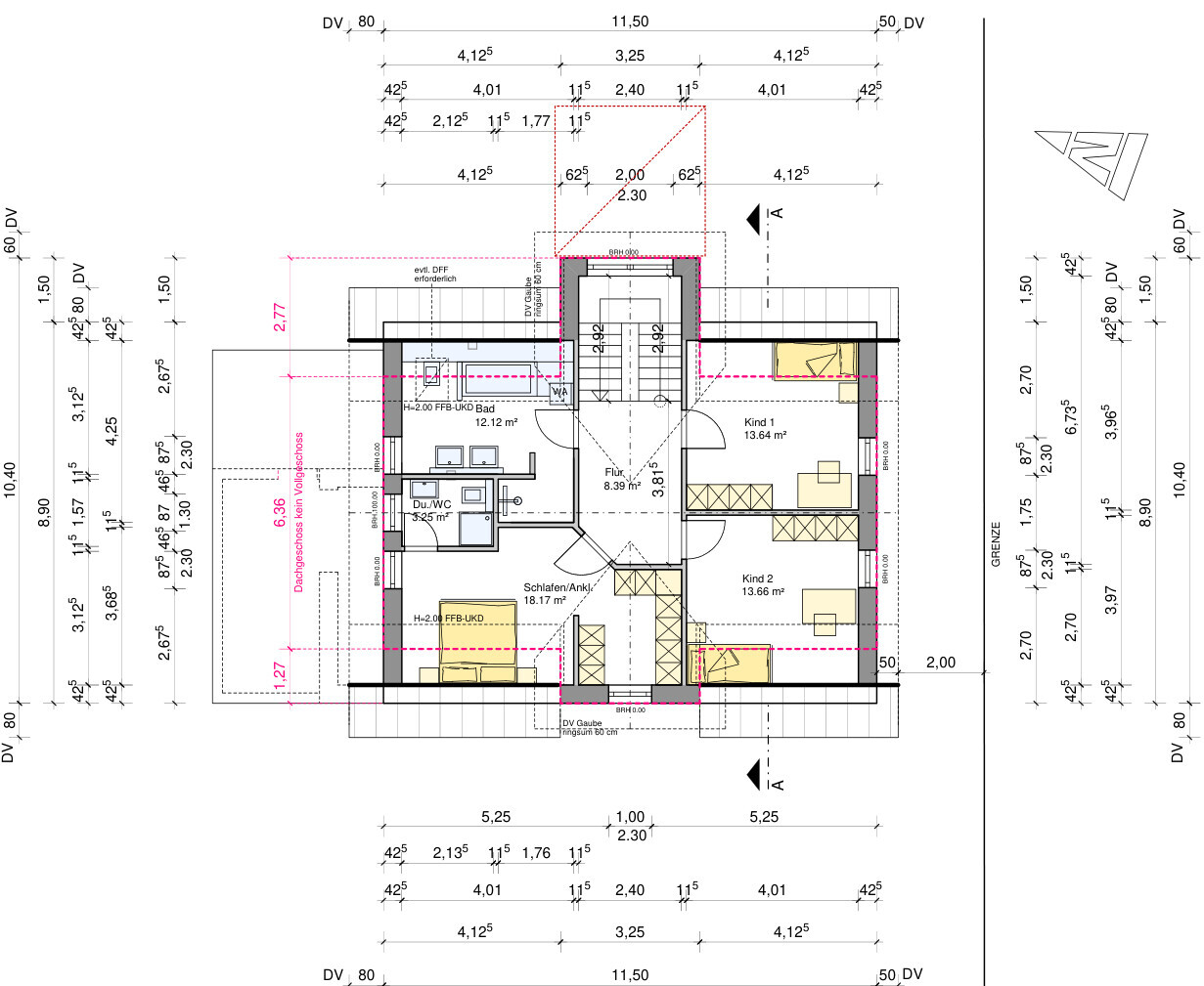
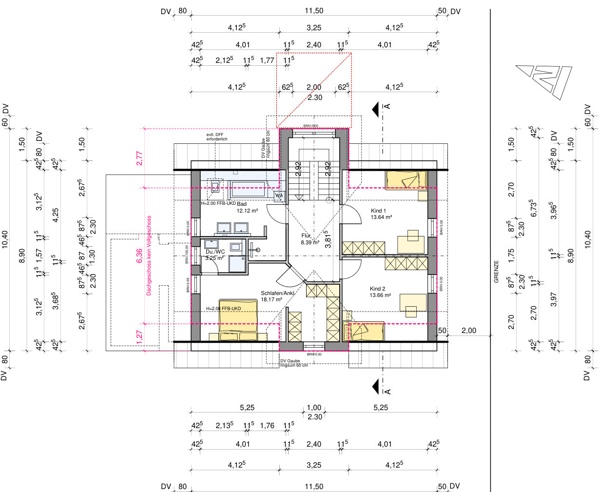
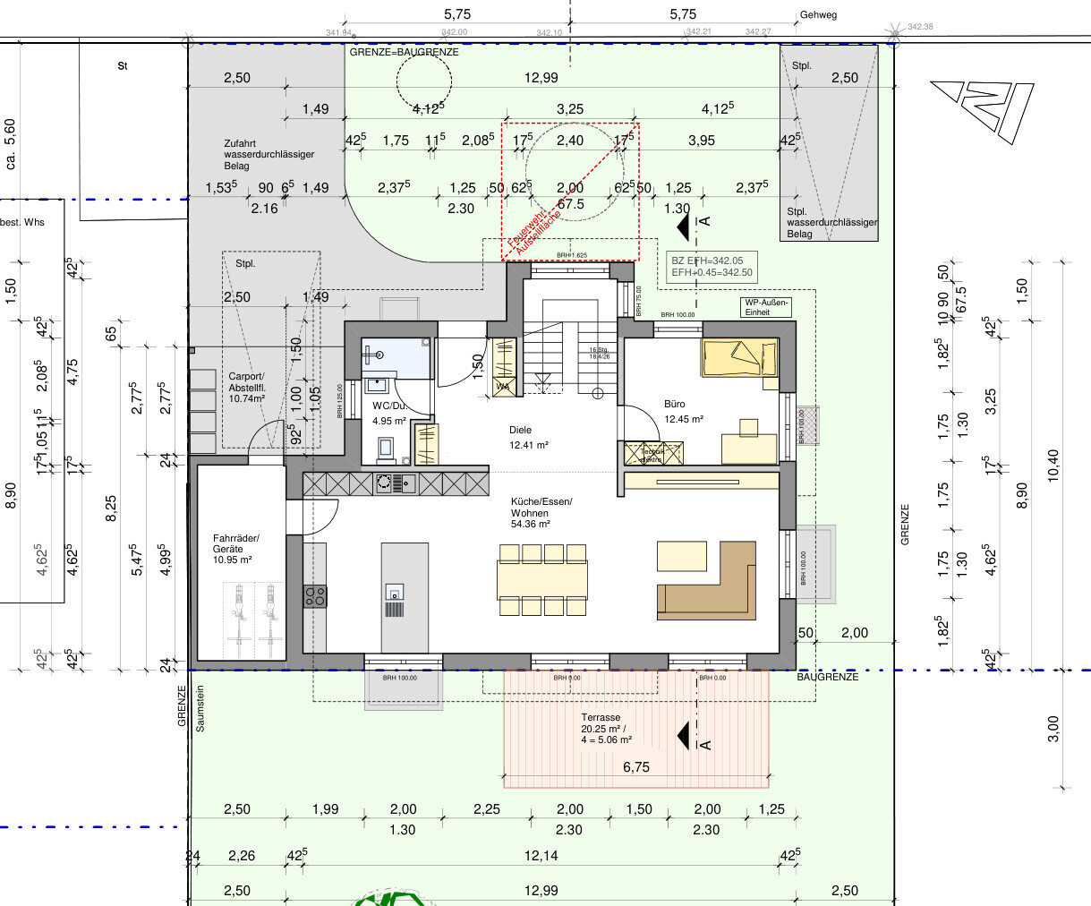
Ich habe mal die Grundrisse angehängt. Wie würdet ihr die Zuluft und Fortluft planen? Oder würdet ihr die Anlage vielleicht doch nicht in den Keller planen? Wir haben durch das flache Dach (25°) einen sehr niedrigen Spitzboden (~1m) den wir nicht nutzen werden. Ähnliches gilt auch die die Photovoltaikanlage. hier überlege ich ob ich den Wechselrichter über der Fahrradgarage an die Fassade baue, damit die ganzen DC-Leitungen außerhalb des gebäudes laufen und ich im Sommer nicht die ~400W Heizleistung im Keller habe.



Wir haben vor ein anderthalb stöckiges Gebäude zu bauen. Es ist ein Technikschacht geplant, allerdings geht dieser nur vom Keller bis zum Boden des Obergeschosses.
Wir hatten zuerst ohne Lüftungsanlage geplant, wolllen diese aber nun doch einbauen. Allerdings soll das ganze in Eigenleistung passieren.
Ich hadere etwas, wie man denn am besten Zuluft und Fortluft relaisiert. Ich würde gerne ein Sole-Luft-Wärmetauscher vor die Zuluft planen um im Sommer die Luft vorzukühlen und vor allem zu entfeuchten. Deswegen ist es vermutlich sinnvoll die ganze Anlage in den Keller zur Heizung mitzuplanen. Die Zuluft sehe ich dann entweder nur als "komischer Turm im Garten" (dann eher im Süden) möglich, oder als längeres Rohr um das Gebäude führen und dann "irgendwie" über der Fahrradgarage die Luft ansaugen. Oder eben durch den Technikschacht und die Luft dann nördlich unter dem Giebel ansaugen. Dann transportiert man aber die ganze Luft quer durch das Haus bevor diese durch den Wärmetauscher geht und außerdme brauch so ein langes Rohr vermutlich auch einen entsprechenden Durchmesser, so dass das schwierig durch den Technikschacht geht.
Ich habe mal die Grundrisse angehängt. Wie würdet ihr die Zuluft und Fortluft planen? Oder würdet ihr die Anlage vielleicht doch nicht in den Keller planen? Wir haben durch das flache Dach (25°) einen sehr niedrigen Spitzboden (~1m) den wir nicht nutzen werden. Ähnliches gilt auch die die Photovoltaikanlage. hier überlege ich ob ich den Wechselrichter über der Fahrradgarage an die Fassade baue, damit die ganzen DC-Leitungen außerhalb des gebäudes laufen und ich im Sommer nicht die ~400W Heizleistung im Keller habe.
Anzeige
Hallo GeraldG,
schau mal hier: Zentrale Lüftungsanlage im Keller. Zuluft und Fortluft wo?. Da wird jeder fündig!
schau mal hier: Zentrale Lüftungsanlage im Keller. Zuluft und Fortluft wo?. Da wird jeder fündig!
Ähnliche Themen