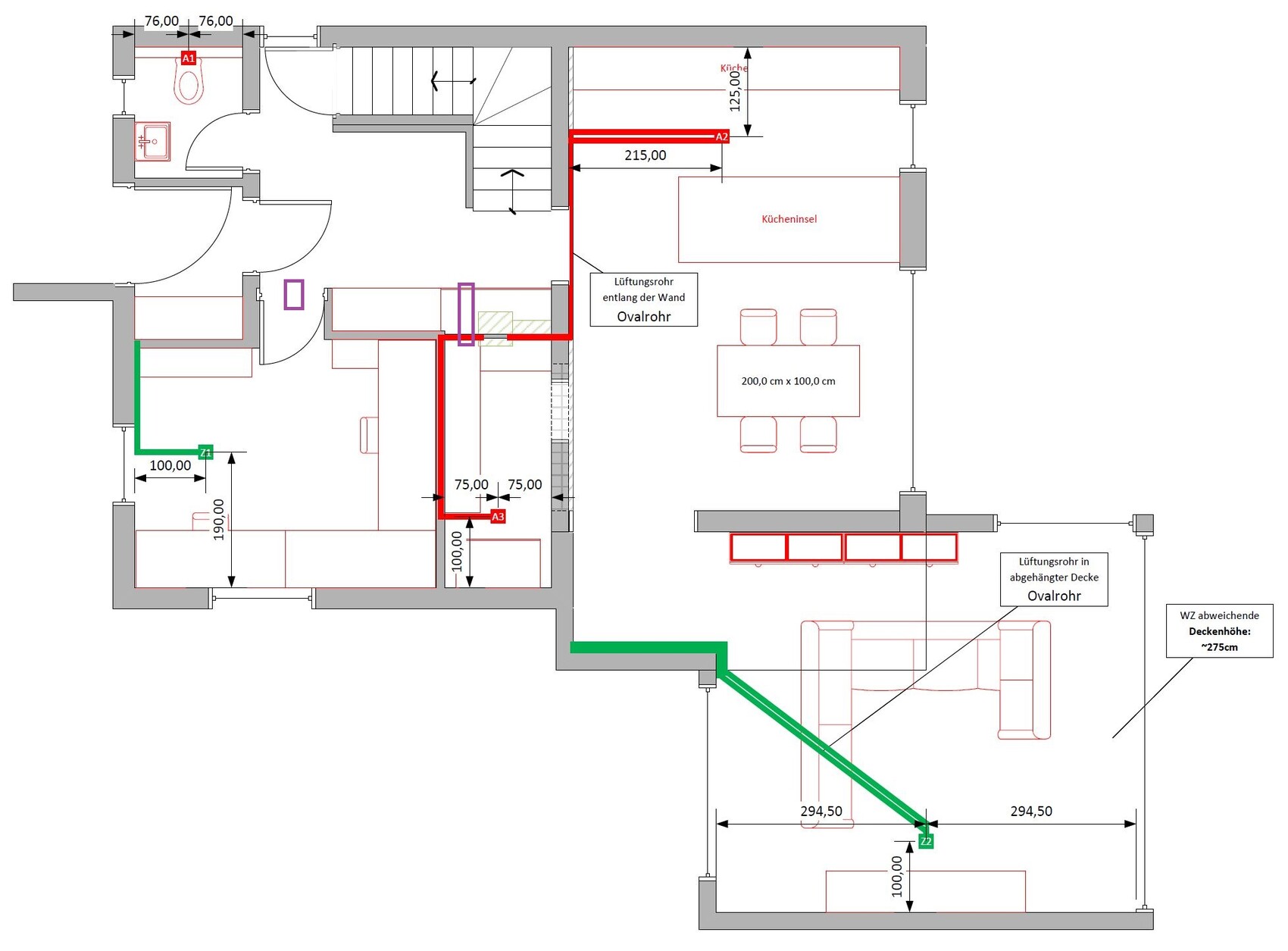
Wäre es möglich, wenn der ein oder andere nochmals über meine vorhandene Lüftungsanlagenplanung schauen könnte?
Da es sich um eine Sanierung im Bestand handelt, ist leider die Positionierung der Ventile sehr eingeschränkt möglich.
Informationen zum Projekt:
BJ' 1961
Zwei Personen (keine Kinder)
Im Büro (EG) sind die meiste Zeit 2 Personen anwesend


EG:

Zwischen Wohnzimmer und Küche/Essen ist keine Türe, sondern ein 170cm breite Wandöffnung.
Zwischen Küche und Flur ist eine 100cm breite Schiebetüre
Zischen Essen und Speis ist eine ca. 80cm breite Schiebetüre.
Speis ist unbeheizt (indirekt aber durch Heizkreisverteiler)
OG:

Die Zuluft- und Abluftventile werden alle in der Decke eingebaut (hier kann ich die Rohre teilweise durch die Rippendecke verlegen)
Das Lüftungsgerät befindet sich im Keller
Im EG und OG werde ich an manchen stellen eine Lüftungsöffnung in der Wand realisieren, diese sind violett eingezeichnet:
OG: zwischen Bad(WC-Bereich) und Flur (evtl. noch Schlafen zu Flur)
EG: über Türe Büro zu Flur und Speisekammer zu Flur
Ich habe bestimmt viele Punkte vergessen zu beschreiben.
Sollte etwas unklar sein, bitte direkt nachfragen
Da es sich um eine Sanierung im Bestand handelt, ist leider die Positionierung der Ventile sehr eingeschränkt möglich.
Informationen zum Projekt:
BJ' 1961
Zwei Personen (keine Kinder)
Im Büro (EG) sind die meiste Zeit 2 Personen anwesend
EG:
Zwischen Wohnzimmer und Küche/Essen ist keine Türe, sondern ein 170cm breite Wandöffnung.
Zwischen Küche und Flur ist eine 100cm breite Schiebetüre
Zischen Essen und Speis ist eine ca. 80cm breite Schiebetüre.
Speis ist unbeheizt (indirekt aber durch Heizkreisverteiler)
OG:
Die Zuluft- und Abluftventile werden alle in der Decke eingebaut (hier kann ich die Rohre teilweise durch die Rippendecke verlegen)
Das Lüftungsgerät befindet sich im Keller
Im EG und OG werde ich an manchen stellen eine Lüftungsöffnung in der Wand realisieren, diese sind violett eingezeichnet:
OG: zwischen Bad(WC-Bereich) und Flur (evtl. noch Schlafen zu Flur)
EG: über Türe Büro zu Flur und Speisekammer zu Flur
Ich habe bestimmt viele Punkte vergessen zu beschreiben.
Sollte etwas unklar sein, bitte direkt nachfragen
Anzeige
Ähnliche Themen