ᐅ Zehnder Q350 Kontrollierte-Wohnraumlüftung Planung so in Ordnung?
Erstellt am: 15.08.18 16:39
A
Ade123Servus,
ich erhielt heute die vorgeschlagene Planung von Zehnder und mir sind ein paar Sachen unklar.
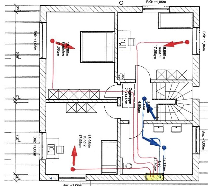
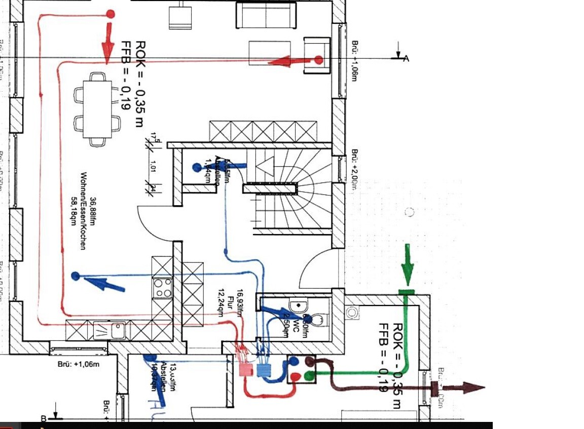
Verbaut wird die Zehnder Q350, die Kanäle sind ComfoTube Flat 51, also Flachkanäle unterm Estrich
1. Bei allen Zuluftventilen 42m³/h soll nur ein Flachkanal verbaut werden, 2 Stück Parallel die zu den Zuluftventilen laufen, wären doch besser weil Leiser und die Strömungsgeschwindigkeit langsamer wäre, und wie sieht es mit den Abluftventilen aus?
2. EG Flur ist kein Zuluft, im EG gesamt ist eine Zuluft von 84m³/h und Abluft von 106m³/h, wäre es da nicht wieder besser Zuluft und Abluft pro Stockwerk gleich zu haben?, in meinem Fall ist im Eg Weniger Zuluft, mehr Abluft, im OG mehr Zuluft und weniger Abluft, Gesamtwerk ist Zu und Abluft gleich
Leider finde ich in den Technischen Daten von Zehnder keinen maximalen Volumenstrom oder eine Empfehlung, aber wenn ich mir die Pläne von anderen Forumsmitglieder ansehe wurden bei Ihnen 2 Kanäle bei einem Volumenstrom >40m³/h verwendet

ich erhielt heute die vorgeschlagene Planung von Zehnder und mir sind ein paar Sachen unklar.
Verbaut wird die Zehnder Q350, die Kanäle sind ComfoTube Flat 51, also Flachkanäle unterm Estrich
1. Bei allen Zuluftventilen 42m³/h soll nur ein Flachkanal verbaut werden, 2 Stück Parallel die zu den Zuluftventilen laufen, wären doch besser weil Leiser und die Strömungsgeschwindigkeit langsamer wäre, und wie sieht es mit den Abluftventilen aus?
2. EG Flur ist kein Zuluft, im EG gesamt ist eine Zuluft von 84m³/h und Abluft von 106m³/h, wäre es da nicht wieder besser Zuluft und Abluft pro Stockwerk gleich zu haben?, in meinem Fall ist im Eg Weniger Zuluft, mehr Abluft, im OG mehr Zuluft und weniger Abluft, Gesamtwerk ist Zu und Abluft gleich
Leider finde ich in den Technischen Daten von Zehnder keinen maximalen Volumenstrom oder eine Empfehlung, aber wenn ich mir die Pläne von anderen Forumsmitglieder ansehe wurden bei Ihnen 2 Kanäle bei einem Volumenstrom >40m³/h verwendet
Jein. Die Rundrohre haben ein geringeres Volumen als das Flachsystem. Kann schon richtig sein.
Aber generell würde ich versuchen pro Ventil möglichst an den 20m³ zu bleiben.
Sprich doch den Planer darauf noch mal an
Die Zuluft im Wohnen würde ich weiter nach unten setzen, weg von den Sitzplätzen.
Aber generell würde ich versuchen pro Ventil möglichst an den 20m³ zu bleiben.
Sprich doch den Planer darauf noch mal an
Die Zuluft im Wohnen würde ich weiter nach unten setzen, weg von den Sitzplätzen.
Damit ich dich richtig verstehe, PRO VENTIL, das heißt für mich z.B. bei Wohnen wo EIN Ventil mit 42m³/h lieber noch ein ZWEITES Ventil, sprich Wohnen 2x 21m³/h
oder Zweites Rohr?,
gedrosselt/eingestellt wird der Volumenstrom im Heizungsraum, nicht am Ventil selbst
Wie Soll ich das dann im Schlafzimmer anstellen, Frau will im Schlafzimmer unbedingt ein Ankleideraum, also wird dieser Raum noch minimal Kleiner und noch eine Mauer kommt rein (ohne Tür, so ne Art Raumtrenner) wenn ich da zwei Ventile montieren muss, dann ist es völlig egal wo ich das Bett platziere, ich bin ständig im Zug
Bett wird dann nicht an der Rechten Mauer stehen, sondern an der Oberen Mauer
oder Zweites Rohr?,
gedrosselt/eingestellt wird der Volumenstrom im Heizungsraum, nicht am Ventil selbst
Wie Soll ich das dann im Schlafzimmer anstellen, Frau will im Schlafzimmer unbedingt ein Ankleideraum, also wird dieser Raum noch minimal Kleiner und noch eine Mauer kommt rein (ohne Tür, so ne Art Raumtrenner) wenn ich da zwei Ventile montieren muss, dann ist es völlig egal wo ich das Bett platziere, ich bin ständig im Zug
Bett wird dann nicht an der Rechten Mauer stehen, sondern an der Oberen Mauer
Ade123 schrieb:
Damit ich dich richtig verstehe, PRO VENTIL, das heißt für mich z.B. bei Wohnen wo EIN Ventil mit 42m³/h lieber noch ein ZWEITES Ventil, sprich Wohnen 2x 21m³/h
oder Zweites Rohr?,Bestenfalls pro Ventil, ja. Der Planer wird dir dazu aber was sagen können.
ehrlich gesagt habe ich nicht sehr viel vertrauen zu dem Planer nachdem ich die Teileliste gesehen hab, ich brauche laut der liste 40m Rundrohr 90 und 11 Übergänge 90°Winkel von Flach auf Rund, ich lass mir eingehen in der Steigleitung von EG auf OG Rundrohre zu verwenden... aber da brauche ich keine 40m und auch keine 11 Übergänge...
Ich werde dennoch nachfragen, wenn Antwort nicht zufriedenstellend ist ruf ich den Berater einmal an, die Planung von Helios war in meinen Augen besser und Genauer...
Ich werde dennoch nachfragen, wenn Antwort nicht zufriedenstellend ist ruf ich den Berater einmal an, die Planung von Helios war in meinen Augen besser und Genauer...
Vergibst du das Gewerk einzeln dh. jeden Meter Rohr bezahlst du direkt?
Dann kann er gleich noch mal anfangen insbesondere im EG mal ein paar Meter Flachkanal zu sparen. Gerade im Wohnraum ist das Zeug ja im maximal weitem Bogen verlegt. Der Flachkanal kostet ordentlich (Faktor 3-4 im Vergleich zum Rundrohr).
Edit:
In den Planungen steht, dass es sich um Deckenventile handelt. Was macht der denn da mit Flachkanal? Wenn er eh in die Decke geht, warum kein Rundrohr? Oder legt er den Flachkanal auf die Decke(n) um für das darunter liegende Geschoss Tellerventile zu setzen?
Oder hast du abgehangene Decken?
Dann kann er gleich noch mal anfangen insbesondere im EG mal ein paar Meter Flachkanal zu sparen. Gerade im Wohnraum ist das Zeug ja im maximal weitem Bogen verlegt. Der Flachkanal kostet ordentlich (Faktor 3-4 im Vergleich zum Rundrohr).
Edit:
In den Planungen steht, dass es sich um Deckenventile handelt. Was macht der denn da mit Flachkanal? Wenn er eh in die Decke geht, warum kein Rundrohr? Oder legt er den Flachkanal auf die Decke(n) um für das darunter liegende Geschoss Tellerventile zu setzen?
Oder hast du abgehangene Decken?
Ähnliche Themen