Ich bin gerade dabei die Elektroinstallation zu machen und dabei (mal wieder)
auf das Problem gestoßen wie ich das Wohnzimmer ausrichte.
Ich habe im Prinzip 3 Möglichkeiten:
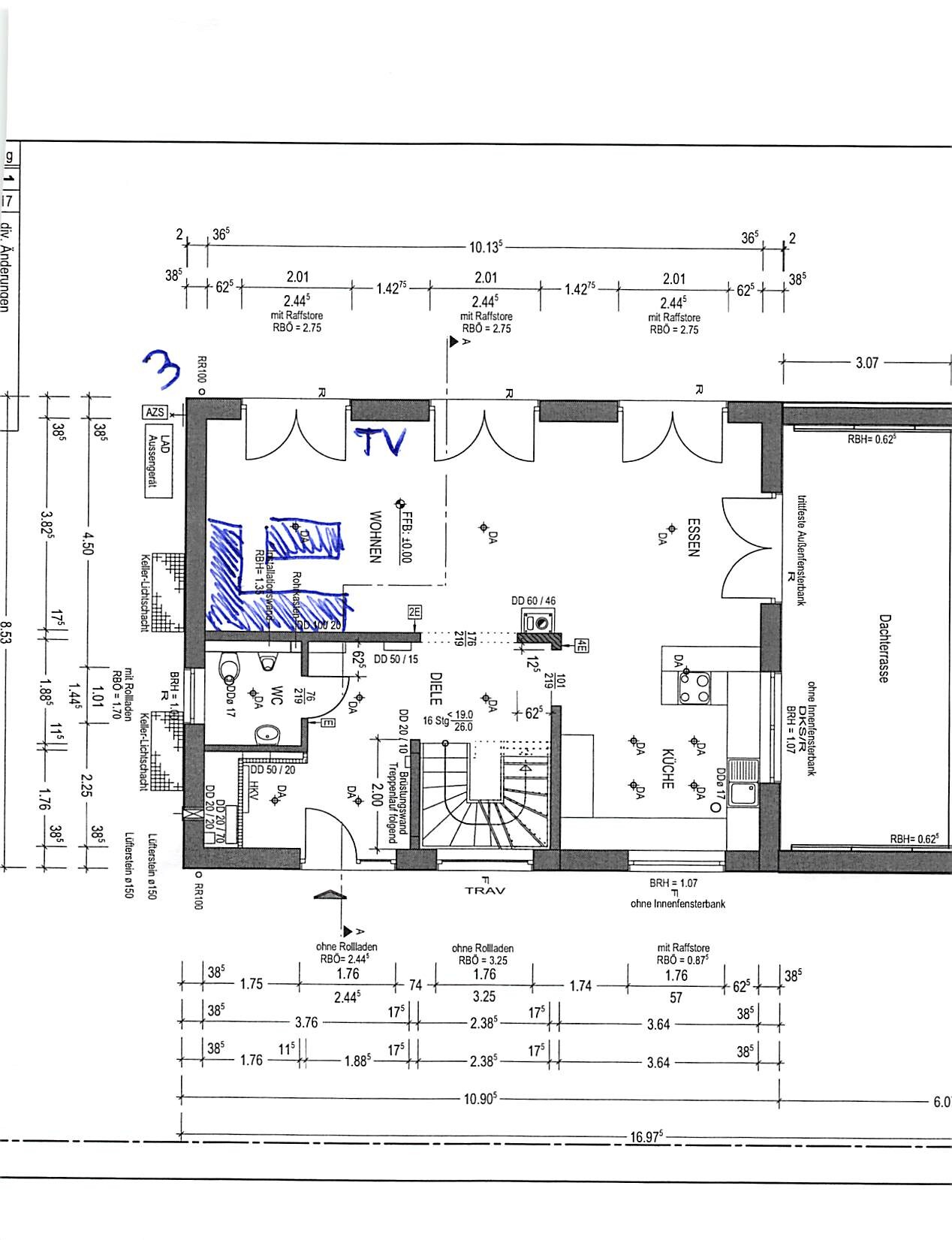
1. TV an die Wand gegenüber der Terrassentür
Hier wäre das Problem dass sich die Tür nicht nutzen lässt (was nicht so schlimm wäre da nebendran sowieso noch weitere Türen sind)
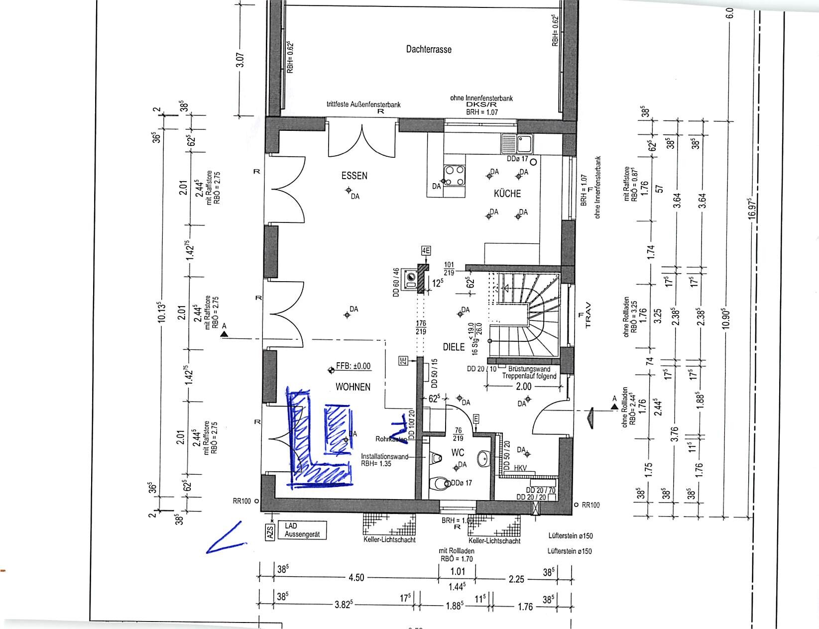
2. TV an die seitliche Wand neben Terrassentür
Hier sehe ich das Problem dass die Couch mit dem Rücken zur restlichen Wohnung stehen würde.
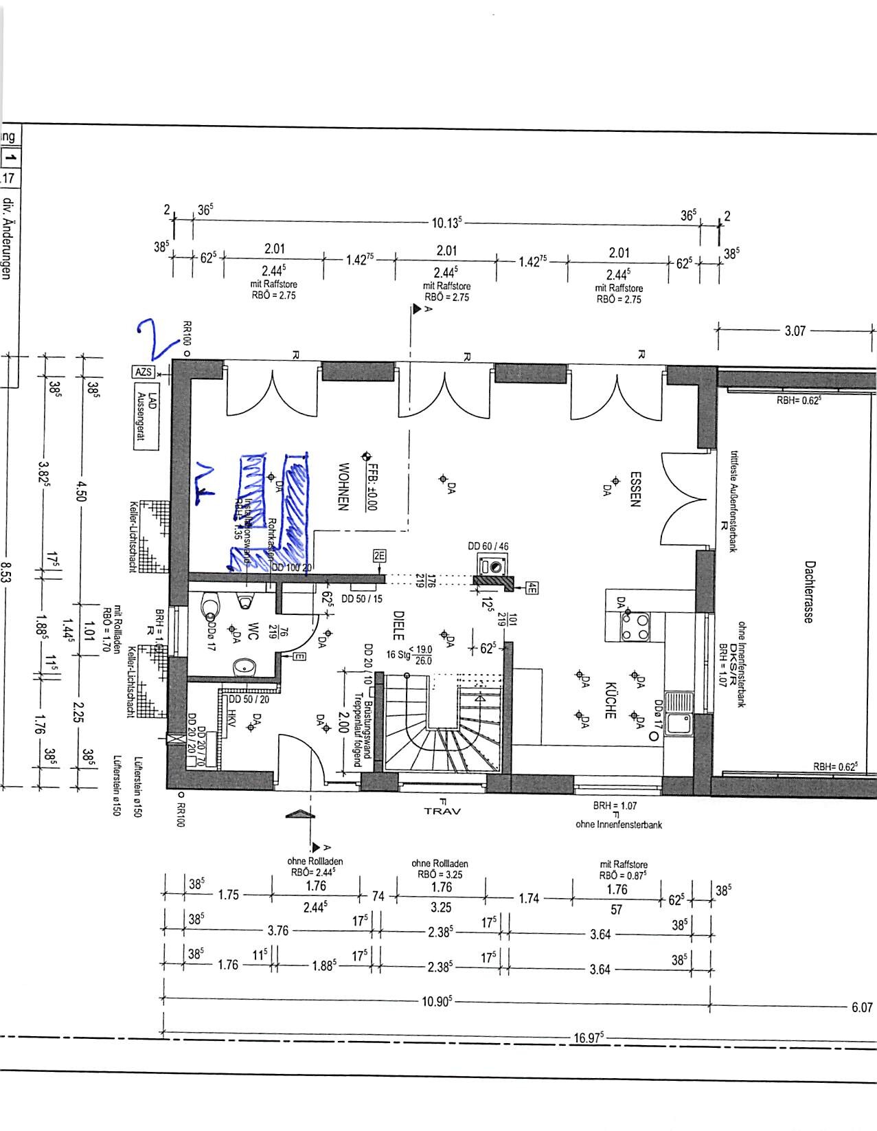
3. TV an die Wand zwischen 2 Terrassentüren
Hier wäre der TV schon relativ weit schräg von der Couch weg.
Welche Variante würdet ihr denn bevorzugen?

auf das Problem gestoßen wie ich das Wohnzimmer ausrichte.
Ich habe im Prinzip 3 Möglichkeiten:
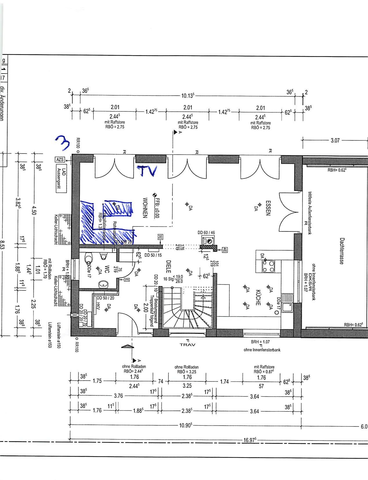
1. TV an die Wand gegenüber der Terrassentür
Hier wäre das Problem dass sich die Tür nicht nutzen lässt (was nicht so schlimm wäre da nebendran sowieso noch weitere Türen sind)
2. TV an die seitliche Wand neben Terrassentür
Hier sehe ich das Problem dass die Couch mit dem Rücken zur restlichen Wohnung stehen würde.
3. TV an die Wand zwischen 2 Terrassentüren
Hier wäre der TV schon relativ weit schräg von der Couch weg.
Welche Variante würdet ihr denn bevorzugen?
Was für eine Frage - bist Du Junggeselle ?
Der Spezies "holde Gattin" wird nämlich die Eigenschaft nachgesagt, Sitzgruppen ohnehin alle drei Jahre umzustellen. Was zur logischen Konsequenz führt: alle Wände mit Steckdosen für Strom und Lautsprecher auszurüsten, da in den nächsten zehn Jahren alle drei Varianten einmal zum Tragen kommen werden. Jetzt die scheinbar optimale Lösung festzulegen, führt nur zu Verlängerungskabeln während der Phasen, wo eine der anderen Gruppierungen en vogue ist.
https://www.instagram.com/11antgmxde/
https://www.linkedin.com/company/bauen-jetzt/
Der Spezies "holde Gattin" wird nämlich die Eigenschaft nachgesagt, Sitzgruppen ohnehin alle drei Jahre umzustellen. Was zur logischen Konsequenz führt: alle Wände mit Steckdosen für Strom und Lautsprecher auszurüsten, da in den nächsten zehn Jahren alle drei Varianten einmal zum Tragen kommen werden. Jetzt die scheinbar optimale Lösung festzulegen, führt nur zu Verlängerungskabeln während der Phasen, wo eine der anderen Gruppierungen en vogue ist.
https://www.instagram.com/11antgmxde/
https://www.linkedin.com/company/bauen-jetzt/
Loads schrieb:
Dann werde ich das wohl auch so machen...Und jetzt mit der Schützenhilfe, daß ich das gesagt habe. Dieselbe Spezies "holde Gattin", die keine Verlängerungsschnüre mag (wegen der Optik, das Stolpern wäre noch egal), mag ja eigentlich die vielen Steckdosen die das vermeiden, dann auch wieder nicht ;-)https://www.instagram.com/11antgmxde/
https://www.linkedin.com/company/bauen-jetzt/
Ähnliche Themen