Wohnfläche ~ 8 m² geringer bei Antragszeichnungen als bei Entwurf (GU)

4,60 Stern(e) 13 Votes
Zuletzt aktualisiert 20.11.2025
Sie befinden sich auf der Seite 2 der Diskussion zum Thema: Wohnfläche ~ 8 m² geringer bei Antragszeichnungen als bei Entwurf (GU)
>> Zum 1. Beitrag <<

11ant

11ant

leider war ich schlauer als alle anderen hier im Forum
Beweis Nr. 1: Du zeigst den Entwurf nicht, wir sollen also wie die Blinden von der Farbe reden;
Beweis Nr. 2: Du "rechnest" bei mehr Wandstärke im Ergebnis mit weniger (!) Material für die Wände.
oder ob das einfach nur Standard in der Baubranche ist.
Ja, selbstverständlich nimmt ein GU-Zeichenknecht den Platz für eine Wandverdickung auf der Innenseite weg. Woher auch sonst.
Wie schätzt ihr das ganze ein und wie würdet ihr in dieser Situation handeln?
An Deiner Stelle als "schlauer als die anderen" Bauherr natürlich mit einer eMail: "bitte berechnen Sie für ein geändertes Angebot die Wandverdickung nach außen statt nach innen".
Ein wirklich schlauer Bauherr würde hier auch jetzt noch den gesamten Entwurf hier diskutieren und hinterfragen - selbstverständlich auch im "Detail", ob die EH-Fettstufe 40 tatsächlich der Burner ist.
Und meine Ratnehmer würden zudem niemals sich auf eine Bauweise samt konkretem GU vorfestlegen. Die gehen übrigens auch zu Architekten, die einen Vorentwurf als Entwurfs-Reifestufe kennen und anwenden, und nicht als Bezeichnung für einen "noch nicht finalen" Entwurf mißbrauchen.
bin nun länger stiller Mitleser
Aber zumindest kein aufmerksamer. Sonst wüßtest Du, daß Du Dir mit Kalksandstein einen Stein ausgesucht hast, der Dich in EH40 natürlich nicht mit dem Kaliber 425 auskommen läßt. Manchmal schreibt man hier buchstäblich gegen Wände.
 
Musketier

Musketier

Warum muss das Dach zwingend größer werden? Bei nem Walmdach kann auch einfach der Überstand schrumpfen.
Der Überstand ist aber meist in der Bauleistungsbeschreibung definiert.
Wird der einfach kleiner, wird sich berechtigterweise auch beschwert. Also müsste das Dach zwangsläufig größer werden.

Und wenn 14cm mehr Außenmaß zum Problem werden, ist das Grundstück ohnehin zu klein fürs geplante Haus
Wenn man aber 6m von der Grenze weg baut, weil man eine Doppelgarage plant und dann nachträglich die Außenwand um 6cm nach außen dicker wird, da bleiben nur noch 5,94 übrig und die Garage passt nicht hin. Dann ist es egal wie groß das Grundstück auf der anderen Seite ist.


Außerdem zahlen wir ja auch extra einen Aufpreis für die Erweiterung auf KfW 40.
Der natürlich teurer geworden wäre, wenn die Erweiterung nach außen gehen würde. So würde ich zumindest als GU argumentieren.
Was an Mehr- und Minderkosten im Aufpreis verrechnet wurden, sieht nur der GU. Willst du eine Verbreiterung nach außen, dann kostet es halt nochmal mehr.


Im Übrigen müsste das Wohnzimmer 38m Außenwand haben, damit sich die 6,5cm auf 2,5m² aufsummieren.
Hier wird meines Erachtens Rohbaumaße und Wohnflächenberechnung verwechselt und das komplett auf die Verbreiterung der Wände geschoben.
 
I

ITSM2025

Definiere Vorentwurf.

Also, ihr habt sicherlich Kleingedrucktes. Und es kommt ja auf den Vertrag an. Letztendlich baut Ihr mit einem GU. Die Frage ist, wie es hier bei dem GU überhaupt zu einer Preisfindung kommt. Oftmals stützt sich der GU auf ein Kataloghaus bzw. auf eine Zeichnung, die zum Vertrag inkl. der Bauleistungsbeschreibung genommen wird.

Man hat sehr selten, wenn man mit einem GU baut, eine Preisfindung nach Wohnfläche.
Oftmals hat man das Typenhaus Florentine mit ca. 150qm Wohnfläche (Circa!) auf Bodenplatte und die dazugehörige Bauleistungsbeschreibung. Alles, was angepasst wird, wird anhand von Sonderwünschen, auch energetisch angepasst. In der Bauleistungsbeschreibung steht die Erneuerbare-Energien-Gesetz (oder früher KfW), worauf sich der Katalogpreis bezieht.
Dann erfolgt eine Anpassung, mal zum Nachteil von einigen Zentimetern, mal ist es die Höhe. Zb muss oft die Dachneigung angepasst werden, wenn der Bebauungsplan etwas vorschreibt oder zb der Bauherr eine andere Treppe wünscht.
Und das müsste auch so in dem Vertrag stehen.
Ich wüsste jetzt aber auch nicht, dass sich ein GU auf fixen Zahlen vorab festlegt. Der lässt sich Freiheiten, damit man Anpassungen nicht neu berechnen muss.
Wenn Euch das jetzt mit dem Bauantrag nicht passt, dann müsst ihr sprechen. Ihr müsst den ja nicht unterschreiben, aber ihr solltet klären, inwieweit die Wohnfläche gedeckelt ist im Vertrag.

So etwas findet selten bei einem Generalunternehmer statt. Es ist kein Architektenhaus mit Ausschreibung, sondern für Euch als Bauherr das schlüsselfertige Haus nach Bauleistungsbeschreibung. Sagen wir mal so: die Mischkalkulation geht Dich als Bauherr nicht an. Es geht schlicht nach Typenhäuser, deren Standard und Aufpreis-Änderungen.

Wegen weniger Zentimeter lohnt sich ein Ausbau nicht? Das ist unsachlich.
Danke dir für den Beitrag.

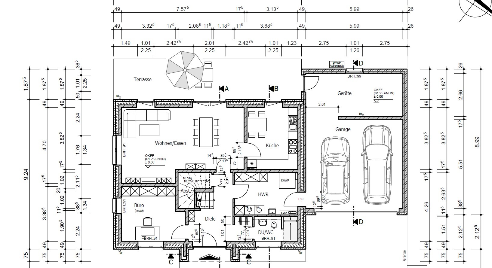
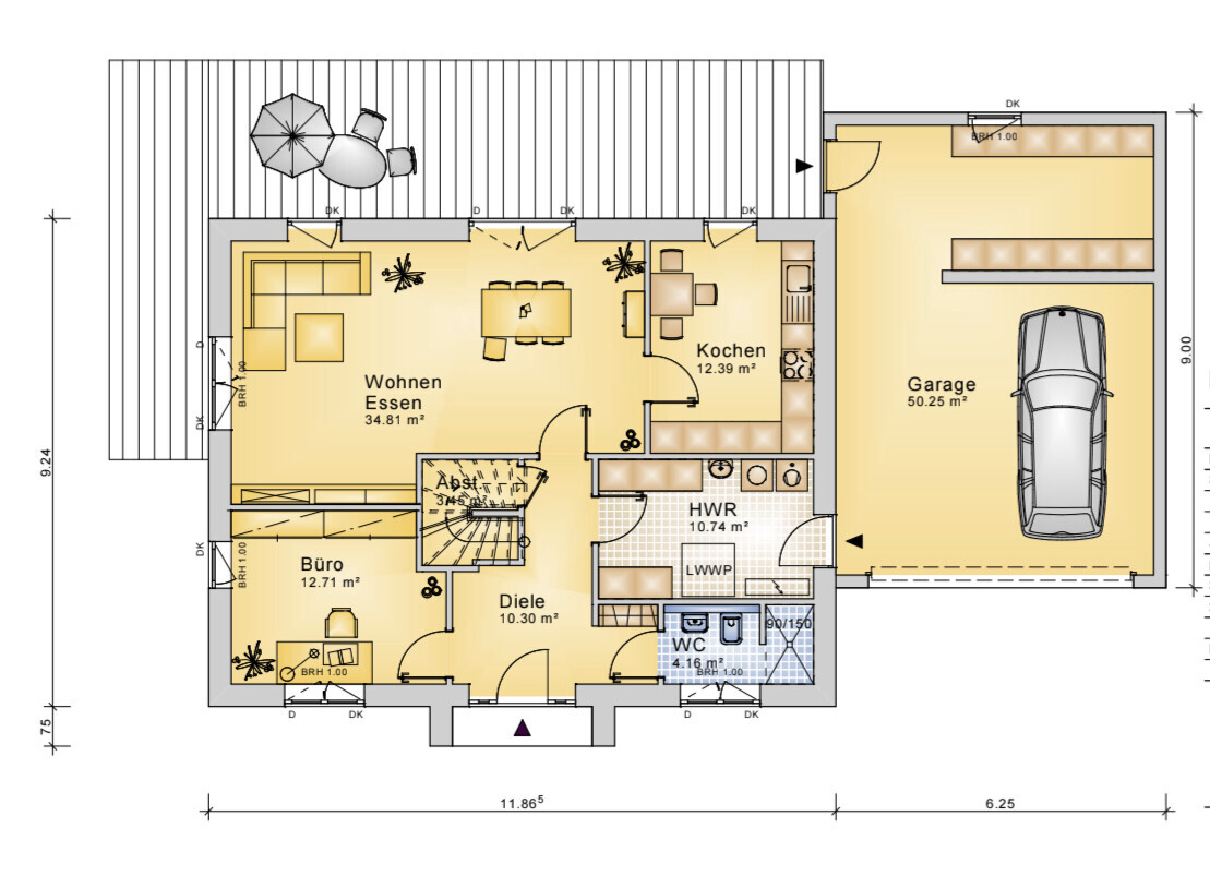
Mit Vorentwurf meine ich den Entwurf, den man typischerweise mit einem GU erstellt, bevor man irgendetwas unterzeichnet. Dieser hatte zB auch keine genauen Maße je Raum sondern nur wie anbei zu sehen. Ich habe euch hier einfach mal den Entwurf und die Zeichnung für den Bauantrag hochgeladen. Evtl wird das dann deutlicher klar was ich meine. Ich muss dazu aber auch sagen, dass es in dem Fall kein Kataloggrundriss ist da wir alles soweit selber vorab gezeichnet haben (nur mit Wunschraumflächen, ohne genaue Bemaßung) und dem GU geschickt haben, welcher dann eben den Entwurf professioneller gezeichnet hat.
Grundriss eines Einfamilienhauses mit Wohnzimmer, Küche, Büro, Diele, WC, HWR, Garage und Terrasse.

Grundriss Erdgeschoss: Haus mit Garage, Terrasse, Wohnzimmer, Küche, Büro, Diele.
 
Y

ypg

Da kann man doch nicht einfach vorab mit irgendeinen schmaleren Mauerwerk rechnen.
Doch. Das Mauerwerk steht mutmaßlich in der Bauleistungsbeschreibung.
Zusätzlich kommt bei Euch das Upgrade einer höheren KFW 40, die auch auf die Außenwände verändern können.
Allerdings muss ich sagen: aus der Erinnerung, wir haben auf ein damals KFW70 upgegradet, und da wurde die Außendämmung von 12 auf 14 oder 16cm erhöht, allerdings außen. Innen blieb alles gleich.
Nochmal: Schau in die Bauleistungsbeschreibung und in den Vertrag, den wir nicht kennen.
Und: es ist ein Fehler, sich als Bauherr jetzt Kosten pro Qm auszurechnen. Da kommen noch andere Kosten auf Dich zu, die einzubeziehen sind.
 
Zuletzt aktualisiert 20.11.2025
Im Forum Bauplanung gibt es 5071 Themen mit insgesamt 100812 Beiträgen


Ähnliche Themen zu Wohnfläche ~ 8 m² geringer bei Antragszeichnungen als bei Entwurf (GU)
Nr.ErgebnisBeiträge
1Außenwand Town & Country Häuser 11
2Vergleich Bauleistungsbeschreibung bzgl Bodenplatte - Seite 317
3Kostenschätzung aus Vorentwurf überprüfen 35
4feuchte Wände an Terrassentüren und Haustür - Seite 211
5Wände aus Styrodur oder Styropor? 10
6Was muß man beim Wände entfernen/versetzen beachten? 10
7Wände Neubau Einfamilienhaus, EG verlaufen schief, Fehlerbehebung Baumangel 19
8Wände vor den Fußböden fliesen? 11
9Wände im Neubau verputzen oder Vlies? 16
10Kosten für Innenausbau Bodenbeläge, Wände, Decken - Seite 224
11Grundrissänderung - Tragende Wände in Wohnung. Was tun? 14
12Garagenbau aus Beton! 3 Wände oder Hausanbau? Was meint ihr? 26
13Wände neu verputzen/verkleiden (mit Fotos) 12
14Mythos?! "Atmende Wände" Was ist dran? 54
15Wände Malervlies / Decke Kalkfarbe? 22
16Elektroosmose, um feuchte Wände zu sanieren 11
17Q2 Wände verputzen mit Rollputz oder andere Empfehlung? 27
18Dekorfliesen - 3d Fliesen - zeigt her eure besonderen Wände - Seite 234
19Fliesenmuster Wände im Badezimmer - Seite 326
20Verständnisfrage: Satteldach - tragende Wände - Grundriss 11

Oben