Hallo,
wir sind gerade dabei unsere Badplanung zu detaillieren. Wir haben folgende Anforderungen:
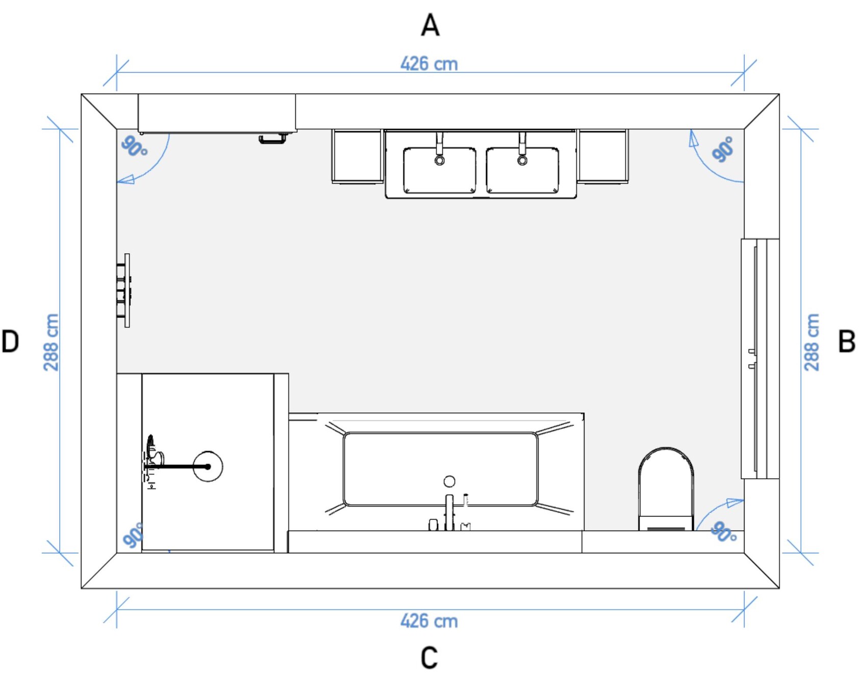
Dusche
- geräumige Dusche mit flacher Duschtasse, Maße 120x100 cm
- Vorwandinstallation für Dusche um Unterputzarmaturen unterzubringen (wir haben 15 cm Tiefe geschätzt)
- Trockenbauwand zur Abtrennung Dusche und Badewanne
- Duschwand aus Glas auf o.g. Trockenbauwand
- Eingang zur Dusche mit einer nach außen öffnenden Tür
Badewanne
- Trockenbauwand hinter Badewanne zur Unterbringung von Unterputzarmaturen (wir haben 15 cm Tiefe geschätzt)
- Wanne eingemauert und gefliest
Waschtisch
- Doppelwaschtisch um bei 2 Erwachsenen und 2 Kindern auch mal gleichzeitig zwei Wasserhähne nutzen zu können (Breite 130-140 cm).
- Eigentlich nur Spiegel, aber wahrscheinlich dann doch ein nur 10 cm tiefer spiegelschrank. Einbauspiegelschränke sehen schon toll aus, aber dann müsste man wieder eine Trockenbauwand davor setzen und es geht Raum verloren.
Auch ist in dem Fall wieder mit mehr Kosten zu rechnen. Für Spiegel spricht das Argument, dass sich auch die Kinder besser sehen können, da er tiefer hängt.
- 2 Hochschränke mit je einem Wäschekorb hinter der unteren Tür für Dreckwäsche.
Fragen:
1. Ich nehme an, dass unter Dusche und Badewanne keine Fußbodenheizung verlegt wird. Und für die Duschtasse, auch wenn sie nicht ebenerdig ist, ein Loch im Estrich gelassen werden muss um Dämmung und Abflussrohr unterzubringen?
2. Hinter der Vorwand der Dusche befindet sich das Kinderzimmer, da die Rohre nicht in der tragenden Wand liegen, gehe ich davon aus das nicht wie in Altbauten mit erhöhten Geräuschpegel zu rechnen ist. Dann wohl eher von der Duschtasse ausgehende Geräusche, wobei diese ja auch einer Dämmung im besten Fall gesetzt wird. Korrekt?
3. Vorwandinstallationen für WC, Badewanne und Dusche haben wir mit 15 Tiefe geschätzt. Korrekt?
4. Die Trockenbauwand bei der Badewanne haben wir auf eine Höhe von 85 cm geschätzt, kommt das in etwa hin um die Armaturen zu verbauen?
5. Für den Doppelwaschtisch ist wahrscheinlich trotzdem nur ein Schmutzwasserabflussrohr sowie nur ein Frischwasserrohr (je warm und kalt) notwendig?
6. Falls wir uns doch gegen einen Spiegelschrank entscheiden, wissen wir noch nicht wo wir die Ladegeräte der elektrischen Zahnbürsten unterbringen. In Hochschrank müsste man jeweils eine Steckdose einbauen. Ich habe bei Google eine Wandhalterung für Braun Zahnbürsten gefunden. Sah auf dem ersten Blick nicht schlecht aus. Hat jemand andere Ideen?
7. Rechts neben dem Hochschrank würden wir noch ein kleines Regal anbringen, wo unten auch noch mal ein Wäschekorb stehen soll (unser Technik/HW Raum ist nicht so groß).
8. Unter dem Fenster eine kleine Sitzbank oder Sitzmöglichkeit
Wir würden uns über Anregungen und Meinungen sehr freuen.
Euch einen schönen Abend noch.
Bodengleiche Duschtasse)




wir sind gerade dabei unsere Badplanung zu detaillieren. Wir haben folgende Anforderungen:
Dusche
- geräumige Dusche mit flacher Duschtasse, Maße 120x100 cm
- Vorwandinstallation für Dusche um Unterputzarmaturen unterzubringen (wir haben 15 cm Tiefe geschätzt)
- Trockenbauwand zur Abtrennung Dusche und Badewanne
- Duschwand aus Glas auf o.g. Trockenbauwand
- Eingang zur Dusche mit einer nach außen öffnenden Tür
Badewanne
- Trockenbauwand hinter Badewanne zur Unterbringung von Unterputzarmaturen (wir haben 15 cm Tiefe geschätzt)
- Wanne eingemauert und gefliest
Waschtisch
- Doppelwaschtisch um bei 2 Erwachsenen und 2 Kindern auch mal gleichzeitig zwei Wasserhähne nutzen zu können (Breite 130-140 cm).
- Eigentlich nur Spiegel, aber wahrscheinlich dann doch ein nur 10 cm tiefer spiegelschrank. Einbauspiegelschränke sehen schon toll aus, aber dann müsste man wieder eine Trockenbauwand davor setzen und es geht Raum verloren.
Auch ist in dem Fall wieder mit mehr Kosten zu rechnen. Für Spiegel spricht das Argument, dass sich auch die Kinder besser sehen können, da er tiefer hängt.
- 2 Hochschränke mit je einem Wäschekorb hinter der unteren Tür für Dreckwäsche.
Fragen:
1. Ich nehme an, dass unter Dusche und Badewanne keine Fußbodenheizung verlegt wird. Und für die Duschtasse, auch wenn sie nicht ebenerdig ist, ein Loch im Estrich gelassen werden muss um Dämmung und Abflussrohr unterzubringen?
2. Hinter der Vorwand der Dusche befindet sich das Kinderzimmer, da die Rohre nicht in der tragenden Wand liegen, gehe ich davon aus das nicht wie in Altbauten mit erhöhten Geräuschpegel zu rechnen ist. Dann wohl eher von der Duschtasse ausgehende Geräusche, wobei diese ja auch einer Dämmung im besten Fall gesetzt wird. Korrekt?
3. Vorwandinstallationen für WC, Badewanne und Dusche haben wir mit 15 Tiefe geschätzt. Korrekt?
4. Die Trockenbauwand bei der Badewanne haben wir auf eine Höhe von 85 cm geschätzt, kommt das in etwa hin um die Armaturen zu verbauen?
5. Für den Doppelwaschtisch ist wahrscheinlich trotzdem nur ein Schmutzwasserabflussrohr sowie nur ein Frischwasserrohr (je warm und kalt) notwendig?
6. Falls wir uns doch gegen einen Spiegelschrank entscheiden, wissen wir noch nicht wo wir die Ladegeräte der elektrischen Zahnbürsten unterbringen. In Hochschrank müsste man jeweils eine Steckdose einbauen. Ich habe bei Google eine Wandhalterung für Braun Zahnbürsten gefunden. Sah auf dem ersten Blick nicht schlecht aus. Hat jemand andere Ideen?
7. Rechts neben dem Hochschrank würden wir noch ein kleines Regal anbringen, wo unten auch noch mal ein Wäschekorb stehen soll (unser Technik/HW Raum ist nicht so groß).
8. Unter dem Fenster eine kleine Sitzbank oder Sitzmöglichkeit
Wir würden uns über Anregungen und Meinungen sehr freuen.
Euch einen schönen Abend noch.
Bodengleiche Duschtasse)
O
Osnabruecker22.02.21 16:06Du stellst viele Fragen über die gesamte Bandbreite (Estrich, Maurer, Sanitär, Elektro, Ausstattung...), daher nimmt die Zahl an umfangreichen Antworten ab...
Wofür planst du so tief im Detail?
Geht's um Neubau/Sanierung? Was willst du selbst machen?
Das meiste wird sich ergeben wenn du dich mit einem guten Sanitär zusammen setzt, der wird dir dann alles sagen was du wissen musst.
Verstehe z.B. nicht warum du 15 cm Abmauerung annimmst. Die meisten Steinformate wären z.B. 11.5 cm.
Wofür planst du so tief im Detail?
Geht's um Neubau/Sanierung? Was willst du selbst machen?
Das meiste wird sich ergeben wenn du dich mit einem guten Sanitär zusammen setzt, der wird dir dann alles sagen was du wissen musst.
Verstehe z.B. nicht warum du 15 cm Abmauerung annimmst. Die meisten Steinformate wären z.B. 11.5 cm.
Hallo @Osnabruecker ,
danke für deine Antwort. Ja ist dann doch recht umfangreich geworden. Eine Antwort auf alles erwarte ich auch gar nicht. :-)
Wenn zu der ein oder anderen Frage eine Rückmeldung kommt ist uns schon gut geholfen. Aber denke auch weniger wäre wahrscheinlich besser gewesen, so im Nachhinein. 🙂
Das meiste werden ja Trockenbauwände sein, außer vielleicht die Wand zwischen Dusche und Badewanne, die könnte man sicher auch massiv mauern.
Die Maße der Trockenbauwände habe ich angenommen um allgemein den Platz planen zu können, damit alles hintereinander passt.
Viel Glück
danke für deine Antwort. Ja ist dann doch recht umfangreich geworden. Eine Antwort auf alles erwarte ich auch gar nicht. :-)
Wenn zu der ein oder anderen Frage eine Rückmeldung kommt ist uns schon gut geholfen. Aber denke auch weniger wäre wahrscheinlich besser gewesen, so im Nachhinein. 🙂
Das meiste werden ja Trockenbauwände sein, außer vielleicht die Wand zwischen Dusche und Badewanne, die könnte man sicher auch massiv mauern.
Die Maße der Trockenbauwände habe ich angenommen um allgemein den Platz planen zu können, damit alles hintereinander passt.
Viel Glück
Osnabruecker schrieb:
Wofür planst du so tief im Detail?
Geht's um Neubau/Sanierung? Was willst du selbst machen?Die Fragen an Dich hast Du jetzt aber nicht beantwortet!Ähnliche Themen